Spring naar content
typeEengezinswoning
woonoppervlakte71 m2
slaapkamers2
buitenruimteAchtertuin
bouwjaar1920
energielabelF

Brochure

Over de woning

Dit huis is zó leuk verstopt dat je het bijna voor jezelf wilt houden...
Maar hé, dan zouden we je deze leukerd midden in de Dordtse binnenstad onthouden – en dat zou gewoon zonde zijn!

Welkom aan de Weeshuisstraat 15, een snoezig huis uit 1920 dat zich verstopt tussen de Voorstraat en de Steegoversloot. Je loopt zó het centrum in, maar zodra je hier binnenkomt, voelt het alsof je een eigen verborgen wereld instapt. De groene gevel vol bloempotten bij de voordeur geeft meteen dat frisse voorjaarsgevoel – wedden dat je meteen een foto maakt voor je Insta?

En dan die entree... Een voormalige garage die nu dienst doet als praktische binnenkomer met bergruimte voor ál je spullen én een plekje voor de was. Slim en verrassend! Binnen is het huis heerlijk licht en gezellig. De moderne keuken nodigt uit tot koken (of niet, want tja... met @hetmagazijn op kruipafstand is de verleiding groot om daar een hapje te gaan doen). Vanuit de bovenverdieping heb je zelfs zicht op hun terras – niet te vaak doen, hoor… Straks zit je élke avond aan de borrel.

De woonkamer is knus en doordacht ingericht, met meubels die je zo opzij schuift als je nét even wat meer ruimte nodig hebt. En de badkamer? Die is groter dan je verwacht. Echt zo'n plek waar je even uitgebreid wilt douchen zonder dat je tegen de muren aanstaat.

En dan de tuin… ZUIDWESTEN lieve mensen! Groen, groener, groenst met een berging achterin waar je tot in de late uurtjes heerlijk beschut zit. Denk; lange zomeravonden, kaarsjes aan, drankje erbij.

De verkoopster zegt het eigenlijk perfect: “Het fijne aan deze plek is dat je de gemakken van de stad binnen handbereik hebt. Als ik geen zin heb om te koken, loop ik de deur uit en binnen 5 minuten zit ik ergens fijn te eten.”

Dat dus. Dit huis moet je niet alleen zien, je moet 'm voelen. Kom sfeer proeven!

Indeling:

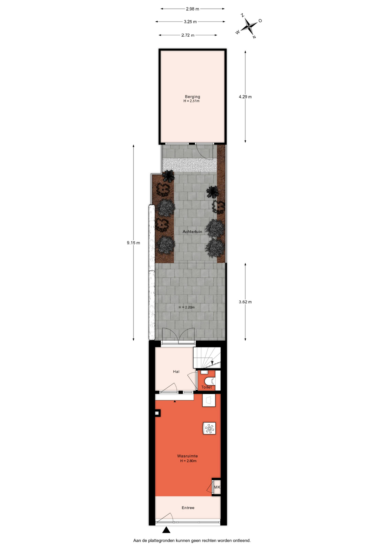
Begane grond:
Entree in de enorme berging/ garage, je leest het goed een auto past hierin! De ruimte beschikt nu over een was aansluiting en toegang tot de hal met trapopgang aan de achterzijde. Ook kun je vanuit deze hal met openslaande deuren in de tuin komen.

Meterkast met 6 groepen, 2x aardlekschakelaar, hoofdschakelaar, dag-en nachtstroom, gasmeter en watermeter.

De tuin is heel diep, lekker zonnig en achterin de tuin is een houten berging aanwezig. In de berging staat nog een kozijn met deur die zou je achterin de berging kunnen monteren dan heb je zelfs een eigen achterom!

Eerste verdieping:

Deze hele verdieping is de woonverdieping met aan de voorzijde de woonkamer en aan de achterzijde de keuken en de vaste trap naar de tweede verdieping.

De keuken en woonkamer zijn afgewerkt met een laminaat vloer en stuc wanden. Aan de voorzijde een schuifraam met origineel glas in lood raam erboven.

Wand opgestelde keuken met combi-oven, koelkast (2021), 5 pits gaskookplaat, rvs afzuigschouw, vaatwasser, spoelbak en kokend water kraan (2021).

Tweede verdieping:

Overloop met toegang tot alle vertrekken en luik met vlizo trap naar de bergzolder.

Slaapkamer 1 aan de voorzijde met dakkapel en stuc wanden.

Slaapkamer 2 ook gelegen aan de voorzijde met dakkapel en stuc wanden.

Badkamer met wastafel, meubel, douche en thermostaatkraan, vrijhangend toilet en gedeeltelijk betegelde wanden, elektrische ventilatie.

Bergzolder:

Bergvliering in de nok met opstelling van de CV ketel (bouwjaar 2015).

Algemeen:
Bitumen vervangen 2023.
Goot achterzijde gerepareerd 2023.
Lood rondom dakkapel vervangen 2023.
Meterkast 2015 vervangen.
CV ketel 2015.
Beschermd stads-en dorpsgezicht en beeldbepalend pand.

De informatie in deze brochure is met de nodige zorg vastgesteld. Aan deze gegevens kunnen echter geen rechten worden ontleend, alle aansprakelijkheid van Maarten Makelaardij is derhalve uitgesloten. Voorts zijn wijzigingen voorbehouden. Alle opgegeven maten en oppervlakten zijn indicatief.

Kenmerken

Financieel
Vraagprijs
€ 325.000,-
Status
Verkocht
Bouw
Soort woonhuis
Eengezinswoning
Soort bouw
Bestaande bouw
Bouwjaar
1920
Dak type
Zadeldak
Oppervlakten en inhoud
Wonen
71 m2
Overige inpandige ruimte
1 m2
Gebouwgebonden buitenruimte
0 m2
Perceel
73 m2
Inhoud
264 m3
Indeling
Aantal kamers
4
Aantal badkamers
1
Aantal slaapkamers
2
Voorzieningen
Voorzieningen
TV kabel
Energie en isolatie
Energieklasse
F
Isolatievormen
Grotendeels dubbelglas
Warm water
CV ketel
Verwarming
CV ketel
Buitenruimte
Type buitenruimte(s)
Achtertuin
Hoofdtuin
Achtertuin
Hoofdtuin opp.
44 m2
Hoofdtuin positie
Zuid
Bergruimte
Soort
Vrijstaand hout
Ligging
Parkeer faciliteiten
Parkeervergunningen
Ligging
In centrum, Vrij uitzicht, Beschutte ligging

Ligging en beschikbare woningen in de buurt

Wat klanten zeggen over Maarten: