Spring naar content
typeEengezinswoning
woonoppervlakte61 m2
slaapkamers3
buitenruimteAchtertuin, Voortuin
bouwjaar1933
energielabelC

Brochure

Over de woning

Helaas is het momenteel niet meer mogelijk om voor deze woning een bezichtiging in te plannen, we kunnen je wel op de reservelijst plaatsen!

Als geel je lievelingskleur is, val je hier letterlijk met je neus in de boter. Muren, gordijnen… De zon lijkt binnen net zo hard te schijnen als buiten.

Deze knusse eengezinswoning aan de Boshamerstraat 28 staat in een súpergezellige buurt waar iedereen elkaar goed kent en altijd even een praatje maakt. Verkopers kwamen hier ooit voor “even” wonen… Maar 5 jaar werden er 9. Met een klein beetje pijn in het hart gaan ze nu terug met hun (inmiddels uitgebreide) gezin naar de andere kant van het land.

We starten met de achtertuin! Deze is dus verrassend ruim en lekker zonnig. Zet het keukenraam open en klets tijdens het koken gezellig met je gezin of visite buiten. Speciaal voor de gelegenheid wat extra gekleurde bloemetjes neergezet, hier hoef je voorlopig niet meer weg.

Binnen valt vooral op hoe slim en energiezuinig alles is. Met energielabel C (bijna B!) en een nieuwe airco die ook verwarmt, bleef de CV afgelopen winter gewoon uit. Lage stookkosten? Check.

Boven vind je 3 slaapkamers en een enorme vliering over de hele lengte én breedte van het huis. Ruimte genoeg voor al je spullen. En de gordijnen blijven hangen, dus… Je kunt er zó in!

Je vindt deze leukerd in Krispijn, een wijk waar je het beste van twee werelden hebt. Je fietst in een paar minuten naar het centrum van Dordrecht voor je favoriete winkels, terrasjes en evenementen. Liever richting Zwijndrecht? Via de Dordtse (oké… Zwijndrechtse) brug ben je zo op de plaats van bestemming. Uitvalswegen & station dichtbij? Ook dat kan afgevinkt worden.

Kortom: een huis op een centrale locatie waar gezelligheid, slimme oplossingen en energiezuinig wonen samenkomen.

Kom je ‘m bekijken?

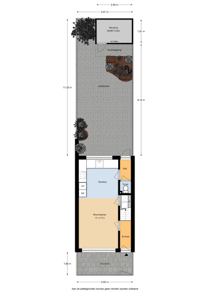
Indeling:
Hal met meterkast (9 groepen, 3 aardlekschakelaar, slimme meters).

Ruime doorzonwoonkamer met open keuken aan achterzijde. De woonkamer beschikt over sfeervolle glas-in-lood ramen aan voorzijde, airconditioning (2024) en een handige trapkast met aansluiting wasmachine. De ruimte is voorzien van een laminaatvloer en spagtelputz wand- en plafondafwerking.

De keuken in hoekopstelling is in 2016 vernieuwd en beschikt over een 4 pit inductiekookplaat, afzuigkap, combi-oven, koelkast, vriezer, vaatwasser, elektrische boiler en veel bergruimte, onder andere is een apothekerskast en Le Mans kast. De keuken is eveneens voorzien van een Waterpeak zuiversysteem (2023), waarmee je drinkwater gezuiverd wordt! Vanuit de keuken kijk je middels de grote raampartij leuk weg over de achtertuin.

Vanuit de keuken is de hal begaanbaar, met deur naar de achtertuin. Hier bevindt zich tevens de toiletruimte (half betegeld).

De achtertuin is gelegen op het noordoosten en is sfeervol aangelegd met nette bestrating en mooie planten zoals een Blauweregen. Achterin bevindt zich een achterom, ruimte voor de kliko's en een houten berging, voorzien van elektra.

1e verdieping:
Overloop met toegang tot alle vertrekken en vlizotrap naar de vliering.

Ruime slaapkamer aan achterzijde, voorzien van een vaste schuifkastenwand. Deze kamer is afgewerkt met een nette laminaatvloer en behang.

Slaapkamer aan voorzijde, met laminaatvloer en behang wandafwerking.

Slaapkamer aan voorzijde, thans in gebruik als hobbykamer, eveneens voorzien van laminaatvloer.

Inpandige badkamer (volledig betegeld) met douchecabine met thermostaatkraan (vervangen in 2024), waskom op meubel (kraan vernieuwd in 2025), kolomkast, designradiator, inbouwspots en mechanische ventilatie (in 2025 vernieuwd).

Op de vliering bevindt zich de opstelplaats CV-ketel (Remeha Avanta, 2009), omvormer zonnepanelen, een dakraam en praktische bergruimte.

Algemeen:
- Eigen grond, 93 m².
- Gezellige tussenwoning in Krispijn met ruime woonkamer, open keuken, 3 slaapkamers en een fijne achtertuin!
- Energielabel C, volledig voorzien van dubbel glas, vloerisolatie en dakisolatie.
- De glas-in-lood ramen zijn in 2021 in dubbel glas gezet.
- De woning beschikt over 8 zonnepanelen (2023 geïnstalleerd), waarvan 2 panelen met micro-optimizer. De airconditioning in woonkamer is eind 2024 geïnstalleerd en heeft flinke capaciteit.
- Meterkast is in 2018 vernieuwd.
- Schilderwerk voorzijde is in 2025 uitgevoerd.
- Schutting in achtertuin in 2025 vernieuwd.
- Fundering op staal.
- Oplevering begin november 2025.

De informatie in deze brochure is met de nodige zorg vastgesteld. Aan deze gegevens kunnen echter geen rechten worden ontleend, alle aansprakelijkheid van Maarten Makelaardij is derhalve uitgesloten. Voorts zijn wijzigingen voorbehouden. Alle opgegeven maten en oppervlakten zijn indicatief.

Kenmerken

Financieel
Vraagprijs
€ 275.000,-
Status
Verkocht
Bouw
Soort woonhuis
Eengezinswoning
Soort bouw
Bestaande bouw
Bouwjaar
1933
Dak type
Zadeldak
Oppervlakten en inhoud
Wonen
61 m2
Overige inpandige ruimte
0 m2
Gebouwgebonden buitenruimte
0 m2
Perceel
93 m2
Inhoud
233 m3
Indeling
Aantal kamers
4
Aantal badkamers
1
Aantal slaapkamers
3
Voorzieningen
Voorzieningen
Mechanische ventilatie, TV kabel, Buitenzonwering, Airconditioning, Dakraam, Zonnepanelen
Energie en isolatie
Energieklasse
C
Isolatievormen
Dakisolatie, Vloerisolatie, Dubbelglas
Warm water
CV ketel
Verwarming
CV ketel
CV ketel type
Remeha Avanta
Buitenruimte
Type buitenruimte(s)
Achtertuin, Voortuin
Hoofdtuin
Achtertuin
Hoofdtuin opp.
51 m2
Hoofdtuin positie
Noordoost
Bergruimte
Soort
Vrijstaand hout
Ligging
Parkeer faciliteiten
Openbaar parkeren
Ligging
Aan rustige weg, In woonwijk

Plattegronden

Ligging en beschikbare woningen in de buurt

Wat klanten zeggen over Maarten: