Spring naar content
typeBovenwoning
woonoppervlakte97 m2
slaapkamers3
buitenruimteZonneterras
bouwjaar1977
energielabelC

Brochure

Over de woning

Droom je van een paleis, maar bouw je ’t het liefst zelf?

Dan moet je nú even opletten… want Vredenburg 78 in de wijk Sterrenburg is precies zo’n woning waar je al je ideeën en Pinterest-borden eindelijk kunt laten uitkomen. Het is een echte kluswoning! Ja, er moet veel gebeuren, maar je krijgt er ook héél veel ruimte, licht én vrijheid voor terug.

We hebben het hier over een maisonnette van 3 verdiepingen, met een indrukwekkende grote pui die zorgt voor een zee van daglicht. Er zijn 3 ruime slaapkamers, dus je kunt makkelijk een werkkamer, logeerkamer of kinderkamer creëren (of allemaal). En dan heb je ook nog 2 eigen balkons én 2 gezamenlijke dakterrassen; genoeg plek voor zon, planten, BBQ’s of gewoon: rust.

Vanaf je balkon kijk je zó uit op de Elzen, en de Biesbosch ligt praktisch in je achtertuin. Even wat boodschappen doen? De Jumbo is om de hoek en ook winkelcentrum Sterrenburg fiets je zo aan

Je woont hier in een groene, rustige wijk, in een complex dat steeds meer jonge bewoners aantrekt. En extra fijn: je hebt ook nog eens een eigen parkeerplek en berging in de ondergelegen parkeergarage.

Dus klussers, creatievelingen, interieurtweakers en verbouwfanaten: deze is voor jullie. Hier kun je élke ruimte aanpakken en precies zó maken als jij het wilt.
Ben je er klaar voor om je eigen stempel te drukken? Kom kijken en laat je fantasie alvast z’n werk doen.

Indeling:

Eerste verdieping:

Entree in de hal op de eerste verdieping van het gebouw. In de hal is ruimte voor de garderobe en een trapopgang naar de verdieping. Er is een lift in het gebouw aanwezig.

Tweede verdieping:

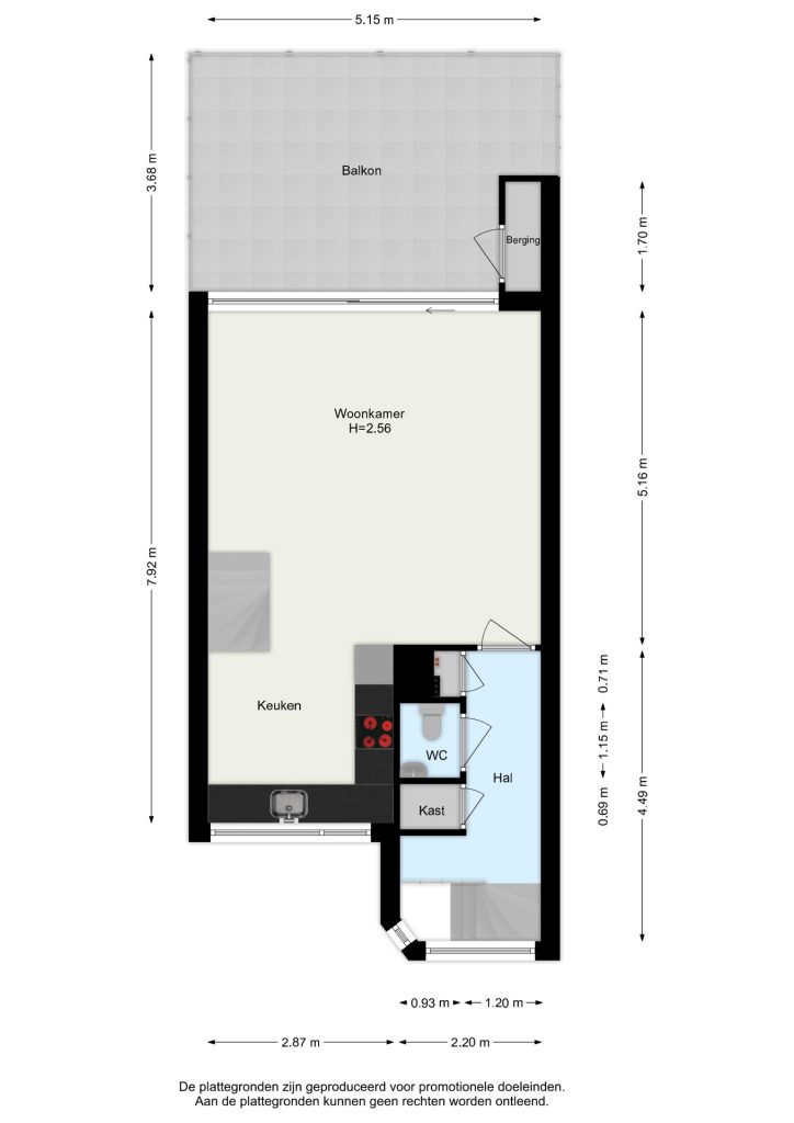
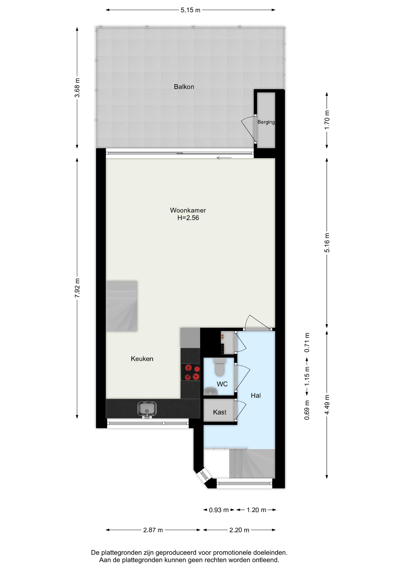
Ruime hal met intercom, vaste bergkast met opstelplaats van de CV ketel (bouwjaar waarschijnlijk 2011), meterkast en toilet, daarna volgt de toegang tot de woonkamer.

Meterkast met 4 groepen, aardlekschakelaar, dag- en nachtstroom, gasmeter en glasvezel kabel.

Toilet, type duoblok met fonteintje, gedeeltelijk betegelde wanden en de opstelling van de watermeter.

Heerlijke ruime en pandbrede woonkamer met vaste trap naar de slaapverdieping. Via een grote aluminium schuifpui toegang tot het ruime balkon met prachtig uitzicht over de Elzen/ Biesbosch.

Het balkon is voorzien van een balkonkast en een (verouderd) zonnescherm.

Aan de galerij zijde is de keuken gesitueerd, op dit moment een (sterk verouderde) hoekopstelling met dubbele spoelbak, oven, afzuigkap, 4 pits gaskookplaat en koelkast met vriezer. De keuken is aan vervanging toe!

Derde verdieping:

Overloop met toegang tot alle vertrekken.

Slaapkamer 1 aan de achterzijde met deur naar het balkon, laminaat vloer en granol wanden.

Slaapkamer 2, ook gelegen aan de achterzijde met deur naar het balkon.

Slaapkamer 3 gelegen aan de voorzijde met deur naar aparte wasruimte, ook hier laminaat en behang wanden.

De wasruimte is voorzien van een dakkoepel voor extra lichtinval.

Inpandige badkamer met wastafel, bad en toilet.

Algemeen:
De woning beschikt over een eigen parkeerplaats en een eigen berging.
Actieve Vereniging van Eigenaren, bijdrage € 229,93per maand.
De woning is deels voorzien van dubbel glas en deels enkel glas.

De vragenlijst en lijst van zaken zijn niet ingevuld, de verkopers van deze woning hebben nooit zelf in de woning gewoond, woning wordt opgeleverd zoals deze bezichtigd wordt.
Niet bewoningsclausule van toepassing.
As is where is clausule van toepassing.
Oplevering in overleg, snel is wenselijk.

De informatie in deze brochure is met de nodige zorg vastgesteld. Aan deze gegevens kunnen echter geen rechten worden ontleend, alle aansprakelijkheid van Maarten Makelaardij is derhalve uitgesloten. Voorts zijn wijzigingen voorbehouden. Alle opgegeven maten en oppervlakten zijn indicatief.

Kenmerken

Financieel
Vraagprijs
€ 289.000,-
Status
Verkocht
Bouw
Soort bouw
Bestaande bouw
Bouwjaar
1977
Dak type
Plat dak
Oppervlakten en inhoud
Wonen
97 m2
Overige inpandige ruimte
1 m2
Gebouwgebonden buitenruimte
30 m2
Inhoud
289 m3
Indeling
Aantal kamers
5
Aantal badkamers
1
Aantal slaapkamers
3
Aantal woonlagen
3
Voorzieningen
Voorzieningen
TV kabel, Buitenzonwering
Energie en isolatie
Energieklasse
C
Isolatievormen
Gedeeltelijk dubbelglas
Warm water
CV ketel
Verwarming
CV ketel
Buitenruimte
Type buitenruimte(s)
Zonneterras
Hoofdtuin
Zonneterras
Hoofdtuin opp.
30 m2
Hoofdtuin positie
Oost
Bergruimte
Soort
Inpandig
Voorzieningen
Voorzien van elektra
Ligging
Parkeer faciliteiten
Openbaar parkeren, Parkeergarage
Ligging
In woonwijk, Vrij uitzicht

Plattegronden

Ligging en beschikbare woningen in de buurt

Wat klanten zeggen over Maarten: