- vraagprijs
- € 285.000,- k.k.
Brochure
Over de woning
Helaas is het momenteel niet meer mogelijk om voor deze woning een bezichtiging in te plannen, we kunnen je wel op de reservelijst plaatsen!
Pssst… Op zoek naar een droomplek in Dordrecht? Dit huis heeft het allemaal!
Welkom aan de Nessestraat 54, een heerlijke eengezinswoning in de populaire wijk Land van Valk. Hier woon je super centraal; op loopafstand van het historische centrum én met het station om de hoek. Rotterdam of Breda? Je bent er zó!
Onze ervaring is; eenmaal in deze wijk en je wil er nooit meer weg!
Binnen wacht een fijne, lichte basis voor jouw droomwoning: drie ruime slaapkamers, een nette badkamer en zelfs een vliering voor extra opbergruimte! De knusse tuin is perfect voor lange zomeravonden met een borrel of een rustige ochtend met je eerste kop koffie.
En oh ja… Parkeren? Gewoon gratis en recht voor de deur!
Zie jij jezelf hier al wonen? Kom snel kijken, voor je het weet is deze topper weg!
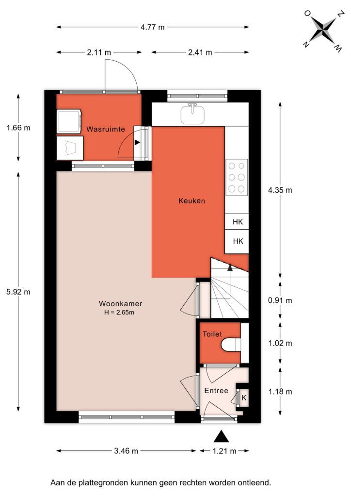
Indeling:
Entree in de hal met toilet, meterkast en toegang tot de woonkamer.
Toilet, vrijhangend met geheel betegelde wanden.
Meterkast met 4 groepen, 2x aardlekschakelaar, hoofdschakelaar, dag- en nachtstroom, gasmeter en glasvezel kabel.
Ruime en lichte woonkamer met aan de achterzijde de open keuken.
De keuken is geplaatst in hoekopstelling met 1,5 spoelbak, 5 pits gaskookplaat, oven, vaatwasser, rvs schouw, koelkast. De keuken is toe aan een update, de ruimte is echter wel super EN er is een bijkeuken aanwezig met daarin de was aansluiting, bergruimte en een deur naar de achtertuin.
De achtertuin is voorzien van een achterom en een eigen houten berging met verwarming en elektra.
Eerste verdieping:
Overloop met toegang 2 praktische vaste kasten en toegang tot alle vertrekken en een luik met losse trap naar de bergzolder.
Slaapkamer 1 gelegen aan de voorzijde met vaste schuifkast.
Slaapkamer 2, gelegen aan de achterzijde.
Slaapkamer 3, gelegen aan de voorzijde.
Alle kamers zijn voorzien van laminaat en stuc wanden.
Badkamer met bad, thermostaatkraan, wastafel en meubel, geheel betegelde wanden, elektrische ventilatie (werkt nu niet).
Bergzolder:
Fijne grote bergzolder met opstelling van de CV ketel, merk Nefit, uit 2018.
Algemeen:
We hebben de woning alvast bouwkundig laten keuren door Perfectkeur, de keuring zit in het MOVE dossier zodra je een bezichtiging plant is die inzichtelijk, hoe fijn!
Er is een funderingsonderzoek aanwezig, handhavingstermijn 25 jaar, deze is in te zien in MOVE.
De woning is deels voorzien van dubbel glas, merendeel houten kozijnen, op de slaapkamer een kunststof kozijn.
Woning is voorzien van houten vloeren.
"As is where is" clausule van toepassing.
Er is geen vragenlijst deel B aanwezig (er is echter wel een recent uitgevoerde bouwkeuring aanwezig).
Oplevering in overleg, een snelle oplevering is wenselijk.
De informatie in deze brochure is met de nodige zorg vastgesteld. Aan deze gegevens kunnen echter geen rechten worden ontleend, alle aansprakelijkheid van Maarten Makelaardij is derhalve uitgesloten. Voorts zijn wijzigingen voorbehouden. Alle opgegeven maten en oppervlakten zijn indicatief.