Spring naar content
typeEengezinswoning
woonoppervlakte115 m2
slaapkamers4
buitenruimteAchtertuin, Voortuin
bouwjaar1968
energielabelC

Brochure

Over de woning

Deze keurig nette tussenwoning is gelegen in de wijk Staart, Merwedepolder-West. De wijk kenmerkt zich door zijn groene omgeving, je woont op loopafstand van het Wantij en de Merwelanden/ Biesbosch. Heerlijk voor degene die houden van vissen, hardlopen, hondenbezitters, natuurliefhebbers maar uiteraard ook met de kinderen. Suppen en bevers spotten, mini-golf en bowlen, er is van alles te doen om de hoek! Droom je van een eigen bootje? De jachthaven is ook aan te lopen, veel mooier gaat het niet worden, zo veel groen en toch rij je hier vandaan zo de stad in.

Over de omgeving hoeven we ons dus geen zorgen te maken, gelukkig om de woning ook niet! Deze woning is in de afgelopen jaren door de huidige bewoners met veel liefde onderhouden. Er zijn deels kunststof kozijnen met dubbel glas aanwezig, in 2019 is er een grote dakkapel geplaatst, er zijn zonnepanelen aanwezig, het toilet is in 2020 aangepakt en verder is het huis netjes bijgehouden.

Zoek jij een goede mix tussen groen en ruimte maar toch centraal? Dan is dit hem hoor, kom kijken is ons advies.

Indeling:

Entree in de hal met trapopgang naar de verdieping, meterkast, toilet en bergkast met opstelling groepen vloerverwarming.

Meterkast met 6 groepen, dubbele groep, dag-en nachtstroom, gasmeter en omvormer van de zonnepanelen.

Toilet, in 2020 vervangen, vrijhangend en voorzien van een fonteintje.

Kleine trapkast achter het toilet.

Heerlijk ruime woonkamer met sfeervolle gashaard en grote schuifpui naar de tuin. Aan de achterzijde is de open keuken gesitueerd, alle wanden zijn afgewerkt met granol, lichte tegelvloer met vloerverwarming.

Keuken in hoekopstelling, geplaatst eind 2009, granieten werkblad, in de keuken is een oven aanwezig (Siemens, 2018 vervangen), vaatwasser (2020 vervangen), 1,5 spoelbak, rvs schouw, koelkast en deels betegelde achterwand.

Heerlijk ruime achtertuin met Chinees hardstenen tegels, achterom, onderhoudsvriendelijke schutting met betonpalen, stenen berging en achterom.

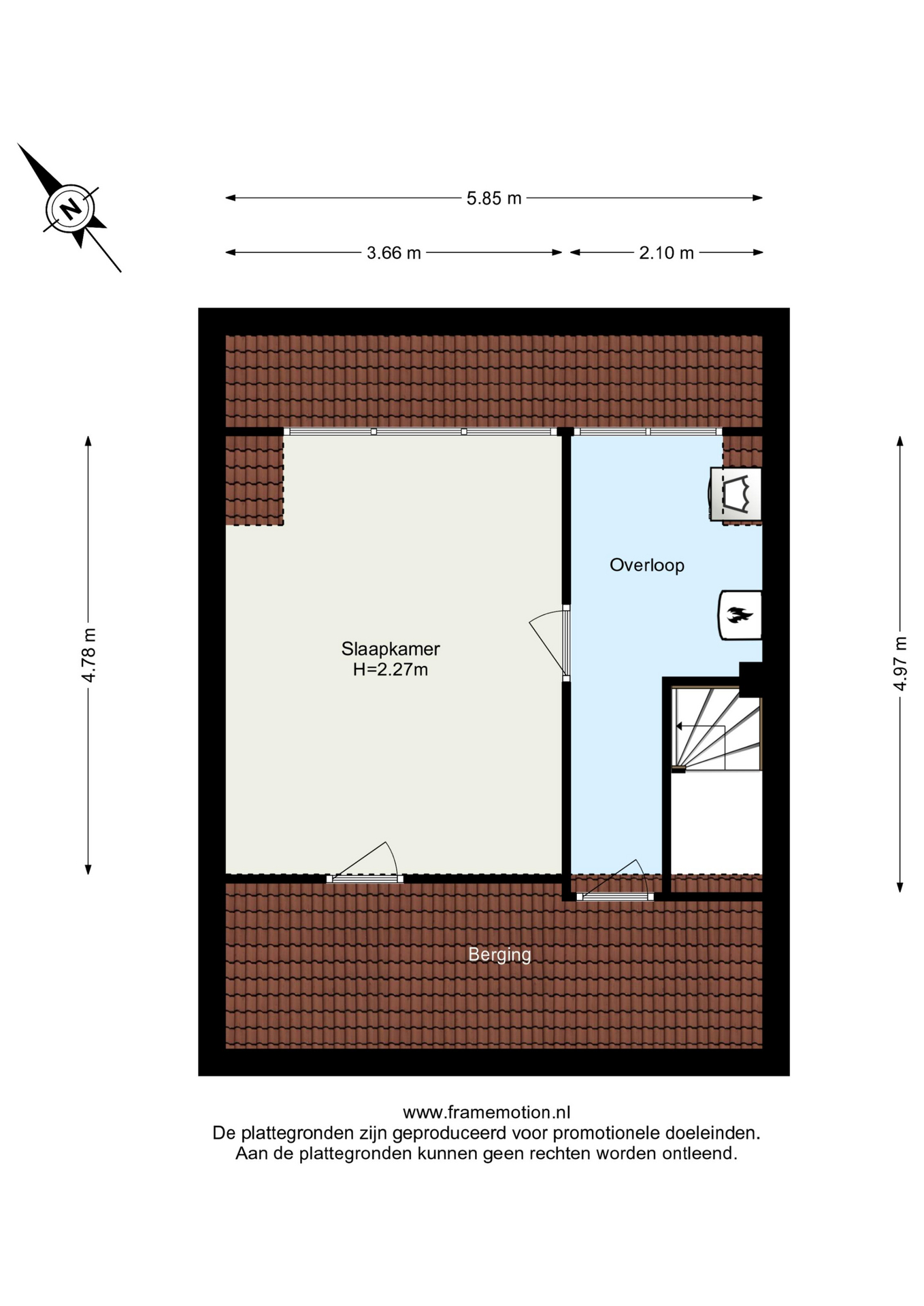
Eerste verdieping:

Overloop met toegang tot alle vertrekken, handige bergkast en trap naar de tweede verdieping.

Badkamer met inloopdouche, thermostaat kraan en regendouche, wastafel met meubel, elektrische vloerverwarming, designradiator en geheel betegelde wanden, elektrische ventilatie.

Slaapkamer1 aan de voorzijde met laminaat vloer en behang wanden.

Slaapkamer 2 gelegen aan de achterzijde, eveneens met laminaat vloer en behang wanden.

Slaapkamer 3 gelegen aan de achterzijde met gelijke afwerking als 1 en 2.

Zolder
Overloop met opstelling van de CV ketel merk Remeha Avanta Ace 28, was aansluiting, bergruimte onder schuin dak. De ruimte is aan de achterzijde vergroot door de dakkapel met apart te bedienen rolluik speciaal voor de overloop.

Slaapkamer nummer 4 ligt op deze ruime zolder, de dakkapel is in 2019 nieuw geplaatst volledig in kunststof, dubbel glas en voorzien van een hor en elektrisch rolluik, bergruimte onder schuin dak aan 2 kanten.

Algemeen:
Zonnepanelen 12 stuks geplaatst in december van 2019.
Gehele achter pui 2013 vervangen.
Toilet 2020 vervangen.
Dakkapel 2019 nieuw geplaatst met hor en rolluik.
Keuken 2009 nieuw geplaatst, oven in 2018 vervangen en vaatwasser in 2020.
Deels kunststof kozijnen
Overal dubbel glas.
Oplevering 3 maanden na oplevering nieuwbouw woning verkopers doch uiterlijk 1 oktober 2023.

Kenmerken

Financieel
Vraagprijs
€ 295.000,-
Status
Verkocht
Bouw
Soort woonhuis
Eengezinswoning
Soort bouw
Bestaande bouw
Bouwjaar
1968
Dak type
Zadeldak
Oppervlakten en inhoud
Wonen
115 m2
Overige inpandige ruimte
0 m2
Gebouwgebonden buitenruimte
2 m2
Perceel
146 m2
Inhoud
352 m3
Indeling
Aantal kamers
5
Aantal badkamers
1
Aantal slaapkamers
4
Voorzieningen
Voorzieningen
Rolluiken, TV kabel, Rookkanaal, Schuifpui, Zonnepanelen, Balansventilatie
Energie en isolatie
Energieklasse
C
Isolatievormen
Dubbelglas
Warm water
CV ketel, Vloerverwarming gedeeltelijk, Gashaard
Verwarming
CV ketel
CV ketel type
Remeha Avanta Ace 28
Buitenruimte
Type buitenruimte(s)
Achtertuin, Voortuin
Hoofdtuin
Achtertuin
Hoofdtuin opp.
55 m2
Hoofdtuin positie
Noordoost
Bergruimte
Soort
Vrijstaand steen
Ligging
Parkeer faciliteiten
Openbaar parkeren

Plattegronden

Ligging en beschikbare woningen in de buurt

Wat klanten zeggen over Maarten: