Spring naar content
typeEengezinswoning
woonoppervlakte86 m2
slaapkamers3
buitenruimteAchtertuin, Voortuin
bouwjaar1980
energielabelC

Brochure

Over de woning

Blauw huis, groen uitzicht!

Je rijdt Sterrenburg in, volgt het rode pad (want echt, anders ben je de weg kwijt) en daar staat ‘ie: Cannenburg 105. Met die blauwe gevel die meteen in het oog springt en je nieuwsgierig maakt naar wat er achter die voordeur schuilt.

Binnen word je begroet door een lichte en fijne indeling, met drie slaapkamers en een plafond op de eerste verdieping waar je bijna vanzelf naar omhoog kijkt. De woonkamer is warm en uitnodigend, en vanuit hier loop je zó de fijne achtertuin in.

En wat voor tuin… Vol groen, rustig, en helemaal achterin een gezamenlijke picknicktafel waar je met de buren samen koffie drinkt of in de zomer de barbecue aansteekt. Het voelt alsof je in een klein parkje zit. En in de winter, terwijl het slootje achter je huis bevriest, kun je zelf de schaatsen onderbinden of met een warme mok chocolademelk aan de kant genieten van het schaatsspektakel dat voorbij trekt. Hoe uniek is dat?

Maar misschien wel het mooiste? Het uitzicht aan de achterkant. Daar kijk je recht op de dijk, waar de dag voorbij trekt: wandelaars die rustig slenteren, fietsers die voorbij zoeven, honden die vrolijk achter een stok aan rennen. Het ultieme ‘mensen kijken’-plekje, maar dan in een oase van rust.

De buurt is zó fijn dat de verkoper hier bijna 14 jaar met plezier heeft gewoond. Nu lonkt het avontuur en gaat hij de wereld over. Misschien laat hij zelfs een deel van de meubels achter, zodat jij er zó in kunt trekken.

Rust, ruimte, groen én natuur, allemaal in een wijk waar je je niet alleen op wandelafstand van de Nieuwe Biesbosch bevindt, maar ook nog eens zo in de stad bent. Dát is wonen in Sterrenburg.

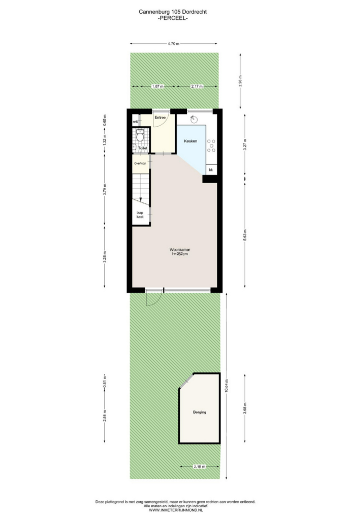
Indeling:

Entree in de hal met meterkast. De meterkast is voorzien van 8 groepen, dubbele groep, 2x aardlekschakelaar, dag- en nachtstroom, gasmeter en glasvezel kabel.

Heerlijk ruime kamer met aan de voorzijde de open keuken en aan de achterzijde zicht op de tuin en het groen achter de tuin. De tuin is bereikbaar middels een deur in de woonkamer. In de woonkamer is een grote trapkast aanwezig en een deur naar de tussenhal met trapopgang naar de eerste verdieping en een toegang tot het toilet.

Keuken aan de straatzijde, deze is geplaatst in een hoekopstelling en voorzien van een 5 pits gaskookplaat, rvs schouwkap, koelkast, vriezer, vaatwasser, spoelbak, boiler en gedeeltelijk betegelde wanden. In de keuken is ook een zogenaamde perilex schakelaar aanwezig dus er kan ook elektrisch gekookt worden voor de liefhebber!

Tussenhal met trapopgang en toilet met fonteintje, deels betegelde wanden.

De tuin is wel écht een enorm pluspunt aan deze woning, heerlijk rustig, privé EN uitkijkend op groen. Hoe leuk is dat! Het contact met de buren is super goed waardoor de tuinen op dit moment deels open zijn.
Er is een achterom aanwezig en een eigen stenen berging met elektra.

Eerste verdieping:

Overloop met toegang tot alle vertrekken en luik naar de bergvliering.

Vaste kast met opstelling van de CV ketel (merk Bosch, bouwjaar 2007) en mechanische ventilatie.

Slaapkamer 1 gelegen aan de Voorzijde met structuur wandafwerking en vloerbedekking.

Slaapkamer 2, gelegen aan de achterzijde met spachtelputz wandafwerking en vloerbedekking.

Slaapkamer 3, ook aan de achterzijde en ook spachtelputz wandafwerking en in dit geval een laminaat vloer.

Inpandige badkamer met was aansluiting, wastafel en meubel, bad met thermostaatkraan, verlaagd plafond met spots en geheel betegelde wanden.

Bergzolder:

Vanaf de overloop is via een losse trap de bergzolder bereikbaar, ideaal voor de koffers, kampeerspullen en de kerstdecoratie.

Algemeen:
Geheel houten kozijnen en grotendeels dubbel glas (op de voordeur na).
Begane grondvloer en eerste verdieping beton, de bergzolder heeft een houten vloer.
Het kruipluik en de vensterbanken op de verdieping zijn van asbesthoudend materiaal (kan blijven zitten, meer ter kennisname).
Het riet in de sloot achter de woning wordt circa 1 keer per jaar gemaaid.
Diverse buren huren het stukje grond tussen de berging en het water van de gemeente, kosten waarschijnlijk rond de 150 euro per jaar (voor exacte informatie en mogelijkheden verwijzen we je door naar de gemeente Dordrecht).
GEEN Kwaaitaal betonvloer.

Oplevering in overleg, voorkeur verkoper vanaf 9 januari 2026.

De informatie in deze brochure is met de nodige zorg vastgesteld. Aan deze gegevens kunnen echter geen rechten worden ontleend, alle aansprakelijkheid van Maarten Makelaardij is derhalve uitgesloten. Voorts zijn wijzigingen voorbehouden. Alle opgegeven maten en oppervlakten zijn indicatief.

Kenmerken

Financieel
Vraagprijs
€ 350.000,-
Status
Verkocht
Bouw
Soort woonhuis
Eengezinswoning
Soort bouw
Bestaande bouw
Bouwjaar
1980
Dak type
Zadeldak
Oppervlakten en inhoud
Wonen
86 m2
Overige inpandige ruimte
0 m2
Gebouwgebonden buitenruimte
0 m2
Perceel
108 m2
Inhoud
265 m3
Indeling
Aantal kamers
4
Aantal badkamers
1
Aantal slaapkamers
3
Voorzieningen
Voorzieningen
Mechanische ventilatie, TV kabel, Glasvezel kabel
Energie en isolatie
Energieklasse
C
Isolatievormen
Grotendeels dubbelglas
Warm water
CV ketel
Verwarming
CV ketel
CV ketel type
Bosch
Buitenruimte
Type buitenruimte(s)
Achtertuin, Voortuin
Hoofdtuin
Achtertuin
Hoofdtuin opp.
47 m2
Hoofdtuin positie
Oost
Bergruimte
Soort
Vrijstaand steen
Voorzieningen
Voorzien van elektra
Ligging
Parkeer faciliteiten
Openbaar parkeren
Ligging
Aan water, In woonwijk, Vrij uitzicht, Beschutte ligging

Plattegronden

Ligging en beschikbare woningen in de buurt

Wat klanten zeggen over Maarten: