Spring naar content
typeBovenwoning
woonoppervlakte74 m2
slaapkamers2
buitenruimteGeen tuin
bouwjaar1997
energielabelA

Brochure

Over de woning

Het Sint Jacobsplein is gelegen in het hart van het Dordtse Centrum, een heerlijk rustige locatie gelegen direct achter de bruisende Voorstraat. Aan het plein staan mooie karakteristieke woningen (en bijvoorbeeld ook het Kerkhuisje!) maar ook moderne appartementencomplexen. Voor ieder wat wils dus!

Wij mogen jullie een appartement aanbieden met 2 slaapkamers en een zonnig balkon met top uitzicht. Het appartement is door zijn ruime hallen, lift in het gebouw en gelijkvloerse karakter geschikt voor jong én oud!

Indien gewenst is er een losse parkeerplaats bij te kopen, hoe luxe is dat midden in de binnenstad.

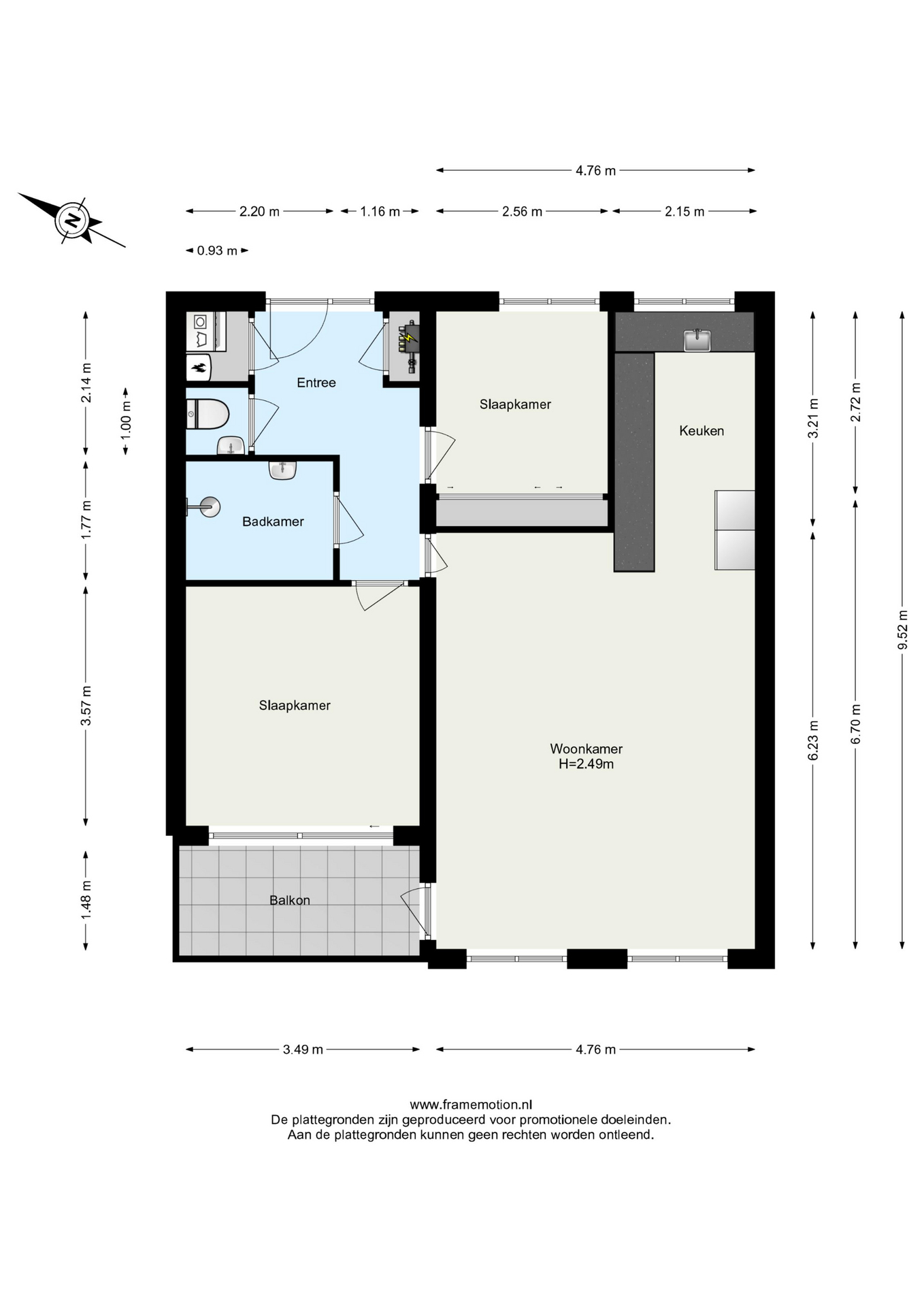
Indeling:

Entree in de afgesloten hal met brievenbussen en bellentableau, lift en trappen naar de verdiepingen.

Derde verdieping:

Entree in de hal met meterkast en toegang tot de vertrekken. De keurige afwerking valt gelijk in de hal al op en geeft duidelijk aan dat het huis met veel liefde is bijgehouden.

Waskast met mechanische ventilatie op sensor, Intergas cv ketel 2018.

Toilet met fonteintje, geheel betegeld.

Heerlijk lichte woonkamer met deur naar het balkon en open keuken aan de voorzijde.

Keuken in hoekopstelling met lades, hoekcaroussel, rvs schouw, combi oven, koelkast met vriezer, inductie kookplaat, spoelbak en composiet werkblad.

Slaapkamer 1 aan de achterzijde met schuifpui naar het balkon en schuifkast.

Slaapkamer 2 aan de voorzijde met 3 deurs vaste schuifkastenwand (2 jaar geleden geplaatst).

Inpandige badkamer met wastafel en meubel, inloopdouche, geheel betegelde wanden, designradiator en verlaagd plafond met spots.

Het balkon is voorzien van een elektrisch rolluik, daarnaast zijn er screens voor de woonkamer aanwezig (te bevestigen met zuignappen). Het balkon is goed ruim en gelegen op het zuidwesten dus lekker de middag en avond zon!

Algemeen:
Stuc plafond in woonkamer.
Deuren vervangen in gehele woning.
Badkamer, toilet & keuken uit 2018.
Intercom systeem vervangen 2022.
Vlonderdelen op de galerij vervangen 2022.
Bijdrage Vereniging van Eigenaren Kosten Vve huis €143,09
Bijkopen van een parkeerplaats in de parkeergarage is mogelijk, prijs parkeerplaats € 40.000,- k.k.
Parkeervergunning aanvragen mogelijk.
Bijdrage Vereniging van eigenaren parkeerplaats € 13,74 per maand.
Oplevering in overleg, bij voorkeur 1 oktober.

Kenmerken

Financieel
Vraagprijs
€ 297.500,-
Status
Verkocht
Bouw
Soort bouw
Bestaande bouw
Bouwjaar
1997
Dak type
Plat dak
Oppervlakten en inhoud
Wonen
74 m2
Overige inpandige ruimte
0 m2
Gebouwgebonden buitenruimte
5 m2
Inhoud
226 m3
Indeling
Aantal kamers
3
Aantal badkamers
1
Aantal slaapkamers
2
Aantal woonlagen
1
Voorzieningen
Voorzieningen
Mechanische ventilatie, Rolluiken, TV kabel, Lift
Energie en isolatie
Energieklasse
A
Isolatievormen
Dakisolatie, Muurisolatie, Vloerisolatie, Dubbelglas
Warm water
CV ketel
Verwarming
CV ketel
CV ketel type
Intergas
Buitenruimte
Type buitenruimte(s)
Geen tuin
Bergruimte
Soort
Inpandig
Ligging
Parkeer faciliteiten
Parkeervergunningen
Ligging
Aan rustige weg, In centrum, Vrij uitzicht

Plattegronden

Ligging en beschikbare woningen in de buurt

Wat klanten zeggen over Maarten: