Spring naar content
typeEengezinswoning
woonoppervlakte66 m2
slaapkamers2
buitenruimteAchtertuin, Voortuin
bouwjaar1933
energielabelC

Brochure

Over de woning

Helaas is het momenteel niet meer mogelijk om voor deze woning een bezichtiging in te plannen, we kunnen je wel op de reservelijst plaatsen!

Welkom in de Boshamerstraat in het gezellige Krispijn. Deze leuke jaren '30 woning is maar liefst 35(!) jaar bewoond door de huidige eigenaren, zij hebben in deze jaren de woning uitstekend onderhouden en gemoderniseerd.
Zo is de gehele woning voorzien van kunststof kozijnen, is er dak- en vloerisolatie aangebracht en is in 2021 de badkamer nog vernieuwd. Al met al maakt het deze woning een ideale starterswoning waar je de komende jaren zeer goed kan vertoeven! Tevens is er de mogelijkheid om een nokverhoging te plaatsen, waarmee een extra verdieping kan worden gecreëerd, de woning kan dus ook meegroeien met zijn bewoners.

De locatie is zeker centraal te noemen, zowel ten opzichte van het centrum van Dordrecht en het NS-station als de snelweg. Daarnaast vind je op loopafstand diverse supermarkten, winkels en scholen.

Dus..., gaan jullie het record van 35 jaar verbreken? Wij denken dat je hier nooit meer weg wilt! :)

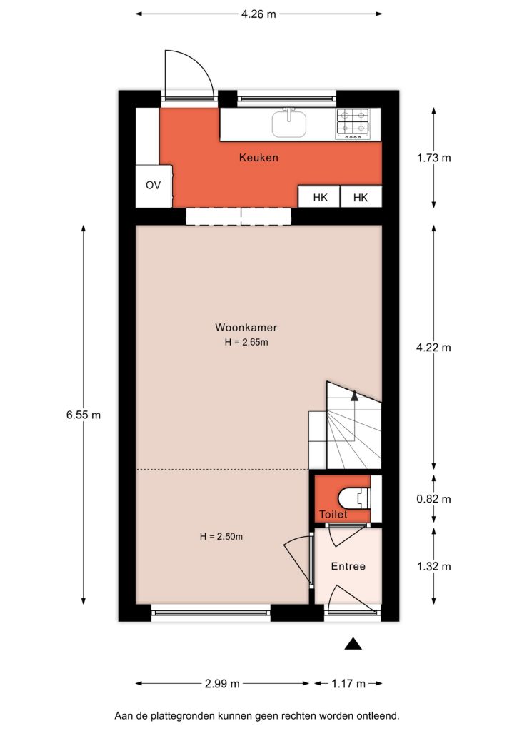
Indeling:
Hal met meterkast (5 groepen, aardlekschakelaar, slimme meters), toilet (voorzien van PVC tegels) en toegang tot de woonkamer.

Fijne woonkamer met keuken in de aanbouw aan achterzijde. De woonkamer is voorzien van een nette PVC vloer, spagtelputz en behang wandafwerking, gladgestuct plafond en een spiltrap naar de 1e verdieping.

Keuken in dubbele wandopsteling met uitzicht op de achtertuin. De keuken is voorzien van een 4 pit gaskookplaat (2017) met afzuigkap, combi-magnetron (2020), koelkast (2021) en veel bergruimte.
Daarnaast bevindt zich hier de opstelplaats van de CV-ketel (Remeha, 2014), keurig weggewerkt in de hoek van de keuken.

Zonnige achtertuin gelegen op het zuidwesten, keurig aangelegd en met zonnescherm en achterom. De berging is voorzien van elektra en aansluiting voor de wasmachine. Aan de buitenzijde is de berging deels afgewerkt met kunststof platen, het dak is in 2023 vervangen.

1e verdieping:
Overloop met toegang tot alle vertrekken.

Ruime slaapkamer aan voorzijde, deze kamer beschikt over airconditioning (2020), elektrische rolluiken (2022), behang wandafwerking, een laminaatvloer en vaste kast.

Slaapkamer aan achterzijde, eveneens voorzien van een laminaatvloer en behang wandafwerking.

De badkamer (inpandig) is in 2021 vernieuwd, deze beschikt over een wastafelmeubel met waskom en spiegelkast, een ruime douche met thermostaatkraan en mechanische ventilatie. De wanden zijn met beton cire afgewerkt, wat de badkamer een moderne en strakke uitstraling geeft.

Via een luik is de vliering bereikbaar, met genoeg bergruimte in de nok van de woning.

Algemeen:
- Eigen grond, 92 m².
- De woning is geheel voorzien van kunststof kozijnen met HR glas, daarnaast is het dak en de vloer (deels) geïsoleerd.
- De badkamer is in 2021 vernieuwd.
- Airconditioning (2020) en elektrische rolluiken (2022) in grote slaapkamer.
- Dakbedekking van aanbouw in 2024 vernieuwd.
- Oplevering in overleg, voorkeur op korte termijn.

De informatie in deze brochure is met de nodige zorg vastgesteld. Aan deze gegevens kunnen echter geen rechten worden ontleend, alle aansprakelijkheid van Maarten Makelaardij is derhalve uitgesloten. Voorts zijn wijzigingen voorbehouden. Alle opgegeven maten en oppervlakten zijn indicatief.

Kenmerken

Financieel
Vraagprijs
€ 265.000,-
Status
Verkocht
Bouw
Soort woonhuis
Eengezinswoning
Soort bouw
Bestaande bouw
Bouwjaar
1933
Dak type
Zadeldak
Oppervlakten en inhoud
Wonen
66 m2
Overige inpandige ruimte
0 m2
Gebouwgebonden buitenruimte
0 m2
Perceel
92 m2
Inhoud
228 m3
Indeling
Aantal kamers
3
Aantal badkamers
1
Aantal slaapkamers
2
Voorzieningen
Voorzieningen
Mechanische ventilatie, Rolluiken, TV kabel, Buitenzonwering, Airconditioning, Glasvezel kabel
Energie en isolatie
Energieklasse
C
Isolatievormen
Dakisolatie, Vloerisolatie, Dubbelglas
Warm water
CV ketel
Verwarming
CV ketel
CV ketel type
Remeha Tzerra
Buitenruimte
Type buitenruimte(s)
Achtertuin, Voortuin
Hoofdtuin
Achtertuin
Hoofdtuin opp.
36 m2
Hoofdtuin positie
Zuidwest
Bergruimte
Soort
Vrijstaand steen
Voorzieningen
Voorzien van elektra
Ligging
Parkeer faciliteiten
Openbaar parkeren
Ligging
Aan rustige weg, In woonwijk

Plattegronden

Ligging en beschikbare woningen in de buurt

Wat klanten zeggen over Maarten: