Spring naar content
typeEengezinswoning
woonoppervlakte63 m2
slaapkamers2
buitenruimteAchtertuin
bouwjaar1896
energielabelC

Brochure

Over de woning

Helaas is het niet meer mogelijk om voor deze woning een bezichtiging in te plannen, we kunnen je wel op de reservelijst plaatsen!

Wij zijn weg van de Oranjestraat! Deze gezellige straat in de Indische buurt kenmerkt zich door haar karakteristieke gevels, diversiteit aan woningen en een centrale ligging. Om de hoek vind je de bekende Reeweg-Oost met diverse gezellige buurtwinkels en op 10 minuten lopen zit je in de historische binnenstad van Dordt! Heb je hier altijd al willen wonen? Let dan goed op! Wij mogen je deze leuke, stijlvolle hoekwoning aanbieden.

Als je de voorgevel ziet, ben je al verkocht. Prachtige glas-in-lood ramen met daarboven karakteristieke hanenkammen. Binnen vinden we een ruime en lichte woonkamer, gezellige keuken (in 2022 gerenoveerd) en prachtige badkamer (in 2021 vernieuwd).
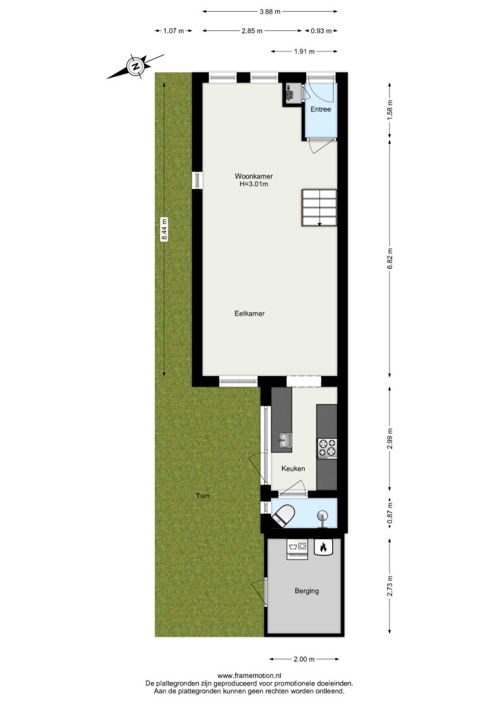
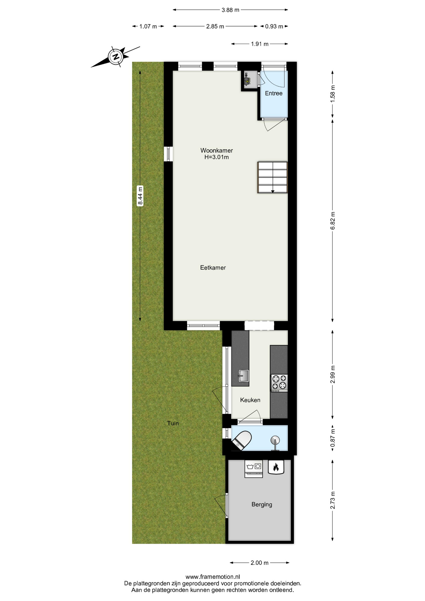
In de sfeervolle stadstuin ervaar je veel rust en privacy. De stadstuin is tevens via het zijpad bereikbaar, heel bijzonder in deze buurt! Boven bevinden zich twee ruime slaapkamers en daarnaast een zeer ruime overloop waar je met gemak een fijne werkruimte kunt creëren.

Ben je op zoek naar een hoekwoning in een rustige en kindvriendelijke buurt? Dan is deze woning in de Indische buurt de ideale plek voor jou!

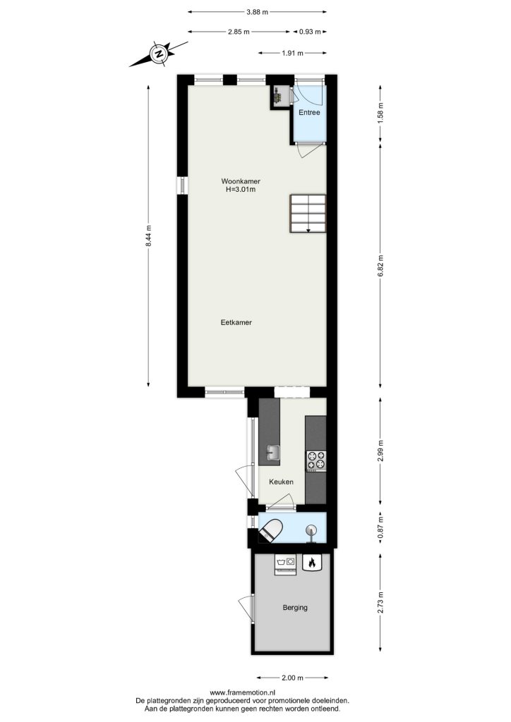
Indeling:
Hal met sfeervolle lambrisering, glas-in-lood raam, meterkast (7 groepen, 1 dubbele groep, dag/nachtstroommeter, gasmeter, glasvezel aansluiting).

De lichte woonkamer beschikt over ramen aan voor-, zij- en achterkant en is voorzien van een houten vloer, deels behang en deels houtstrip wandbekleding, een grote kast en glas-in-lood ramen aan voorzijde. Door het hoge plafond geeft deze kamer een ruimtelijk gevoel.

Aansluitend bij de woonkamer vinden we de keuken in dubbele wandopstelling. De moderne keuken is in 2022 gerenoveerd en beschikt over een 4 pit inductie kookplaat, afzuigkap (2022), oven (2022), vaatwasser, kleine koelkast, sfeervolle tegelwand en deur naar de tuin.

Aangrenzend bij de keuken bevindt zich de badkamer, deze is in 2021 vernieuwd en beschikt over een douche met thermostaatkraan en regendouche kop, hangend toilet, designradiator, mechanische ventilatie en inbouwspots.

Vanuit de keuken is de gezellige stadstuin bereikbaar, een fijne buitenruimte waar je veel rust en privacy ervaart. Vanuit de tuin is de aangebouwde berging bereikbaar, voorzien van was aansluiting en opstelplaats CV-ketel (2010, in 2016 vernieuwd).
De tuin is vanaf de straat via het zijpad bereikbaar, iets wat in deze buurt heel bijzonder is. Ideaal voor bijvoorbeeld de fietsen!

Eerste verdieping:
Vanuit de woonkamer is de trap naar de verdieping bereikbaar. De overloop is voorzien van een houten vloer, dakkapel en inbouwkast. Deze overloop biedt een zee aan ruimte, je kan hier met gemak een fijne werkplek creëren.

Ruime slaapkamer aan achterzijde, voorzien van schuifkastenwand, wastafel met meubel, houten vloer en een kunststof kozijn.

Slaapkamer aan voorzijde met sfeervolle dakkapel, inbouwkasten, houten vloer, behang wandafwerking en een houten kozijn.

Algemeen:
Eigen grond, 83 m².
Badkamer in 2021 vernieuwd.
Keuken in 2022 gerenoveerd en deels voorzien van nieuwe apparatuur.
Energielabel C, zij- en achtergevel vanaf buiten geïsoleerd, tevens is het dak geïsoleerd.
Schilderwerk 2020.
Parkeren in straat middels vergunningen.
Oplevering in overleg.

Kenmerken

Financieel
Vraagprijs
€ 250.000,-
Status
Verkocht
Bouw
Soort woonhuis
Eengezinswoning
Soort bouw
Bestaande bouw
Bouwjaar
1896
Dak type
Zadeldak
Oppervlakten en inhoud
Wonen
63 m2
Overige inpandige ruimte
0 m2
Gebouwgebonden buitenruimte
0 m2
Perceel
83 m2
Inhoud
236 m3
Indeling
Aantal kamers
3
Aantal badkamers
1
Aantal slaapkamers
2
Voorzieningen
Voorzieningen
Mechanische ventilatie, TV kabel, Glasvezel kabel
Energie en isolatie
Energieklasse
C
Isolatievormen
Dakisolatie, Muurisolatie, Dubbelglas
Warm water
CV ketel
Verwarming
CV ketel
CV ketel type
Remeha Avanta
Buitenruimte
Type buitenruimte(s)
Achtertuin
Hoofdtuin
Achtertuin
Hoofdtuin opp.
19 m2
Hoofdtuin positie
Noordwest
Bergruimte
Soort
Aangebouwd hout
Voorzieningen
Voorzien van verwarming, Voorzien van elektra, Voorzien van water
Ligging
Parkeer faciliteiten
Parkeervergunningen
Parkeren capaciteit
2
Ligging
Aan rustige weg, In woonwijk

Plattegronden

Ligging en beschikbare woningen in de buurt

Wat klanten zeggen over Maarten: