Spring naar content
typeMaisonnette
woonoppervlakte97 m2
slaapkamers2
buitenruimteGeen tuin
bouwjaar1980
energielabelC

Brochure

Over de woning

‘Kijk, vanuit hier zie je de dijk en vanuit daar loop je zó de Elzen in!’ aldus de verkoper van de Doornenburg 137. Wat een fijne en rustige plek is dit!

Deze toffe maisonnette ligt in een enorm kindvriendelijke & groene buurt in de wijk Sterrenburg met heerlijk vrij uitzicht. Fijne omgeving om te wonen blijkt, want verkopers hebben namelijk in dezelfde wijk een nieuwe woning aangekocht! Zij begonnen hier 5 jaar geleden als starters en altijd met veel plezier gewoond. In de ochtend start je op het balkon in het zonnetje, perfect om daar te ontbijten of te lunchen dus. De afgelopen jaren opgeknapt met heel veel mooie houten elementen voor een warme sfeer. Héél bijzonder (op een positieve manier) is de trap in de woonkamer, een echte eye-catcher!

Winkelcentrum Sterrenburg weer op loopafstand en met 20 minuutjes fietsen ben je bij ons op kantoor voor een bakkie koffie. We weten allemaal dat dit gewoon een lekker plekkie is om jouw (t)huis van te maken. We gaan er daarom helemaal niks ingewikkelds van maken; gewoon een superleuke moderne woning met een mooie keuken, grote badkamer (met bad), 2 grote slaapkamers en een breed balkon.

Had ik al genoemd dat er óók een eigen parkeerplaats en berging in de garage bij zit? Bij deze! Kom jij gezellig een kijkje nemen?

Indeling:
Via de algemene trappenhuizen is de galerij op de 3e verdieping bereikbaar. Er is tevens een lift aanwezig om de galerij te bereiken.

Begane grond appartement (3e etage):
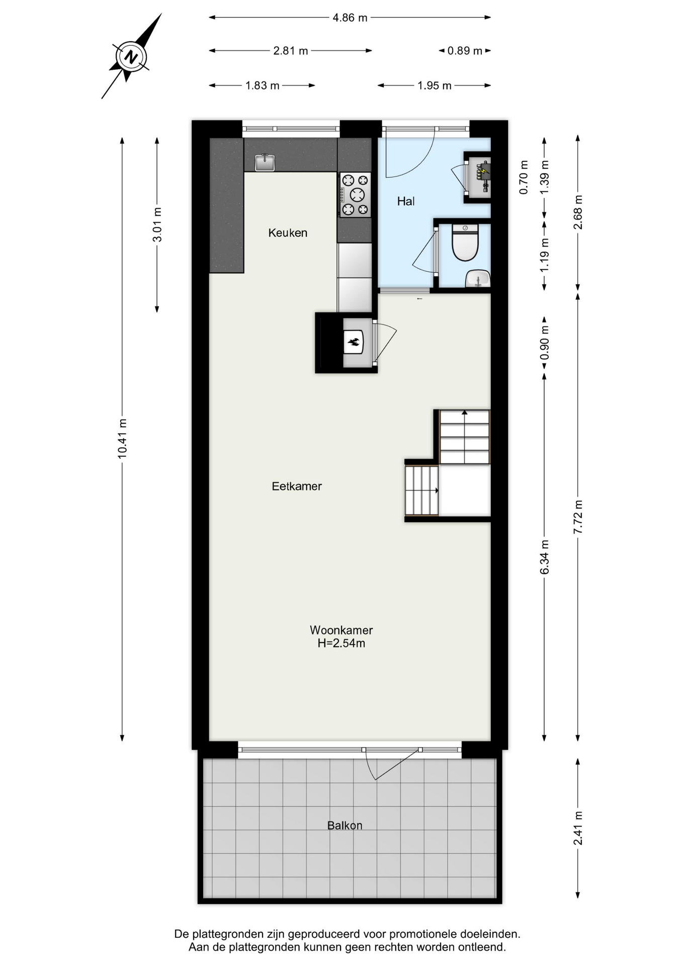
Entree in hal met meterkast (9 groepen, 3 aardlekschakelaars, slimme meters en glasvezelaansluiting), toilet (volledig betegeld) met fontein, kast met opstelplaats cv-ketel (Remeha Tzerra, 2016).

Lichte en strak afgewerkte woonkamer met open trap naar de verdieping en toegang tot het terras aan achterzijde. De woonkamer is afgewerkt met een mooie laminaatvloer en gestucte wanden en plafond. De moderne trap met bordesdeel is door de huidige eigenaren afgewerkt met prachtige eikenhouten treden.

Vind je het heerlijk om te koken voor vrienden en familie? Dan ben je hier aan het juiste adres, want wat een prachtige keuken is dit! Aan de voorzijde bevindt zich deze moderne keuken in U-opstelling, welke in 2019 is geplaatst. De keuken beschikt over een groot gasfornuis (maar liefst 6 pits) met oven van merk La Germania, afzuigkap, koel/vriescombinatie, vaatwasser, magnetron, een kunststof werkblad, inbouwspots en heel veel bergruimte.

Ruim terras gelegen op het oosten, voorzien van een elektrisch zonnescherm. Hier geniet je in alle rust van het zonnetje en het uitzicht op de groene omgeving.

Verdieping:
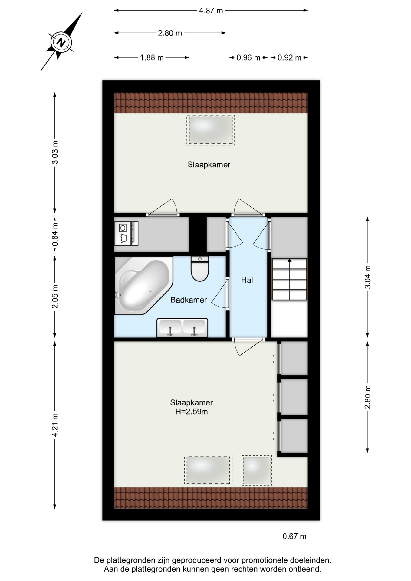
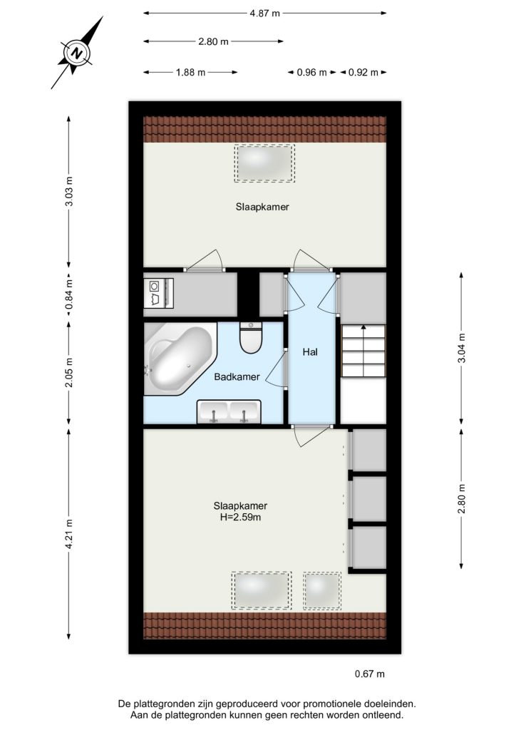
Overloop met vaste kast en extra bergruimte boven de trap.

Grote slaapkamer aan achterzijde met vaste schuifkastenwand, 2 dakramen en een laminaatvloer.

Eveneens een ruime slaapkamer aan voorzijde. Vanuit deze kamer is de kast met aansluiting wasmachine bereikbaar.

Nette badkamer (volledig betegeld), voorzien van hoekbad met thermostaatkraan, groot wastafelmeubel met dubbele wastafel, toilet en mechanische ventilatie.

In de onderbouw van het appartementencomplex beschikt het appartement over een eigen parkeerplaats en ruime berging.

Algemeen:
- Ruime, instapklare maisonnette woning van maar liefst 97 m².
- Eigen parkeerplaats in garage onder complex.
- Energielabel C, bijna volledig voorzien van dubbel glas in houten kozijnen.
- Nieuwe keuken, laminaatvloer, meterkast, stucwerk, traptreden in 2019 geplaatst.
- Schilderwerk april 2024 uitgevoerd.
- VvE bijdrage €161,85 per maand. Het betreft een actieve VvE. In verband met toekomstig groot onderhoud kan er in de aankomende jaren mogelijk een extra jaarlijkse bijdrage worden ingevoerd.
- Oplevering in overleg, voorkeur december 2024.

De informatie in deze brochure is met de nodige zorg vastgesteld. Aan deze gegevens kunnen echter geen rechten worden ontleend, alle aansprakelijkheid van Maarten Makelaardij is derhalve uitgesloten. Voorts zijn wijzigingen voorbehouden. Alle opgegeven maten en oppervlakten zijn indicatief.

Kenmerken

Financieel
Vraagprijs
€ 285.000,-
Status
Verkocht
Bouw
Soort bouw
Bestaande bouw
Bouwjaar
1980
Dak type
Plat dak
Oppervlakten en inhoud
Wonen
97 m2
Overige inpandige ruimte
0 m2
Gebouwgebonden buitenruimte
12 m2
Inhoud
331 m3
Indeling
Aantal kamers
3
Aantal badkamers
1
Aantal slaapkamers
2
Aantal woonlagen
2
Voorzieningen
Voorzieningen
Mechanische ventilatie, TV kabel, Buitenzonwering, Dakraam, Glasvezel kabel
Energie en isolatie
Energieklasse
C
Isolatievormen
Dubbelglas
Warm water
CV ketel
Verwarming
CV ketel
CV ketel type
Remeha Tzerra
Buitenruimte
Type buitenruimte(s)
Geen tuin
Bergruimte
Soort
Inpandig
Ligging
Parkeer faciliteiten
Openbaar parkeren, Op eigen terrein
Ligging
Aan rustige weg, In centrum

Plattegronden

Ligging en beschikbare woningen in de buurt

Wat klanten zeggen over Maarten: