Spring naar content
typeEengezinswoning
woonoppervlakte85 m2
slaapkamers2
buitenruimteAchtertuin
bouwjaar1909
energielabelC

Brochure

Over de woning

Charmante gezinswoning in Oud-Krispijn, op steenworp afstand van het historische centrum van Dordrecht!

Deze gezellige gezinswoning aan de Jacob Catsstraat in Oud-Krispijn heeft veel te bieden. Een ruime woonkamer met heerlijk hoog plafond, twee slaapkamers (waarvan een zeer ruimtelijke kamer) en een fijne stadstuin gelegen op het zuiden.

De ligging van de woning is zeer centraal; je woont hier in een fijne, gemoedelijke buurt met op steenworp afstand het prachtige centrum van Dordrecht en het NS-station. Op de hoek van de straat zijn een aantal winkels gelegen, waaronder Bakkerij Brokking, bekend om zijn heerlijke hazelnootgebak! Steek je de straat over, dan wandel je zo het Weizigt-park in. Ideaal voor een lekkere zomerse wandeling of een rondje hardlopen.

Kortom, een heerlijke plek waar je én lekker de zon op kunt zoeken in je eigen tuin, maar ook de levendige omgeving kunt gaan verkennen.

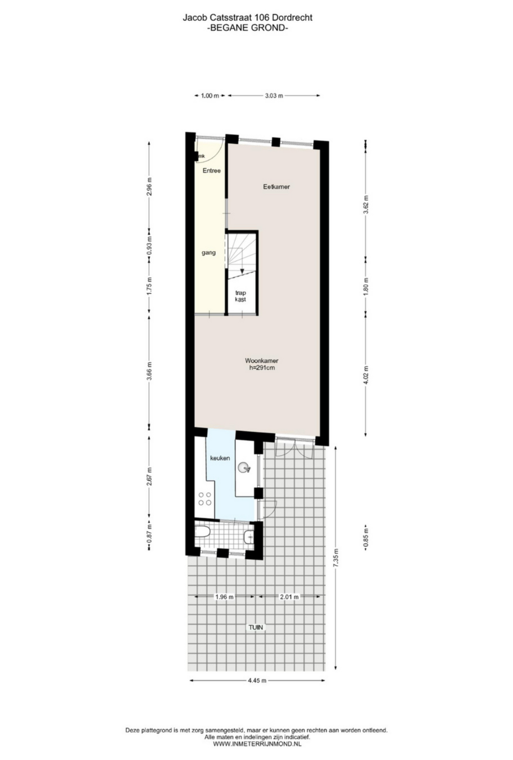
Indeling:
De hal biedt in de basis toegang tot de woonkamer aan zowel de voor- als achterzijde. Huidige eigenaar heeft ervoor gekozen een gedeelte van de hal als bergruimte te gebruiken, heel praktisch!

De woonkamer voelt door het hoge plafond lekker ruimtelijk en heeft een speelde indeling. Aan voorzijde een gezellige hoek voor de eettafel en daarna de doorloop met ruim plek voor een mooie boekenkast of leuke fotowand. Achterin de woonkamer creër je een fijne zithoek met dubbele deuren naar de tuin en toegang tot de keuken. Hier bevindt zich tevens een handige bergkast en toegang tot de kelderkast, waar je nog meer bergruimte vindt! De woonkamer is in geheel voorzien van een laminaatvloer, stucwerk wand- en plafondafwerking en een voorzetwand met behang wandafwerking.

De keuken bevindt zich in de aanbouw, deze is opgesteld in dubbele wandopstelling en voorzien van een 4 pit gaskookplaat, afzuigkap, kleine vaatwasser, oven en koelkast (defect).
Achterin de aanbouw bevindt zich een ruim toilet (volledig betegeld) met wandcloset en een deur naar de achtertuin.

De achtertuin is gelegen op het zuidoosten, met een ruim terras aan achterzijde. Verder beschikt de tuin over een buitenkraan.

1e verdieping:
Overloop met grote kastenwand (ter overname), voorzien van een laminaatvloer. Vanaf de overloop is een grote ruimte bereikbaar met opstelplaats CV-ketel (Remeha Avanta, 2016), aansluiting wasmachine en extra bergruimte.

Ruime slaapkamer aan voorzijde, deze kamer beschikt over een kleine dakkapel aan voorzijde, een dakraam, een laminaatvloer en stucwerk wand- en plafondafwerking.

Slaapkamer aan achterzijde, eveneens voorzien van een laminaatvloer en stucwerk wand- en plafondafwerking.

De badkamer is gelegen aan achterzijde, deze is grotendeels betegeld en voorzien van een ligbad met douchewand en mengkraan, wastafel op meubel, kolomkast en een designradiator.

Algemeen:
- Eigen grond, 77 m².
- Staalfundering.
- Energielabel C, geheel voorzien van kunststof kozijnen.
- In 2024 is het platte dak geïsoleerd en vernieuwd.
- Woonkamer is deels voorzien van een voorzetwand met isolatie.
- Oplevering in overleg, voorkeur medio november 2025.

De informatie in deze brochure is met de nodige zorg vastgesteld. Aan deze gegevens kunnen echter geen rechten worden ontleend, alle aansprakelijkheid van Maarten Makelaardij is derhalve uitgesloten. Voorts zijn wijzigingen voorbehouden. Alle opgegeven maten en oppervlakten zijn indicatief.

Kenmerken

Financieel
Vraagprijs
€ 295.000,-
Status
Verkocht
Bouw
Soort woonhuis
Eengezinswoning
Soort bouw
Bestaande bouw
Bouwjaar
1909
Dak type
Samengesteld dak
Oppervlakten en inhoud
Wonen
85 m2
Overige inpandige ruimte
0 m2
Gebouwgebonden buitenruimte
0 m2
Perceel
77 m2
Inhoud
272 m3
Indeling
Aantal kamers
3
Aantal badkamers
1
Aantal slaapkamers
2
Voorzieningen
Voorzieningen
TV kabel, Glasvezel kabel, Natuurlijke ventilatie
Energie en isolatie
Energieklasse
C
Isolatievormen
Dakisolatie, Muurisolatie, Dubbelglas
Warm water
CV ketel
Verwarming
CV ketel
CV ketel type
Remeha
Buitenruimte
Type buitenruimte(s)
Achtertuin
Hoofdtuin
Achtertuin
Hoofdtuin opp.
25 m2
Hoofdtuin positie
Zuidoost
Ligging
Parkeer faciliteiten
Openbaar parkeren
Ligging
Aan rustige weg, In woonwijk

Plattegronden

Ligging en beschikbare woningen in de buurt

Wat klanten zeggen over Maarten: