Spring naar content
typePortiekflat
woonoppervlakte83 m2
slaapkamers2
buitenruimteGeen tuin
bouwjaar1939
energielabelC

Brochure

Over de woning

Ruim en licht 3-kamerappartement gelegen op een aantrekkelijke locatie in Rotterdam. De woning beschikt over een sfeervolle woonkamer met toegang tot het balkon, een moderne keuken met inbouwapparatuur, twee royale slaapkamers en een frisse, witte badkamer met inloopdouche. De woning heeft een superleuke indeling op één etage en toont heerlijk ruim. Extra opbergruimte is beschikbaar in de eigen berging. Ideaal voor wie comfortabel en centraal wil wonen.

De populaire jaren ’30 buurt Blijdorp is zeer centraal gelegen en staat garant voor plezierig wonen. Hier wonen betekent groen en rust om je heen gecombineerd met alle dagelijkse voorzieningen in de nabije omgeving. Denk hierbij aan supermarkten, speciaalzaken, restaurants, cafés, scholen en sportfaciliteiten. In de buurt bevindt zich het bekende Vroesenpark, de (tweede) favoriete achtertuin van menig Rotterdammer. Zodra de zon schijnt, verandert dit stadspark in een ‘hangout spot’ en heerst er een erg gezellige vibe. Plus: barbecueën mag gewoon én er vinden regelmatig leuke (food)events plaats. Sportievelingen kunnen zich uitleven in het Roel Langerakpark op de vrij toegankelijke atletiekbaan of discgolf court. Of ontdek de wandelpromenade richting de dierentuin waarbij je tegelijkertijd kunt genieten van een gezellig dagje uit in Diergaarde Blijdorp. Het naastgelegen Oude Noorden en de Provenierswijk zijn ook zeker een bezoekje waard. Hier vind je tevens veel op het gebied van food, fashion & design. Aan gezelligheid geen gebrek! Daarnaast bereik je binnen no time het bruisende stadscentrum (10 minuten fietsen), openbaar vervoer (o.a. Centraal Station en metrostation Blijdorp zeer dichtbij) en de uitvalswegen (A13 en A20). Ervaar het hier allemaal!

Indeling
Begane grond:
Entree met bellentableau, brievenbussen en trapopgang naar de verdiepingen.

Tweede verdieping:
Bij binnenkomst betreed je de ruime hal, die meteen een ruimtelijk gevoel oproept. Vanuit deze hal zijn alle vertrekken bereikbaar, en de ingebouwde kastenwand biedt een praktische oplossing om je spullen netjes op te bergen en uit het zicht te houden.

De woonkamer biedt een comfortabele en lichte leefruimte met een strakke afwerking en een mix van moderne en natuurlijke elementen, zoals de open bakstenen wand, wat de ruimte een warme uitstraling geeft. De woonkamer biedt voldoende ruimte voor een zit- en eetgedeelte.

Vanuit zowel de woonkamer als één van de slaapkamers heb je toegang tot het balkon, ideaal voor frisse lucht en ontspanning.

De keuken is efficiënt en goed uitgerust met moderne apparatuur, waaronder een 5-pits gasfornuis met een wokbrander, een oven, een vaatwasser, een combimagnetron en een koel-vriescombinatie. Daarnaast is er voldoende kastruimte aanwezig in de keuken om alle benodigdheden op te bergen. Door het gebruik van lichte kleuren en houten elementen heeft de keuken een stijlvolle uitstraling.

Beide slaapkamers zijn rustig gelegen en royaal van formaat. perfect om in te richten als hoofdslaapkamer, kinder- of werkkamer.
De badkamer is modern en geheel in het wit afgewerkt, met een inloopdouche, toilet, en wastafelmeubel.

Berging:
Bij dit appartement hoort een separate berging gelegen aan de achterzijde van het complex.

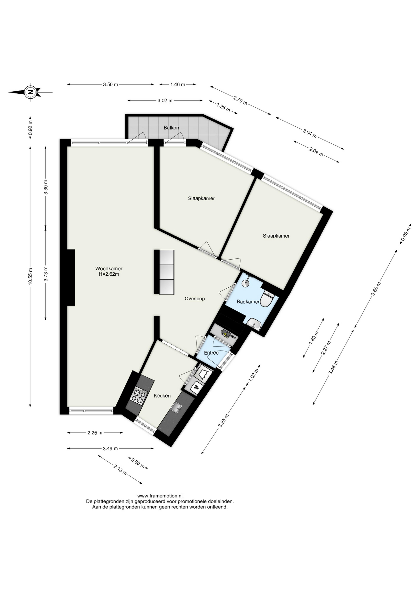
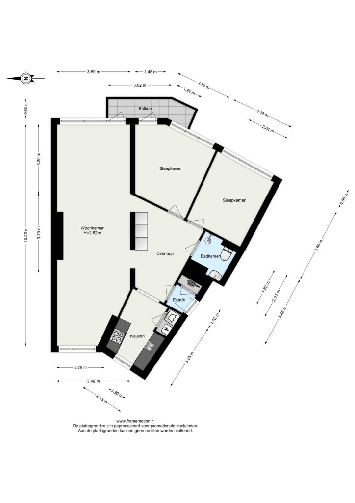
Afmetingen
Voor de afmetingen en indeling zie onze gedetailleerde plattegrond.

Bijzonderheden
• Bouwjaar: 1939
• Woonoppervlakte circa 83m2
• Inhoud circa 307m3
• Gelegen op eigen grond
• Eigen fietsenberging te bereiken via afgesloten poort
• Verwarming en warm water middels: cv ketel, bouwjaar 2023
• Volledig voorzien van dubbele beglazing
• Goed functionerende, actieve Vereniging van Eigenaars; bijdrage circa € 114,59 per maand
• In de koopovereenkomst wordt een ouderdomsclausule opgenomen
• In de koopovereenkomst wordt een niet-bewonersclausule opgenomen
• In de directe omgeving zijn alle dagelijkse voorzieningen te vinden, zoals openbaar vervoer, winkels op
loopafstand, horeca, goede verbinding tot uitvalswegen en recreatiemogelijkheden
• Oplevering in overleg.

Wij nodigen je van harte uit om dit appartement met eigen ogen te bewonderen.

Bel voor een vrijblijvende afspraak. We geven graag de mogelijkheden door!

De informatie is door ons met de nodige zorgvuldigheid samengesteld. Alle verstrekte informatie moet beschouwd worden als een uitnodiging tot het doen van een bod of om in onderhandeling te treden. Onzerzijds wordt echter geen enkele aansprakelijkheid aanvaard voor enige onvolledigheid, onjuistheid of anderszins, dan wel de gevolgen daarvan. Alle opgegeven maten en oppervlakten zijn indicatief.

Kenmerken

Financieel
Vraagprijs
€ 399.000,-
Status
Verkocht
Bouw
Soort bouw
Bestaande bouw
Bouwjaar
1939
Oppervlakten en inhoud
Wonen
83 m2
Overige inpandige ruimte
0 m2
Gebouwgebonden buitenruimte
4 m2
Inhoud
307 m3
Indeling
Aantal kamers
3
Aantal badkamers
1
Aantal slaapkamers
2
Aantal woonlagen
1
Energie en isolatie
Energieklasse
C
Isolatievormen
Dubbelglas
Warm water
CV ketel
Verwarming
CV ketel
CV ketel type
Intergas
Buitenruimte
Type buitenruimte(s)
Geen tuin
Bergruimte
Soort
Inpandig
Voorzieningen
Voorzien van elektra
Ligging
Parkeer faciliteiten
Openbaar parkeren, Betaald parkeren
Ligging
Aan rustige weg, In woonwijk

Plattegronden

Ligging en beschikbare woningen in de buurt

Wat klanten zeggen over Maarten: