Spring naar content
typeTussenverdieping
woonoppervlakte72 m2
slaapkamers2
buitenruimteGeen tuin
bouwjaar1901
energielabelA

Brochure

Over de woning

** Inschrijfprocedure: Middels een inschrijving zal besloten worden met welke partij een overeenstemming bereikt wordt. Mocht je een bod willen uitbrengen, kan je dit doen tot woensdag 10 december 2025 12:00 uur. Het recht van gunning is voorbehouden aan verkoper. **

Sfeervol en modern wonen achter een prachtige gevel! Dit 3-kamerappartement met balkon is in 2014 volledig gerenoveerd, inclusief de gevel, waarbij de authentieke charme prachtig bewaard is gebleven. Binnenshuis gaan sfeer en hedendaags comfort hand in hand. Van een fraaie parketvloer tot inbouwspots in het plafond, en van een open keuken met kookeiland tot een keurige badkamer. Daarbij maakt energielabel A het plaatje helemaal compleet. Centraal gelegen, maar toch rustig, is dit de perfecte plek om je écht thuis te voelen!

Middelland heeft een centrale ligging waardoor het prettig stads wonen is. Het is een bijzondere buurt die vanaf het ontstaan tot op de dag van vandaag een statige sfeer combineert met creatieve bewoners zoals muzikanten, schrijvers en kunstenaars. Kenmerkend zijn de lanen en singels met statige architectuur en daardoor een rustieke uitstraling. Geen andere buurt heeft als Middelland twee gezichten; de drukte van de stad en tegelijkertijd een gezellige woonomgeving. Door de diversiteit vind je er van alles op het gebied van food, delicatessenwinkels en toko’s, maar ook diverse restaurants en ambachtelijke winkeltjes. Verder is de woning gunstig gelegen ten opzichte van uitvalswegen (A13 en A20) en het openbaar vervoer (trams en Centraal Station). Tot slot is het stadscentrum zeer makkelijk en snel te bereiken. Kortom, een ideale combinatie!

Indeling
Begane grond:
Gedeelde entree met een trapopgang naar de woning op de eerste verdieping.

Eerste etage:
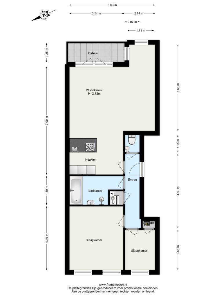
Bij binnenkomst stap je direct de langgerekte hal binnen, die toegang biedt tot alle vertrekken. Aan de achterzijde van de woning ligt het lichte en ruime leefgedeelte. De prachtige houten parketvloer, strak afgewerkte wanden en plafonds én moderne inbouwspotjes geven de woning een luxe uitstraling en creëren samen een warme, sfeervolle ambiance. Met plek voor een royale eettafel en een gezellige zithoek is dit de ideale plek om echt thuis te komen! De open keuken met kookeiland staat direct in verbinding met de woonkamer, waardoor er een heerlijke gezamenlijke leefruimte ontstaat. De keuken is uitgerust met een 4-pits gasfornuis, afzuigkap, combi-oven, koel-vriescombinatie en een vaatwasser. Hier bereid je moeiteloos de heerlijkste gerechten en geniet je gezellig van een borrel aan de keukenbar! Via de openslaande deuren stap je zo het balkon op van circa 4 m2, waar je dankzij de oostelijke ligging ’s ochtends van de zon geniet en een oase van rust ervaart.

Aan de voorzijde van de woning bevinden zich twee kamers. De hoofdslaapkamer voelt heerlijk ruim aan en is volledig strak afgewerkt, ideaal voor een ontspannen nachtrust. De tweede kamer biedt volop mogelijkheden: inrichten als extra slaapkamer, werkruimte of praktische opbergkamer. Hier bevindt zich tevens de meterkast. De keurige badkamer beschikt over alle gemakken: een ruime inloopdouche, een wastafel met zwevend meubel en zelfs een heerlijk ligbad! Terug in de hal is het separate toilet met fonteintje en een berging met een aansluiting voor de wasmachine en droger en de cv-opstelling te vinden.

Afmetingen
Voor de afmetingen en indeling zie onze gedetailleerde plattegrond.

Bijzonderheden
• Bouwjaar: 1901 (in 2014 is het volledige pand gerenoveerd incl. de gevel)
• Woonoppervlakte circa 72 m2
• Inhoud circa 236 m3
• Eigen grond
• Energielabel A
• Verwarming en warm water middels cv-ketel (2023, laatst onderhouden in 2025)
• Volledig voorzien van dubbele beglazing (HR ++)
• Volledig gerenoveerd in 2014
• Goed functionerende Vereniging van Eigenaars; bijdrage € 50,- per maand
• In de koopovereenkomst wordt een ouderdomsclausule opgenomen
• In de directe omgeving zijn alle dagelijkse voorzieningen te vinden, zoals openbaar vervoer, winkels, horeca, goede verbinding tot uitvalswegen en recreatiemogelijkheden
• Oplevering in overleg.

Wij nodigen je van harte uit om dit appartement in Rotterdam met eigen ogen te bewonderen.

Bel voor een vrijblijvende afspraak. We geven graag de mogelijkheden door!

De informatie is door ons met de nodige zorgvuldigheid samengesteld. Alle verstrekte informatie moet beschouwd worden als een uitnodiging tot het doen van een bod of om in onderhandeling te treden. Onzerzijds wordt echter geen enkele aansprakelijkheid aanvaard voor enige onvolledigheid, onjuistheid of anderszins, dan wel de gevolgen daarvan. Alle opgegeven maten en oppervlakten zijn indicatief.

Kenmerken

Financieel
Vraagprijs
€ 375.000,-
Status
Onder bod
Bouw
Soort bouw
Bestaande bouw
Bouwjaar
1901
Oppervlakten en inhoud
Wonen
72 m2
Overige inpandige ruimte
0 m2
Gebouwgebonden buitenruimte
4 m2
Inhoud
236 m3
Indeling
Aantal kamers
3
Aantal badkamers
1
Aantal slaapkamers
2
Aantal woonlagen
1
Voorzieningen
Voorzieningen
Mechanische ventilatie
Energie en isolatie
Energieklasse
A
Isolatievormen
Dakisolatie, Muurisolatie, Dubbelglas, HR glas
Warm water
CV ketel
Verwarming
CV ketel
Buitenruimte
Type buitenruimte(s)
Geen tuin
Ligging
Parkeer faciliteiten
Betaald parkeren, Parkeervergunningen
Ligging
Aan rustige weg, In woonwijk

Plattegronden

Ligging en beschikbare woningen in de buurt

Wat klanten zeggen over Maarten: