Spring naar content
typeBovenwoning
woonoppervlakte98 m2
slaapkamers3
buitenruimteGeen tuin
bouwjaar1937
energielabelD

Brochure

Over de woning

Puur geluk! Deze dubbele bovenwoning met twee balkons is in 2022 gemoderniseerd en dat is duidelijk terug te zien. De afwerking straalt luxe uit dankzij de prachtige PVC-vloer met visgraatmotief, strak gestuukte wanden, moderne keuken en stijlvolle badkamer en suite. De royale leefruimte, waarin de karakteristieke glas-in-loodramen terugkomen, zorgt voor extra sfeer en licht. Een woning die comfort, karakter en klasse moeiteloos combineert!

De populaire jaren ’30 buurt Blijdorp is zeer centraal gelegen en staat garant voor plezierig wonen. Hier wonen betekent groen en rust om je heen gecombineerd met alle dagelijkse voorzieningen in de nabije omgeving. Denk hierbij aan supermarkten, speciaalzaken, restaurants, cafés, scholen en sportfaciliteiten. In de buurt bevindt zich het bekende Vroesenpark, de (tweede) favoriete achtertuin van menig Rotterdammer. Zodra de zon schijnt, verandert dit stadspark in een ‘hangout spot’ en heerst er een erg gezellige vibe. Plus: barbecueën mag gewoon én er vinden regelmatig leuke (food)events plaats. Aan het einde van de straat ligt bovendien een gezellig plantsoen met picknicktafels, waar buurtbewoners in de zomer graag samen eten of verjaardagen vieren. Sportievelingen kunnen zich uitleven in het Roel Langerakpark op de vrij toegankelijke atletiekbaan of discgolf court. Of ontdek de wandelpromenade richting de dierentuin waarbij je tegelijkertijd kunt genieten van een gezellig dagje uit in Diergaarde Blijdorp. Het naastgelegen Oude Noorden en de Provenierswijk zijn ook zeker een bezoekje waard. Hier vind je tevens veel op het gebied van food, fashion & design. Aan gezelligheid geen gebrek! Daarnaast bereik je binnen no time het bruisende stadscentrum (10 minuten fietsen), openbaar vervoer (o.a. Centraal Station en metrostation Blijdorp zeer dichtbij) en de uitvalswegen (A13 en A20). Ervaar het hier allemaal!

Indeling
Begane grond:
Open portiek, middels stenen trap naar de eerste verdieping, waar de eigen entree van de woning zich bevindt.

Eerste etage:
De ruime entree biedt toegang tot alle vertrekken, waaronder het royale leefgedeelte. Wat een afwerking! De woning is in 2022 gemoderniseerd en dit is duidelijk terug te zien. De prachtige PVC-vloer met visgraatmotief en strak gestuukte wanden en plafonds zorgen niet alleen voor modern wooncomfort, maar geven het geheel ook een stijlvolle en tijdloze uitstraling. Dit is thuiskomen in een luxe sfeer! Doordat het leefgedeelte zich over de volle lengte van de woning uitstrekt, ervaar je hier een heerlijk gevoel van ruimte. De grote raampartijen aan beide zijden, deels voorzien van glas-in-lood, voegen extra karakter en charme toe. De halfopen moderne keuken is ruim opgezet met een keukenblok en vaste kastenwand. De keuken beschikt over een keramische kookplaat, afzuigkap, magnetron, oven, koelkast en een vaatwasser. Vanuit hier is er toegang tot het eerste balkon, dat is gelegen op het zuidoosten. Perfect om de dag te beginnen met een kopje koffie!

Aan de voorzijde is een extra kamer te vinden, die goed te gebruiken is als werkkamer of hobbykamer. In de entree is het separate toilet met fonteintje, twee vaste kasten en de trap naar de derde verdieping gevestigd.

Halve derde etage:
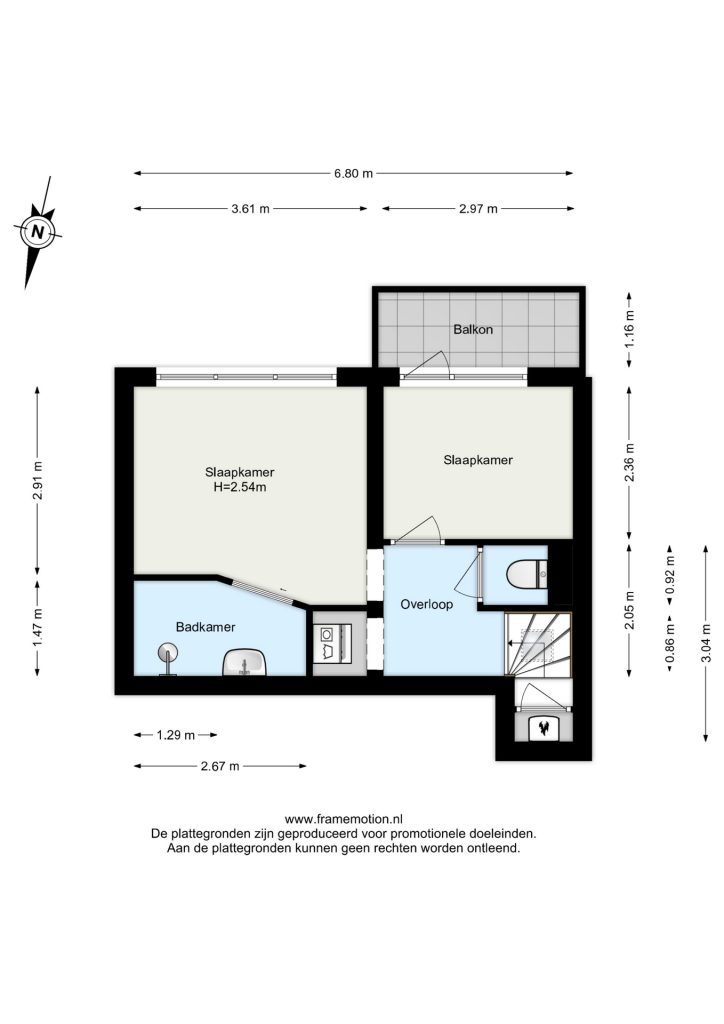
Op deze verdieping bevinden zich twee slaapkamers. De hoofdslaapkamer beschikt over een en suite badkamer, gescheiden door een glazen schuifwand. Hier komt het luxe gevoel van de woning helemaal terug, alsof je verblijft in een boutiquehotel. De badkamer is smaakvol afgewerkt met trendy blauwe wandtegels en zwarte accenten. De ruimte is uitgerust met een ruime wastafel met groot meubel en een organisch gevormde spiegel, een inloopdouche en elektrische vloerverwarming. De tweede slaapkamer heeft toegang tot het balkon, dat eveneens is gelegen op het zuidoosten. Een extra pluspunt is dat deze verdieping beschikt over een separaat toilet. Op de overloop is er een vaste kast met de aansluiting voor een wasmachine en droger, en bovenaan de trap is de cv-ketel te vinden.

Afmetingen
Voor de afmetingen en indeling zie onze gedetailleerde plattegrond.

Bijzonderheden
• Bouwjaar: 1937 (gemoderniseerd in 2022)
• Woonoppervlakte circa 98 m2
• Inhoud circa 338 m3
• Eigen grond
• Beschermd stadsgezicht
• Energielabel D
• Verwarming en warm water middels cv-ketel (2022) en elektrische keuken boiler
• Vloerverwarming in de badkamer
• Er is een airco unit aanwezig in het leefegdeelte
• Gehele woning met Tado bediening (Tado radiatorknoppen ter overname)
• Volledig voorzien van dubbele beglazing (grotendeels HR ++ glas en voorzetramen voor de glas-in-lood ramen)
• Goed functionerende, actieve Vereniging van Eigenaars; bijdrage circa €150,- per maand
• In 2025 hebben de volgende VvE werkzaamheden plaatsgevonden: achtergevel opnieuw gevoegd en geïmpregneerd, naast het vernieuwen van de riolering in de kruipruimte
• In de koopovereenkomst wordt een ouderdomsclausule opgenomen
• In de directe omgeving zijn alle dagelijkse voorzieningen te vinden, zoals openbaar vervoer, winkels, horeca, goede verbinding tot uitvalswegen en recreatiemogelijkheden
• Oplevering in overleg.

Wij nodigen je van harte uit om dit appartement in Rotterdam met eigen ogen te bewonderen.

Bel voor een vrijblijvende afspraak. We geven graag de mogelijkheden door!

De informatie is door ons met de nodige zorgvuldigheid samengesteld. Alle verstrekte informatie moet beschouwd worden als een uitnodiging tot het doen van een bod of om in onderhandeling te treden. Onzerzijds wordt echter geen enkele aansprakelijkheid aanvaard voor enige onvolledigheid, onjuistheid of anderszins, dan wel de gevolgen daarvan. Alle opgegeven maten en oppervlakten zijn indicatief.

Kenmerken

Financieel
Vraagprijs
€ 450.000,-
Status
Verkocht
Bouw
Soort bouw
Bestaande bouw
Bouwjaar
1937
Oppervlakten en inhoud
Wonen
98 m2
Overige inpandige ruimte
0 m2
Gebouwgebonden buitenruimte
7 m2
Inhoud
338 m3
Indeling
Aantal kamers
4
Aantal badkamers
1
Aantal slaapkamers
3
Aantal woonlagen
2
Voorzieningen
Voorzieningen
Mechanische ventilatie, Airconditioning, Natuurlijke ventilatie
Energie en isolatie
Energieklasse
D
Isolatievormen
Dubbelglas
Warm water
CV ketel, Vloerverwarming gedeeltelijk
Verwarming
CV ketel
Buitenruimte
Type buitenruimte(s)
Geen tuin
Ligging
Parkeer faciliteiten
Betaald parkeren, Parkeervergunningen

Plattegronden

Ligging en beschikbare woningen in de buurt

Wat klanten zeggen over Maarten: