Spring naar content
typeTussenverdieping
woonoppervlakte85 m2
slaapkamers2
buitenruimteGeen tuin
bouwjaar1908
energielabelE

Brochure

Over de woning

** Inschrijfprocedure: Middels een inschrijving zal besloten worden met welke partij een overeenstemming bereikt wordt. Mocht je een bod willen uitbrengen, kan je dit doen tot donderdag 19 mei 2022 12:00 uur. Het recht van gunning is voorbehouden aan verkoper. **

Woondroom op het fijne Noordereiland! Dit pareltje is instap klaar, modern en heerlijk licht. Met 2 slaapkamers, een luxe keuken en badkamer en een knus balkon komt het je hier aan niets te kort. Geniet van wonen midden in de stad, op het rustige en dorpse Noordereiland. Zie jij jezelf hier binnenkort al genieten?
 
Woonomgeving
Ben jij op zoek naar een plek die centraal gelegen is en waar je ook tot rust kunt komen? Het Noordereiland kan jou dit bieden! De buurt kent een gemoedelijke sfeer waar je dorps woont in de stad. Dit betekent voor ieder wat wils! Doordat de buurt omringd wordt door de Nieuwe Maas aan de noordkant en de Koningshaven aan de zuidkant is de ligging uniek te noemen. Ontdek hier leuke zaakjes, zoals de koffiebar Koozie, Fadi’s voor Arabic food en het zomerse pop-up visrestaurant A La Plancha. Door de verbinding met de Erasmusbrug en de Willemsbrug bereik je binnen no time het bruisende stadscentrum en bezoek je makkelijk de populaire plekken. De Witte de Withstraat, Oude Haven en Pannekoekstraat zijn o.a. voorzien van verschillende leuke hotspots. Ook de Kop van Zuid en Katendrecht, met haar Fenix Food Factory en Foodhallen, liggen in de directe omgeving waar je kunt genieten van culinaire of recreatieve uitstapjes. Tevens bevindt zich op het Noordereiland ook de opstapplaats voor de watertaxi. Noordereiland it is!
 
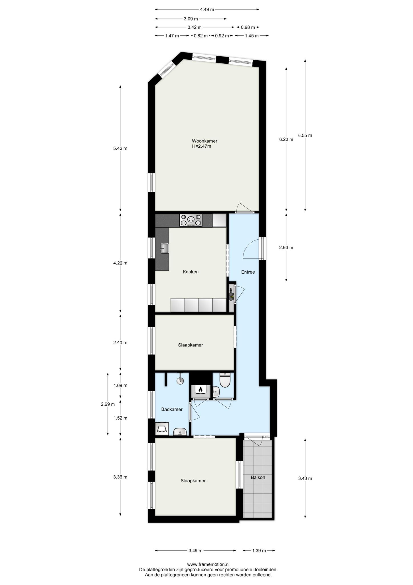
Indeling
Begane grond:
Gezamenlijke voordeur met trapopgang naar boven met eigen voordeur.
 
Derde etage:
Een droom die uitkomt! Stap dit pareltje binnen middels de ruime entree, waarvandaan je toegang hebt tot alle vertrekken. De heerlijk lichte woonkamer aan de voorzijde van de woning, lacht je tegemoet met de grote raampartijen en het uitzicht over de Maas. Wat een plaatje! De zeer nette afwerking zorgt ervoor dat de woning instap klaar is, ideaal! Strak gestuukte muren en plafonds en een nette houten vloer geven een moderne look & feel aan de woning. Zie jij jezelf al genieten op de bank? Creëer ook een gezellige eethoek waar heerlijk getafeld kan worden. Wat een knusse plek! De moderne keuken laat je kookdromen uitkomen. Kook de sterren van de hemel terwijl je gasten plaatsnemen aan de bar. Leuk, toch? Diverse inbouwapparatuur maakt het je erg gemakkelijk, denk hierbij aan een gasfornuis, afzuigkap, vaatwasser, combioven en een koelkast met vriesgedeelte.. De grote lades bieden ontzettend veel opbergruimte, maar aan de andere zijde is genoeg ruimte voor een grote opbergkast. Ideaal!
 
De woning beschikt over 2 ruime slaapkamers (ca. 11 m2 en 8 m2). Richt jij ze allebei in als slaapkamer, of tover je er één om tot kasten-, werk- of hobbykamer? Opties genoeg! De luxe en moderne badkamer is voorzien van een wastafelmeubel, inloopdouche, handdoekradiator en wasmachineaansluiting. Het separate toilet met fonteintje bevindt zich naast de badkamer. Ten slotte beschikt de woning over een heerlijk overdekt balkon waar kan worden genoten van het buitengevoel. Spot jij de Erasmusbrug?

Afmetingen
Voor de afmetingen en indeling zie onze gedetailleerde plattegrond.
 
Bijzonderheden
- Bouwjaar: 1908
- Energielabel: E
- Woonoppervlakte circa 85 m2
- Inhoud circa 254 m3
- Berging
- Gelegen op erfpachtgrond tot datum: 31-12-2093, waarvan de canon is afgekocht tot 19-12-2062
- Verwarming en warm water middels CV-ketel
- Volledig voorzien van dubbele beglazing
- Goed functionerende, actieve Vereniging van Eigenaars; bijdrage € 123,- per maand
- In de koopovereenkomst wordt een ouderdomsclausule opgenomen
- In de directe omgeving zijn alle dagelijkse voorzieningen te vinden, zoals openbaar vervoer, winkels, horeca, goede verbinding tot uitvalswegen en recreatiemogelijkheden
- Oplevering in overleg.
 
Wij nodigen je van harte uit om dit appartement in Rotterdam met eigen ogen te bewonderen.
 
Bel voor een vrijblijvende afspraak. We geven graag de mogelijkheden door!
 
De informatie is door ons met de nodige zorgvuldigheid samengesteld. Alle verstrekte informatie moet beschouwd worden als een uitnodiging tot het doen van een bod of om in onderhandeling te treden. Onzerzijds wordt echter geen enkele aansprakelijkheid aanvaard voor enige onvolledigheid, onjuistheid of anderszins, dan wel de gevolgen daarvan. Alle opgegeven maten en oppervlakten zijn indicatief.

Kenmerken

Financieel
Vraagprijs
€ 395.000,-
Status
Verkocht
Bouw
Soort bouw
Bestaande bouw
Bouwjaar
1908
Oppervlakten en inhoud
Wonen
85 m2
Overige inpandige ruimte
0 m2
Gebouwgebonden buitenruimte
5 m2
Inhoud
254 m3
Indeling
Aantal kamers
3
Aantal badkamers
1
Aantal slaapkamers
2
Aantal woonlagen
1
Voorzieningen
Voorzieningen
Natuurlijke ventilatie
Energie en isolatie
Energieklasse
E
Isolatievormen
Dakisolatie, Muurisolatie, Dubbelglas
Warm water
CV ketel
Verwarming
CV ketel
CV ketel type
Intergas
Buitenruimte
Type buitenruimte(s)
Geen tuin
Bergruimte
Soort
Inpandig
Ligging
Parkeer faciliteiten
Betaald parkeren, Parkeervergunningen
Ligging
Aan water, Aan rustige weg, In woonwijk

Plattegronden

Ligging en beschikbare woningen in de buurt

Wat klanten zeggen over Maarten: