Rotterdam
             ÂVierambachtsstraat 31B 02
3022 AC
- vraagprijs
- € 350.000,- k.k.
Brochure
Over de woning
Instapklaar & Stijlvol! Dit moderne 3-kamer appartement is in 2025 volledig gerenoveerd met energielabel A en helemaal klaar om te betrekken. Stap binnen in een sfeervolle leefruimte vol licht, met een luxe open keuken en strak afgewerkte wanden en plafonds die comfort en stijl perfect combineren. Van de charmante laminaatvloer tot de modern-chique badkamer: hier is écht aan alles gedacht. De slimme indeling met twee slaapkamers, gescheiden door een stoere industriële schuifdeur, maakt het ideaal voor bijvoorbeeld thuiswerken of een walk-in-closet. Een unieke kans voor wie zorgeloos wil wonen!
Het Nieuwe Westen heeft een bijzondere mix van wonen met grootstedelijke allure én typische volksbuurten. De buurt is een echte stadswijk met mooie singels, interessante winkelstraten en ruime pleinen. Dit maakt het Nieuwe Westen divers en erg leuk wonen! De Vierambachtsstraat en de Nieuwe Binnenweg zijn de belangrijkste winkelstraten en is er voor ieder wat wils op het gebied van horeca en fashion. De Burgemeester is een leuk café voor een gezellige borrel. Snel boodschappen doen? Geen probleem. De Jumbo is aan de overkant en diverse avondwinkels en toko’s liggen in de directe omgeving. Daarnaast is de woning gunstig gelegen ten opzichte van de binnenstad, het openbaar vervoer (met de tram binnen 8 minuten op Rotterdam Centraal) en de uitvalswegen (A13/A20/A16). Behoefte aan een groen uitstapje en ontsnapping? Bezoek het Roel Langerak, het Vroesenpark of neem een kijkje bij één van de vele musea die de stad rijk is. Altijd leuk! Voor kinderen zijn er diverse speeltuinen in het Heemraadspark en bereik je binnen no time Diergaarde Blijdorp. Verdere voorzieningen zoals sportverenigingen en scholen zijn in de buurt te vinden. Er valt hier ontzettend veel te ontdekken waardoor je vol verrassingen komt te staan!
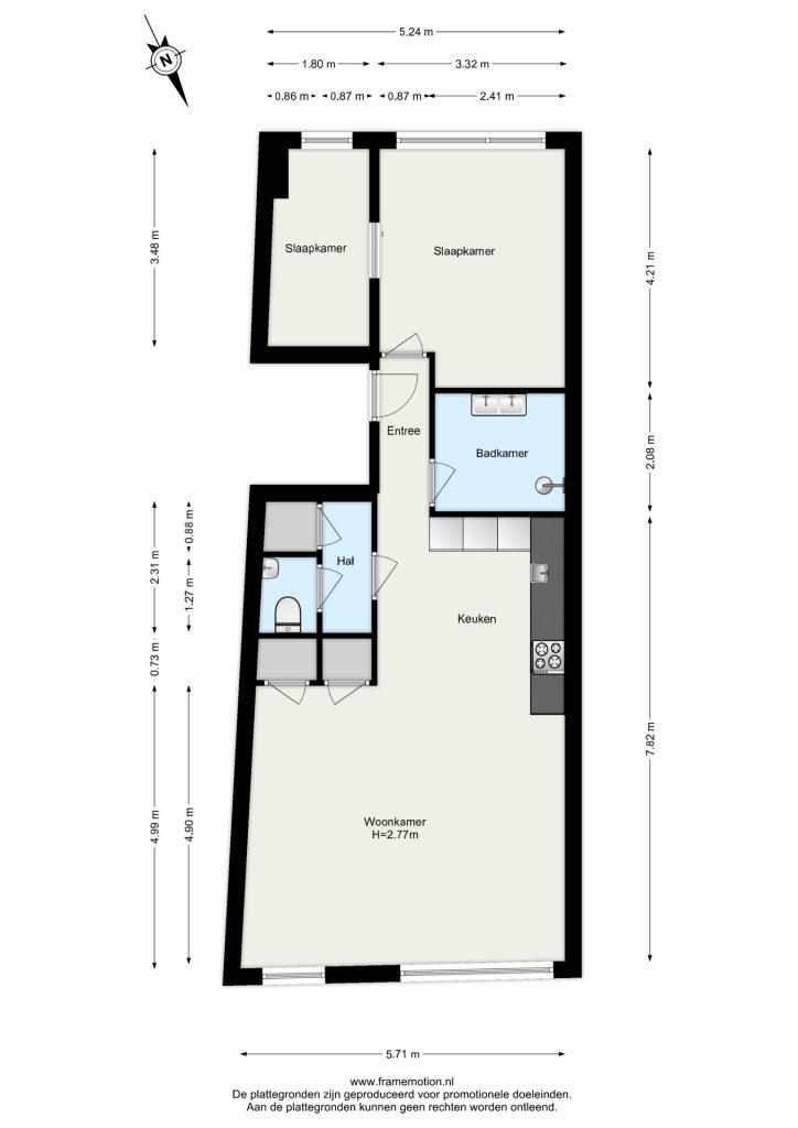
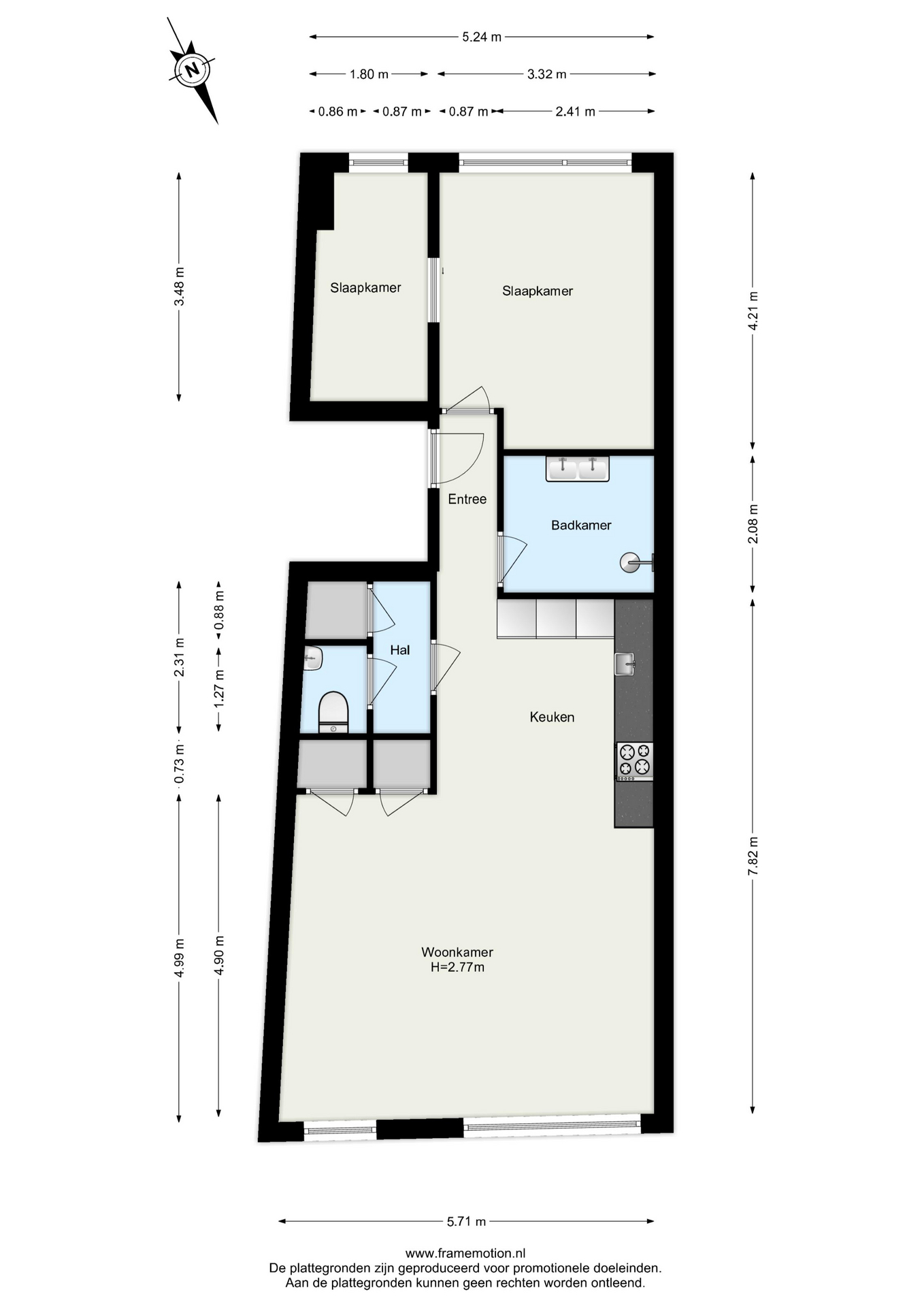
Indeling
Begane grond:
Gedeelde entree met een trapopgang naar de tweede verdieping.
Tweede etage:
Via de open entree loop je direct het leefgedeelte binnen, dat aan de voorzijde is gelegen op het zuiden. Alles is tot in de puntjes afgewerkt! Dankzij de renovatie in 2025 geniet je hier van optimaal wooncomfort, met een prachtige open keuken, strak afgewerkte wanden en plafonds, en een charmante laminaatvloer die warmte en stijl uitstraalt. De grote raampartijen zorgen voor heerlijk veel lichtinval en versterken het ruimtelijke gevoel. Er is volop plek voor een comfortabele zithoek én een gezellige eethoek waardoor rust en gezelligheid hand in hand gaan. De keuken is voorzien van luxe inbouwapparatuur zoals, een BORA inductiekookplaat met geïntegreerde afzuiging, koel- en vriescombinatie, stoomoven, vaatwasser, direct kokend water en enorm veel opbergruimte.
Aan de andere zijde bevinden twee slaapkamers op het noorden, van elkaar gescheiden door een stoere industriële glazen schuifdeur. Hoe gaaf is dat! Perfect om de hoofdslaapkamer te combineren met een inloopkast of een rustige werkplek. De indeling kun je helemaal aanpassen aan jouw woonwensen. De badkamer straalt rust en luxe uit, dankzij de grote, stijlvolle tegels. Daarnaast is de ruimte uitgerust met een inloopdouche, een dubbel wastafelmeubel en een handdoekradiator. Terug in de hal is het separate toilet met fonteintje en een vaste kast te vinden.
Afmetingen
Voor de afmetingen en indeling zie onze gedetailleerde plattegrond.
Bijzonderheden
• Bouwjaar: 1910 (volledig gerenoveerd in 2025)
• Woonoppervlakte circa 72 m2
• Inhoud circa 239 m3
• Eigen grond
• Energielabel A
• Verwarming en warm water middels cv-ketel (2025, voorbereid op hybride warmtepomp en zonneboiler)
• Volledig voorzien van dubbele beglazing
• Actieve Vereniging van Eigenaars; bijdrage circa €60,- per maand
• Projectnotaris: Notariskantoor Wagener
• In de koopovereenkomst wordt een niet-bewonersclausule opgenomen
• In de koopovereenkomst wordt een ouderdomsclausule opgenomen
• In de directe omgeving zijn alle dagelijkse voorzieningen te vinden, zoals openbaar vervoer, winkels, horeca, goede verbinding tot uitvalswegen en recreatiemogelijkheden
• Oplevering in overleg.
Wij nodigen je van harte uit om dit appartement in Rotterdam met eigen ogen te bewonderen.
Bel voor een vrijblijvende afspraak. We geven graag de mogelijkheden door!
De informatie is door ons met de nodige zorgvuldigheid samengesteld. Alle verstrekte informatie moet beschouwd worden als een uitnodiging tot het doen van een bod of om in onderhandeling te treden. Onzerzijds wordt echter geen enkele aansprakelijkheid aanvaard voor enige onvolledigheid, onjuistheid of anderszins, dan wel de gevolgen daarvan. Alle opgegeven maten en oppervlakten zijn indicatief.