Spring naar content
typeBovenwoning
woonoppervlakte70 m2
slaapkamers2
buitenruimteGeen tuin
bouwjaar1907
energielabelA

Brochure

Over de woning

Welkom bij deze parel van een woning! Dit gerenoveerde appartement gelegen in het Liskwartier is werkelijk helemaal klaar voor zijn nieuwe eigenaar. De woning is gelegen op de eerste verdieping en voorzien van twee slaapkamers, een strakke badkamer en gloednieuwe keuken. Met een authentieke buitenkant maar super moderne binnenkant is dit wellicht precies wat jij zoekt?

Buurtomschrijving
Het Liskwartier is erg geliefd en kenmerkt zich door vele lanen, singels en karakteristieke oude panden. Het is er rustig en erg fijn wonen terwijl de stedelijke voorzieningen zeer makkelijk te bereiken zijn. Zo is de woning gunstig gelegen ten opzichte van de uitvalswegen (A13 en A20), het openbaar vervoer (Centraal Station op ca. 10 minuten fietsen) en het bruisende stadscentrum. Ook bevinden zich diverse supermarkten, speciaalzaken en avondwinkels in de directe omgeving. Doordat het Liskwartier grenst aan het Oude Noorden hoef je niet per se naar het stadscentrum om de gezelligheid op te zoeken. Binnen no time begeef jij je op de Zwaanshals, Zaagmolenkade en het Noordplein met diverse horecaspots en unieke winkeltjes. Give it a try! Het populaire Vroesenpark en het Kralingse bos en de Plas zijn in de buurt gelegen voor een gezellige picknick, wandeling of sportieve activiteiten. Bijkomend pluspunt: de Gemeente Rotterdam heeft het Liskwartier benoemd tot een van de Rotterdamse kindvriendelijke wijken.

Indeling
Eerste verdieping:
Doormiddel van een gezamenlijke binnenkomst en een trap ga je van de begane grond naar de eerste verdieping. Hier vindt je de voordeur en zodra je de woning binnenstapt kom je op de overloop terecht. Je stapt de ruime living binnen waar twee grote ramen voor veel licht zorgen, de mooie strak gelegde vloer zorgt voor een warme sfeer. De mogelijkheden zijn oneindig betreffende de inrichting, je creëert gemakkelijk een gezellige woonkamer en een fijne eetkamer in deze open ruimte. Aan de andere zijde van de living is de gloednieuwe keuken geplaatst welke is voorzien van een inductiekookplaat, afzuigkap, vaatwasser, (combi?)oven, koelkast en vriezer. Meer heb je niet nodig toch? Als je terug de overloop opstapt is aan de voorzijde via 3 treden omhoog één van de twee slaapkamers te bereiken. Aan de achterzijde van de woning is de ruime master bedroom te vinden welke genoeg ruimte biedt voor een tweepersoonsbed en eventuele kledingkast of dressoir. Hiernaast is de moderne badkamer gesitueerd. In de badkamer is een douchecabine met regen douche geplaatst met op de muren marmerlook tegels wat het helemaal afmaakt!
Op de overloop is een separaat toilet aanwezig met dezelfde marmerlook als in de badkamer en een vaste kast waar de cv-ketel in is gevestigd.

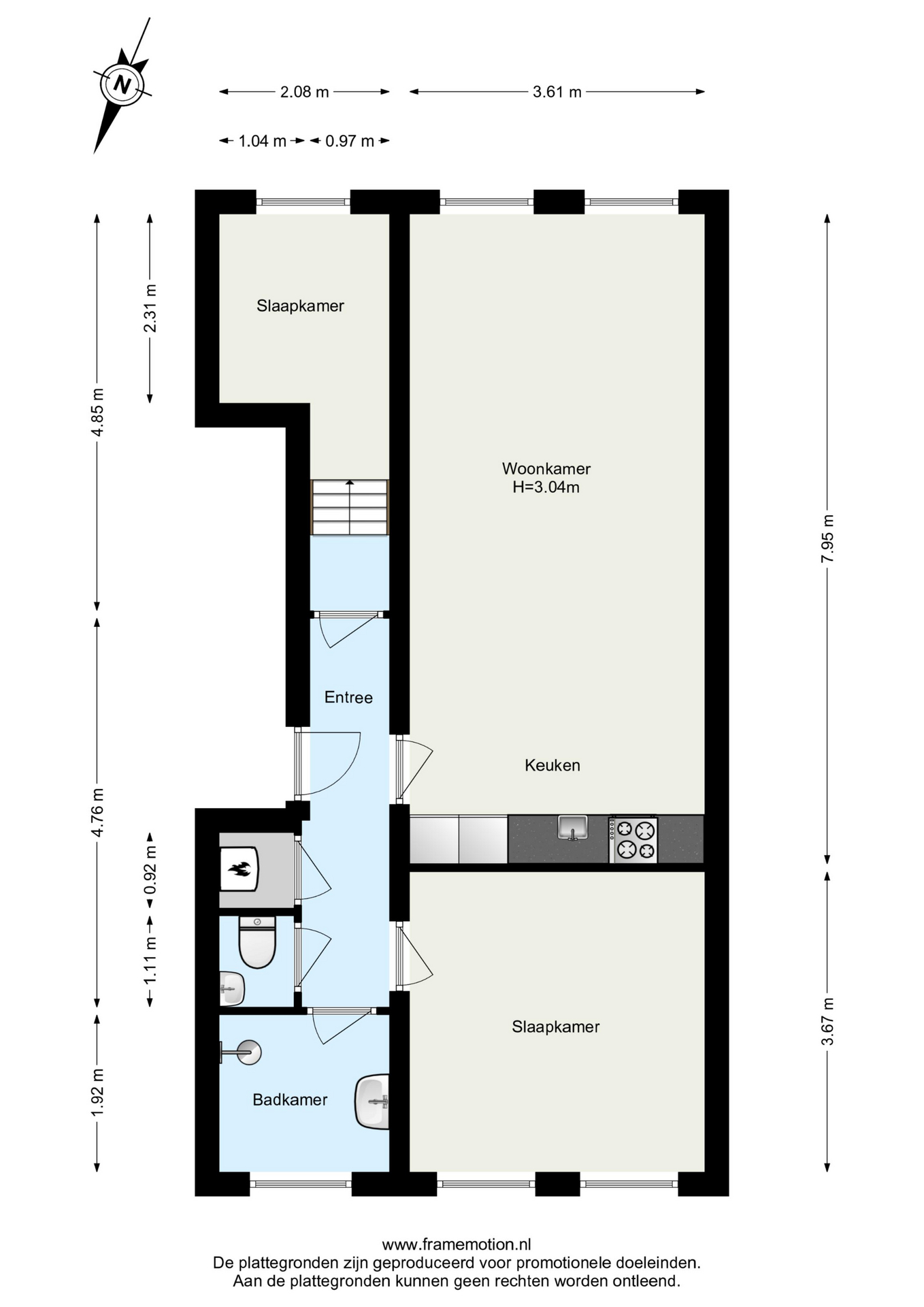
Afmetingen
Voor de afmetingen en indeling zie onze gedetailleerde plattegrond.

Bijzonderheden
• Bouwjaar: 1907
• Woonoppervlakte circa 70 m2
• Inhoud circa 258 m3
• Eigen grond
• Verwarming en warm water middels cv-ketel (bouwjaar 2016)
• Geheel voorzien van dubbele beglazing
• Goed functionerende, actieve Vereniging van Eigenaars; bijdrage circa € 141,- per maand
• In de koopovereenkomst wordt een niet-bewonersclausule opgenomen
• In de koopovereenkomst wordt een ouderdomsclausule opgenomen
• In de directe omgeving zijn alle dagelijkse voorzieningen te vinden, zoals openbaar vervoer, winkels, horeca,
goede verbinding tot uitvalswegen en recreatiemogelijkheden
• Oplevering in overleg

Wij nodigen je van harte uit om dit appartement in Rotterdam met eigen ogen te bewonderen.

Bel voor een vrijblijvende afspraak. We geven graag de mogelijkheden door!

De informatie is door ons met de nodige zorgvuldigheid samengesteld. Alle verstrekte informatie moet beschouwd worden als een uitnodiging tot het doen van een bod of om in onderhandeling te treden. Onzerzijds wordt echter geen enkele aansprakelijkheid aanvaard voor enige onvolledigheid, onjuistheid of anderszins, dan wel de gevolgen daarvan. Alle opgegeven maten en oppervlakten zijn indicatief.

Kenmerken

Financieel
Vraagprijs
€ 335.000,-
Status
Verkocht
Bouw
Soort bouw
Bestaande bouw
Bouwjaar
1907
Oppervlakten en inhoud
Wonen
70 m2
Overige inpandige ruimte
0 m2
Gebouwgebonden buitenruimte
0 m2
Inhoud
258 m3
Indeling
Aantal kamers
3
Aantal badkamers
1
Aantal slaapkamers
2
Aantal woonlagen
1
Energie en isolatie
Energieklasse
A
Isolatievormen
Dakisolatie, Muurisolatie, Dubbelglas
Warm water
CV ketel
Verwarming
CV ketel
CV ketel type
Intergas CW4
Buitenruimte
Type buitenruimte(s)
Geen tuin
Ligging
Parkeer faciliteiten
Betaald parkeren, Parkeervergunningen
Ligging
In woonwijk

Plattegronden

Ligging en beschikbare woningen in de buurt

Wat klanten zeggen over Maarten: