Spring naar content
typeBovenwoning
woonoppervlakte61 m2
slaapkamers2
buitenruimteGeen tuin
bouwjaar1881
energielabelB

Brochure

Over de woning

** Inschrijfprocedure: Middels een inschrijving zal besloten worden met welke partij een overeenstemming bereikt wordt. Mocht je een bod willen uitbrengen, kan je dit doen maandag 8 december 2025 12:00 uur. Het recht van gunning is voorbehouden aan verkoper. **

Heerlijk wonen in het Oude Noorden! Dit moderne, zeer recent gerenoveerde en stijlvol afgewerkte 3-kamerappartement ligt in een karakteristiek pand uit 1881. De open keuken en luxe badkamer geven het geheel een strakke uitstraling. Met twee slaapkamers en een fijne leefruimte is dit de ideale plek om thuis te komen. Instapklaar wonen in één van de leukste stukjes van Rotterdam? Dit is je kans!

Het Oude Noorden zit vol met verrassingen en is met haar urban hotspots hip, hipper, hipst! Straten als Zwaanshals en Zaagmolenkade hebben een super leuk aanbod op het gebied van fashion, food en design en dankzij de vele horecazaakjes kun je elke avond weer iets nieuws ontdekken. Van bijzondere bistro’s, restaurants en koffiezaakjes tot een eigen bierbrouwerij: er is voor ieder wat wils. Het Oude Noorden heeft meerdere pleinen waar regelmatig evenementen worden georganiseerd, zoals de Rotterdamse Oogst Markt op het Noordplein en sport- en spelfaciliteiten op het Johan Idaplein. Ook de Hofbogen, vol creatieve ondernemers, ligt in de nabije omgeving. Met een dak van 1,9 km lang is het Luchtpark de Hofbogen een unieke beleving om te loungen in de buitenlucht. Naar groen hoef je niet lang op zoek met de nabijheid van het Kralingse Bos en de oevers van de Rotte. De woning ligt dichtbij supermarkten, scholen en kinderdagverblijven. Bovendien is het stadscentrum vlakbij (10 minuten fietsen) en bevindt het openbaar vervoer (station Rotterdam Noord, tram en Centraal Station) zich in de buurt. De uitvalswegen (A13 en A20) zijn zeer gunstig gelegen.

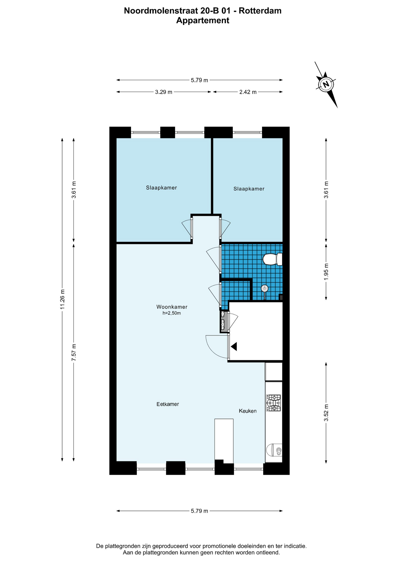
Indeling
Begane grond:
Afgesloten entree met trapopgang naar de eerste verdieping. Het portiek wordt gedeeld met de buren.

Eerste etage:
Bij binnenkomst valt meteen op hoe sfeervol en stijlvol dit appartement is! Je stapt direct een prachtige en lichte leefruimte binnen met drie grote raampartijen die zorgen voor een prettige lichtinval en een levendig uitzicht over de straat. De charmante visgraatvloer en strak afgewerkte wanden combineren warmte met een moderne look. Aan de voorzijde bevindt zich de keuken met het eetgedeelte. De stijlvolle keuken trekt meteen de aandacht dankzij de mooie keukenbar en marmerenlook aanrechtblad. Wat een plaatje! Verder is deze voorzien van een 4-pits gasfornuis, afzuigkap, combi-oven, koel-vriescombinatie, vaatwasser en is de cv-opstelling netjes weggewerkt. Een plek waar kookplezier en gezellig samenzijn moeiteloos samengaan, mede door de open verbinding met de rest van de living. Vanuit de woonkamer is de ruime berging te bereiken met een aansluiting voor de wasmachine. 

Aan de achterzijde van de woning bevinden zich twee ruime slaapkamers. Beide kamers zijn keurig afgewerkt en bieden volop mogelijkheden om naar eigen wens in te richten. Denk aan een werkkamer, hobbyruimte of zelfs een luxe inloopkast. De luxueuze badkamer is een fijne plek om volledig tot rust te komen. De badkamer is compleet uitgerust met plafondspotjes, een ruime inloopdouche met rainshower, een zwevend toilet, handdoekradiator en een elegante wastafel met dubbele kranen en een zwevend meubel. Tevens bevind zich de meterkast direct naast de voordeur aan de buitenzijde.

Afmetingen
Voor de afmetingen en indeling zie onze gedetailleerde plattegrond.

Bijzonderheden
• Bouwjaar: 1881
• Woonoppervlakte circa 61 m2
• Inhoud circa 193 m3
• Eigen grond
• Woning volledig gerenoveerd in 2025
• Energielabel B
• Verwarming en warm water middels cv-ketel (2023)
• Volledig voorzien van dubbele beglazing
• VvE recent opgericht: de maandelijkse bijdrage wordt vastgesteld op € 147,- en zal o.a. opstalverzekering, inschrijving KvK en VvE-vergadering omvatten
• In de koopovereenkomst wordt een niet-bewonersclausule opgenomen
• In de koopovereenkomst wordt een ouderdomsclausule opgenomen
• In de directe omgeving zijn alle dagelijkse voorzieningen te vinden, zoals openbaar vervoer, winkels, horeca, goede verbinding tot uitvalswegen en recreatiemogelijkheden
• Oplevering in overleg.

Wij nodigen je van harte uit om dit appartement in Rotterdam met eigen ogen te bewonderen.

Bel voor een vrijblijvende afspraak. We geven graag de mogelijkheden door!

De informatie is door ons met de nodige zorgvuldigheid samengesteld. Alle verstrekte informatie moet beschouwd worden als een uitnodiging tot het doen van een bod of om in onderhandeling te treden. Onzerzijds wordt echter geen enkele aansprakelijkheid aanvaard voor enige onvolledigheid, onjuistheid of anderszins, dan wel de gevolgen daarvan. Alle opgegeven maten en oppervlakten zijn indicatief.

Kenmerken

Financieel
Vraagprijs
€ 300.000,-
Status
Verkocht
Bouw
Soort bouw
Bestaande bouw
Bouwjaar
1881
Oppervlakten en inhoud
Wonen
61 m2
Overige inpandige ruimte
0 m2
Gebouwgebonden buitenruimte
0 m2
Inhoud
193 m3
Indeling
Aantal kamers
3
Aantal badkamers
1
Aantal slaapkamers
2
Aantal woonlagen
1
Energie en isolatie
Energieklasse
B
Isolatievormen
Muurisolatie, Dubbelglas
Warm water
CV ketel
Verwarming
CV ketel
Buitenruimte
Type buitenruimte(s)
Geen tuin
Ligging
Parkeer faciliteiten
Betaald parkeren, Parkeervergunningen
Ligging
In centrum

Plattegronden

Ligging en beschikbare woningen in de buurt

Wat klanten zeggen over Maarten: