Spring naar content
typeBovenwoning
woonoppervlakte106 m2
slaapkamers2
buitenruimteGeen tuin
bouwjaar1897
energielabelA

Brochure

Over de woning

Op één van de mooiste locaties aan de rivier ligt deze dubbele bovenwoning. Perfect voor wie op zoek is naar een woning met karakter en schitterend uitzicht over de Maas en de stad. De authentieke elementen zoals glas-in-loodramen en een klassieke schouw gaan moeiteloos samen met comfort en ruimte, verdeeld over twee goed ingedeelde woonlagen.

Ben jij op zoek naar een plek die centraal gelegen is en waar je ook tot rust kunt komen? Het Noordereiland kan jou dit bieden! De buurt kent een gemoedelijke sfeer waar je dorps woont in de stad. Dit betekent voor ieder wat wils! Doordat de buurt omringd wordt door de Nieuwe Maas aan de noordkant en de Koningshaven aan de zuidkant is de ligging uniek te noemen. Ontdek hier leuke zaakjes, zoals de koffiebar Koozie en Fadi’s voor Arabic food. Door de verbinding met de Erasmusbrug en de Willemsbrug bereik je binnen no time het bruisende stadscentrum en bezoek je makkelijk de populaire plekken. De Witte de Withstraat, Oude Haven en Pannekoekstraat zijn o.a. voorzien van verschillende leuke hotspots. Ook de Kop van Zuid en Katendrecht, met haar Fenix Food Factory en Foodhallen, liggen in de directe omgeving waar je kunt genieten van culinaire of recreatieve uitstapjes. Tevens bevindt zich op het Noordereiland ook de opstapplaats voor de watertaxi. Noordereiland it is!

Indeling
Begane grond:
Trapopgang naar de derde verdieping.

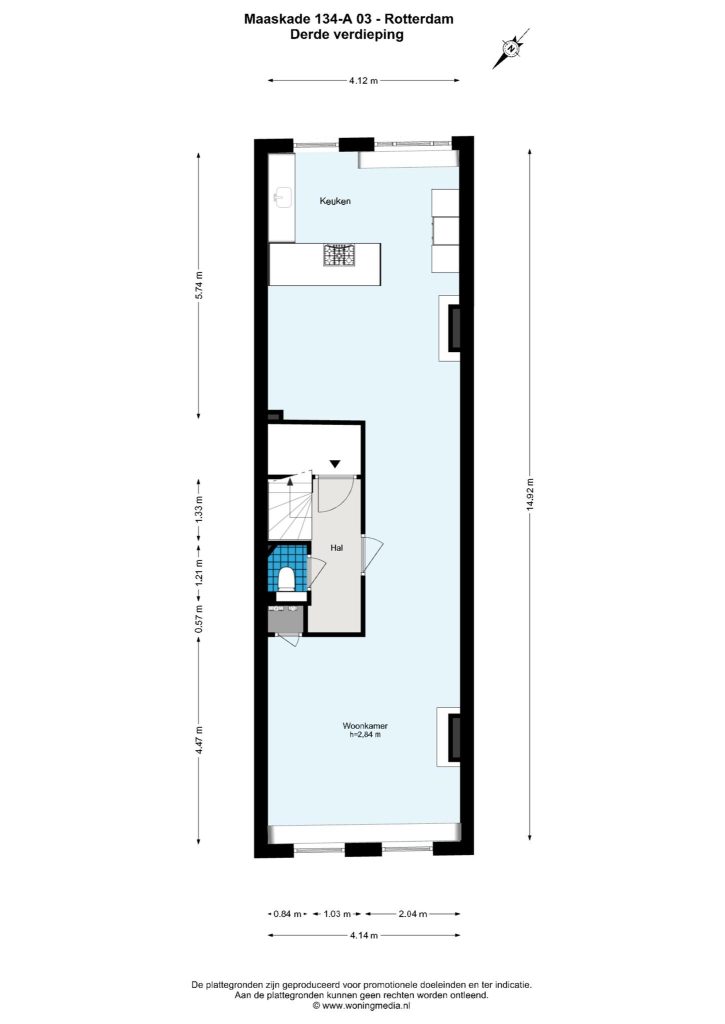
Derde verdieping:
In de hal tref je de praktische garderobekast en het separate toilet. Van hieruit leidt de trap je naar de slaapverdieping en heb je toegang tot de living.
De woonkamer ademt karakter, met glas-in-loodramen, een klassieke schouw en brede vensterbanken met stijlvolle ombouw. De grote raampartijen zorgen voor een fijne lichtinval en prachtig zicht op de Maas en de skyline van Rotterdam. Een heerlijke plek waar je nooit uitgekeken raakt. De keuken, in een praktische L-opstelling, is voorzien van een gaskookplaat, koel-/vriescombinatie, vaatwasser en een gezellige bar: ideaal voor een snel ontbijt of een glas wijn tijdens het koken.

Vierde verdieping:
De slaapverdieping biedt twee comfortabele slaapkamers, rijk aan licht en ruimte. Naast een praktische bergkast met de opstelplaats voor de cv, is er een ruime, volledig betegelde badkamer. Deze is compleet uitgerust met een ligbad, aparte douche, een modern wastafelmeubel en een tweede toilet, comfortabel en stijlvol ingericht.

Afmetingen
Voor de afmetingen en indeling zie onze gedetailleerde plattegrond.

Bijzonderheden
• Bouwjaar: 1897
• Woonoppervlakte circa 106m2
• Inhoud circa 381m3
• Eigen grond
• Energielabel: A
• Verwarming en warm water middels cv-ketel (bouwjaar 2010)
• Voorzien van dubbele beglazing
• Goed functionerende, actieve Vereniging van Eigenaars; bijdrage circa € 94,63 per maand
• In de koopovereenkomst wordt een niet-bewonersclausule opgenomen
• In de koopovereenkomst wordt een ouderdomsclausule opgenomen
• In de directe omgeving zijn alle dagelijkse voorzieningen te vinden, zoals openbaar vervoer, winkels, horeca,
goede verbinding tot uitvalswegen en recreatiemogelijkheden
• Oplevering in overleg.

Wij nodigen je van harte uit om deze dubbele bovenwoning in Rotterdam met eigen ogen te
bewonderen.

Bel voor een vrijblijvende afspraak. We geven graag de mogelijkheden door!

De informatie is door ons met de nodige zorgvuldigheid samengesteld. Alle verstrekte informatie moet beschouwd worden als een uitnodiging tot het doen van een bod of om in onderhandeling te treden. Onzerzijds wordt echter geen enkele aansprakelijkheid aanvaard voor enige onvolledigheid, onjuistheid of anderszins, dan wel de gevolgen daarvan. Alle opgegeven maten en oppervlakten zijn indicatief.

Kenmerken

Financieel
Vraagprijs
€ 465.000,-
Status
Verkocht
Bouw
Soort bouw
Bestaande bouw
Bouwjaar
1897
Oppervlakten en inhoud
Wonen
106 m2
Overige inpandige ruimte
0 m2
Gebouwgebonden buitenruimte
0 m2
Inhoud
381 m3
Indeling
Aantal kamers
3
Aantal badkamers
1
Aantal slaapkamers
2
Aantal woonlagen
2
Energie en isolatie
Energieklasse
A
Warm water
CV ketel
Verwarming
CV ketel
Buitenruimte
Type buitenruimte(s)
Geen tuin
Ligging
Parkeer faciliteiten
Betaald parkeren, Parkeervergunningen
Ligging
Aan water, In woonwijk, Vrij uitzicht, Aan vaarwater

Plattegronden

Ligging en beschikbare woningen in de buurt

Wat klanten zeggen over Maarten: