Spring naar content
typeBovenwoning
woonoppervlakte110 m2
slaapkamers3
buitenruimteZonneterras
bouwjaar1934
energielabelE

Brochure

Over de woning

Stap binnen in deze sfeervolle dubbele bovenwoning en laat je verrassen. De tweede verdieping biedt een indrukwekkende doorzonwoonkamer van ruim 12 meter lang met grote raampartijen, glas-in-lood details en een warme houten vloer. De open keuken met bar is dé plek voor lange ontbijtjes of borrels aan het aanrecht terwijl het westelijk gelegen balkon uitnodigt voor een moment in de avondzon. Een aparte werk- of hobbykamer maakt deze verdieping compleet.
Boven vind je de ruime hoofdslaapkamer met openslaande deuren naar een tweede balkon, een comfortabele tweede slaapkamer én een luxe badkamer in hotelstijl, voorzien van een ligbad, inloopdouche en modern sanitair, een privé wellness aan huis.
En als kers op de taart: het riante dakterras van circa 18 m². Hier geniet je van weids uitzicht over de stad, rust en zon, in een setting die voelt als je eigen rooftop lounge.

Het Liskwartier is erg geliefd en kenmerkt zich door vele lanen, singels en karakteristieke oude panden. Het is er rustig en erg fijn wonen terwijl de stedelijke voorzieningen zeer makkelijk te bereiken zijn. Zo is de woning gunstig gelegen ten opzichte van de uitvalswegen (A13 en A20), het openbaar vervoer (Centraal Station op ca. 10 minuten fietsen en de tram stopt voor de deur) en het bruisende stadscentrum. Ook bevinden zich diverse supermarkten, speciaalzaken en avondwinkels in de directe omgeving. Doordat het Liskwartier grenst aan het Oude Noorden hoef je niet per se naar het stadscentrum om de gezelligheid op te zoeken. Binnen no time begeef jij je op de Zwaanshals, Zaagmolenkade en het Noordplein met diverse horecaspots en unieke winkeltjes. Give it a try! Het populaire Vroesenpark en het Kralingse bos en de Plas zijn in de buurt gelegen voor een gezellige picknick, wandeling of sportieve activiteiten. Bijkomend pluspunt: de Gemeente Rotterdam heeft het Liskwartier benoemd tot een van de Rotterdamse kindvriendelijke wijken.

Indeling
Begane grond
Entree met trapopgang naar de tweede verdieping.

Tweede verdieping
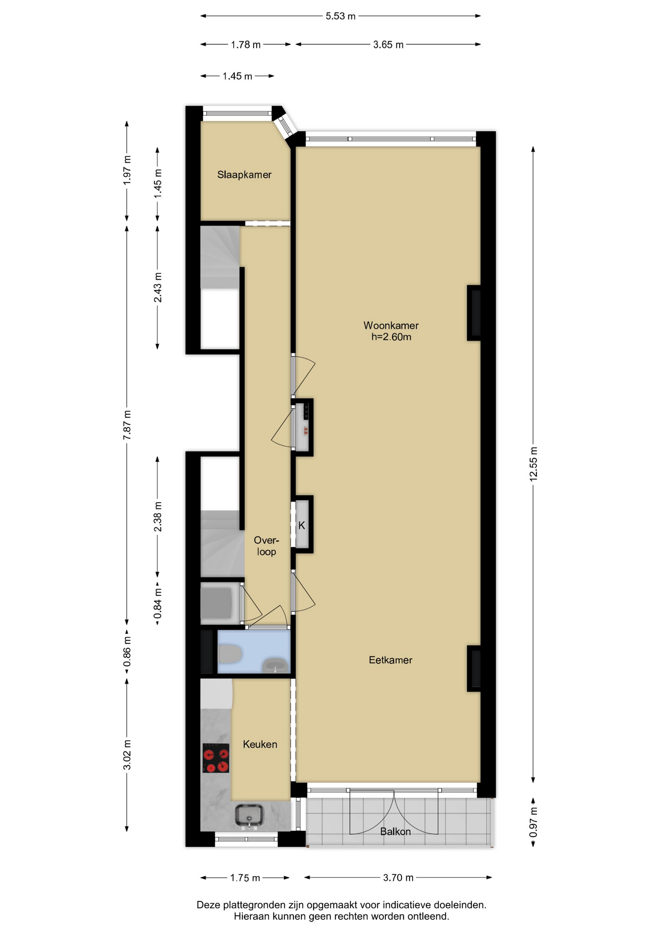
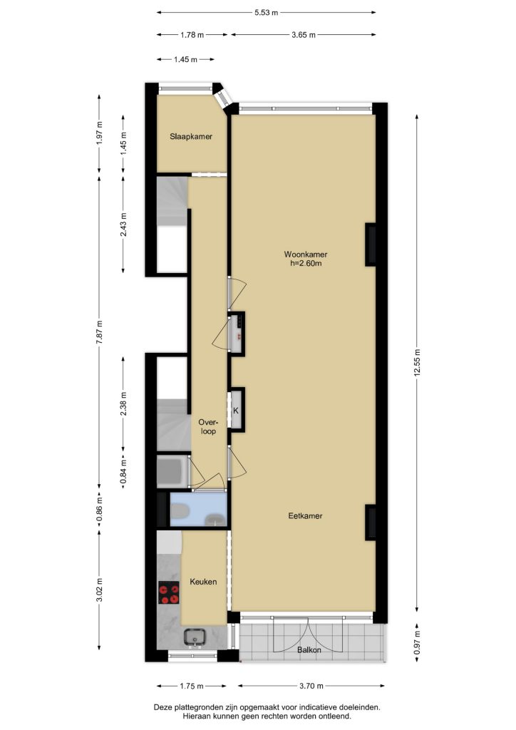
Zodra je de woning betreedt kom je in de lange hal welke je naar de leefruimtes leidt. Een open garderobenis biedt praktische opbergruimte voor jassen en schoenen en halverwege de hal bevindt zich het separate toilet. De woonkamer en eetkamer vormen samen een uitnodigend geheel met een indrukwekkende lengte van ruim 12 meter. Wat direct opvalt zijn de grote raampartijen aan weerszijden, die het daglicht rijkelijk binnenlaten. De glas-in-lood bovenlichten voegen een warme, klassieke sfeer toe, die perfect samengaat met de houten vloerdelen. Je hebt hier toegang tot het balkon welke gelegen is op het westen.
De open keuken is compleet met een stijlvolle bar waar je gezellig kunt aanschuiven voor het ontbijt of een goed glas wijn. Strak wit gecombineerd met RVS-accenten zorgen voor een tijdloos en fris geheel.
Tevens is op deze verdieping nog een extra kamer welke momenteel als werkkamer gebruikt wordt.

Derde verdieping
Trapopgang naar de vierde verdieping.

Vierde verdieping
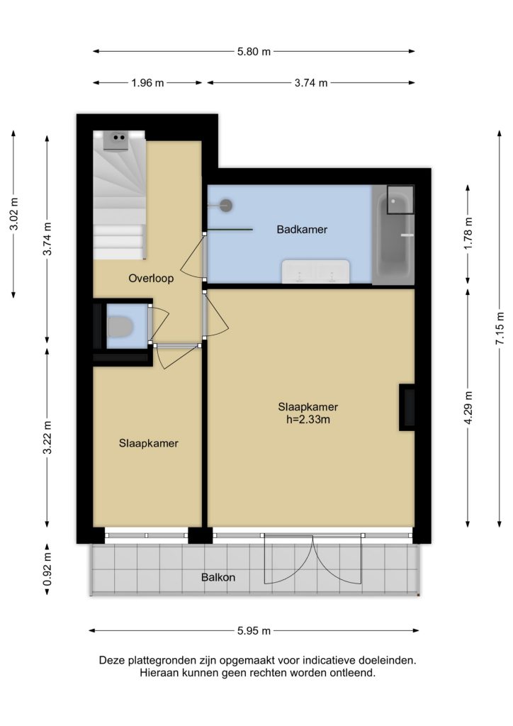
Op de bovenste verdieping van deze sfeervolle woning tref je de ruim bemeten hoofdslaapkamer, een lichte kamer met dubbele openslaande deuren naar het balkon. De tweede slaapkamer is ideaal als kinderkamer, thuiskantoor of logeerruimte. De badkamer is een ware wellness oase. Met zijn stijlvolle afwerking in grote antracietkleurige tegels, een modern wastafelmeubel en een vrijstaand ligbad, voelt deze ruimte als een spa aan huis. De inloopdouche met glazen wand en de designradiator maken het geheel compleet. Hier kom je tot rust na een lange dag, comfortabel, modern en tijdloos. Tot slot is er een separate toiletruimte op de overloop

Dakterras
Via een vaste trap bereik je misschien wel het meest verrassende onderdeel van deze woning, het riante dakterras van circa 18 m². Een oase van rust, zon en panoramisch uitzicht, midden in de dynamiek van de stad. Geniet van een ochtendkoffie in het eerste zonlicht, een gezellige zomeravond met vrienden onder de sterrenhemel of juist een ontspannen zondagmiddag met een goed boek en uitzicht op de skyline van Rotterdam, de Laurenskerk, de markante Willemsbrug én het levendige straatbeeld. Het dakterras is niet alleen een plek om te ontspannen, maar ook een verlengstuk van je woonbeleving

Afmetingen
Voor de afmetingen en indeling zie onze gedetailleerde plattegrond.

Bijzonderheden
• Bouwjaar: 1934
• Woonoppervlakte circa 110m2
• Inhoud circa 3968m3
• Eigen grond
• Energielabel: E
• Verwarming en warm water via cv ketel (Remeha, bouwjaar 2024)
• Grotendeels voorzien van dubbele beglazing
• Goed functionerende, actieve Vereniging van Eigenaars; bijdrage circa € 150,- per maand
• In de koopovereenkomst wordt een ouderdomsclausule opgenomen
• In de directe omgeving zijn alle dagelijkse voorzieningen te vinden, zoals openbaar vervoer, winkels, horeca, goede verbinding tot uitvalswegen en recreatiemogelijkheden
• Oplevering in overleg.

Wij nodigen je van harte uit om deze dubbele bovenwoning in Rotterdam met eigen ogen te
bewonderen.

Bel voor een vrijblijvende afspraak. We geven graag de mogelijkheden door!

De informatie is door ons met de nodige zorgvuldigheid samengesteld. Alle verstrekte informatie moet beschouwd worden als een uitnodiging tot het doen van een bod of om in onderhandeling te treden. Onzerzijds wordt echter geen enkele aansprakelijkheid aanvaard voor enige onvolledigheid, onjuistheid of anderszins, dan wel de gevolgen daarvan. Alle opgegeven maten en oppervlakten zijn indicatief.

Kenmerken

Financieel
Vraagprijs
€ 475.000,-
Status
Verkocht
Bouw
Soort bouw
Bestaande bouw
Bouwjaar
1934
Oppervlakten en inhoud
Wonen
110 m2
Overige inpandige ruimte
0 m2
Gebouwgebonden buitenruimte
27 m2
Inhoud
396 m3
Indeling
Aantal kamers
4
Aantal badkamers
1
Aantal slaapkamers
3
Aantal woonlagen
2
Energie en isolatie
Energieklasse
E
Isolatievormen
Vloerisolatie, Grotendeels dubbelglas
Warm water
CV ketel
Verwarming
CV ketel, Elektrische boiler eigendom
CV ketel type
Remeha
Buitenruimte
Type buitenruimte(s)
Zonneterras
Ligging
Parkeer faciliteiten
Openbaar parkeren, Betaald parkeren, Parkeervergunningen
Ligging
In woonwijk

Plattegronden

Ligging en beschikbare woningen in de buurt

Wat klanten zeggen over Maarten: