Spring naar content
typeBenedenwoning
woonoppervlakte130 m2
slaapkamers2
buitenruimteAchtertuin
bouwjaar1937
energielabelC

Brochure

Over de woning

Wauw-effect bij binnenkomst gegarandeerd! Deze stijlvolle benedenwoning op de hoek springt direct in het oog door de strakke afwerking en sfeervolle details. Verdeeld over twee woonlagen, met een royale woonoppervlakte van ca. 130 m² en een mogelijkheid tot het creëren van en derde slaapkamer, is dit een plek waar comfort en karakter naadloos samenkomen. De luxe open keuken met kookeiland vormt het hart van de woning en de warme visgraatvloer voegt direct sfeer toe. En alsof dat nog niet genoeg is, geniet je aan de achterzijde van een binnenplaats van ca. 11 m² op het zuidwesten. Zie jij jezelf hier al thuiskomen?

De populaire jaren ’30 buurt Blijdorp is zeer centraal gelegen en staat garant voor plezierig wonen. Hier wonen betekent groen en rust om je heen gecombineerd met alle dagelijkse voorzieningen in de nabije omgeving. Denk hierbij aan supermarkten, speciaalzaken, restaurants, cafés, scholen en sportfaciliteiten. In de buurt bevindt zich het bekende Vroesenpark, de (tweede) favoriete achtertuin van menig Rotterdammer. Zodra de zon schijnt, verandert dit stadspark in een ‘hangout spot’ en heerst er een erg gezellige vibe. Plus: barbecueën mag gewoon én er vinden regelmatig leuke (food)events plaats. Sportievelingen kunnen zich uitleven in het Roel Langerakpark op de vrij toegankelijke atletiekbaan of discgolf court. Of ontdek de wandelpromenade richting de dierentuin waarbij je tegelijkertijd kunt genieten van een gezellig dagje uit in Diergaarde Blijdorp. Het naastgelegen Oude Noorden en de Provenierswijk zijn ook zeker een bezoekje waard. Hier vind je tevens veel op het gebied van food, fashion & design. Aan gezelligheid geen gebrek! Daarnaast bereik je binnen no time het bruisende stadscentrum (10 minuten fietsen), openbaar vervoer (o.a. Centraal Station en metrostation Blijdorp zeer dichtbij) en de uitvalswegen (A13 en A20). Ervaar het hier allemaal!

Indeling
Begane grond
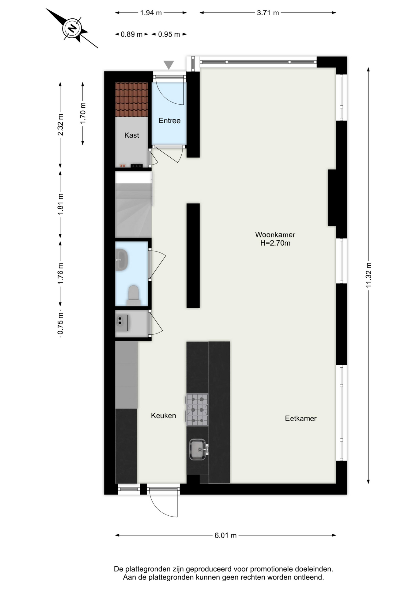
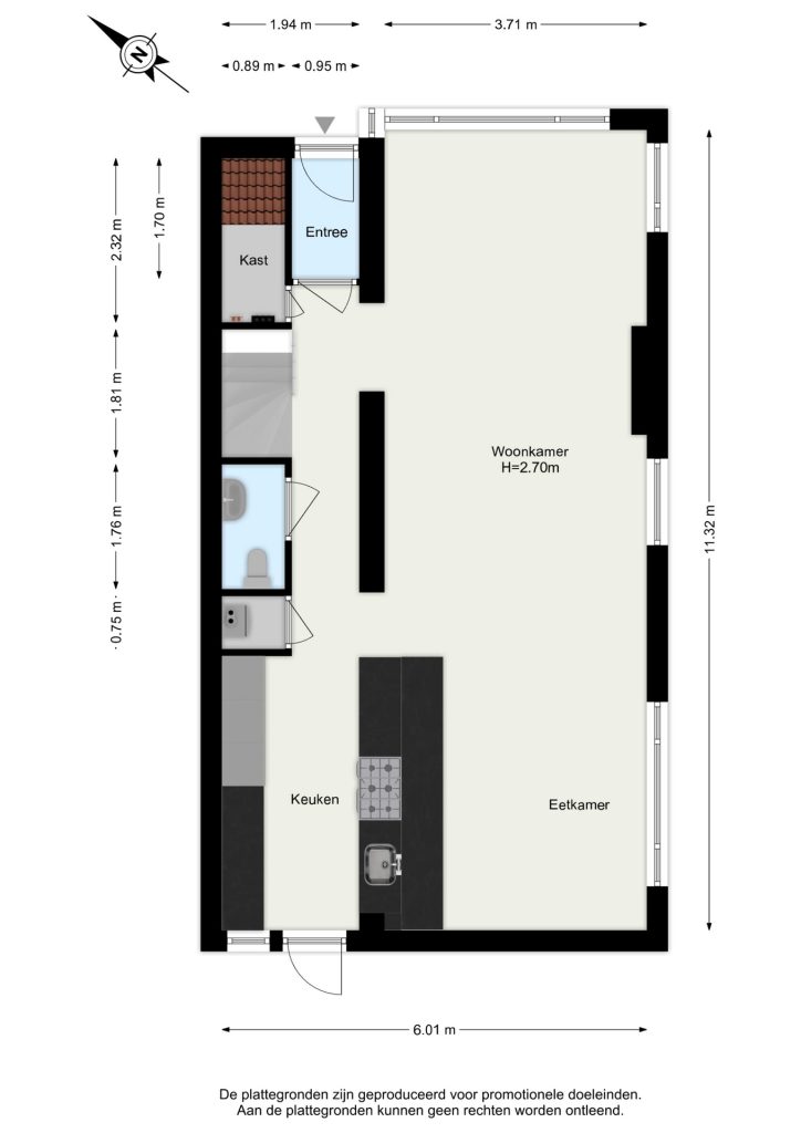
Binnenkomst in een nette entree met zwart stalen deur naar de hal, waar zich een separaat toilet met fonteintje, een vaste kast en de meterkast bevinden. Vanuit de hal stap je de royale en lichte woonkamer binnen, die direct een gevoel van ruimte en comfort uitstraalt dankzij de brede raampartijen en de hoekligging. De moderne open keuken is uitgerust met een strak kookeiland, hoogwaardige inbouwapparatuur, zoals een gas-kookplaat, afzuigkap, vaatwasser (2022), oven, koelkast en vriezer, een composiet werkblad en veel kastruimte. Hier kook je met plezier voor familie of vrienden. Over de gehele verdieping ligt een prachtige visgraatvloer, dit geeft de woning extra veel charme!

Via de openslaande deur in de keuken bereik je de binnenplaats (ca. 11 m²), gelegen op het zuidwesten. Deze is verzorgd aangelegd en beschikt over een kleine vrijstaande kunststof berging, ideaal voor het stallen van de tuinspullen.

Souterrain
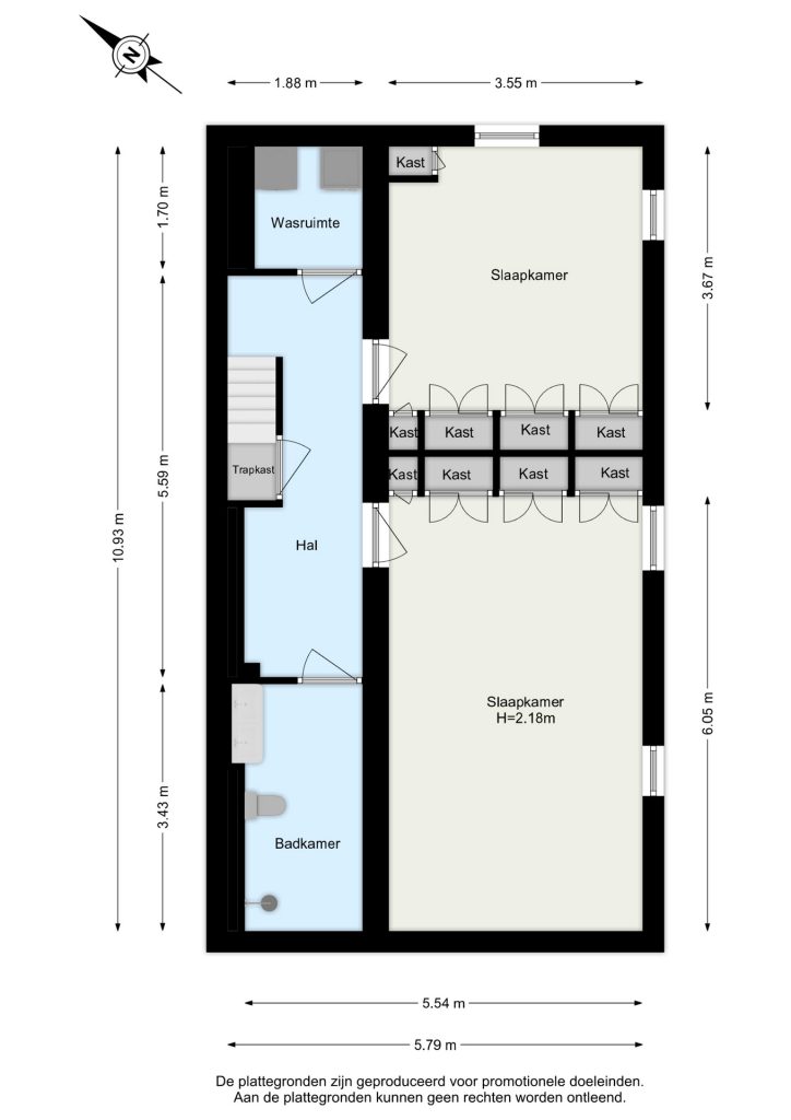
In het souterrain bevinden zich twee ruime slaapkamers, beide met een verzorgde afwerking en waarbij de houten balken aan het plafond zorgen voor extra sfeer. Allebei de kamers hebben vaste kastenwanden wat zorgt voor voldoende opbergruimte. Daarnaast bestaat de mogelijkheid om een derde slaapkamer te realiseren, afhankelijk van de woonwens.

De badkamer heeft een karaktervolle uitstraling, mede dankzij de authentieke (dubbele) wastafel die afkomstig is uit een oude school. Verder is de badkamer voorzien van een luxe inloopdouche, handdoekradiator én een tweede toilet. Tot slot is er in de hal nog een aparte wasruimte met aansluitingen voor wasmachine en droger en een trapkast.

Afmetingen
Voor de afmetingen en indeling zie onze gedetailleerde plattegrond.

Bijzonderheden
• Bouwjaar: 1937
• Woonoppervlakte circa 130 m2
• Inhoud circa 425 m3
• Eigen grond
• Beschermd stadsgezicht
• Energielabel C
• Verwarming en warm water middels cv-ketel (2023)
• Volledig voorzien van dubbele beglazing (HR+)
• Goed functionerende, actieve Vereniging van Eigenaars; bijdrage circa €140,- per maand
• In de koopovereenkomst wordt een ouderdomsclausule opgenomen
• In de directe omgeving zijn alle dagelijkse voorzieningen te vinden, zoals openbaar vervoer, winkels, horeca, goede verbinding tot uitvalswegen en recreatiemogelijkheden
• Oplevering in overleg.

Wij nodigen je van harte uit om dit appartement in Rotterdam met eigen ogen te bewonderen.

Bel voor een vrijblijvende afspraak. We geven graag de mogelijkheden door!

De informatie is door ons met de nodige zorgvuldigheid samengesteld. Alle verstrekte informatie moet beschouwd worden als een uitnodiging tot het doen van een bod of om in onderhandeling te treden. Onzerzijds wordt echter geen enkele aansprakelijkheid aanvaard voor enige onvolledigheid, onjuistheid of anderszins, dan wel de gevolgen daarvan. Alle opgegeven maten en oppervlakten zijn indicatief.

Kenmerken

Financieel
Vraagprijs
€ 565.000,-
Status
Verkocht
Bouw
Soort bouw
Bestaande bouw
Bouwjaar
1937
Oppervlakten en inhoud
Wonen
130 m2
Overige inpandige ruimte
0 m2
Gebouwgebonden buitenruimte
0 m2
Inhoud
425 m3
Indeling
Aantal kamers
3
Aantal badkamers
1
Aantal slaapkamers
2
Aantal woonlagen
1
Voorzieningen
Voorzieningen
Mechanische ventilatie
Energie en isolatie
Energieklasse
C
Isolatievormen
Dubbelglas, HR glas
Warm water
CV ketel
Verwarming
CV ketel
Buitenruimte
Type buitenruimte(s)
Achtertuin
Hoofdtuin
Achtertuin
Hoofdtuin opp.
11 m2
Hoofdtuin positie
Zuidwest
Bergruimte
Soort
Vrijstaand kunststof
Ligging
Parkeer faciliteiten
Betaald parkeren, Parkeervergunningen
Ligging
In woonwijk

Plattegronden

Ligging en beschikbare woningen in de buurt

Wat klanten zeggen over Maarten: