Spring naar content
typePortiekflat
woonoppervlakte83 m2
slaapkamers3
buitenruimteGeen tuin
bouwjaar1981
energielabelB

Brochure

Over de woning

Ben je op zoek naar een ruim en instapklaar appartement in één van de mooiste wijken van Rotterdam? Welkom aan de Lambertusstraat 49 A, een heerlijk licht en modern afgewerkt 4-kamerappartement op de derde verdieping. Hier woon je rustig, in het hart van Kralingen, op loopafstand van gezellige winkels, horeca en het Kralingse Bos. De woning beschikt over een royale woonkamer met open keuken, drie slaapkamers, een praktische bijkeuken, een handige berging in de hal én een zonnig balkon op het zuidwesten. Daarnaast is er nog een eigen berging in de onderbouwgelegen. Dankzij de luxe keuken en badkamer, de visgraat PVC-vloer en het keurige onderhoud kun je hier direct je meubels neerzetten en genieten.

Kralingen Oost is een karakteristieke buurt met een historische uitstraling en is van oudsher een chique wijk in Rotterdam. Tegenwoordig is Kralingen Oost van alle markten thuis! De buurt huisvest voetbalclub Excelsior, het Arboretum Trompenburg, de Erasmus Universiteit en Hogeschool Rotterdam. In de directe omgeving vind je gezellige winkels en horeca. Denk hierbij aan de hippe Lusthofstraat, de Oudedijk en de Kortekade. Verder is het Kralingse Bos en de plas met veel recreatiemogelijkheden, groen en gezelligheid om de hoek. Een fijne plek waar je ‘s zomers gezellig kunt picknicken of barbecueën en ’s winters een heerlijke frisse neus kunt halen tijdens een (avond)wandeling. In de nabije omgeving is de mooie jachthaven gelegen in het Boerengat. Hiervandaan kan je o.a. een watertaxi nemen die je snel op de allerleukste plekken van Rotterdam brengt. Ook is het centrum van Rotterdam slechts 10 minuten fietsen of makkelijk te bereiken met het openbaar vervoer (tram en metro). Tot slot zijn er verschillende sportverenigingen, de Kralingse Zoom met de Hogeschool en uitvalswegen binnen handbereik. Geniet van al het moois dat Kralingen te bieden heeft!

Indeling
Begane grond:
Eigen entree met trapopgang naar de verdiepingen.

Derde verdieping:
Bij binnenkomst in de ruime hal valt direct het nette afwerkingsniveau op. In de hal bevindt zich een handige bergkast, ideaal voor het opbergen van proviand, schoonmaakspullen of andere benodigdheden. Vanuit de hal heb je toegang tot alle vertrekken.
De woonkamer, bereikbaar middels de stijlvolle stalen deur, is een heerlijke leefruimte waar het licht rijkelijk naar binnen valt dankzij grote ramen. Doordat de deuren verhoogd zijn krijg je een extra ruimtelijk gevoel. De visgraat PVC-vloer geeft de ruimte een warme, moderne uitstraling en loopt vloeiend door in alle ruimtes. De luxe keuken, uitgevoerd in stijlvolle materialen, is compleet uitgerust met onder andere een inductiekookplaat, vaatwasser, koel-/vriescombinatie en combi-oven, ideaal voor kookliefhebbers en gezellige diners met vrienden of familie. Grenzend aan de keuken bevindt zich een praktische bijkeuken. Hier vind je de aansluiting voor de wasmachine en de opstelplaats van de CV-ketel. Een fijne extra ruimte voor was en opslag!
Vanuit de keuken stap je zo het zonnige balkon op het zuidwesten op. Hier is het volop genieten van de middag- en avondzon.

Het appartement beschikt over drie comfortabele slaapkamers, elk voorzien van fijne lichtinval en voldoende ruimte voor een bed en kast, werkplek of hobbyhoek. Of je nu thuiswerkt, extra opbergruimte wenst of gasten een eigen kamer wilt bieden, hier kan het allemaal.
De badkamer is een echte eyecatcher en straalt modern comfort en stijl uit. Hier vind je een prachtige combinatie van materialen en kleuren: stijlvolle groene wandtegels in visgraatmotief, gecombineerd met grote, lichte vloertegels voor een chique uitstraling. De royale inloopdouche met glazen wand en moderne regen- en handdouche biedt een ultiem gevoel van luxe.
Daarnaast beschikt de badkamer over een fraai houten wastafelmeubel met een design waskom en matzwarte kraan. Het toilet bevindt zich apart, wat extra comfort biedt voor bewoners en gasten.

Berging:
Op de begane grond is er bovendien een eigen berging. Handig voor je fiets, koffers of seizoensspullen.

Afmetingen
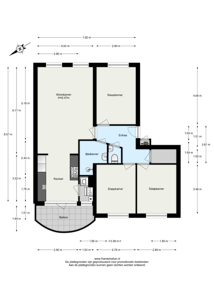
Voor de afmetingen en indeling zie onze gedetailleerde plattegrond.

Bijzonderheden
• Bouwjaar: 1981
• Woonoppervlakte circa 83m2
• Inhoud circa 248m3
• Gelegen op erfpachtgrond t/m 06-04-2088, waarvan de canon is afgekocht t/m 18-03-2065
• Verwarming en warm water middels cv ketel (bouwjaar 2022). Er zijn nieuwe moderne radiatoren aan gebracht
in de woning
• Volledig voorzien van dubbele beglazing
• Goed functionerende, actieve Vereniging van Eigenaars; bijdrage circa € 146,- per maand
• Zelfbewoningsplicht
• In de koopovereenkomst wordt een ouderdomsclausule opgenomen
• In de directe omgeving zijn alle dagelijkse voorzieningen te vinden, zoals openbaar vervoer,
winkels, horeca, goede verbinding tot uitvalswegen en recreatiemogelijkheden
• Oplevering in overleg.

Wij nodigen je van harte uit om deze bovenwoning in Rotterdam met eigen ogen te bewonderen.

Bel voor een vrijblijvende afspraak. We geven graag de mogelijkheden door!

De informatie is door ons met de nodige zorgvuldigheid samengesteld. Alle verstrekte informatie moet beschouwd worden als een uitnodiging tot het doen van een bod of om in onderhandeling te treden. Onzerzijds wordt echter geen enkele aansprakelijkheid aanvaard voor enige onvolledigheid, onjuistheid of anderszins, dan wel de gevolgen daarvan. Alle opgegeven maten en oppervlakten zijn indicatief.

Kenmerken

Financieel
Vraagprijs
€ 460.000,-
Status
Verkocht
Bouw
Soort bouw
Bestaande bouw
Bouwjaar
1981
Oppervlakten en inhoud
Wonen
83 m2
Overige inpandige ruimte
0 m2
Gebouwgebonden buitenruimte
7 m2
Inhoud
248 m3
Indeling
Aantal kamers
4
Aantal badkamers
1
Aantal slaapkamers
3
Aantal woonlagen
1
Voorzieningen
Voorzieningen
Mechanische ventilatie
Energie en isolatie
Energieklasse
B
Isolatievormen
Dubbelglas
Warm water
CV ketel
Verwarming
CV ketel
CV ketel type
Vaillant EcoTec Plus 25/32 CW4
Buitenruimte
Type buitenruimte(s)
Geen tuin
Bergruimte
Soort
Box
Voorzieningen
Voorzien van elektra
Ligging
Ligging
Aan rustige weg, In woonwijk

Plattegronden

Ligging en beschikbare woningen in de buurt

Wat klanten zeggen over Maarten: