Spring naar content
typeGalerijflat
woonoppervlakte79 m2
slaapkamers2
buitenruimteGeen tuin
bouwjaar1982
energielabelA

Brochure

Over de woning

Dit is wonen met een prachtig uitzicht over de Maas! Dit 4-kamerappartement, gelegen aan de sfeervolle kade op het Noordereiland, combineert het rustige, bijna dorps wonen met de levendigheid van het stadscentrum om de hoek. Naast het schitterende uitzicht beschikt de woning over maar liefst twee balkons, waar het op zonnige dagen heerlijk vertoeven is. Kortom, een unieke plek waar elke dag begint met een uitzicht dat nooit verveelt!

Ben jij op zoek naar een plek die centraal gelegen is en waar je ook tot rust kunt komen? Het Noordereiland kan jou dit bieden! De buurt kent een gemoedelijke sfeer waar je dorps woont in de stad. Dit betekent voor ieder wat wils! Doordat de buurt omringd wordt door de Nieuwe Maas aan de noordkant en de Koningshaven aan de zuidkant is de ligging uniek te noemen. Ontdek hier leuke zaakjes, zoals de koffiebar Koozie en Fadi’s voor Arabic food. Door de verbinding met de Erasmusbrug en de Willemsbrug bereik je binnen no time het bruisende stadscentrum en bezoek je makkelijk de populaire plekken. De Witte de Withstraat, Oude Haven en Pannekoekstraat zijn o.a. voorzien van verschillende leuke hotspots. Ook de Kop van Zuid en Katendrecht, met haar Fenix Museum en het gezellige Deliplein, liggen in de directe omgeving waar je kunt genieten van culinaire of recreatieve uitstapjes. Tevens bevindt zich op het Noordereiland ook de opstapplaats voor de watertaxi. Noordereiland it is!

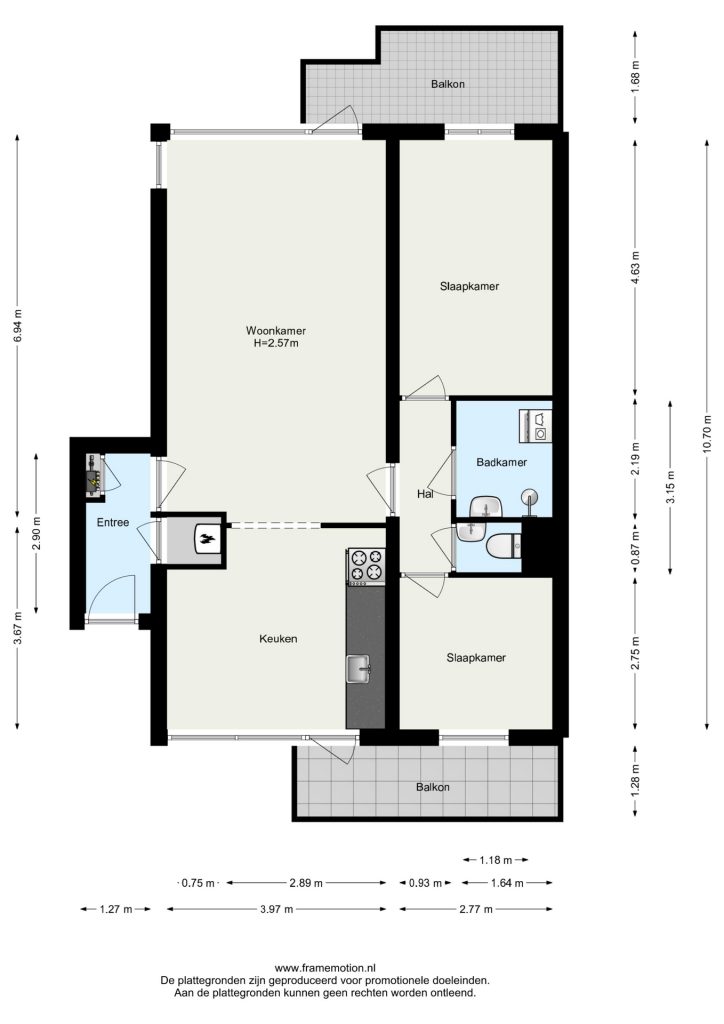
Indeling
Begane grond:
Centrale entree met belinstallatie, trappenhuis en liften. De openbare binnenplaats met speeltuin is ook op de begane grond gevestigd.

Derde etage:
Via de entree, waar zich ook de meterkast en de cv-opstelling bevinden, stap je het sfeervolle leefgedeelte binnen. Aan de voorzijde geniet je van een adembenemend uitzicht over de Maas en de iconische Hefbrug. Wat een plaatje! De nette laminaatvloer geeft de ruimte een warme, uitnodigende uitstraling. Er is voldoende plek voor een royale zithoek, zodat je in alle rust kunt genieten van het weidse uitzicht over het water. En op zonnige dagen? Dan wandel je zo het balkon op om het uitzicht nog beter te bewonderen!
Via een open doorgang bereik je de woonkeuken, die is uitgerust met een afzuigkap, een gasfornuis met vier pitten en een oven, en een vaatwasser (ter overname). Plaats een grote tafel en maak hier mooie herinneringen tijdens gezellige diners en borrels! Vanuit hier is er toegang tot het tweede balkon met een fijn groen uitzicht op het parkje.
Via de hal zijn de twee slaapkamers te bereiken, beide voorzien van prettig natuurlijk licht en volledig naar eigen smaak in te richten. Of je nu droomt van een ruime inloopkast, een rustige werkkamer of een gezellige hobbyruimte: alle mogelijkheden zijn aanwezig! De badkamer is modern en strak afgewerkt met een cabinedouche, een wastafel met zwevend meubel en een aansluiting voor de wasmachine. In de hal bevindt zich een separaat toilet met fonteintje.

Berging:
Bij de woning hoort een berging van circa 7 m2, gelegen in de onderbouw.

Afmetingen
Voor de afmetingen en indeling zie onze gedetailleerde plattegrond.

Bijzonderheden
• Bouwjaar: 1982
• Woonoppervlakte circa 79 m2
• Inhoud circa 245 m3
• Externe berging van circa 7 m2
• Gelegen op erfpachtgrond t/m 26-04-2080, waarvan de canon is afgekocht t/m 24-01-2067
• Beschermd stadsgezicht
• Energielabel A
• Verwarming en warm water middels cv-ketel (2020)
• Volledig voorzien van dubbele beglazing HR++
• Goed functionerende, actieve Vereniging van Eigenaars; bijdrage circa €242,- per maand
• In de koopovereenkomst wordt een ouderdomsclausule opgenomen
• In de directe omgeving zijn alle dagelijkse voorzieningen te vinden, zoals openbaar vervoer, winkels, horeca, goede verbinding tot uitvalswegen en recreatiemogelijkheden
• Oplevering in overleg.

Wij nodigen je van harte uit om dit appartement in Rotterdam met eigen ogen te bewonderen.

Bel voor een vrijblijvende afspraak. We geven graag de mogelijkheden door!

De informatie is door ons met de nodige zorgvuldigheid samengesteld. Alle verstrekte informatie moet beschouwd worden als een uitnodiging tot het doen van een bod of om in onderhandeling te treden. Onzerzijds wordt echter geen enkele aansprakelijkheid aanvaard voor enige onvolledigheid, onjuistheid of anderszins, dan wel de gevolgen daarvan. Alle opgegeven maten en oppervlakten zijn indicatief.

Kenmerken

Financieel
Vraagprijs
€ 400.000,-
Status
Verkocht onder voorbehoud
Bouw
Soort bouw
Bestaande bouw
Bouwjaar
1982
Oppervlakten en inhoud
Wonen
79 m2
Overige inpandige ruimte
0 m2
Gebouwgebonden buitenruimte
13 m2
Inhoud
245 m3
Indeling
Aantal kamers
4
Aantal badkamers
1
Aantal slaapkamers
2
Aantal woonlagen
1
Voorzieningen
Voorzieningen
Lift
Energie en isolatie
Energieklasse
A
Isolatievormen
Dubbelglas, HR glas
Warm water
CV ketel
Verwarming
CV ketel
Buitenruimte
Type buitenruimte(s)
Geen tuin
Bergruimte
Soort
Inpandig
Ligging
Parkeer faciliteiten
Betaald parkeren, Parkeervergunningen
Ligging
Aan water, Vrij uitzicht, Aan vaarwater

Plattegronden

Ligging en beschikbare woningen in de buurt

Wat klanten zeggen over Maarten: