Spring naar content
typeEengezinswoning
woonoppervlakte74 m2
slaapkamers2
buitenruimteAchtertuin
bouwjaar1905
energielabelC

Brochure

Over de woning

Charmant wonen in het hart van Dordrecht!

Wonen in het centrum van Dordrecht is een feestje – en deze sfeervolle woning maakt het alleen maar leuker!

De Generaal van der Heijdenstraat ligt in de gezellige 19e-eeuwse Schil, op steenworp afstand van het bruisende stadscentrum. In 2021 heeft de woning een flinke upgrade gekregen: een volledig vernieuwd dak, twee dakkapellen, nieuwe kozijnen, een nieuwe voordeur, een moderne badkamer én 8 zonnepanelen. Dat betekent comfortabel wonen met veel karakter én energiezuinigheid! Alleen de keuken en trap wachten nog op een persoonlijke touch.

Wat maakt deze woning zo aantrekkelijk? Een lichte woonkamer met hoog plafond, een verrassend ruime badkamer en de mogelijkheid voor twee fijne slaapkamers. Bovendien ligt de woning in een rustige straat, terwijl alle stadse gemakken om de hoek zijn.

Binnen een paar minuten wandel je door het historische centrum, pak je spontaan een terrasje of shop je op de Voorstraat. En met het station dichtbij sta je zo in Rotterdam of Breda. Extra fijn: de woning heeft energielabel C en is per direct beschikbaar.

Kom snel kijken en maak van dit huis jouw thuis!

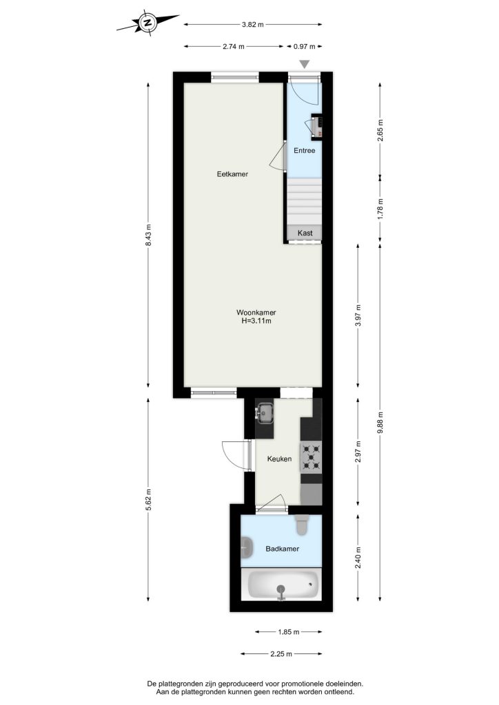
Indeling:
Hal met meterkast (4 groepen, dag/nacht stroommeter, glasvezel).

De lichte woonkamer geeft door het hoge plafond met ornamenten en sierlijsten een fijn en ruimtelijk gevoel. De woonkamer is voorzien van een houten vloer, de wanden zijn strak afgewerkt. Onder de trap bevindt zich een handige bergkast.

Vanuit de woonkamer is de keuken in de aanbouw begaanbaar, deze is opgesteld in een dubbele wandopstelling en beschikt over een 5-pit gaskookplaat, koelkast, vriezer, vaatwasser (2021 vervangen) en een graniet werkblad. Vanuit de keuken is de badkamer aan achterzijde en de achtertuin bereikbaar.

De badkamer is in 2021 aangepakt, deze is volledig betegeld en voorzien van een ligbad, wasmeubel, spiegelkast, toilet, vloerverwarming en mechanische ventilatie. De wanden van de badkamer zijn vanaf de buitenzijde geïsoleerd en met hout afgewerkt.

De achtertuin is klein maar fijn, deze is gelegen op het oosten en goed geschikt om een gezellige stadstuin te creëren!

1e verdieping:
De verdieping is thans ingedeeld in een grote voorzolder met een aparte slaapkamer. De voorzolder is door de grote dakkapel zeer ruimtelijk en goed geschikt om als slaapkamer te gebruiken. Op de voorzolder bevindt zich tevens de wasaansluiting en toegang tot de vliering middels vlizo-trap.

Slaapkamer aan voorzijde met dakkapel en een vaste kast met opstelplaats CV-ketel (Nefit, 2014).

De praktische vliering, begaanbaar middels vlizotrap, biedt veel bergruimte.

Algemeen:
- Eigen grond, 59 m².
- Karakteristieke gezinswoning in de 19e eeuwse schil, gelegen vlakbij het centrum van Dordrecht, het NS-station, diverse voorzieningen en uitvalswegen.
- In 2021 is het dak vernieuwd en voorzien van 2 dakkapellen en 8 zonnepanelen (gelegen aan voor- en achterzijde).
- In 2021 zijn nieuwe kozijnen in woonkamer en voordeur geplaatst, voorzien van HR++ glas.
- Fundering op staal.
- Oplevering op korte termijn mogelijk.

De informatie in deze brochure is met de nodige zorg vastgesteld. Aan deze gegevens kunnen echter geen rechten worden ontleend, alle aansprakelijkheid van Maarten Makelaardij is derhalve uitgesloten. Voorts zijn wijzigingen voorbehouden. Alle opgegeven maten en oppervlakten zijn indicatief.

Kenmerken

Financieel
Vraagprijs
€ 289.000,-
Status
Verkocht
Bouw
Soort woonhuis
Eengezinswoning
Soort bouw
Bestaande bouw
Bouwjaar
1905
Dak type
Zadeldak
Oppervlakten en inhoud
Wonen
74 m2
Overige inpandige ruimte
0 m2
Gebouwgebonden buitenruimte
0 m2
Perceel
59 m2
Inhoud
320 m3
Indeling
Aantal kamers
3
Aantal badkamers
1
Aantal slaapkamers
2
Voorzieningen
Voorzieningen
Mechanische ventilatie, TV kabel, Glasvezel kabel, Zonnepanelen
Energie en isolatie
Energieklasse
C
Isolatievormen
Dakisolatie, Muurisolatie, Grotendeels dubbelglas, HR glas
Warm water
CV ketel
Verwarming
CV ketel
CV ketel type
Nefit
Buitenruimte
Type buitenruimte(s)
Achtertuin
Hoofdtuin
Achtertuin
Hoofdtuin opp.
8 m2
Hoofdtuin positie
Oost
Ligging
Parkeer faciliteiten
Parkeervergunningen
Parkeren capaciteit
1

Plattegronden

Ligging en beschikbare woningen in de buurt

Wat klanten zeggen over Maarten: