Spring naar content
typePortiekflat
woonoppervlakte80 m2
slaapkamers3
buitenruimteZonneterras
bouwjaar1938
energielabelC

Brochure

Over de woning

** Inschrijfprocedure: Middels een inschrijving zal besloten worden met welke partij een overeenstemming bereikt wordt. Mocht je een bod willen uitbrengen, kan je dit doen tot dinsdag 14 oktober 2025 12:00 uur. Het recht van gunning is voorbehouden aan verkoper. **

Sfeervol wonen met een prachtig groot terras in hartje Rotterdam. Deze charmante bovenwoning aan de Stationssingel kan jouw nieuwe thuis worden! Dit karaktervolle appartement met typisch jaren '30 sfeer is verdeeld over de eerste en tweede verdieping en combineert klassieke details met een frisse en verzorgde afwerking. Met drie slaapkamers, twee balkons, een lichte woonkamer met prachtige ensuite deuren en woonkeuken heeft het huis een ideale indeling. Naast twee balkons heeft het een royaal terras van maar liefst 31 m²! Je hebt er niet veel fantasie voor nodig om te zien dat je hier op een zomerse avond heerlijk kunt tafelen en borrelen met de zon op je gezicht en uitzicht op de skyline! De badkamer is verzorgd en compleet met ligbad/douche, wastafel en toilet.

Hier woon je op een toplocatie: rustig, maar op steenworp afstand van het bruisende centrum van Rotterdam. De woning ligt in de geliefde Provenierswijk, een wijk die bekend staat om zijn leuke terrasjes, groene singels en vele bomen, vele speeltuinen, charmante straten met vooroorlogse panden en de levendige maar gemoedelijke sfeer. Alle voorzieningen zijn op loopafstand: van gezellige koffie- en eettentjes tot winkels, supermarkten, de dierentuin en het Vroesenpark. Ook Rotterdam Centraal ligt letterlijk om de hoek, waardoor je niet alleen het stadscentrum maar ook de rest van Nederland in een oogwenk bereikt. En je zit zo op de snelweg. Het is een buurt met karakter, waar je zowel de rust als de dynamiek van de stad kan opzoeken.

Berichtje van bewoners:
We hebben hier 12 jaar met heel veel plezier gewoond. We zouden zelfs niet weg willen maar nu we hier twee kinderen hebben gekregen, ruilen we ons appartement in voor een groter huis in Rotterdam.
We vinden het een heerlijke woning: licht, praktisch ingedeeld en veel karakter. We zullen het missen. Qua locatie: het is een heel fijn stukje: vlak bij het station, supermarkten, een bakker, drogist, bloemist, terrasjes etc. Je zit in de stad, maar het heeft ook een rustig groen en dorps gevoel; we groeten elkaar in de straat, hebben hele fijne buren en er zijn actieve whatsapp groepen met buren/ straat waarmee je spullen kunt lenen en iedereen meezoekt als iemand zijn kat kwijt is, etc.

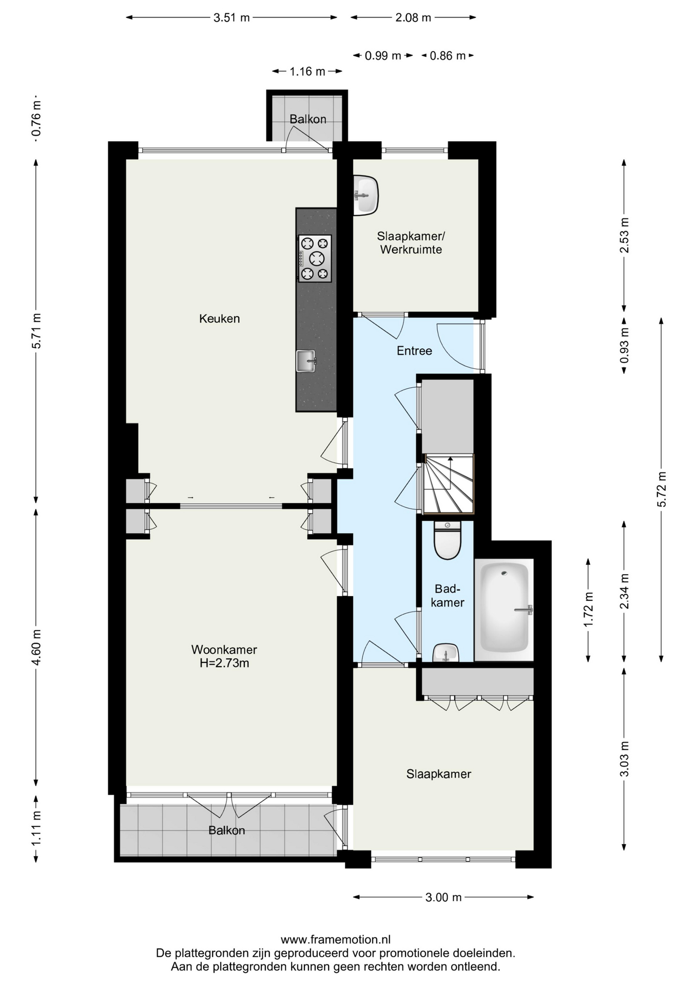
Indeling
Begane grond:
Via het portiek bereik je de eerste verdieping, waar de eigen voordeur is gelegen.

Eerste verdieping:
Op deze woonlaag bevindt zich de lichte en ruime woonkamer met sfeervolle details, zoals glas-in-lood elementen en grote raampartijen die zorgen voor veel daglicht. De open keuken is modern en praktisch ingericht en voorzien van diverse inbouwapparatuur. Vanuit zowel de woonkamer als de keuken heb je toegang tot twee balkons, ideaal voor een kop koffie in de ochtendzon of namiddag. Verder vind je op deze verdieping twee slaapkamers, welke je naar wens kunt inrichten. De badkamer is net en compleet uitgerust met een ligbad, douche, wastafel en toilet. Met de trap in de hal kom je op de bovenste verdieping.

Tweede verdieping:
Hier bevindt zich nog een slaapkamer, netjes afgewerkt en voorzien van voldoende lichtinval. Vanuit de overloop is tevens toegang tot de trap naar het terras.

Terras:
Via een vaste trap bereik je het royale dakterras van circa 31 m². Dit zonnige terras is een absolute eyecatcher van de woning en biedt volop ruimte voor een loungeset, eettafel, barbecue en groenvoorziening. Een heerlijke plek om te genieten van de zomerse avonden met uitzicht over de wijk en de skyline van Rotterdam.

Afmetingen
Voor de afmetingen en indeling zie onze gedetailleerde plattegrond.

Bijzonderheden
• Bouwjaar: 1938
• Woonoppervlakte circa 80 m2
• Inhoud circa 277 m3
• Eigen grond
• Energielabel C
• Verwarming en warm water middels cv-ketel (2019)
• Volledig voorzien van dubbele beglazing (HR)
• Goed functionerende, actieve Vereniging van Eigenaars; bijdrage circa €50,- per maand
• In de koopovereenkomst wordt een ouderdomsclausule opgenomen
• In de directe omgeving zijn alle dagelijkse voorzieningen te vinden, zoals openbaar vervoer, winkels, horeca, goede verbinding tot uitvalswegen en recreatiemogelijkheden
• Oplevering in overleg.

Wij nodigen je van harte uit om dit appartement in Rotterdam met eigen ogen te bewonderen. Bel voor een vrijblijvende afspraak. We geven graag de mogelijkheden door!

De informatie is door ons met de nodige zorgvuldigheid samengesteld. Alle verstrekte informatie moet beschouwd worden als een uitnodiging tot het doen van een bod of om in onderhandeling te treden. Onzerzijds wordt echter geen enkele aansprakelijkheid aanvaard voor enige onvolledigheid, onjuistheid of anderszins, dan wel de gevolgen daarvan. Alle opgegeven maten en oppervlakten zijn indicatief.

Kenmerken

Financieel
Vraagprijs
€ 425.000,-
Status
Verkocht
Bouw
Soort bouw
Bestaande bouw
Bouwjaar
1938
Oppervlakten en inhoud
Wonen
80 m2
Overige inpandige ruimte
0 m2
Gebouwgebonden buitenruimte
38 m2
Inhoud
277 m3
Indeling
Aantal kamers
5
Aantal badkamers
1
Aantal slaapkamers
3
Aantal woonlagen
2
Energie en isolatie
Energieklasse
C
Isolatievormen
Dubbelglas, HR glas
Warm water
CV ketel
Verwarming
CV ketel
Buitenruimte
Type buitenruimte(s)
Zonneterras
Ligging
Parkeer faciliteiten
Betaald parkeren, Parkeervergunningen
Ligging
In woonwijk

Plattegronden

Ligging en beschikbare woningen in de buurt

Wat klanten zeggen over Maarten: