Spring naar content
typeEengezinswoning
woonoppervlakte115 m2
slaapkamers4
buitenruimteAchtertuin
bouwjaar2008
energielabelA

Brochure

Over de woning

Modern & instapklaar 2.0!

Ben jij op zoek naar een royale en instapklare gezinswoning waar je écht heerlijk woont? Dan MOET je deze topper aan de Jacob Marisstraat 59 zien!
Wat je krijgt? 4 ruime slaapkamers, een gezellige eetkeuken, een prachtige strakke badkamer én een heerlijke tuin met een luxe overkapping. Dat betekent het hele jaar door genieten, van zomeravonden met vrienden tot knusse winterborrels!
En laten we de locatie niet vergeten… In de gemoedelijke wijk Krispijn, met de historische binnenstad van Dordrecht op nog geen 10 minuten afstand! Bovendien is parkeren geen probleem, want je hebt een eigen parkeerplaats aan de achterkant EN er is genoeg gratis parkeergelegenheid voor de deur. Duurzaam? JA! Met energielabel A én 9 zonnepanelen bespaar je ook nog eens flink op je energierekening!

Kortom, een perfecte gezinswoning voor doorstromers die op zoek zijn naar ruimte, comfort en een top locatie! Kom snel kijken, want deze leukerd wil je niet missen!

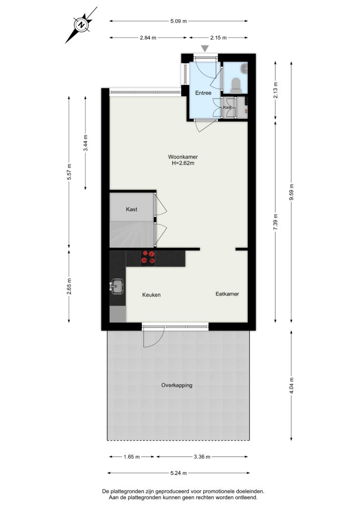
Indeling:

Entree in hal met handige garderobekast en daarin de meterkast verwerkt (6 groepen + dubbele groep, slimme meters, glasvezel).
Ruim toilet (volledig betegeld) met bidet en fontein.

Via een prachtige stalen deur kom je in de ruime woonkamer aan de voorzijde van de woning. De woonkamer is voorzien van een mooie visgraat laminaat vloer, sierlijsten en inbouwspots. Daarnaast beschikt de woonkamer over een zeer ruime trapkast voor al je voorraden, de stofzuiger en alles wat je nog meer kwijt wilt. De trap naar de verdieping is middels een deur af te sluiten.

Vanuit de woonkamer is de aparte keukenruimte aan achterzijde bereikbaar, met grote keuken in hoekopstelling en de deur naar de achtertuin. De keuken beschikt over een keramische kookplaat, afzuigkap, oven, magnetron, vaatwasser en lekker veel bergruimte. Zie jij liever de woonkamer en keuken gecombineerd? De ruimtes kunnen worden samengevoegd, waarmee je een grote doorzon woonkamer met open keuken kan creëren!

En dan de tuin in! Direct aan de woning vast bevindt zich een prachtige overkapping, voorzien van inbouwverlichting. Echt een uitbreiding van je woonruimte waar je heerlijk droog en warm (evt. met toevoeging van een heater) kunt vertoeven! De tuin is gelegen op het noorden en is voorzien van keramische tegels, een vast perk en een vrijstaande berging achterin de tuin. Via de achterom sta je direct bij je eigen parkeerplaats op het achterterrein, dat is toch ideaal?

1e verdieping
Vanuit de woonkamer is via de trap (bekleed met vloerbedekking) de overloop begaanbaar. De overloop is voorzien van een mooie laminaatvloer.

Aan de voorzijde bevindt zich een royale slaapkamer met grote kastenwand, mooie laminaatvloer (in 2024 gelegd) en gedeeltelijk een kleurrijke behang wandafwerking.

Aan achterzijde bevindt zich eveneens een grote slaapkamer, deze kamer wordt momenteel als duo-kantoorruimte gebruikt. Ook deze ruimte is flink onder handen genomen en voorzien van een mooie laminaatvloer, plissé raambekleding en een sfeervolle lattenwand aan zijkant.

Ook de badkamer is modern en strak afgewerkt. Deze is in 2021 vernieuwd, volledig betegeld en voorzien van een ruime inloopdouche met thermostaatkraan, wastafel op meubel, grote ronde spiegel met verlichting en verwarming, toilet en designradiator.

2e verdieping
Overloop met dakraam aan achterzijde, bergruimte achter knieschotten en toegang tot alle vertrekken.

Slaapkamer aan voorzijde met nette laminaatvloer en spagtelputz wandafwerking.

Slaapkamer aan voorzijde met nette laminaatvloer, spagtelputz wandafwerking en een grote kastenwand.

Ideaal op deze verdieping is de aparte wasruimte met tevens de opstelplaats CV-ketel (Intergas, 2008), mechanische ventilatie en bergruimte.

Algemeen:
- Moderne en instapklare tussenwoning uit 2008 met ruime woonkamer en aparte keukenruimte, 4 slaapkamers, prachtige badkamer en eigen parkeerplaats!
- Energielabel A, volledig geïsoleerd en voorzien van 9 zonnepanelen!
- Centraal gelegen met winkels, scholen, speeltuin en openbaar vervoer op loopafstand en op ca. 10 minuten fietsen van het NS-station en het centrum van Dordrecht.
- Een Vereniging van Eigenaren is actief voor het buitenschilderwerk en het onderhoud van de hagen in de voortuinen. De bijdrage is €37 per maand.
- Parkeerplaats betreft een apart kadastraal perceel, plaatselijk bekend gemeente Dordrecht, sectie K, nummer 9795.
- Oplevering in overleg, bij voorkeur op korte termijn.

De informatie in deze brochure is met de nodige zorg vastgesteld. Aan deze gegevens kunnen echter geen rechten worden ontleend, alle aansprakelijkheid van Maarten Makelaardij is derhalve uitgesloten. Voorts zijn wijzigingen voorbehouden. Alle opgegeven maten en oppervlakten zijn indicatief.

Kenmerken

Financieel
Vraagprijs
€ 435.000,-
Status
Verkocht
Bouw
Soort woonhuis
Eengezinswoning
Soort bouw
Bestaande bouw
Bouwjaar
2008
Dak type
Samengesteld dak
Oppervlakten en inhoud
Wonen
115 m2
Overige inpandige ruimte
0 m2
Gebouwgebonden buitenruimte
21 m2
Perceel
129 m2
Inhoud
415 m3
Indeling
Aantal kamers
5
Aantal badkamers
1
Aantal slaapkamers
4
Voorzieningen
Voorzieningen
Mechanische ventilatie, TV kabel, Dakraam, Glasvezel kabel, Zonnepanelen
Energie en isolatie
Energieklasse
A
Isolatievormen
Dubbelglas, Volledig geïsoleerd
Warm water
CV ketel
Verwarming
CV ketel
CV ketel type
Intergas
Buitenruimte
Type buitenruimte(s)
Achtertuin
Hoofdtuin
Achtertuin
Hoofdtuin opp.
55 m2
Hoofdtuin positie
Noord
Bergruimte
Soort
Vrijstaand hout
Voorzieningen
Voorzien van elektra
Ligging
Parkeer faciliteiten
Op afgesloten terrein
Ligging
Aan rustige weg, In woonwijk

Plattegronden

Ligging en beschikbare woningen in de buurt

Wat klanten zeggen over Maarten: