Spring naar content
typeDrive-in woning
woonoppervlakte105 m2
slaapkamers3
buitenruimteGeen tuin
bouwjaar2007
energielabelA+

Brochure

Over de woning

Wonen in het hart van Dordrecht, maar tóch genieten van rust, comfort en duurzaamheid? Dat kan op Elfhuizen 18; een speels ingedeelde gezinswoning met 3 lagen puur woongenot! Op de eerste verdieping van deze ruime stadswoning leef je heerlijk vrij, rustig en privé, maar stap je de deur uit, dan loop je direct de gezellige drukte van het centrum van Dordrecht in. Winkels, restaurants, supermarkt en het NS-station; alles vindt je hier op loopafstand! Wat heeft deze heerlijke gezinswoning verder te bieden?

- Kook, borrel en leef in de royale woonkamer met open keuken en kookeiland – perfect voor gezellige avonden.
- Geniet in alle rust van de zon, een kop koffie en een goed boek op je balkon op het zuiden.
- Ruimte genoeg met twee grote slaapkamers en een ruime badkamer op de 2e verdieping, een extra slaap/werkkamer op de begane grond.
- Met de inpandige garage heb je hier zeker geen parkeerstress en staat je auto lekker veilig en droog; een luxe die je in de binnenstad zelden tegenkomt!

Een unieke kans om ruimtelijk & comfortabel te wonen, zonder concessies te doen aan het stadse leven. Word jij de nieuwe bewoner van deze unieke stadswoning? Bel ons voor een bezichtiging!

Indeling:
Entree in de hal met toilet, meterkast (6 groepen, 2 aardlekschakelaars, slimme meters, glasvezel), bergkast, toegang tot de slaap/werkkamer aan voorzijde en garage aan achterzijde.

Toilet, vrijhangend met fonteintje, volledig betegeld.

Handige bergkast/technische ruimte met opstelplaats CV-ketel (Agpo Ferroli, 2008), warmte terugwin unit, omvormer zonnepanelen en ruimte voor garderobe.

De kamer aan voorzijde wordt momenteel gebruikt als werkkamer, maar kan ook goed worden gebruikt als slaapkamer. Deze kamer is voorzien van een vast bureau, een tegelvloer en stucwerk wandafwerking.

Heel bijzonder voor deze centrale locatie is dat de woning beschikt over een ruime inpandige garage. Naast een ruime parkeerplek vinden we hier enorm veel opslagruimte voor bijvoorbeeld je fiets en/of scooter. De garage is voorzien van een automatische roldeur, aparte loopdeur, laadpunt voor een elektrische auto en verwarming en is afgewerkt met een betonvloer met deels een tegelvloer. Je bereikt de garage via het mandelige binnenterrein, te bereiken vanaf de Elfhuizen.
Op de begane grond vinden we verder een handige waskast met ruimte voor zowel een wasmachine als wasdroger en een praktische trapkast met lekker veel bergruimte.

Eerste verdieping:
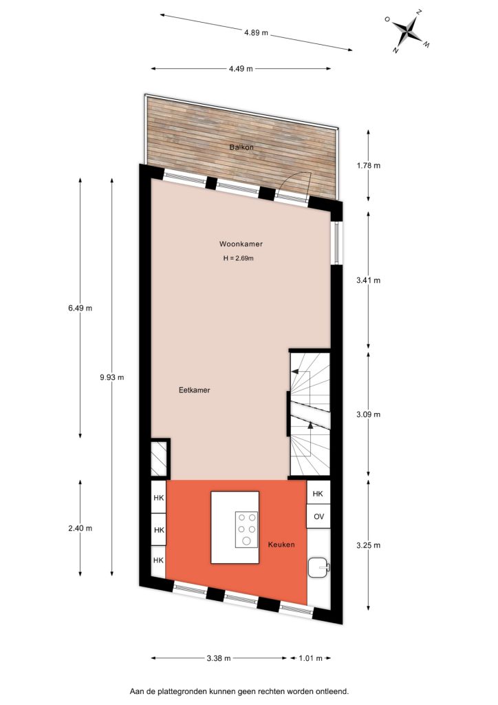
De gehele eerste verdieping is in gebruik als woonruimte met ruime open keuken en een fijn balkon gelegen op het zuiden. Door de ligging op de 1e verdieping heeft de woonverdieping veel lichtinval wat de ruimte zeer behaaglijk maakt.
De woonkamer is gelegen aan de achterzijde van de verdieping en is voorzien van een eikenhouten parketvloer en stucwerk wandafwerking.

De keuken aan voorzijde is zeer ruim opgezet en beschikt over twee wandopstellingen en een kookeiland. De keuken is voorzien van een 5-pit gaskookplaat met afzuiging, oven, combi-magnetron, koelkast met vriesvak, vaatwasser, een Quooker kraan (vernieuwd in 2025) en een composiet werkblad.

Het ruime balkon is gelegen op het zuiden en voorzien van kunststof vlonderpanelen en een elektrisch zonnescherm. Doordat het balkon boven het binnenterrein gelegen is, zit je hier heerlijk rustig.

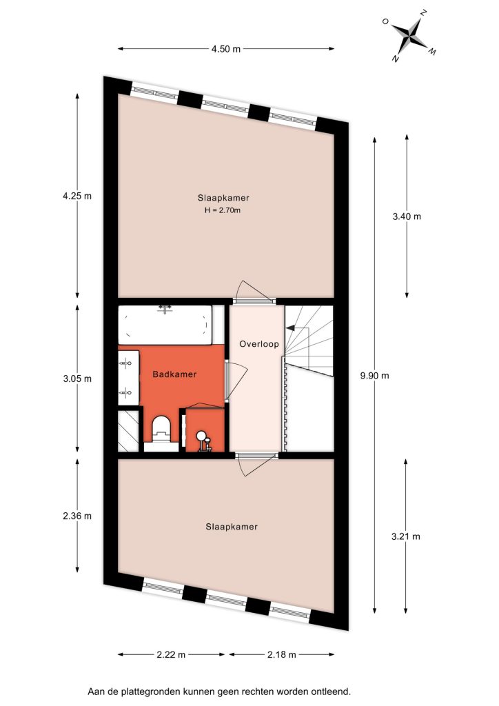
Tweede verdieping:
Overloop met toegang tot alle vertrekken.

Ruime slaapkamer aan achterzijde met laminaatvloer, stucwerk wandafwerking, draai-kiep ramen met horren en een grote kastenwand (ter overname).

Slaapkamer aan voorzijde, eveneens met laminaatvloer en stucwerk wandafwerking.

De grote inpandige badkamer is van alle gemakken voorzien. Zo beschikt de badkamer zowel over een ruime douche als een groot ligbad. Verder is deze voorzien van een brede wastafel met twee kranen, wasmeubel, toilet en geïntegreerde LED-verlichting. De badkamer is volledig betegeld.

Algemeen:
- Eigen grond, 53 m².
- Speels ingedeelde gezinswoning met grote woonverdieping, 3 slaapkamers en een ruime garage, gelegen op zeer centrale locatie in het centrum van Dordrecht.
- Energielabel A+, volledig geïsoleerd, voorzien van houten kozijnen met HR++ glas en 14 zonnepanelen (geplaatst in 2018).
- De afgesloten parkeerplaats achter de woning is een mandelig terrein en in eigendom van alle omwonenden, verkopers zijn hier voor 1/25ste eigenaar van, kosten voor onderhoud hiervan bedragen €13,- per maand.
- Diverse meubels worden ter overname aangeboden.
- Oplevering op korte termijn mogelijk.

Disclaimer: De informatie in deze brochure is met de nodige zorg vastgesteld. Aan deze gegevens kunnen echter geen rechten worden ontleend, alle aansprakelijkheid van Maarten Makelaardij is derhalve uitgesloten. Voorts zijn wijzigingen voorbehouden. Alle opgegeven maten en oppervlakten zijn indicatief.

Kenmerken

Financieel
Vraagprijs
€ 469.000,-
Status
Verkocht
Bouw
Soort woonhuis
Eengezinswoning
Soort bouw
Bestaande bouw
Bouwjaar
2007
Dak type
Plat dak
Oppervlakten en inhoud
Wonen
105 m2
Overige inpandige ruimte
26 m2
Gebouwgebonden buitenruimte
9 m2
Perceel
53 m2
Inhoud
471 m3
Indeling
Aantal kamers
4
Aantal badkamers
1
Aantal slaapkamers
3
Voorzieningen
Voorzieningen
TV kabel, Glasvezel kabel, Balansventilatie
Energie en isolatie
Energieklasse
A+
Isolatievormen
Volledig geïsoleerd
Warm water
CV ketel
Verwarming
CV ketel
CV ketel type
Agpo Ferroli
Buitenruimte
Type buitenruimte(s)
Geen tuin
Bergruimte
Soort
Inpandig
Ligging
Parkeer faciliteiten
Betaald parkeren, Parkeervergunningen
Ligging
Aan rustige weg, In centrum

Plattegronden

Ligging en beschikbare woningen in de buurt

Wat klanten zeggen over Maarten: