Spring naar content
typeHerenhuis
woonoppervlakte181 m2
slaapkamers3
buitenruimteGeen tuin
bouwjaar1875

Brochure

Over de woning

Dit bijzondere pand aan de Grote Spuistraat is met recht multifunctioneel te noemen! Voor de echte Dordtenaar is het pand wel bekend, het is tientallen jaren in gebruik geweest als cafetaria en horeca gelegenheid onder de namen: 'Lucullus' en later 't Centrum'

Het pand heeft de "Centrum" bestemming wat inhoud dat je er uiteraard mag wonen maar werken kan ook! Je eigen tweedehands winkel (zoals de huidige eigenaren hebben) is dus nog nooit zo dichtbij geweest. Ook horeca is op deze locatie mogelijk (wel vergunning aanvragen uiteraard!).

Leuk weetje: aan de achterkant grenst de woning aan de Belgracht (waar ook de garage aan ligt), deze straat is als decor gebruikt in de film "Pietje Bell".

Indeling woonhuis:

Je kunt het pand van 2 kanten in, aan de Grote Spuistraat loop je de winkel in, aan de Belgracht loop je het woonhuis in. Wij starten aan de woonhuis zijde.

Entree in de ruime hal met garderobe hoek en trap naar de winkel ruimte. Er is een kast aanwezig waar de wasapparatuur in is weggewerkt. Mooie brede trap naar de woonverdieping.

Eerste verdieping:

Tussenhal met meterkast en toilet, toegang tot de woonkamer.

Meterkast, deze zit gekoppeld met de meterkast in de winkel, er zijn 7 groepen aanwezig en een dubbele groep.

Toilet, vrijhangend met fonteintje.

De hele verdieping is in gebruik als enorme woonkamer met open keuken, je kijkt dus ook hier uit op de Grote Spuistraat en aan de achterzijde op de Belgracht. De kamer is voorzien van een laminaatvloer en een hoek opgestelde keuken.
De keuken is in 2021 nieuw geplaatst en voorzien van een hetelucht oven, koelkast, vriezer, inductie kookplaat en vaatwasser.

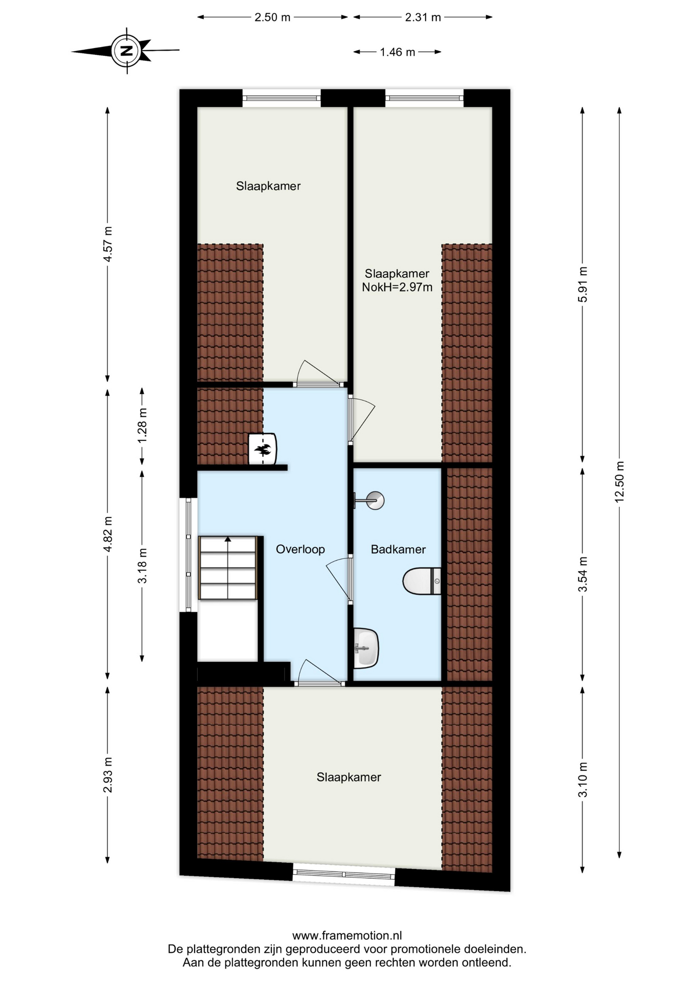
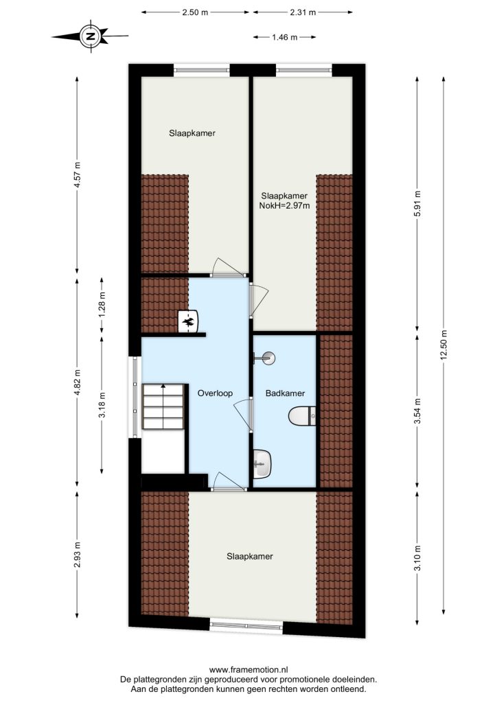
Tweede verdieping:

Overloop met nis waarin de CV ketel is gesitueerd (merk Intergas, bouwjaar 2019).

Slaapkamer 1 gelegen aan de voorzijde.

Slaapkamer 2 eveneens gelegen aan de voorzijde.

Slaapkamer 3, de grootste kamer is gelegen aan de achterzijde.
De verdieping is voorzien van een laminaatvloer.

Inpandige badkamer met vrijhangend toilet, douchehoek, wastafel met meubel en ventilatie, geheel betegelde wanden.

Begane grond/ winkel ruimte te betreden via de Grote Spuistraat 29:

Mooie grote winkelruimte met vide, een heerlijke plek voor een kantoor, winkel, horeca? Vul maar in!

Algemeen:
Beschermd stads-en dorpsgezicht en Rijksmonument onder nummer 13428.
Door de monumentale status is er geen energielabel aanwezig (niet verplicht bij monumentale panden).
Woning is voorzien van enkel glas.

De informatie in deze brochure is met de nodige zorg vastgesteld. Aan deze gegevens kunnen echter geen rechten worden ontleend, alle aansprakelijkheid van Maarten Makelaardij is derhalve uitgesloten. Voorts zijn wijzigingen voorbehouden. Alle opgegeven maten en oppervlakten zijn indicatief.

Kenmerken

Financieel
Vraagprijs
€ 495.000,-
Status
Verkocht
Bouw
Soort woonhuis
Herenhuis
Soort bouw
Bestaande bouw
Bouwjaar
1875
Dak type
Zadeldak
Oppervlakten en inhoud
Wonen
181 m2
Overige inpandige ruimte
0 m2
Gebouwgebonden buitenruimte
0 m2
Perceel
60 m2
Inhoud
615 m3
Indeling
Aantal kamers
5
Aantal badkamers
1
Aantal slaapkamers
3
Voorzieningen
Voorzieningen
TV kabel
Energie en isolatie
Isolatievormen
Dakisolatie
Warm water
CV ketel
Verwarming
CV ketel
CV ketel type
Intergas HR
Buitenruimte
Type buitenruimte(s)
Geen tuin
Ligging
Parkeer faciliteiten
Parkeervergunningen
Ligging
In centrum

Plattegronden

Ligging en beschikbare woningen in de buurt

Wat klanten zeggen over Maarten: