Spring naar content
typeEengezinswoning
woonoppervlakte136 m2
slaapkamers4
buitenruimteAchtertuin
bouwjaar1888
energielabelC

Brochure

Over de woning

Zin in iets anders dan standaard? Dan MOET je deze woning gezien hebben!
De Vrieseweg 73 in Dordrecht is niet zomaar een huis, het is een ware beleving.

Zodra je de voordeur opent, weet je dat je ergens bijzonders bent beland. Een kobaltblauwe trap die je tegemoet knalt, zebraprint op de muur alsof het niets is en een slaapkamer in knalgeel met paars? YES PLEASE! Alles mag hier, alles kan, dit huis heeft gewoon z’n eigen regels (en dat maakt het zó leuk)!

Maar vergis je niet, achter al die kleur zit ook écht een fijne gezinswoning verstopt. Vier ruime slaapkamers, twee stijlvolle badkamers (yes, twee!), glas-in-lood ramen, ornamentenplafonds, en suite deuren... Het is hier echt een mix van karakter en lef.

En dan de buitenruimte… de zonnige stadstuin op het zuidwesten roept je al in het voorjaar naar buiten. Is de zon daar verdwenen? Geen zorgen, dan verhuis je gewoon naar het balkon voor nog een laatste zonnestraal. Droomleven? Jep. En ja, er is een eigen achterom, een berging én je komt uit in het gezellige Vriesepoortshof. Hoe leuk is dat?!
Of je nou jong, wat ouder, kleurrijk of gewoon een tikkie rebels bent, dit huis past je als een jas (oké, wel eentje met een uitgesproken print).

Kom je deze leukerd bewonderen? BEL ons, we laten ‘m met liefde zien!

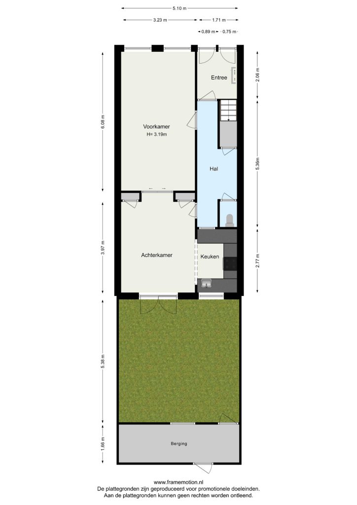
Indeling:

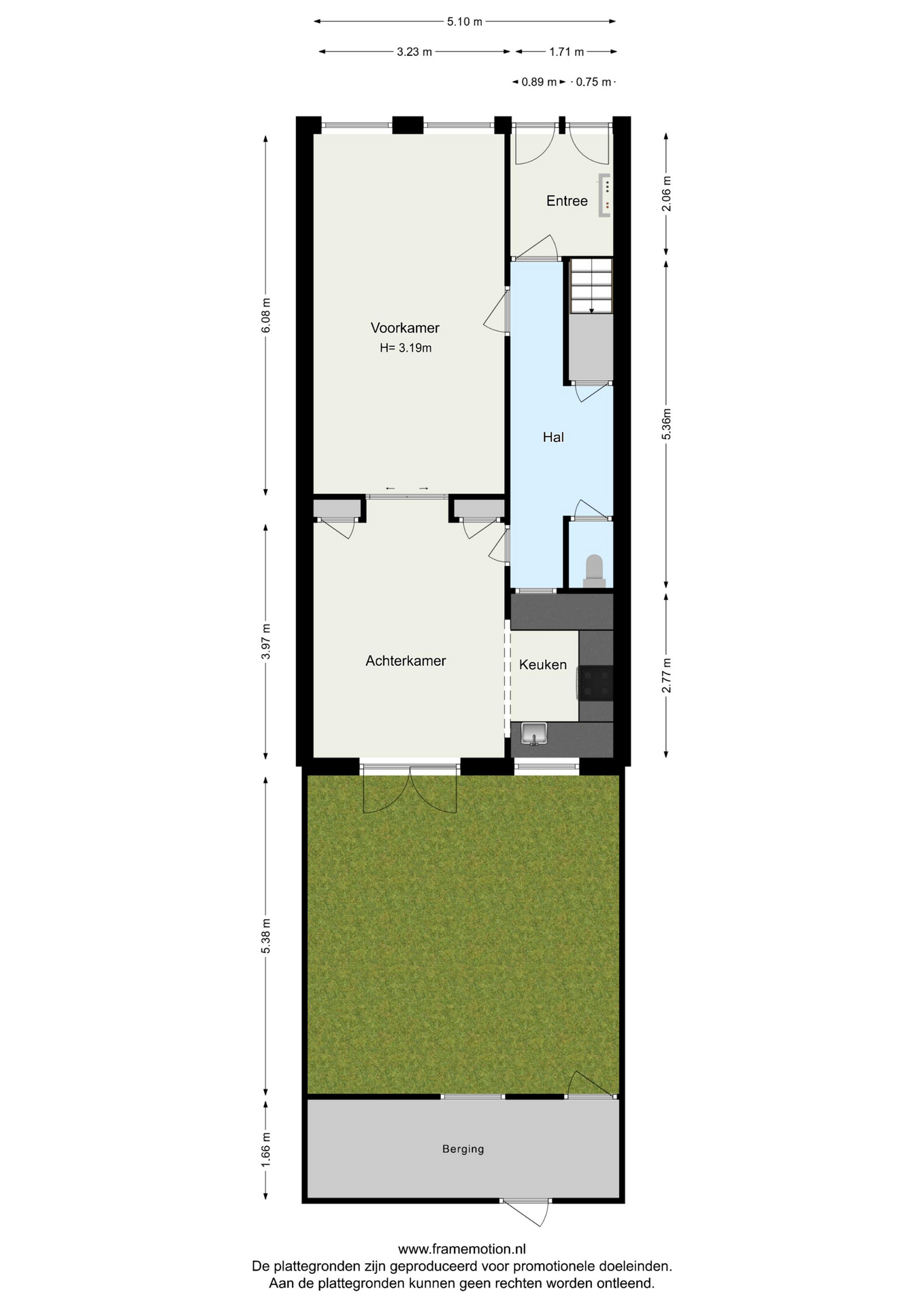
Entree de hal met trapopgang, meterkast, toilet, ruimte voor de garderobe en toegang tot de woonkamer.

Meterkast met 6 groepen, 2x aardlekschakelaar, hoofdschakelaar, dag- en nachtstroom gasmeter, wetermeter en glasvezel kabel.

Heerlijk kleurrijk toilet, vrijhangend, fonteintje en deels betegelde wanden.

De woonkamer en suite is werkelijk prachtig! Veel opbergruimte, mooie hoge plafonds in zowel de voor als de achterkamer, ornamenten details in het plafond EN aan de achterzijde openslaande deuren naar de sfeervolle tuin.

Aan de achterkamer grenst ook de open keuken welke geplaatst is in U opstelling. De keuken is voorzien van een RVS schouwkap (recirculatie), 4 pits gaskookplaat, oven, koelkast, vriezer, vaatwasser en spoelbak. In de keuken is een luik aanwezig naar een grote kelder, hier kan je wijnvoorraad gaan beginnen!

De achtertuin is werkelijk heerlijk zonnig de gehele dag door, echt een meerwaarde in de stad. Wat ook een meerwaarde is, is de enorme houten berging met sedum dak en achterom.
In de tuin zijn meerdere sfeervolle hoekjes gemaakt en vaste banken om op elk moment van de dag te kunnen genieten van zon en schaduw.

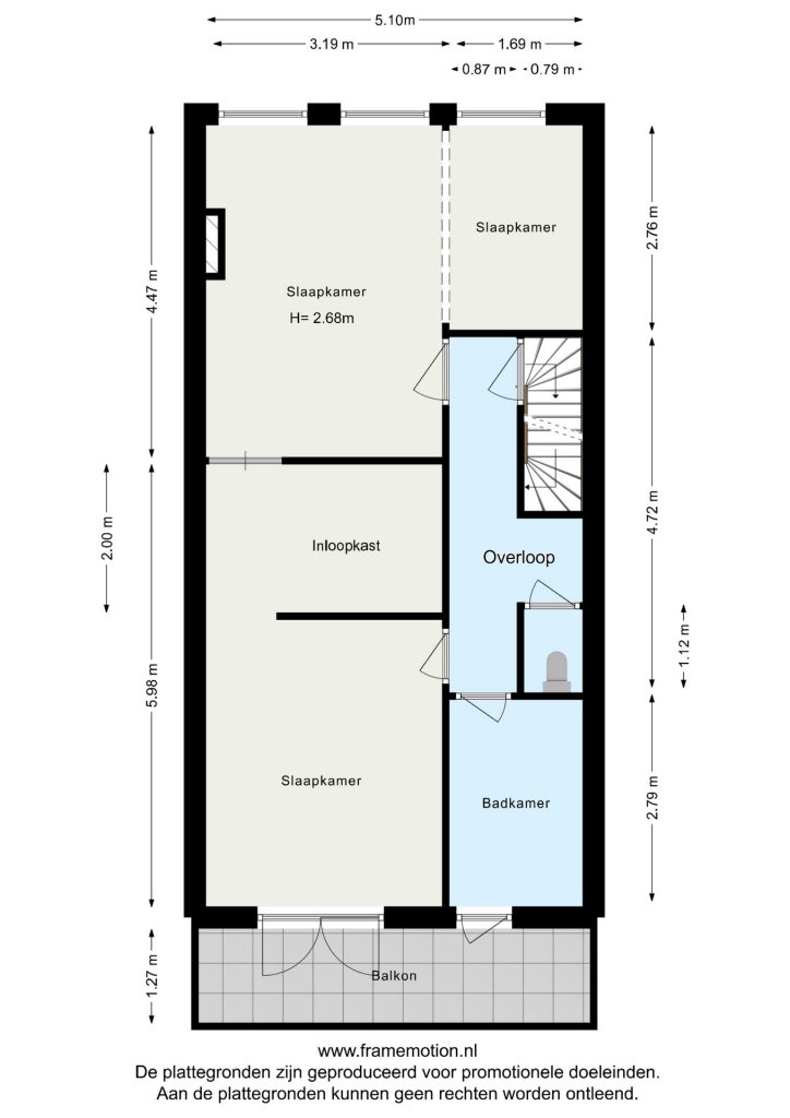
Eerste verdieping:

Overloop met toegang tot alle vertrekken en trap naar de tweede verdieping.

Aan de voorzijde is een enorme slaapkamer (voorheen 2) aanwezig, super goed geschikt als ouderslaapkamer (maar dat is de achterkamer ook!). Ook op deze verdieping weer mooie hoge plafonds en veel licht door de grote ramen.

Slaapkamer 2 is gelegen aan de achterzijde met, jawel, een heerlijke inloop kast en openslaande deuren naar het balkon gelegen op het zonnige zuid westen.

De badkamer is voorzien van een designradiator, grote wastafel met meubel en royale inloop douche met thermostaatkraan, deels betegelde wanden, deels stuc wanden, verlaagd plafond met spots en deur naar het balkon.

Op de overloop is een apart toilet aanwezig, wederom kleurrijk en voorzien van een fonteintje.

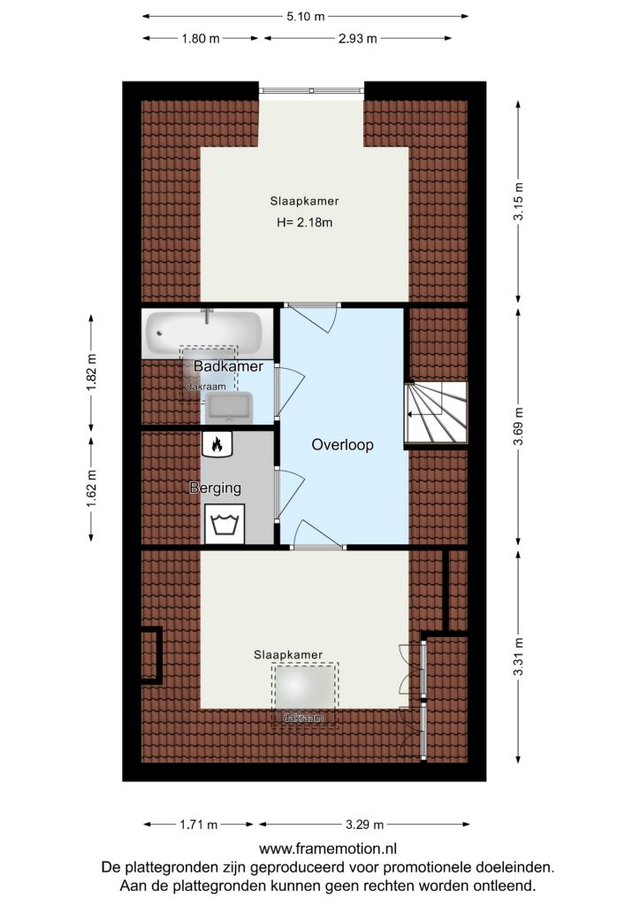
Tweede verdieping:

Deze verdieping is echt een cadeau: heerlijk ingedeeld in een overloop, 2 slaapkamers en een extra badkamer. Op de overloop is de opstelling van de CV ketel (merk Nefit bouwjaar 2022) en er is een kast aanwezig met de was aansluiting.

Slaapkamer 3 aan de achterzijde met dakraam.

Slaapkamer 4 aan de voorzijde met kleine dakkapel.

Tweede (!!) badkamer, dit keer met een bad, thermostaatkraan, designradiator en een ruime wastafel en meubel, het dakraam zorgt voor voldoende licht zonder inkijk.

Algemeen:
- Tuinaanleg maart 2020.
- Toiletten, badkamers, keuken, wandafwerking en vloerafwerking in 2020 vervangen.
- Dakisolatie 2020 aangebracht Rockwool.
- Grotendeels dubbel glas, voorzetramen, een paar kleine enkelglas ruitjes aanwezig.
- Schilderwerk buitenzijde voor 2018 achter 2022.
- Pannendak vervangen 2009.
- Goot balkon en dakje balkon 2009.
- Funderingsherstel 2005, onder de woonkamer vloer is beton gestort.
- Meterkast vervangen 1999.
- Samenvoeging boven- en benedenwoning 1999.
- Elektrische ventilatie badkamer eerste verdieping werkt niet.

Oplevering in overleg, voorkeur verkopers 1 september 2025.

De informatie in deze brochure is met de nodige zorg vastgesteld. Aan deze gegevens kunnen echter geen rechten worden ontleend, alle aansprakelijkheid van Maarten Makelaardij is derhalve uitgesloten. Voorts zijn wijzigingen voorbehouden. Alle opgegeven maten en oppervlakten zijn indicatief.

Kenmerken

Financieel
Vraagprijs
€ 500.000,-
Status
Verkocht
Bouw
Soort woonhuis
Eengezinswoning
Soort bouw
Bestaande bouw
Bouwjaar
1888
Dak type
Zadeldak
Oppervlakten en inhoud
Wonen
136 m2
Overige inpandige ruimte
1 m2
Gebouwgebonden buitenruimte
7 m2
Perceel
96 m2
Inhoud
421 m3
Indeling
Aantal kamers
5
Aantal badkamers
2
Aantal slaapkamers
4
Voorzieningen
Voorzieningen
TV kabel, Rookkanaal, Dakraam, Glasvezel kabel
Energie en isolatie
Energieklasse
C
Isolatievormen
Dakisolatie, Grotendeels dubbelglas
Warm water
CV ketel
Verwarming
CV ketel, Elektrische boiler eigendom
CV ketel type
Nefit Proline CW 4
Buitenruimte
Type buitenruimte(s)
Achtertuin
Hoofdtuin
Achtertuin
Hoofdtuin opp.
36 m2
Hoofdtuin positie
Zuidwest
Bergruimte
Soort
Vrijstaand hout
Ligging
Parkeer faciliteiten
Parkeervergunningen
Ligging
Aan rustige weg, In centrum, In woonwijk

Plattegronden

Ligging en beschikbare woningen in de buurt

Wat klanten zeggen over Maarten: