Spring naar content
typeHerenhuis
woonoppervlakte162 m2
slaapkamers1
buitenruimteZonneterras
bouwjaar1935
energielabelC

Brochure

Over de woning

Dit is echt een buitenkans! In het hart van het historisch centrum van Dordrecht ligt de Taankade, een rustige en karakteristieke straat aan de kade van de Wijnhaven.
Zeer centraal gelegen maar toch heerlijk rustig en sereen. Hier waan je je, met de haven, de Groothoofdspoort, hotel Bellevue en diverse historische panden, echt in het oude Dordrecht. Dat maakt de Taankade een heerlijke plek om te wonen.

Op nummer 22 vinden we een bijzonder pand. Gebouwd in de jaren '30, een kenmerkende gevel, een imposante entree en fraai metselwerk. Tot vorig jaar is het pand als kantoorruimte gebruikt, maar nu is de tijd rijp om hier een prachtig woonhuis van te maken.
Heb je altijd al gedroomd van wonen in de binnenstad, maar wel met een ruimtelijk gevoel? En zie jij het helemaal zitten om dit pand om te toveren tot jouw droomwoning? Neem snel contact op, je bent van harte welkom om deze prachtige locatie te ervaren!

Begane grond:
We zien het helemaal voor ons. Een ruime entree met garderobe en middels dubbele taatsdeuren toegang tot de woonkeuken. Middels het plaatsen van een vide is er veel lichtinval te creëren in deze ruimte.
Hier kan je met gemak een grote leefkeuken kwijt met een wandopstelling en een gezellig kookeiland met zitgedeelte. Verderop is er ruimte voor een grote eettafel, hier zal je heel wat gezellige uren doorbrengen!
De ruimte achterin is vrij in te delen. Maak je hier een ruime bijkeuken met wasruimte en bergruimte, of liever een slaapkamer met badkamer en suite?

Huidige indeling:
Trap naar de entree, middels dubbele deur.

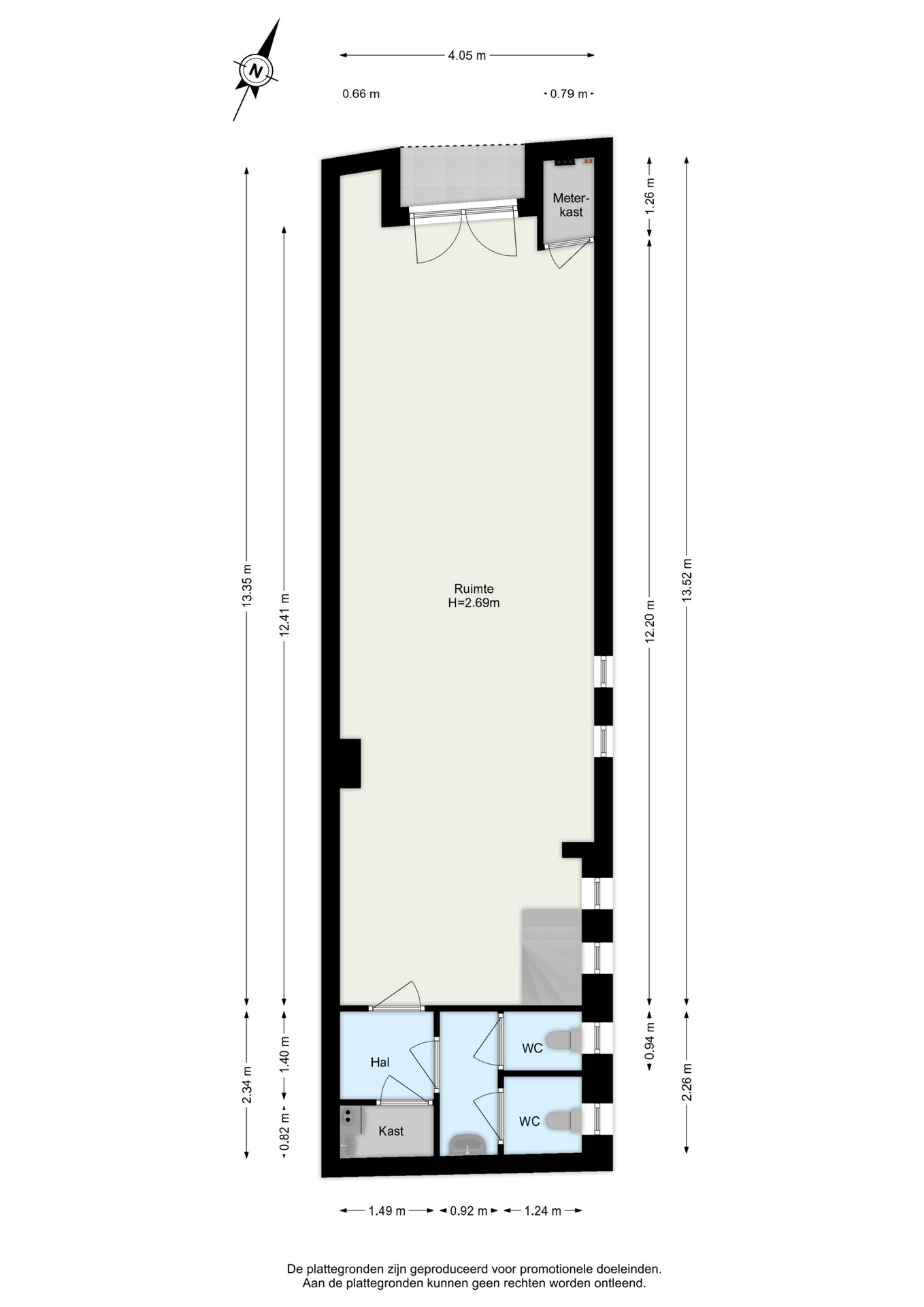
De begane grondverdieping omvat een grote ruimte, voorzien van vloerbedekking en spachtelputz wandafwerking. Aan de zijkant is deze ruimte voorzien van een aantal bovenlichten. Achterin bevindt zich de trapopgang naar de 1e verdieping.

Aan voorzijde bevindt zich een bergruimte met meterkast (12 groepen, 3 aardlekschakelaars, meters).

Aan de achterzijde vinden we een hal met toegang tot de toiletgroep en kast met opstelplaats CV-ketel (Vaillant). De toiletgroep bestaat uit twee aparte toiletten (volledig betegeld) met een wastafel.

1e verdieping:
Deze verdieping leent zich perfect als ruime woonkamer, vanaf hier heb je een prachtig uitzicht op de schilderachtige Wijnhaven. Ook hier kan je qua indeling meerdere kanten op. Aan achterzijde is genoeg ruimte voor een slaapkamer met badkamer en suite, maar een buitenruimte zou ook goed kunnen!

Huidige indeling:
Overloop met toegang tot alle vertrekken. Toilet (geheel betegeld) met fontein.

Middels glazen tussendeur toegang tot grote open ruimte aan voorzijde. Deze ruimte beschikt over een grote inbouwkast, en trapopgang naar de 2e verdieping. De ruimte is afgewerkt met vloerbedekking en spachtelputz wandafwerking.

Aparte keukenruimte aan achterzijde, thans met een wandopstelling keuken voorzien van een kleine keramische kookplaat, kleine koelkast en vaatwasser. Door de grote lichtkoepel beschikt deze ruimte over veel lichtinval.

2e verdieping:
Een ruime slaapverdieping, naar eigen inzicht in te delen. Een mooie slaapkamer aan voorzijde met een zitje in de dakkapel, een tweede badkamer aan de zijkant, een royale slaapkamer aan achterzijde met toegang tot het dakterras, ideeën te over!
Door de trap van de woonkamer naar deze verdieping te draaien, ontstaat er een efficiëntere indeling. Momenteel zijn het allemaal ideeën, maar wie weet ga jij jouw ideeën omzetten in een prachtig woonhuis!

Huidige indeling:
Trapopgang middels glazen wand afgesloten van de ruimte.

Ook op deze verdieping bevindt zich een zee aan ruimte, een mooie open ruimte met aan voorzijde een groot raam in dakkapel (let op: thans geen valbeveiliging!). Aan achterzijde biedt de ruimte middels een grote schuifpui toegang tot het dakterras.

Het zonnige dakterras is gelegen op het zuidoosten en voorzien van vlonderpanelen en schuttingen. Momenteel omvat het dakterras ca. 13 m², echter kan deze nog verder worden uitgebreid.

Algemeen:
- Eigen grond, 72 m².
- Bijzonder pand met veel ruimte en potentie om te transformeren naar woonruimte.
- Gelegen op een prachtige, historische locatie aan de Wijnhaven, met winkels, horeca en meer op korte loopafstand.
- Parkeren middels parkeervergunning. Uitvalswegen en openbaar vervoerverbindingen nabij.
- Betreft Beschermd Stadsgezicht.
- Bestemming is Gemengd-1 met als huidig gebruik 'Kantoor'. Middels een aanvraag omgevingsvergunning voor verbouwing is een wijziging naar gebruik 'Wonen' aan te vragen.
- De visuals en plattegronden met mogelijke indeling zijn indicatief en geven een beeld van wat gerealiseerd zou kunnen worden. Hier kunnen geen rechten aan worden ontleend.
- Oplevering per direct mogelijk.

Disclaimer: De informatie in deze brochure is met de nodige zorg vastgesteld. Aan deze gegevens kunnen echter geen rechten worden ontleend, alle aansprakelijkheid van Maarten Makelaardij is derhalve uitgesloten. Voorts zijn wijzigingen voorbehouden. Alle opgegeven maten en oppervlakten zijn indicatief.

Kenmerken

Financieel
Vraagprijs
€ 449.000,-
Status
Beschikbaar
Bouw
Soort woonhuis
Herenhuis
Soort bouw
Bestaande bouw
Bouwjaar
1935
Dak type
Samengesteld dak
Oppervlakten en inhoud
Wonen
162 m2
Overige inpandige ruimte
0 m2
Gebouwgebonden buitenruimte
13 m2
Perceel
72 m2
Inhoud
551 m3
Indeling
Aantal kamers
4
Aantal slaapkamers
1
Voorzieningen
Voorzieningen
Schuifpui
Energie en isolatie
Energieklasse
C
Isolatievormen
Grotendeels dubbelglas
Warm water
CV ketel
Verwarming
CV ketel
CV ketel type
Vaillant
Buitenruimte
Type buitenruimte(s)
Zonneterras
Hoofdtuin
Zonneterras
Hoofdtuin opp.
11 m2
Hoofdtuin positie
Zuidoost
Ligging
Parkeer faciliteiten
Parkeervergunningen
Parkeren capaciteit
1
Ligging
Aan water, Aan rustige weg, Vrij uitzicht, Aan vaarwater

Plattegronden

Ligging en beschikbare woningen in de buurt

Wat klanten zeggen over Maarten: