Spring naar content
typeBovenwoning
woonoppervlakte86 m2
slaapkamers5
buitenruimteGeen tuin
bouwjaar1924
energielabelC

Brochure

Over de woning

Ben je op zoek naar een dubbele bovenwoning met karakter én een moderne indeling? Welkom aan de Rusthoflaan 94 A 02 in het levendige Crooswijk! Deze woning, verdeeld over twee woonlagen, biedt maar liefst vijf slaapkamers, en twee fijne balkons. De sfeervolle open keuken en de royale woonkamer zorgen voor een woonbeleving waar ruimte, licht en comfort samenkomen. Hier woon je op steenworp afstand van het centrum, met alle dagelijkse voorzieningen binnen handbereik. Klinkt goed? Dat is het ook!

De hippe buurt Nieuw-Crooswijk is helemaal upcoming. Van oorsprong een échte Rotterdamse volksbuurt met een rijke historie en grootse plannen. Een unieke plek in Rotterdam waar werken, spelen, winkelen en gezelligheid hand in hand gaan. Nieuw-Crooswijk is gelegen tussen het stadscentrum en het Kralingse bos en de Kralingse Plas in. Hierdoor is er voor jong en oud leuk en genoeg aanbod op het gebied van sport, ontspanning en recreatie én kan jij de gezelligheid van barretjes en restaurants binnen no time opzoeken. Een perfecte combinatie! Het is een kindvriendelijke buurt en gunstig gelegen ten opzichte van de uitvalswegen (A20 en A13) en het openbaar vervoer. Door de voorzieningen in de directe omgeving en met het stadscentrum op fietsafstand is de ligging erg centraal te noemen en heb je de natuur dichtbij. Bovendien ben je niet ver van het Oude Noorden waar je kunt genieten van alles wat er te beleven valt rondom bijvoorbeeld de Zwaanhals. Alles tot je beschikking dus!

Indeling
Begane grond
Op het straatniveau bevindt zich de voordeur van het pand. Vanuit de entree leidt een nette trapopgang je naar de derde verdieping, waar het appartement zich bevindt.

Derde verdieping
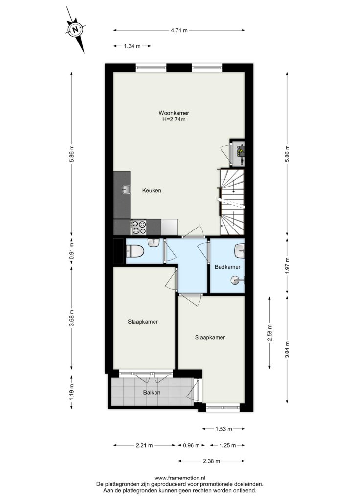
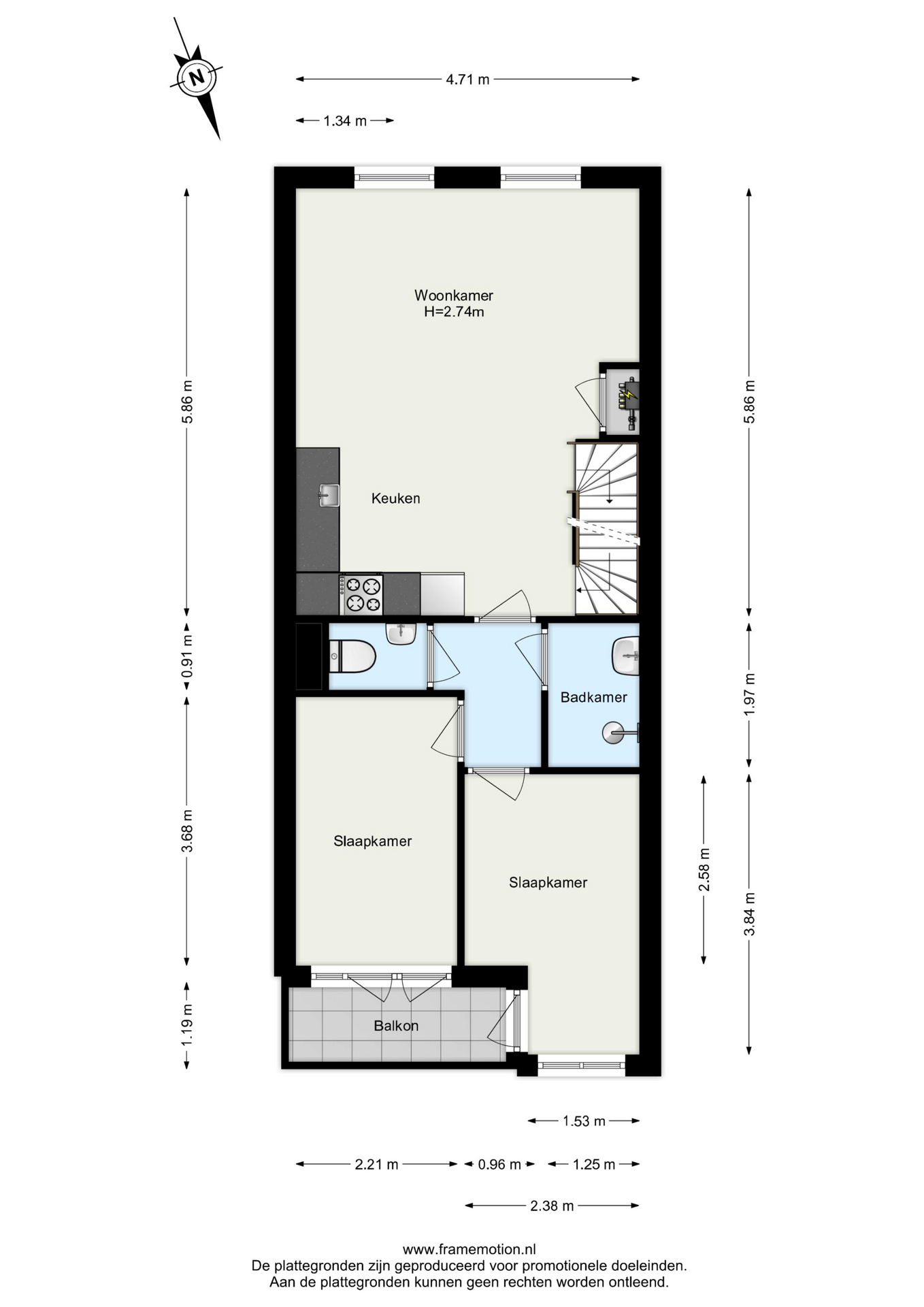
Je komt de woning binnen in de royale woonkamer, welke aan de voorzijde van de woning is gelegen en is voorzien van grote raampartijen en hoge plafonds, wat zorgt voor een prachtige lichtinval. De ruimte voelt warm en uitnodigend aan, ideaal om te ontspannen na een drukke dag. De strakke open keuken is voorzien van diverse inbouwapparatuur zoals een (combi) oven, inductiekookplaat, afzuigkap, koelkast en vriezer – perfect om te koken en tegelijkertijd gezellig contact te houden met je gasten. De verdieping telt twee fijne slaapkamers, beide rustig gelegen aan de achterzijde van de woning en beide kamers hebben toegang tot het fijne balkon! Hier kun je ’s ochtends perfect een kopje thee drinken, dat is nog eens fijn wakker worden. De badkamer is voorzien van een inloopdouche, een wastafel met stijlvol meubel. Het separate toilet bevindt zich eveneens op deze verdieping. Vanuit de woonkamer neem je de vaste trap naar de bovenste verdieping van de woning.

Vierde verdieping
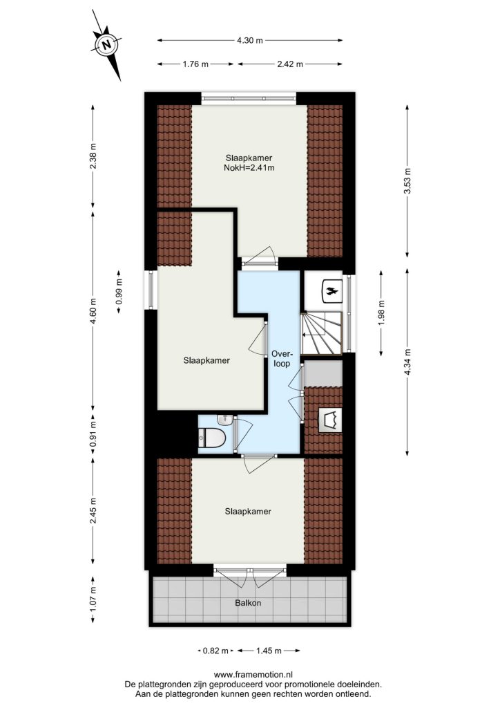
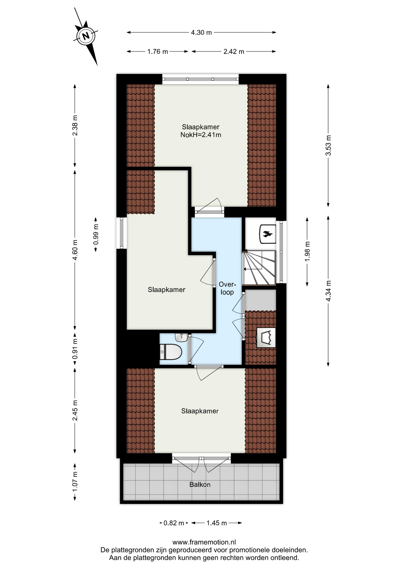
Een verrassende verdieping! Hier bevinden zich nog eens drie goed bemeten slaapkamers, waarvan er één beschikt over directe toegang tot een tweede balkon – ideaal om even frisse lucht te happen of te genieten van ochtendzon.
Op deze etage is eveneens een tweede separaat toilet aanwezig, en in een afgesloten ruimte vind je de opstelling van de cv-ketel en de wasmachineaansluiting. Praktisch en uit het zicht.

Afmetingen
Voor de afmetingen en indeling zie onze gedetailleerde plattegrond.

Bijzonderheden
• Bouwjaar: 1924
• Woonoppervlakte circa 86 m2
• Inhoud circa 307 m3
• Eigen grond
• Verwarming en warm water middels Cv-ketel
• Grotendeels voorzien van dubbele beglazing
• Goed functionerende, actieve Vereniging van Eigenaars; bijdrage circa €116,12,- per maand
• In de koopovereenkomst wordt een niet-bewonersclausule opgenomen
• In de koopovereenkomst wordt een ouderdomsclausule opgenomen
• In de directe omgeving zijn alle dagelijkse voorzieningen te vinden, zoals openbaar vervoer, winkels, horeca, goede verbinding tot uitvalswegen en recreatiemogelijkheden
• Oplevering in overleg.

Wij nodigen je van harte uit om dit appartement in Rotterdam met eigen ogen te bewonderen.

Bel voor een vrijblijvende afspraak. We geven graag de mogelijkheden door!

De informatie is door ons met de nodige zorgvuldigheid samengesteld. Alle verstrekte informatie moet beschouwd worden als een uitnodiging tot het doen van een bod of om in onderhandeling te treden. Onzerzijds wordt echter geen enkele aansprakelijkheid aanvaard voor enige onvolledigheid, onjuistheid of anderszins, dan wel de gevolgen daarvan. Alle opgegeven maten en oppervlakten zijn indicatief.

Kenmerken

Financieel
Vraagprijs
€ 450.000,-
Status
Verkocht
Bouw
Soort bouw
Bestaande bouw
Bouwjaar
1924
Oppervlakten en inhoud
Wonen
86 m2
Overige inpandige ruimte
0 m2
Gebouwgebonden buitenruimte
8 m2
Perceel
95 m2
Inhoud
307 m3
Indeling
Aantal kamers
6
Aantal badkamers
1
Aantal slaapkamers
5
Aantal woonlagen
2
Energie en isolatie
Energieklasse
C
Isolatievormen
Gedeeltelijk dubbelglas
Warm water
CV ketel
Verwarming
CV ketel
Buitenruimte
Type buitenruimte(s)
Geen tuin
Ligging
Parkeer faciliteiten
Betaald parkeren, Parkeervergunningen
Ligging
In woonwijk

Plattegronden

Ligging en beschikbare woningen in de buurt

Wat klanten zeggen over Maarten: