Spring naar content
typeBenedenwoning
woonoppervlakte90 m2
slaapkamers3
buitenruimteAchtertuin
bouwjaar1951
energielabelC

Brochure

Over de woning

** Inschrijfprocedure: Middels een inschrijving zal besloten worden met welke partij een overeenstemming bereikt wordt. Mocht je een bod willen uitbrengen, kan je dit doen tot vrijdag 18 april 2025 12:00 uur. Het recht van gunning is voorbehouden aan verkoper. **

Wonen op het eiland in de stad – verrassend ruim, charmant en met een heerlijke tuin! Aan de geliefde Prins Hendrikkade, op het karaktervolle Noordereiland, wacht deze dubbele benedenwoning op een nieuwe bewoner. Verdeeld over de begane grond én het souterrain biedt dit sfeervolle appartement niet alleen veel ruimte, maar ook een unieke beleving van wonen in de stad met het gevoel van een dorp. Strakke wanden, grote raampartijen en originele details geven de woning een warme, eigen identiteit. Vanaf de bank heb je mooi uitzicht op de Erasmusbrug en in de avond zijn de stadse lichten te bewonderen. De verrassend ruime tuin op het noordwesten is een echte buitenkans en vormt een groene oase midden in de stad. Of je nu houdt van ontspannen onder de zon, tuinieren of lange zomeravonden met vrienden: dit is jouw plek. Welkom thuis aan de kade!

Ben jij op zoek naar een plek die centraal gelegen is en waar je ook tot rust kunt komen? Het Noordereiland kan jou dit bieden! De buurt kent een gemoedelijke sfeer waar je dorps woont in de stad. Dit betekent voor ieder wat wils! Ontdek hier leuke zaakjes, zoals de koffiebar Koozie en Fadi’s voor Arabic food. Door de verbinding met de Willemsbrug bereik je binnen no time het bruisende stadscentrum en bezoek je makkelijk de populaire plekken. De Witte de Withstraat, Oude Haven en Pannekoekstraat zijn o.a. voorzien van verschillende leuke hotspots. Ook de Kop van Zuid en Katendrecht, met haar Fenix Food Factory en Foodhallen, liggen in de directe omgeving waar je kunt genieten van culinaire of recreatieve uitstapjes. Tevens bevindt zich op het Noordereiland ook de opstapplaats voor de watertaxi. Noordereiland it is!

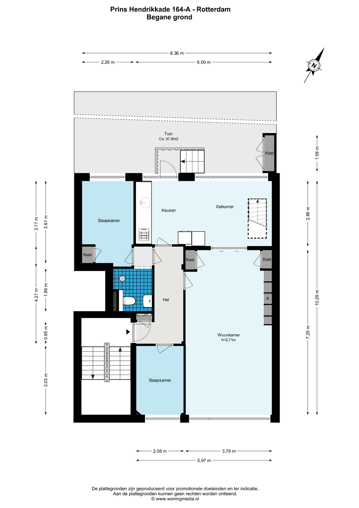
Indeling
Begane grond:
Via het gezamenlijke portiek kom je bij de voordeur van de woning en stap je de woning binnen. Aan de voorzijde vind je de royale woonkamer met hoge plafonds en grote ramen met uitzicht op het water. Dankzij de diepte van de ruimte en de mooie lichtinval voelt het hier ruim en tegelijkertijd knus aan.

Aan de achterzijde ligt de woonkeuken: een fijne plek om te koken, te eten en samen te zijn. De keuken is voorzien van inbouwapparatuur zoals een oven, koelkast, vaatwasser, gasfornuis en afzuigkap. De openslaande deur in de keuken brengt je via een trapje naar de tuin. Hier woon je echt met binnen en buiten in verbinding!

Wat een verrassing: een heerlijke, royale achtertuin van circa 88 m² op het noordwesten! Hier kun je vanaf de middag tot in de avond genieten van de zon. De tuin is fraai aangelegd met een combinatie van groen, bestrating en zitgedeeltes. Er is plek voor een grote tuintafel, een loungeset én een barbecue. Deze tuin is zeldzaam voor een woning zo dicht bij het centrum – een waar stadsparadijs! Terug in de woning vind je op deze verdieping twee heerlijke slaapkamers, één aan de voorzijde en één aan de achterzijde. De badkamer is voorzien van een inloopdouche, wastafel, design radiator en een toilet. Van alle gemakken voorzien! In de woonkeuken vind je de trap die je naar het souterrain brengt.

Souterrain:
Hier vind je een goed bemeten kamer, met daglichttoetreding. Deze ruimte is in te delen naar wens, het kan dienen als een extra slaapkamer, logeerkamer, thuiskantoor, Man Cave of wasruimte. In het souterrain bevinden zich de aansluitingen voor wasmachine en droger.

Afmetingen
Voor de afmetingen en indeling zie onze gedetailleerde plattegrond.

Bijzonderheden
• Bouwjaar: 1951
• Woonoppervlakte ca. 73 m²
• Berging van 17 m² geïntegreerd in de woning
• Inhoud circa 336 m3
• Eigen grond
• Beschermd stadsgezicht
• Energielabel C
• Verwarming en warm water middels CV-ketel (2010)
• Gedeeltelijk voorzien van dubbele beglazing (dubbel glas en HR+ glas)
• Goed functionerende, actieve Vereniging van Eigenaars; bijdrage circa €104,- per maand
• In de koopovereenkomst wordt een ouderdomsclausule opgenomen
• In de directe omgeving zijn alle dagelijkse voorzieningen te vinden, zoals openbaar vervoer, winkels, horeca, goede verbinding tot uitvalswegen en recreatiemogelijkheden
• Oplevering in overleg.

Wij nodigen je van harte uit om dit appartement in Rotterdam met eigen ogen te bewonderen.

Bel voor een vrijblijvende afspraak. We geven graag de mogelijkheden door!

De informatie is door ons met de nodige zorgvuldigheid samengesteld. Alle verstrekte informatie moet beschouwd worden als een uitnodiging tot het doen van een bod of om in onderhandeling te treden. Onzerzijds wordt echter geen enkele aansprakelijkheid aanvaard voor enige onvolledigheid, onjuistheid of anderszins, dan wel de gevolgen daarvan. Alle opgegeven maten en oppervlakten zijn indicatief.

Kenmerken

Financieel
Vraagprijs
€ 440.000,-
Status
Verkocht
Bouw
Soort bouw
Bestaande bouw
Bouwjaar
1951
Oppervlakten en inhoud
Wonen
90 m2
Overige inpandige ruimte
1 m2
Gebouwgebonden buitenruimte
1 m2
Inhoud
336 m3
Indeling
Aantal kamers
5
Aantal badkamers
1
Aantal slaapkamers
3
Aantal woonlagen
2
Energie en isolatie
Energieklasse
C
Isolatievormen
Vloerisolatie, Dubbelglas, HR glas
Warm water
CV ketel
Verwarming
CV ketel
Buitenruimte
Type buitenruimte(s)
Achtertuin
Hoofdtuin
Achtertuin
Hoofdtuin opp.
88 m2
Hoofdtuin positie
Noordwest
Ligging
Parkeer faciliteiten
Betaald parkeren, Parkeervergunningen
Ligging
In woonwijk

Plattegronden

Ligging en beschikbare woningen in de buurt

Wat klanten zeggen over Maarten: