- vraagprijs
- € 487.500,- k.k.
Brochure
Over de woning
Nog enkele woningen te koop! De bouw is gestart!
Nieuwbouwproject Nieuwe Haverlandschool
15 maisonnettes
 Â
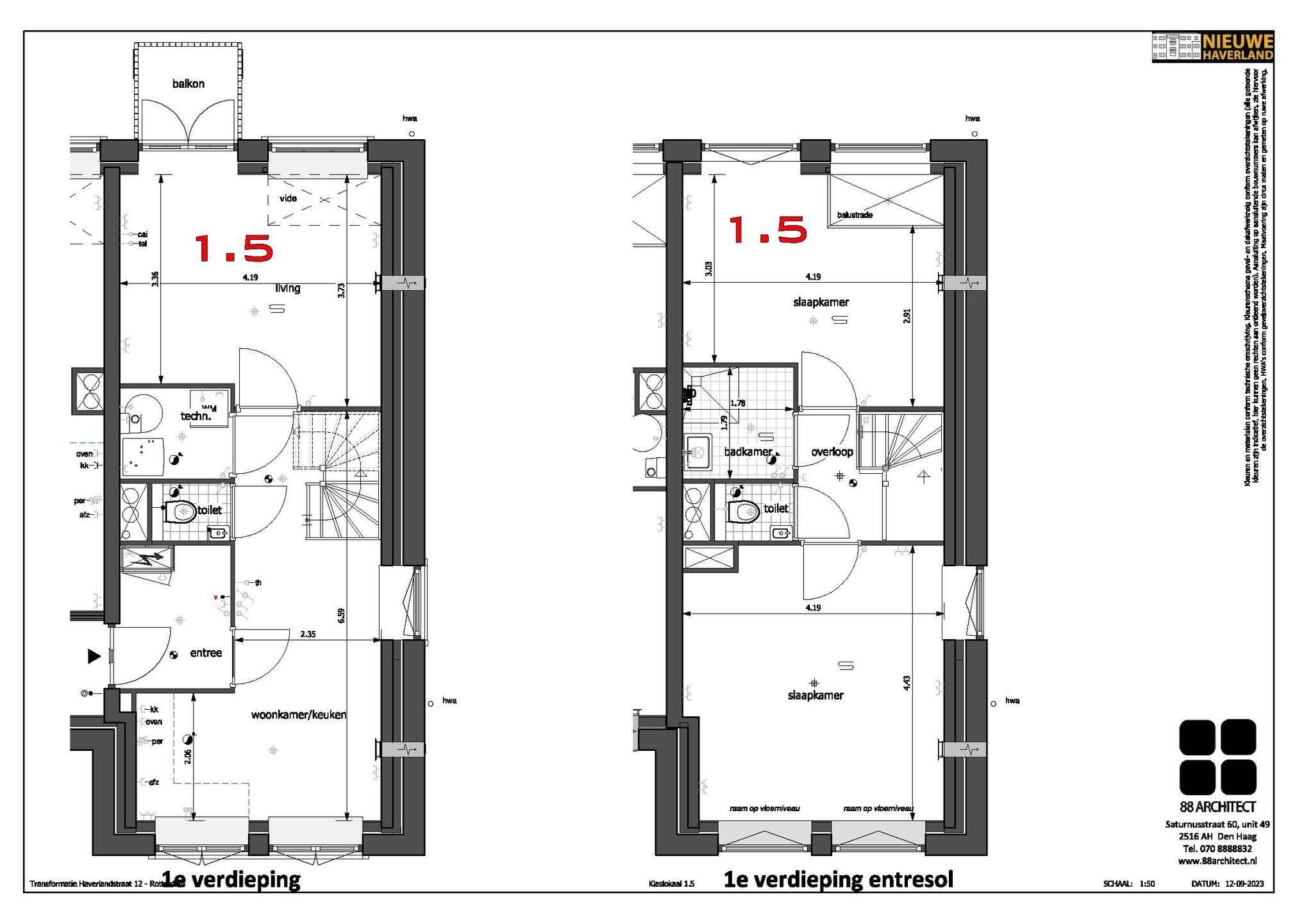
Oude tijden herleven! Herinneringen aan stoepkrijt en touwtje springen komen terug! Op de rand van Rubroek en Oud-Crooswijk wordt het vroegere schoolgebouw aan de Haverlandstraat getransformeerd naar 15 maisonnettes. Deze zijn geheel bestemd voor eigen bewoning!
Â
Meer dan een eeuw geleden, in 1909, werd dit karakteristieke schoolgebouw opgeleverd. Jarenlang was dit het domein van de bovenmeester en verschillende generaties leerlingen van de basisschool. Vervolgens heeft een lagere tuinbouwschool zijn intrek genomen en nog later heeft de muziek- en balletschool van het Rotterdams Conservatorium zich hier gehuisvest. Na bijna 100 jaar een maatschappelijke/educatieve functie te hebben gehad gaat dit pand een nieuwe toekomst tegemoet als hoogwaardig wooncomplex. Van buiten zal het zijn fraaie nostalgische uitstraling behouden. Van binnen daarentegen krijgt het door het gebruik van hoogwaardige materialen een industriële en moderne look en feel.
Â
Per woonlaag zullen er 5 superzuinige (A++) maisonnettes worden gerealiseerd met 2 of 3 slaapkamers. De woonruimte varieert tussen de 65m2 en 111 m2. Op de begane grond zijn er 4 woningen met een eigen tuin. De woningen op de eerste en tweede verdieping worden allemaal uitgerust met een balkon.
Â
Luxe
De verschillende verdiepingen zijn zowel met de trap als met de lift bereikbaar. Dat is lekker binnen komen! Vanuit de hal bereik je de fijne woningen. Alle woningen worden voorzien van een volledig ingerichte badkamer, wel zo makkelijk. Ook kun je je eigen wensen kenbaar maken zodat de aannemer jóuw droomwoning gaat maken.
Aan de zijkant van het gebouw komt een gemeenschappelijke fietsenstalling.
Â
Stadsleven
Word jij blij van het stadsleven en heb jij altijd al dichtbij de binnenstad willen wonen? Dan is dit perfect! Dit is een buurt waar het stadsleven en de rust met elkaar afgewisseld worden. Het grenst direct aan het centrum en wordt omringd door water van o.a. De Rotte. Alle stadsgemakken liggen op steenworp afstand zoals supermarkten, avondwinkels, het openbaar vervoer (tram en metro) en de uitvalswegen (A13 en A20). Ook de Oude Haven, de Meent en de Markthal zijn makkelijk bereikbaar en hebben een ruim aanbod aan diverse restaurants, barretjes en terrassen. De modeliefhebbers kunnen hun geluk niet op door de diversiteit aan winkels of ontdek diverse musea en/of theatervoorstellingen. Maar ook de natuur is dichtbij. Zo ben je binnen 10 minuten fietsen bij het Kralingse Bos en Plas. Je vindt hier dus ontspanning én de mogelijkheid om stadse- en culturele activiteiten te ondernemen. Choose it the way you like!
Â
Algemene Bijzonderheden
• Woonoppervlakte 87 m2 tot 111 m2
• Energielabel minimaal A++
• De bouw is gestart, oplevering Q2/Q3 2026
• Vereniging van Eigenaars wordt opgericht door professioneel beheerder
• Volledig voorzien van dubbele beglazing en hoogwaardige isolatie
• Verwarming en warm water middels lucht warmtepomp en vloerverwarming
• Projectnotaris: Westvaer Notarissen
• Zelfbewoningsplicht van toepassing
• In de directe omgeving zijn alle dagelijkse voorzieningen te vinden, zoals openbaar vervoer, winkels, horeca, goede
verbinding tot uitvalswegen en recreatiemogelijkheden en uiteraard het Kralingse Bos.
Kenmerken
Ligging en beschikbare woningen in de buurt
Deze woningen vind je misschien ook wel wat!
Van der Hoevenplein 42
€ 450.000,- k.k. / 61 m2 / 2 kamers
Rodenrijselaan 25D
€ 450.000,- k.k. / 79 m2 / 2 kamers
Boezemweg 158A
€ 565.000,- k.k. / 121 m2 / 4 kamers
Schiedamsedijk 64E
€ 525.000,- k.k. / 91 m2 / 3 kamers
Vasteland 229
€ 400.000,- k.k. / 79 m2 / 3 kamers
Boezemkade 137
€ 450.000,- k.k. / 92 m2 / 4 kamers
Blommersdijkselaan 13A
€ 575.000,- k.k. / 118 m2 / 4 kamers
Vrouwe Justitiahof 87B
€ 400.000,- k.k. / 58 m2 / 2 kamers
Bottelaarstraat 13
€ 560.000,- k.k. / 117 m2 / 5 kamers
Jufferstraat 224
€ 475.000,- k.k. / 87 m2 / 3 kamers
Claes de Vrieselaan 52B
€ 550.000,- k.k. / 138 m2 / 6 kamers
Mathenesserweg 66C 03
€ 525.000,- k.k. / 142 m2 / 7 kamers
Samuel Mullerstraat 21A
€ 425.000,- k.k. / 107 m2 / 6 kamers
Maaskade 97C 03
€ 525.000,- k.k. / 101 m2 / 4 kamers
Nobelstraat 97B 02
€ 475.000,- k.k. / 93 m2 / 4 kamers
Koopvaardijhof 108
€ 400.000,- k.k. / 79 m2 / 4 kamers
Mathenesserlaan 247B
€ 425.000,- k.k. / 68 m2 / 2 kamers
Sint-Jobskade 560
€ 475.000,- k.k. / 92 m2 / 3 kamers
Sleephellingstraat 83
€ 425.000,- k.k. / 84 m2 / 3 kamers
De Savornin Lohmanlaan 108A
€ 459.000,- k.k. / 88 m2 / 2 kamers
Sourystraat 20B
€ 450.000,- k.k. / 98 m2 / 4 kamers
Rochussenstraat 437
€ 490.000,- k.k. / 99 m2 / 3 kamers
Van Vollenhovenstraat 3-411
€ 500.000,- k.k. / 77 m2 / 2 kamers
Boezemkade 85
€ 410.000,- k.k. / 84 m2 / 3 kamers
Nieuwe Binnenweg 304H
€ 550.000,- k.k. / 101 m2 / 3 kamers
Ramlehweg 32C
€ 400.000,- k.k. / 63 m2 / 2 kamers
Bergpolderstraat 58A
€ 550.000,- k.k. / 104 m2 / 5 kamers
Sichemstraat 3B
€ 425.000,- k.k. / 73 m2 / 4 kamers
Nieuwe Binnenweg 159A
€ 475.000,- k.k. / 103 m2 / 3 kamers
Handelsplein 54
€ 490.000,- k.k. / 110 m2 / 2 kamers
Groeninxstraat 14B 02
€ 415.000,- k.k. / 78 m2 / 3 kamers
Schiekade 97A 02
€ 525.000,- k.k. / 92 m2 / 4 kamers
Boezemkade 213
€ 550.000,- k.k. / 120 m2 / 5 kamers
Abraham Tuschinskistraat 67
€ 490.000,- k.k. / 66 m2 / 2 kamers
Walstroplein 43
€ 475.000,- k.k. / 106 m2 / 3 kamers
Uitweg 15B
€ 395.000,- k.k. / 107 m2 / 5 kamers
Sonmansstraat 38B 02
€ 460.000,- k.k. / 84 m2 / 4 kamers
Baan 48G
€ 475.000,- k.k. / 63 m2 / 2 kamers
Sourystraat 21A
€ 450.000,- k.k. / 99 m2 / 4 kamers
Willebrordusplein 13B
€ 489.000,- v.o.n. / 73 m2 / 3 kamers
Willebrordusplein 13L
€ 499.500,- v.o.n. / 73 m2 / 3 kamers
Willebrordusplein 13K
€ 489.000,- v.o.n. / 73 m2 / 3 kamers
Willebrordusplein 13J
€ 489.000,- v.o.n. / 73 m2 / 3 kamers
Willebrordusplein 13H
€ 499.500,- v.o.n. / 73 m2 / 3 kamers
Willebrordusplein 13G
€ 499.500,- v.o.n. / 73 m2 / 3 kamers
Willebrordusplein 13E
€ 489.000,- v.o.n. / 73 m2 / 3 kamers
Willebrordusplein 13D
€ 489.000,- v.o.n. / 73 m2 / 3 kamers
doctor Hekmanstraat 20
€ 395.000,- k.k. / 77 m2 / 3 kamers
Nobelstraat 39C
€ 565.000,- k.k. / 130 m2 / 3 kamers
Gordelweg 224-03L
€ 485.000,- k.k. / 94 m2 / 5 kamers
Willebrordusstraat 66
€ 450.000,- k.k. / 86 m2 / 3 kamers
Willebrordusplein 13C
€ 489.000,- v.o.n. / 73 m2 / 3 kamers
Willebrordusplein 13F
€ 549.750,- v.o.n. / 85 m2 / 3 kamers
Willebrordusplein 13A
€ 499.500,- v.o.n. / 73 m2 / 3 kamers
Bergweg 65A
€ 475.000,- k.k. / 110 m2 / 4 kamers
Cornelis Trompstraat 24
€ 450.000,- k.k. / 104 m2 / 3 kamers
Stationssingel 95B
€ 425.000,- k.k. / 80 m2 / 5 kamers
Boezemkade 25
€ 399.000,- k.k. / 83 m2 / 3 kamers
Atjehstraat 70C
€ 395.000,- k.k. / 79 m2 / 3 kamers
Handelsplein 20
€ 550.000,- k.k. / 135 m2 / 2 kamers
Gordelweg 222A
€ 550.000,- k.k. / 124 m2 / 3 kamers
Halvemaanpassage 37
€ 539.000,- k.k. / 90 m2 / 2 kamers
Handelsplein 45
€ 510.000,- k.k. / 110 m2 / 2 kamers
Boezemkade 113
€ 399.000,- k.k. / 85 m2 / 3 kamers
Roentgenstraat 151
€ 415.000,- k.k. / 63 m2 / 3 kamers
Schiebroekselaan 47B
€ 525.000,- k.k. / 119 m2 / 4 kamers
Schapendreef 247
€ 400.000,- k.k. / 76 m2 / 3 kamers
Schiebroekselaan 61B
€ 515.000,- k.k. / 106 m2 / 4 kamers
Libellenstraat 50B 01
€ 399.500,- k.k. / 86 m2 / 4 kamers
Cleyburchstraat 1B 02
€ 525.000,- k.k. / 101 m2 / 5 kamers
Essenburgsingel 121B 02
€ 420.000,- k.k. / 107 m2 / 4 kamers
Beukelsweg 60A 03
€ 565.000,- k.k. / 126 m2 / 5 kamers
Kruisplein 748
€ 475.000,- k.k. / 68 m2 / 2 kamers
Marie van Eijsden-Vinkstraat 178
€ 525.000,- k.k. / 105 m2 / 4 kamers
De Graeffstraat 5A
€ 495.000,- k.k. / 74 m2 / 3 kamers
Wijnbrugstraat 50
€ 515.000,- k.k. / 84 m2 / 3 kamers
Oude Kleiweg 37
€ 525.000,- k.k. / 91 m2 / 3 kamers
Statensingel 171B
€ 585.000,- k.k. / 111 m2 / 4 kamers
Boezemkade 87
€ 478.000,- k.k. / 92 m2 / 3 kamers
Mathenesserlaan 247F
€ 400.000,- k.k. / 64 m2 / 2 kamers
Lambertusstraat 49A
€ 460.000,- k.k. / 83 m2 / 4 kamers
Statensingel 67B
€ 475.000,- k.k. / 84 m2 / 3 kamers
Heemskerkstraat 46B
€ 525.000,- k.k. / 98 m2 / 4 kamers
Brouwhuisstraat 18B
€ 585.000,- k.k. / 115 m2 / 5 kamers
Rusthoflaan 94A 02
€ 450.000,- k.k. / 86 m2 / 6 kamers
West-Sidelinge 64A
€ 490.000,- k.k. / 111 m2 / 4 kamers
Prins Hendrikkade 164A
€ 440.000,- k.k. / 90 m2 / 5 kamers
Maaskade 134A 03
€ 465.000,- k.k. / 106 m2 / 3 kamers
Haverlandstraat 12
€ 479.500,- k.k. / 87 m2 / 4 kamers
Bentinckplein 55
€ 485.000,- k.k. / 97 m2 / 3 kamers
Crooswijksestraat 14
€ 395.000,- k.k. / 89 m2 / 4 kamers
Van Houtenstraat 20C
€ 399.000,- k.k. / 83 m2 / 3 kamers
Lloydstraat 26A
€ 500.000,- k.k. / 111 m2 / 1 kamers
Gordelweg 58C
€ 495.000,- k.k. / 116 m2 / 4 kamers
Zaagmolenkade 25
€ 535.000,- k.k. / 113 m2 / 4 kamers
Grondherenstraat 66B
€ 415.000,- k.k. / 91 m2 / 2 kamers
Haverlandstraat 14
€ 459.500,- k.k. / 83 m2 / 3 kamers
Schiehavenkade 326
€ 585.000,- k.k. / 134 m2 / 3 kamers
Nijverheidstraat 24
€ 575.000,- k.k. / 136 m2 / 4 kamers
Sint-Jobskade 384
€ 585.000,- k.k. / 97 m2 / 2 kamers
De Monchyplein 13
€ 550.000,- k.k. / 82 m2 / 3 kamers
Vissersdijk 29
€ 560.000,- k.k. / 104 m2 / 3 kamers
Haverlandstraat 20
€ 438.500,- k.k. / 80 m2 / 3 kamers
Nico Koomanskade 753
€ 550.000,- k.k. / 66 m2 / 1 kamers
Lisstraat 6A
€ 545.000,- k.k. / 102 m2 / 3 kamers
Prins Hendrikkade 123e
€ 395.000,- k.k. / 85 m2 / 3 kamers
Jan Meertensstraat 10
€ 575.000,- k.k. / 128 m2 / 6 kamers