Spring naar content
typeBovenwoning
woonoppervlakte52 m2
slaapkamers1
buitenruimteGeen tuin
bouwjaar1909
energielabelA+

Brochure

Over de woning

City Living to the max!

Mathenesserlaan 247 is een fraai klassiek complex waar 3 jaar geleden een 8 – tal high end appartementen in zijn ontwikkeld. Met volle aandacht voor duurzaamheid én hedendaags comfort. In detail afgewerkt én direct te betrekken. En, indien gewenst gemeubileerd te koop. Waar vind je dat?

Gelegen aan de imposante Mathenesserlaan in nabijheid van alle stedelijke voorzieningen en het Centrum van Rotterdam.

De metrages variëren van ca 40 m2 tot 110 m2. Er zijn woningen met een tuin en met balkon.

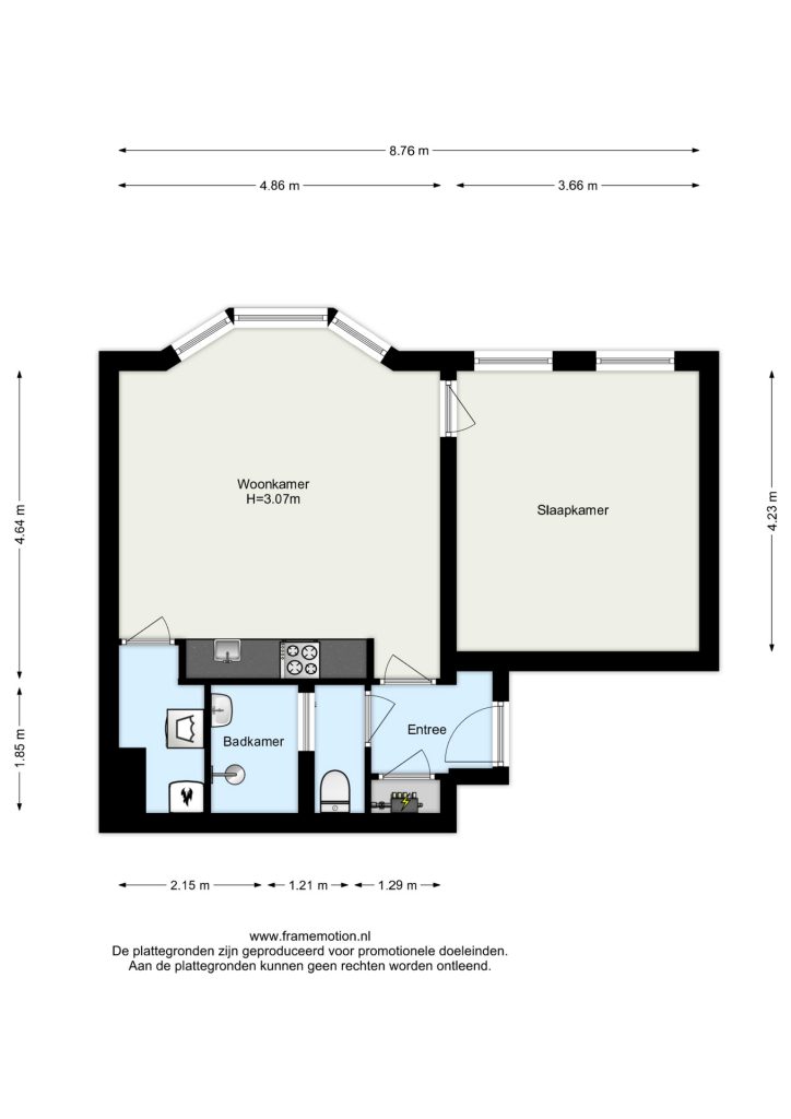
Indeling:
Dit klassieke gebouw betreed je middels een imposante voordeur voorzien van originele details zoals lambrisering en glas-in-lood in de tochtportaal. Dat is nog eens binnenkomen. Via dit portaal kom je in de zeer ruime, hoge hal met statig trappenhuis bereik je je nieuwe city appartement.

Op de eerste etage gelegen appartement met erker en zicht op de lommerrijke Mathenesserlaan.

Indeling: Via de entree en hal kom je in de superlichte woonkamer. De erker geeft je meer cachet dan je in de gemiddelde woningen aantreft. Vanuit de woonkamer bereik je een flinke slaapkamer welke ook aan de voorzijde is gelegen. De open keuken in de woonkamer is een luxe exemplaar met de volgende apparatuur: inductiekookplaat, combimagnetron, vaatwasser, afzuigkap, koelkast en vriezer. Een kast met de CV ketel en wasmachine aansluiting maakt het geheel compleet. Vanuit de hal bereik je de luxe badkamer welke voorzien is van toilet, wastafel in meubel, fijne inloopdouche en naast je vloerverwarming ook nog een handdoekenradiator.

Bijzonderheden:
- Bouwjaar 1909, luxe en modern volledig gerenoveerd opgeleverd in 2022
- Eigen grond
- Energielabel A+
- Volledig voorzien van kozijnen met dubbel glas. Achterzijde is kunststof (weinig onderhoud), voorzijde is hout.
- Renovatie is grondig uitgevoerd met nieuwe installaties, volledige vloerverwarming, glas, stucwerk.
- VVE wordt voor je opgestart middels een professionele beheerder, verkoper stort al een bedrag in de pot
- Splitsing is gaande, levering vindt plaats na onherroepelijkheid
- Eigen CV ketel, type HR Combi bouwjaar 2020
- In een koopakte wordt een ouderdoms- en niet-bewonersclausule vermeld
- Er is sprake van een project notaris, te weten: MR Notariaat te Nieuwerkerk a/d IJssel.
- Betaald parkeren op straat

Kenmerken

Financieel
Vraagprijs
€ 379.500,-
Status
Verkocht
Bouw
Soort bouw
Bestaande bouw
Bouwjaar
1909
Oppervlakten en inhoud
Wonen
52 m2
Overige inpandige ruimte
0 m2
Gebouwgebonden buitenruimte
0 m2
Perceel
400 m2
Inhoud
194 m3
Indeling
Aantal kamers
2
Aantal badkamers
1
Aantal slaapkamers
1
Aantal woonlagen
1
Voorzieningen
Voorzieningen
Mechanische ventilatie
Energie en isolatie
Energieklasse
A+
Isolatievormen
Dubbelglas
Warm water
CV ketel, Vloerverwarming geheel
Verwarming
CV ketel
CV ketel type
Remeha Combi
Buitenruimte
Type buitenruimte(s)
Geen tuin
Ligging
Parkeer faciliteiten
Betaald parkeren
Ligging
In woonwijk

Plattegronden

Ligging en beschikbare woningen in de buurt

Wat klanten zeggen over Maarten: