Spring naar content
typeEengezinswoning
woonoppervlakte117 m2
slaapkamers3
buitenruimteZonneterras
bouwjaar2020
energielabelA

Brochure

Over de woning

Moderne gezinswoning met stijl, comfort en een fijn terras! Deze instapklare 5-kamerwoning in combineert een stijlvolle afwerking met optimaal woongenot. Geniet van een prachtige keuken met spoeleiland, twee badkamers en een speelse, kindvriendelijke omgeving aan de voorzijde. Perfect voor wie het bruisende stadsleven wil combineren met de ruimte en comfort van een echt gezinshuis!

Precies in het midden van Rotterdam, ingeklemd tussen de twee stadsiconen De Hef en De Brug (Unilever gebouw), ligt Hefkwartier. Een nieuwe wijk in feijenoord. In de buurt Feijenoord ben je altijd omringd door water, ruimte en groen. Je woont er heerlijk rustig in een wijk met ambitie. En toch bevind je je op slechts een steenworp afstand van het centrum en diverse voorzieningen. Neem bijvoorbeeld Restaurant MAAS, een toprestaurant in de buurt. Toch zin in iets anders? Dan loop je ook zo naar restaurant de Schuimspaan voor overheerlijke sushi. En op de fiets zit je binnen 5 minuten op de Wilhelminapier met o.a. de Foodhallen en Hotel New York. Ook fijn: het Nassauhavenpark met prachtige oude bomen en prima onderhouden grasvelden, speeltuinen en zitjes ligt letterlijk om de hoek. De wijk uit? Met de fiets sta je binnen 10 minuten in het centrum en met de bus doe je daar nog geen 7 minuten over. Wil je de stad uit dan pak je de trein op Station-Zuid. Ten slotte zit je met de auto in no time op de snelweg.

Indeling
Begane grond:
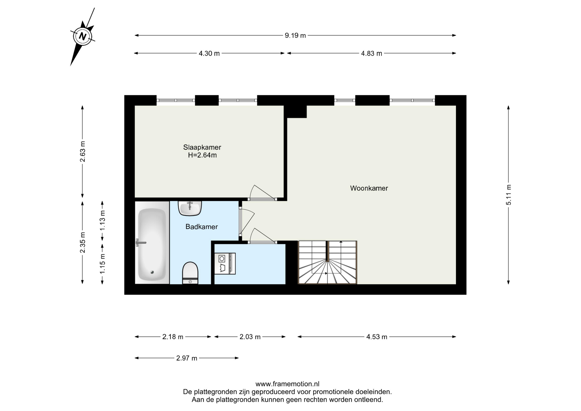
Bij binnenkomst word je verwelkomd in de L-vormige hal die toegang biedt tot alle vertrekken. Hier bevinden zich ook de meterkast en een modern, separaat toilet met fonteintje. Aan de voorzijde liggen twee slaapkamers. De royale hoofdslaapkamer is dankzij de grote raampartijen heerlijk licht en biedt een rustige plek om volledig te ontspannen. Hier vanuit heb je directe toegang tot een ruime walk-in closet. Hoe fijn is dat! Direct aangesloten grenst de eerste ruime badkamer en is voorzien van een inloopdouche met riante regendouche, een stijlvol zwevend wastafelmeubel en een praktische handdoekradiator. De twee kamer is volledig naar eigen wens in te richten zoals bijvoorbeeld een werkruimte of extra slaapkamer. Terug in de hal is er toegang tot een riante berging met achterom en de trap brengt je naar de eerste verdieping.

Eerste etage:
Hier stap je direct binnen in de prachtige open woonkamer. De nette vloer en de keurig afgewerkte muren maken de woning instap klaar en sfeervol. De woonkamer is een heerlijke plek om te ontspannen en biedt toegang tot de overige kamers op deze verdieping. Aan de voorzijde bevindt zich een lichte, fijne kamer die goed als werk/logeer of slaapkamer gebruikt kan worden. De badkamer is voorzien van een ligbad, toilet en wastafel. Tevens is er een praktische kamer met aansluitingen voor de wasmachine, ideaal als extra bergruimte.

Tweede etage:
Op de derde verdieping kom je binnen in de eetkamer met een zeer moderne keuken. Een echte eyecatcher! De keuken, compleet met een stijlvol spoeleiland, is voorzien van moderne inbouwapparatuur, waaronder een inductiekookplaat met geïntegreerde afzuiging, oven, koel-vriescombinatie, vaatwasser en een Quooker. Hier kook je met plezier, terwijl je toch direct contact houdt met de eetkamer. Met de grote raampartijen baadt de ruimte in natuurlijk licht en krijgt het een stijlvolle, open uitstraling, een heerlijke plek voor koken, eten en samenzijn. Vanuit de eetruimte heb je toegang tot het riante balkon van circa 25 m2. Een perfecte plek om van de zon te genieten, in de zomer een loungehoek neer te zetten en te barbecueën. Hoe heerlijk is dat!

Afmetingen
Voor de afmetingen en indeling zie onze gedetailleerde plattegrond.

Bijzonderheden
• Bouwjaar: 2020
• Woonoppervlakte circa 117 m2
• Inhoud circa 403 m3
• Eigen grond
• Energielabel A
• De woning beschikt over 6 zonnepanelen
• Verwarming en warm water middels stadsverwarming
• Vloerverwarming door de gehele woning
• Volledig voorzien van dubbele beglazing
• In de directe omgeving zijn alle dagelijkse voorzieningen te vinden, zoals openbaar vervoer, winkels, horeca, goede verbinding tot uitvalswegen en recreatiemogelijkheden
• Oplevering in overleg.

Wij nodigen je van harte uit om deze eengezinswoning in Rotterdam met eigen ogen te bewonderen.

Bel voor een vrijblijvende afspraak. We geven graag de mogelijkheden door!

De informatie is door ons met de nodige zorgvuldigheid samengesteld. Alle verstrekte informatie moet beschouwd worden als een uitnodiging tot het doen van een bod of om in onderhandeling te treden. Onzerzijds wordt echter geen enkele aansprakelijkheid aanvaard voor enige onvolledigheid, onjuistheid of anderszins, dan wel de gevolgen daarvan. Alle opgegeven maten en oppervlakten zijn indicatief.

Kenmerken

Financieel
Vraagprijs
€ 560.000,-
Status
Verkocht
Bouw
Soort woonhuis
Eengezinswoning
Soort bouw
Bestaande bouw
Bouwjaar
2020
Oppervlakten en inhoud
Wonen
117 m2
Overige inpandige ruimte
0 m2
Gebouwgebonden buitenruimte
22 m2
Perceel
55 m2
Inhoud
403 m3
Indeling
Aantal kamers
5
Aantal badkamers
2
Aantal slaapkamers
3
Voorzieningen
Voorzieningen
Mechanische ventilatie
Energie en isolatie
Energieklasse
A
Isolatievormen
Dakisolatie, Muurisolatie, Vloerisolatie, Dubbelglas
Warm water
Stadsverwarming, Vloerverwarming geheel
Verwarming
Stadsverwarming
Buitenruimte
Type buitenruimte(s)
Zonneterras
Hoofdtuin
Zonneterras
Hoofdtuin opp.
25 m2
Hoofdtuin positie
Noordoost
Ligging
Parkeer faciliteiten
Betaald parkeren, Parkeervergunningen
Ligging
In woonwijk

Plattegronden

Ligging en beschikbare woningen in de buurt

Wat klanten zeggen over Maarten: