- vraagprijs
- € 774.000,- k.k.
Brochure
Over de woning
Dit prachtige half-vrijstaande herenhuis is werkelijk een plaatje! De lijstgevel is prachtig versierd, een balkon met veel ornamenten en grote ramen waardoor veel licht de woning binnen valt.
Voorheen is het souterrain van de woning gebruikt als dokterspraktijk met daarboven het woonhuis. Tegenwoordig is de praktijk omgetoverd tot een heerlijke leef keuken met een extra slaapkamer en badkamer.
Indien gewenst ook te splitsen in 2 woningen of in ieder geval te gebruiken door bijvoorbeeld ouders met kinderen of grootouders. Ook een Bed & Breakfast is een optie, vele mogelijkheden dus!
De woning telt maar liefst 243 m2 woonoppervlakte verdeeld over 4 woonlagen, 7 fijne grote slaapkamers, 3 badkamers, een speelse vide waardoor de eerste verdieping en het souterrain in contact staan met elkaar, fijne veranda. Achter de woning is een grote stadstuin aanwezig met achterom.
Kortom een sfeervol, bijzonder huis, geschikt voor bijvoorbeeld een groot gezin of als woning met bedrijfsruimte net wat je nodig hebt.
De ligging is werkelijk perfect, op loopafstand van het stadscentrum, het NS station maar ook het Weizigtpark en de uitvalswegen.
Graag vertellen we je in een persoonlijke rondleiding meer over dit bijzondere object!
Indeling:
Via een korte trap kom je bij de prachtige grote voordeur welke toegang geeft tot de hal.
In de hal loop je een tweede trap op naar de woonverdieping.
Woonverdieping:
Hal met toilet, vrijhangend.
Deze verdieping is heerlijk licht door de grote ramen en staat door de vide in contact met het souterrain. Aan de achterzijde is een grote veranda aanwezig welke mooi uitzicht heeft over de tuin en door de ligging op het zuid oosten een groot deel van de dag zonovergoten is.
Onderhuis:
Via een trap in de woonkamer met glazen balustrade kom je in het in 2015 volledig gerenoveerde onderhuis uit. Ooit een dokterspraktijk, nu een heerlijke woonkeuken waar door de huidige eigenaresse heel veel gebruik van gemaakt wordt.
Onder de trap zijn vaste kasten gemaakt. De keuken is geplaatst in U opstelling en voorzien van koelkast, vriezer, vaatwasser, inductie kookplaat, stoomoven (werkt niet goed), oven, afzuigkap, Quooker en spoelbak, het geheel is afgewerkt met een composiet werkblad. Via openslaande deuren kom je in de prachtige stadstuin uit, een oase voor alle vogels en insecten en een fijne plek om na een lange dag werken af te schakelen.
Hal met toilet, vrijhangend, fonteintje, stuc wanden.
Slaapkamer 1 gelegen aan de straatzijde van de woning.
Badkamer met waskom en douche, geheel betegelde wanden.
Aparte bergruimte met deur naar de zijpoort, tevens opstelling van de CV ketel (merk Bosch, bedoelt voor souterrain en woonverdieping, bouwjaar onbekend).
Het volledige onderhuis is voorzien van vloerverwarming en een gietvloer als afwerking.
Eerste verdieping:
Overloop met trapopgang naar de tweede verdieping.
Slaapkamer 2 is gelegen aan de voorzijde en bestaat uit 2 niveaus wat de kamer erg speels maakt. Daarnaast zijn er openslaande deuren naar het balkon.
Slaapkamer 3 gelegen aan de achterzijde met eigen inloopkast en openslaande deuren naar wederom een heerlijk balkon met uitzicht op de tuin.
Badkamer met bad, douche, toilet en dubbele wastafel.
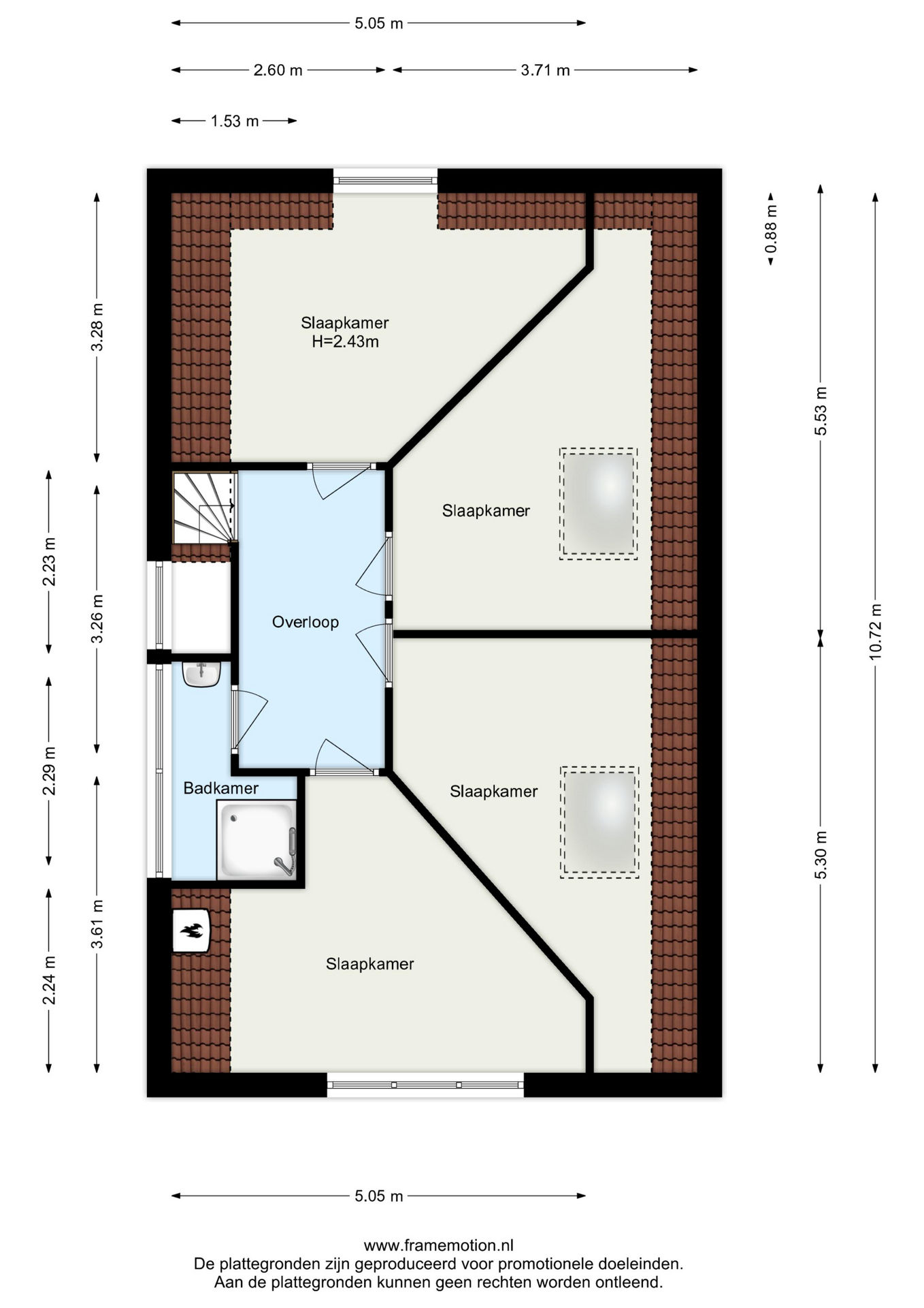
Tweede verdieping:
Overloop met toegang tot alle kamers. Er zijn op deze verdieping maar liefst 4 kamers gesitueerd EN een extra badkamer. De balken structuur op deze verdieping draagt de kap dus dit kunnen bijvoorbeeld ook 2 grote kamers worden.
Slaapkamer 4 gelegen aan de voorzijde van de woning met kleine dakkapel.
Slaapkamer 5 met dakraam.
Slaapkamer 6 eveneens met dakraam.
Slaapkamer 7 aan de achterzijde van de woning met opstelling van de 2de CV ketel (merk Remeha, zorgt voor de verwarming van de eerste en tweede verdieping, bouwjaar 2015).
Badkamer met douche en wastafel.
Algemeen:
Op een enkel raam na volledig dubbel glas.
Bekleding van dakkapel vernieuwd rond 2019
Schilderwerk buitenzijde 2018.
Bij verbouwing in 2015 souterrain en 1e verdieping buitenmuur geïsoleerd.
5 Eigen zonnepanelen 240 WpK per stuk, geplaatst in 2012.
Nieuwe dakpannen 2000/2001.
Zolder verbouwd en ingedeeld in 2001, toen ook dakisolatie geplaatst.
Pand heeft een gemengd 2 bestemming dus naast wonen zijn er legio extra mogelijkheden voor het gebruik van dit prachtige pand.
Het pand is een beschermd stads-en dorpsgezicht en een gemeentelijk monument.
Er is geen energielabel aanwezig, deze hoeft bij gemeentelijke monumenten niet aangevraagd te worden.
Er is een recente bouwkeuring ter inzage, uitgevoerd door Perfectkeur.
Fundering:
Funderingsrapportage fase 1 en 2 uit 2002 zijn aanwezig en recent is eveneens door Perfectkeur een nieuw fase 1 onderzoek uitgevoerd, ook allen ter inzage.
Er is bij deze rij woningen gebruik gemaakt van de Amsterdamse paalfundering (dubbele paalfundering).
Staat van de fundering is matig, bijbehorende handhavingstermijn is circa 15 jaar.
Oplevering:
8 Weken na oplevering nieuwbouwwoning verkoopster doch uiterlijk eind juni 2025.
De informatie in deze brochure is met de nodige zorg vastgesteld. Aan deze gegevens kunnen echter geen rechten worden ontleend, alle aansprakelijkheid van Maarten Makelaardij is derhalve uitgesloten. Voorts zijn wijzigingen voorbehouden. Alle opgegeven maten en oppervlakten zijn indicatief.