Spring naar content
typeVilla
woonoppervlakte166 m2
slaapkamers4
buitenruimteTuin rondom
bouwjaar2025

Brochure

Over de woning

Ruime en duurzame villa in Dordts Buiten (kavel H20) – met zonnige tuin op het oosten en veel uitbreidingsopties!

Op een rustige en centraal gelegen plek in Dordrecht wordt Dordts Buiten ontwikkeld: een groene, waterrijke en toekomstbestendige wijk waar natuur en duurzaamheid samenkomen. Hier worden circa 367 woningen gerealiseerd in uiteenlopende stijlen en groottes, geschikt voor jong en oud, starters en doorstromers.

Midden in deze natuurinclusieve, kindvriendelijke en klimaatadaptieve wijk ligt een unieke kans: villa H20, gelegen op een royale zelfbouwkavel van 374 m² met een zonnige achtertuin op het oosten. Deze duurzame woning wordt gerealiseerd door Brummelhuis, en biedt volop comfort, flexibiliteit én luxe — zonder dat je het hele bouwtraject zelf hoeft te regiseren.

Duurzaam, flexibel en toekomstbestendig
De villa wordt hoogwaardig afgewerkt, volledig geïsoleerd, aangesloten op stadsverwarming en standaard voorzien van 12 zonnepanelen. Dankzij de vloerverwarming, HR++ beglazing en de hoogwaardige bouwmaterialen is de woning klaar voor een energiezuinige toekomst.

Uitbreidingsmogelijkheden & Optielijst
Deze woning biedt diverse uitbreidingsmogelijkheden. Er is een optielijst beschikbaar met onder andere opties voor het realiseren van een aanbouw, dakkapel en een vrijstaande berging. Dankzij de slimme indeling en bouwstructuur is het eenvoudig om de woning naar wens te vergroten.

Een overzichtelijke optielijst en bijbehorende tekeningen zijn als bijlage op te vragen, hierin kun je alle uitbreidingsmogelijkheden en bijbehorende richtprijzen terugvinden. Neem gerust contact op voor meer informatie of advies over de opties!

Globale indeling:

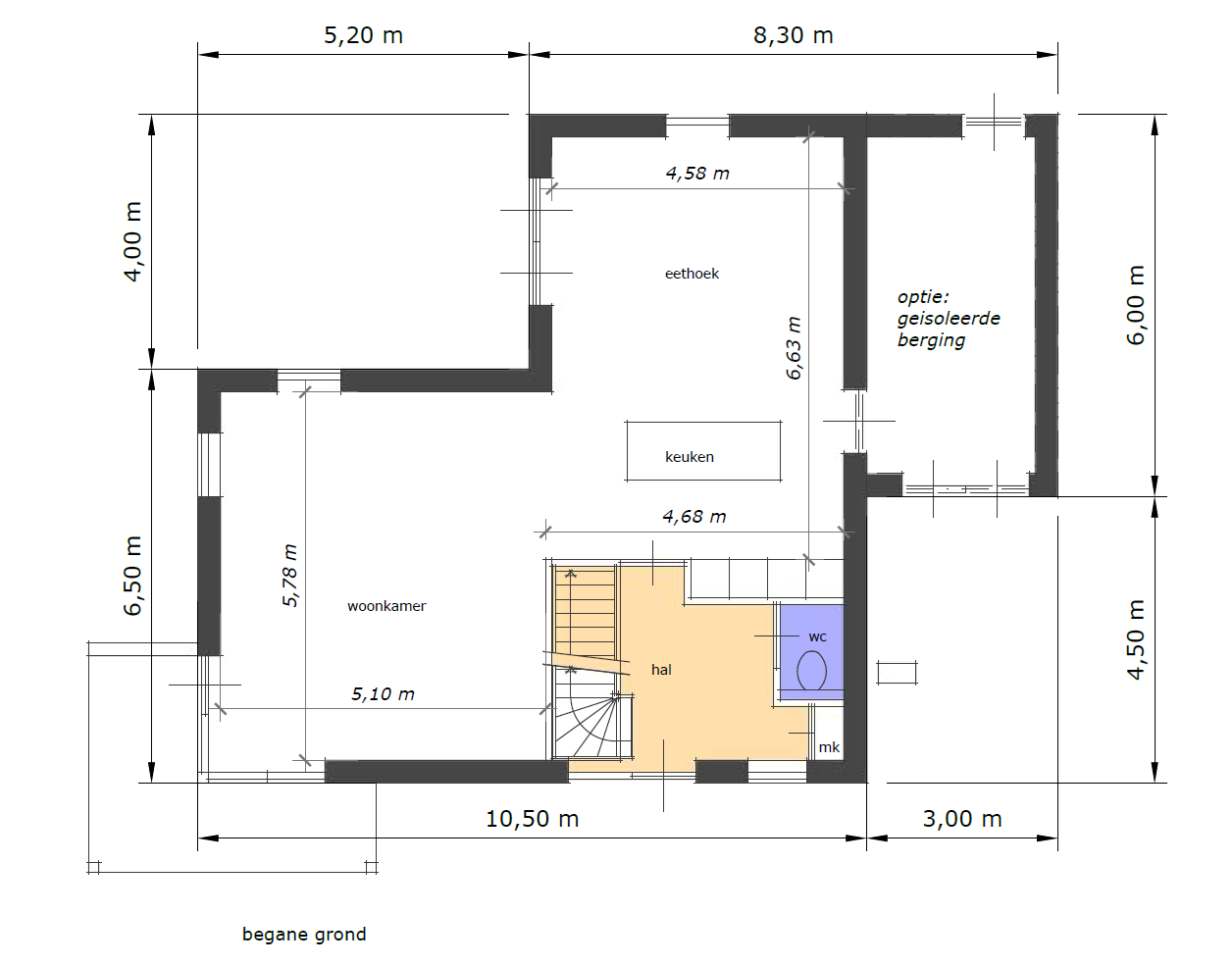
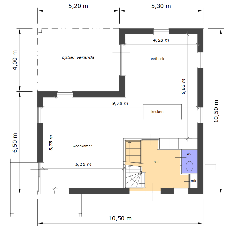
Begane grond:
Entree aan de zijkant van de woning met royale hal, meterkast, trapopgang en toilet.

Aan de voorzijde bevindt zich een ruime woonkamer met openslaande deuren naar de zonnige tuin. Grote raampartijen zorgen voor veel lichtinval.

De royale open keuken ruimte wordt naar de zijkant van de woning uitgebouwd en biedt veel mogelijkheden voor een serieuze leefkeuken. Een prachtige ruimte om jouw droomkeuken te creëren.
Optioneel kan een aanbouw aan de zijkant worden gerealiseerd, waarmee de woonruimte met 15 m² wordt vergroot. Ideaal te gebruiken als bijkeuken, wasruimte, thuiskantoor of uiteraard als berging (zie optietekeningen).
Aan de voorzijde van de woning, gelegen aan de kreekzijde, wordt een overkapt terras gerealiseerd met een wijds en groen uitzicht.

Eerste verdieping:
Overloop met toegang tot drie slaapkamers, een ruime badkamer (vrij in te delen in overleg met de aannemer) en een praktische wasruimte. Optioneel kan een apart toilet worden gerealiseerd.

De hoofdslaapkamer biedt ruimte voor een inloopkast.

Kies je voor een wasruimte op de begane grond, dan kan deze ruimte op de verdieping bijvoorbeeld bij een slaapkamer worden getrokken. Deze gehele verdieping is standaard voorzien van vloerverwarming.

Tweede verdieping:
Een royale zolderruimte, flexibel in te delen. Door het plaatsen van dakkapellen kunnen hier eenvoudig een vierde en zelfs vijfde slaapkamer worden gerealiseerd. Wanneer wordt gekozen voor een indeling op deze verdieping, wordt deze eveneens voorzien van vloerverwarming. Daarnaast kan worden gekozen voor een of meerdere dakramen.

Buitenruimte en parkeren:
De villa staat op een ruim perceel met de achtertuin op het oosten – perfect voor een groot terras, overkapping of groene tuin.
Achterin de tuin wordt standaard één parkeerplaats op eigen terrein gerealiseerd. Optioneel kan gekozen worden voor een berging, carport of zelfs een garage (zie illustraties en optielijst).

Samengevat:
• Riante en duurzame villa op een ruim perceel van 374 m²
• Volledig naar wens aan te passen in overleg met aannemer Brummelhuis
• Aangesloten op stadswarmte (HVC) en voorzien van 12 zonnepanelen
• Vloerverwarming standaard op de begane grond en eerste verdieping
• Hardhouten kozijnen met HR++ glas
• Minimaal energielabel A++
• Achtertuin gelegen op het oosten
• 1 parkeerplaats op eigen terrein (mogelijkheid tot carport of garage)
• Badkamer en toilet worden voorzien van tegelwerk en sanitair
• Bouw onder Woningborg-garantie
• Verwachte oplevering: circa 8 maanden na start heiwerk
• Koop via een koop- en aannemingsovereenkomst
• De genoemde prijzen zijn geldig tot 1 november 2025.

Ben je benieuwd naar de mogelijkheden of wil je meer informatie? Neem gerust contact met ons op. We vertellen je graag meer over deze woning en alles wat Dordts Buiten te bieden heeft.

De informatie in deze brochure is met de nodige zorg vastgesteld. Aan deze gegevens kunnen echter geen rechten worden ontleend, alle aansprakelijkheid van Maarten Makelaardij is derhalve uitgesloten. Voorts zijn wijzigingen voorbehouden. Alle opgegeven maten en oppervlakten zijn indicatief.

Kenmerken

Financieel
Vraagprijs
€ 889.000,-
Status
Beschikbaar
Bouw
Soort woonhuis
Villa
Soort bouw
Nieuwbouw
Bouwjaar
2025
Dak type
Zadeldak
Oppervlakten en inhoud
Wonen
166 m2
Overige inpandige ruimte
0 m2
Gebouwgebonden buitenruimte
0 m2
Perceel
374 m2
Inhoud
570 m3
Indeling
Aantal kamers
5
Aantal badkamers
1
Aantal slaapkamers
4
Voorzieningen
Voorzieningen
Mechanische ventilatie, Glasvezel kabel, Zonnepanelen
Energie en isolatie
Isolatievormen
Volledig geïsoleerd
Warm water
Stadsverwarming
Verwarming
Stadsverwarming
Buitenruimte
Type buitenruimte(s)
Tuin rondom
Hoofdtuin
Tuin rondom
Ligging
Parkeer faciliteiten
Openbaar parkeren, Op eigen terrein
Parkeren capaciteit
1
Ligging
Aan rustige weg, In woonwijk

Plattegronden

Ligging en beschikbare woningen in de buurt

Wat klanten zeggen over Maarten: