Spring naar content
typeHerenhuis
woonoppervlakte182 m2
slaapkamers4
buitenruimteAchtertuin, Zijtuin
bouwjaar1885

Brochure

Over de woning

Dit karakteristieke herenhuis, gebouwd circa 1885, combineert historische charme met moderne voorzieningen. Het huis verwelkomt u met een opvallende rode voordeur, waarna u de woonverdieping betreedt die indruk maakt met zijn fraaie ramen, en-suite deuren, ornamentenplafonds, een houten vloer en unieke tegels.

De erker en de woonkamer bieden comfortabele leefruimtes, verrijkt door het natuurlijke licht dat binnenvalt via de hoge ramen. Een verdieping lager vindt u een gezellige leefkeuken die directe toegang biedt tot de tuin en via een wenteltrap naar een uniek dakterras boven de vrijstaande garage. Vanaf dit terras geniet u van een uitzicht op de bekende blauwe fontein op het Beverwijcksplein, de grote oude bomen en de vele vogels die zich hier bevinden. Ook bevindt u zich op loopafstand van het stadscentrum. Een oplossing voor parkeerproblemen is ook voorhanden, dankzij de mogelijkheid om eigen voertuigen te stallen.

Op de eerste verdieping bevinden zich drie slaapkamers, waarvan één momenteel gebruikt wordt als kleedkamer en een andere als hoofdslaapkamer met toegang tot een balkon. De open zolderverdieping omvat een extra slaapkamer en de tweede badkamer. De overloop wordt eveneens benut als extra slaapkamer. Voor ontspanning biedt het huis een sauna, ideaal voor de wintermaanden.

Andere grote pluspunten:
- 3 minuten lopen van het NS station
- binnen 12 minuten ben je met de trein op station Blaak!

Indeling:

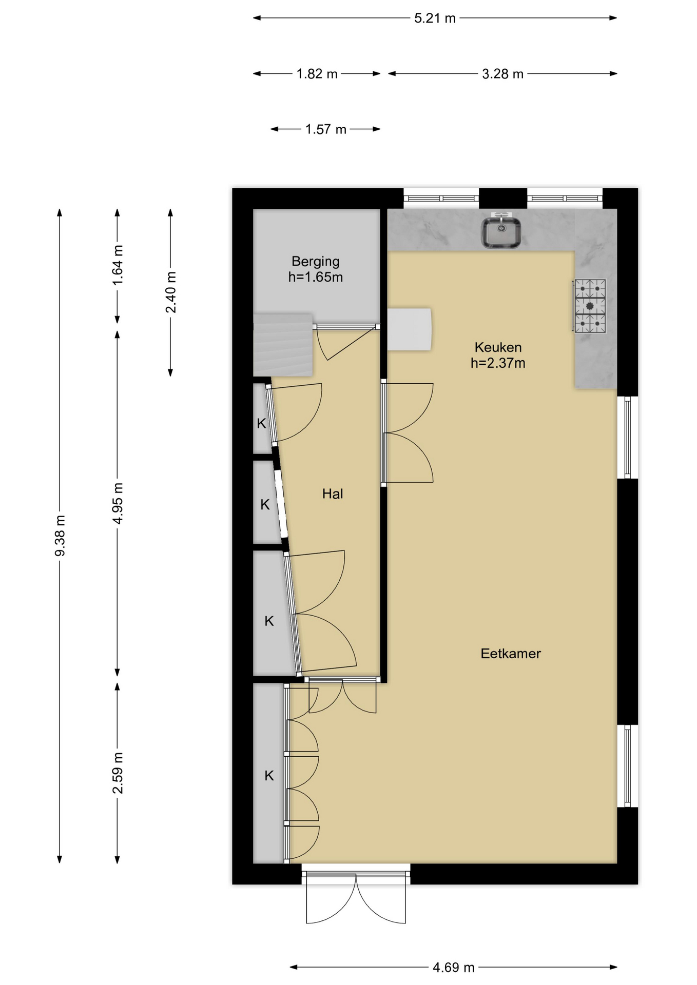
Souterrain:

Wat meteen opvalt als je de trap naar het souterrain afdaalt, zijn de karakteristieke details en de charmante deuren die toegang geven tot bergruimte. Onder de trap bevindt zich een grote kast met de regelaars voor de vloerverwarming.
De leefkeuken is enorm en knus, met een hoekopstelling aan de voorkant. Opvallend zijn de prachtige vloer en de bijzondere glas-in-loodramen gecombineerd met de originele vaste kasten. Deze ruimte wordt nog altijd zeer gewaardeerd door de huidige eigenaren. De keuken, passend bij de karakteristieke sfeer van het huis, is voorzien van een originele schouw, een granieten wastafel en werkblad, een Quooker-kraan, vaatwasser, 5-pits gaskookplaat en oven, een vrijstaande koelkast, vriezer en magnetron. De ruimte heeft enkel glas met (grotendeels) voor- en achterzetramen en is uitgerust met vloerverwarming. Via openslaande deuren bereik je de achtertuin. Er is een originele vaste kastenwand aanwezig met hierin de wasaansluiting.
De privé achtertuin grenst aan het Beverwijcksplein; de vrijstaande garage in de tuin is een luxe, gezien de nabijheid van de binnenstad. Een interessant detail: via een spiltrap bereik je het dakterras op de garage, wat een unieke toevoeging is.

Begane grond:

Deze verdieping, net boven de begane grond gelegen, functioneert als de formele woonkamer. De kamer heeft een en-suite-indeling, de vloer is bedekt met fermacell isolatieplaten waaroverheen een visgraatvloer is gelijmd. Het plafond is rijkelijk versierd met florale ornamenten en de radiatoren op deze verdieping zijn vernieuwd.
De achterkamer biedt toegang tot de erker, die volledig is gerenoveerd, deels voorzien van nieuw enkel glas en deels van vacuümglas. De erker kenmerkt zich door roze authentiek glas en daarnaast is het ook mogelijk om de schuiframen open te zetten.

Onder de trap bevindt zich een toilet met een bergkast, een fonteintje en gedeeltelijk betegelde wanden.

Eerste verdieping:

De overloop biedt toegang tot alle vertrekken en de vaste trap naar de tweede verdieping.
Slaapkamer 1, gelegen aan de achterzijde, heeft een plafond met ornamenten en een balkon boven de erker, dat ook is hersteld en deels vernieuwd in 2024.
Slaapkamer 2, aan de voorzijde, is gescheiden van slaapkamer 1 door een dubbel openslaande deur.
Slaapkamer 3 is momenteel in gebruik als inloopkast.
De badkamer heeft een geïsoleerd plafond en is uitgerust met een bad (whirlpool defect), een douchehoek, een wastafel met meubel, een designradiator, een infraroodpaneel, toilet en een bidet.

Tweede verdieping:

De grote open zolderruimte met 2 dakramen biedt aan de voorzijde toegang tot een slaapkamer en aan de achterzijde tot de badkamer en sauna. Deze ruimte kan gemakkelijk functioneren als extra slaapkamer of als zelfstandige woonverdieping.
Slaapkamer 4 is voorzien van 2 dakramen en een dakkapel.
De badkamer beschikt over een waskom en meubel, een vrijhangend toilet, een dakraam, een douche en een thermostaatkraan.
In de saunaruimte is een kast waarin de CV-ketel (Remeha Tzerra HR 2012)

Algemene kenmerken:

- Erker en balkon op de erker gerenoveerd door Maarten Mostert 2024, het authentieke roze glas is behouden gebleven.
- Historische elementen gecombineerd met moderne voorzieningen zoals vloerverwarming in het souterrain en een geïsoleerde fermacell vloer met visgraat parket op de begane grond (woonverdieping) en eerste verdieping.
- Beschermd stads- en dorpsgezicht, gemeentelijk monument.
- Recent gerenoveerde dakkapel en erker, voorzien van dubbel en vacuüm glas.
- Volledig vernieuwde fundering in 2002.
- De meterkast heeft 8 groepen, 2 aardlekschakelaars, een hoofdschakelaar, dag- en nachtstroom, een gasmeter en watermeter; de gasleiding is vervangen.
- Buitenmuur van de woonverdieping en eerste verdieping geïsoleerd.
- In september 2021 is de tuin opgehoogd en opnieuw aangelegd voor een goede drainage, uitgevoerd door Hoveniersbedrijf Gert Jan de Vries.

De informatie in deze brochure is met de nodige zorg vastgesteld. Aan deze gegevens kunnen echter geen rechten worden ontleend, alle aansprakelijkheid van Maarten Makelaardij is derhalve uitgesloten. Voorts zijn wijzigingen voorbehouden. Alle opgegeven maten en oppervlakten zijn indicatief.

Kenmerken

Financieel
Vraagprijs
€ 699.000,-
Status
Verkocht
Bouw
Soort woonhuis
Herenhuis
Soort bouw
Bestaande bouw
Bouwjaar
1885
Dak type
Zadeldak
Oppervlakten en inhoud
Wonen
182 m2
Overige inpandige ruimte
0 m2
Gebouwgebonden buitenruimte
7 m2
Perceel
127 m2
Inhoud
639 m3
Indeling
Aantal kamers
7
Aantal badkamers
2
Aantal slaapkamers
4
Voorzieningen
Voorzieningen
TV kabel, Dakraam
Energie en isolatie
Isolatievormen
Dakisolatie, Gedeeltelijk dubbelglas
Warm water
CV ketel, Vloerverwarming gedeeltelijk
Verwarming
CV ketel
CV ketel type
Remeha Tzerra HR
Buitenruimte
Type buitenruimte(s)
Achtertuin, Zijtuin
Hoofdtuin
Achtertuin
Hoofdtuin opp.
30 m2
Hoofdtuin positie
Noordoost
Ligging
Parkeer faciliteiten
Parkeervergunningen

Plattegronden

Ligging en beschikbare woningen in de buurt

Wat klanten zeggen over Maarten: