Spring naar content
typeHerenhuis
woonoppervlakte206 m2
slaapkamers4
buitenruimteZonneterras
bouwjaar2005
energielabelA

Brochure

Over de woning

Wacht maar tot je het dakterras ziet…

Noorderstraat 51 is er eentje waar je hart sneller van gaat kloppen. Serieus, waar vind je nou ruim 200m² woonplezier in de Dordtse binnenstad zó lekker verscholen in de luwte, maar toch op een paar stappen van je favoriete koffietentje? Juist ja… Hier dus!

Deze woning is allesbehalve standaard. Met z’n vijf woonlagen (ja echt, VIJF!) voelt het alsof je een mini-hotel binnenloopt — inclusief wellness vibes dankzij die ensuite badkamer. Thuiswerken? Geen probleem. Relaxen op je dakterras met waan-zin-nig uitzicht? Graag! Even snel een boodschap of borrel doen? De stad ligt aan je voeten. En voor de deur géén parkeerstress, want je eigen plekje staat al voor je klaar.

Bonuspunten? Het gemak van een moderne woning uit 2005, maar dan wél met die unieke charme waar we allemaal naar op zoek zijn. Licht, ruimte, verrassende indeling én een berging voor al je fietsen en rommel waar je geen afscheid van kunt nemen.

Loop je de Prins Clausbrug over, dan sta je zó in de Stadswerven — en eerlijk is eerlijk, dat is ook niet verkeerd.
Dit is er eentje voor de echte stadsliefhebber met smaak. Kom je kijken? Dan laten wij je alle lagen (letterlijk én figuurlijk) van deze bijzondere woning zien!

Indeling:

De ruime hal voorzien van een tegelvloer in antraciet tint en nette gestucte wanden. Daar is de trap naar boven naar de woonkamer en toegang tot kruipruimte, de meterkast, toilet, voorkamer en de berging.

Meterkast met 11 groepen, 4x aardlekschakelaar, hoofdschakelaar, dag- en nachtstroom, gasmeter, watermeter en glasvezel kabel.

Toilet, vrij- hangend, met stenen waskom en fonteintje, gedeeltelijk betegelde wanden.

Lichte kamer aan voorzijde, een ideaal thuiskantoor of hobbykamer! De kamer is voorzien van grote raampartijen, stucwerk wandafwerking en een strakke gietvloer.

Ruime berging aan achterzijde, met volop opslagmogelijkheden. In deze ruimte bevindt zich de mechanische ventilatie-box (2021 vernieuwd), de opstelplaats CV-ketel (Intergas Xtreme, bouwjaar 2021), een Gardena waterslanghaspel en een compressor met luchtslanghaspel om auto-, scooter- of fietsband op te pompen. Daarnaast is er een kast onder de trap met daarin het centraal stofzuigersysteem (Snoek, 2015) wat door heel de woning is aangelegd; je kunt dus op elke verdieping de slang in de muur steken zonder dat je de stofzuiger alle trappen op hoeft te tillen.

Vanuit de berging kan je via de zijdeur het achtergelegen parkeerterrein bereiken, waar de woning beschikt over een eigen parkeerplaats. In overleg met VvE is het mogelijk om hier een laadpunt te realiseren.

Eerste verdieping:

Heerlijk open leefruimte met aan 2 kanten ramen en Franse balkons. In de kamer is een grote open keuken aanwezig, de wanden en plafond zijn glad-gestuct en op de vloer is een kliklaminaat (merk Meister) visgraat geplaatst, heerlijk modern en strak, passend bij het huis.

In de kamer is een gasaansluiting aanwezig voor het plaatsten van een haard. Daarnaast is de hele verdieping voorzien van op maat gemaakte schutters om zo de hele dag door de lichtinval op een sfeervolle manier te kunnen regelen.

Over de gehele lange zijde is een schilderijen-ophangsysteem.

De keuken is op maat gemaakt voor de ruimte en uitgevoerd met een wandopstelling en een groot eiland met veel lades en een bar. De keuken is uitgerust met Bosch inbouwapparatuur: een Zeolith vaatwasser, inductie kookplaat, recirculatie kap, koelkast, vriezer, koffiezet apparaat, oven en diverse nissen om objecten in uit te stallen.

Tweede verdieping:

Deze volledige verdieping is gewijd aan slapen, badderen en aankleden. Deze ruime master-bedroom heeft een warm eikenhouten vloer, 2 grote ramen en Franse balkons in slaapgedeelte en 1 in kastgedeelte en 1 in badkamer. Allen met op maat gemaakte shutters.

De vaste kasten en luxe badkamer zijn en-suite. De badkamer is uitgevoerd met grote zwarte tegels, inbouwspotjes en verlichte nisjes, een vrij-hangend toilet, 2 inloop-regendouches naast elkaar, 2 waskommen van vulkanisch kalksteen met meubel en een vrijstaand bad van het merk Victoria+Albert.

In het slaapgedeelte is een radiator en hangt een airconditioning; in badkamergedeelte is een elektrische design radiator met blower geplaatst.

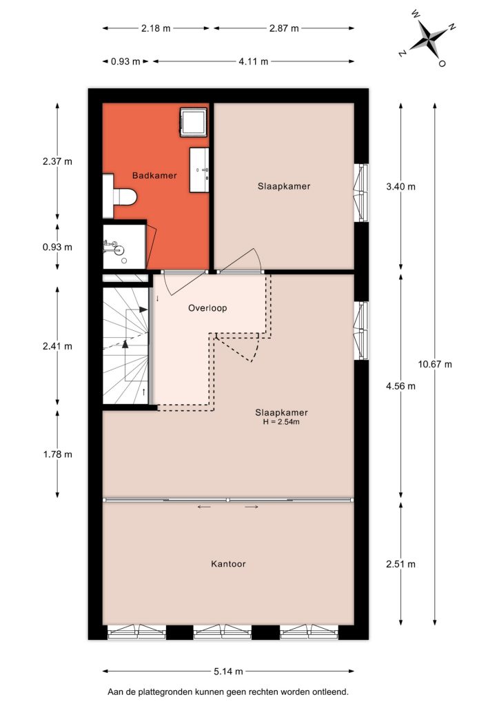
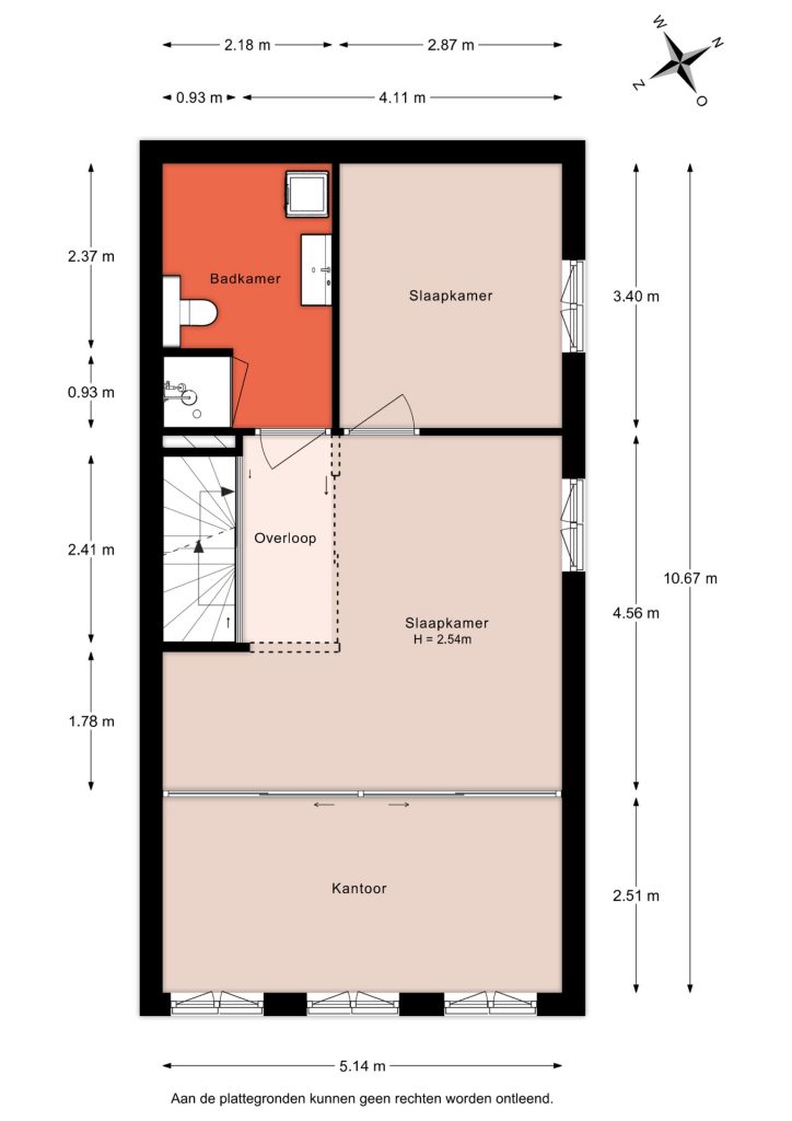
Derde verdieping:

Via de schuifdeuren voor het trappengat kom je in een enorm grote overloop welke nu in gebruik is als extra slaapkamer. Er zit een groot raam en Frans balkon. Middels een schuifpui is een aparte ruimte bereikbaar die nu dienst doet als kantoor maar dit kan ook een slaapkamer zijn, een toffe gym of een speelkamer.

De ruimte beschikt over 3 grote ramen met Frans balkon met op maat gemaakte en in kleur gespoten Easyclick plissé. Hiervandaan heb je een enorm uitzicht over de Lijnbaan.

Vanuit de overloop/slaapkamer is een deur naar de tweede badkamer met douche, wastafel en meubel, vrijhangend toilet en opstelling voor wasmachine en droger. Gedeeltelijk betegelde wanden. En ook vanuit de slaapkamer is de deur naar nog een slaapkamer wat nu de babykamer is met raam en Frans balkon.

Deze verdieping, behalve de badkamer, heeft een gietvloer. Tevens is er in de slaapkamer een airco-unit met voldoende capaciteit om de gehele verdieping te koelen.

NB: Er zitten 2 plattegronden van deze verdieping bijgevoegd met opties tot het maken van een overloop waardoor je een afgesloten slaapkamer krijgt, in plaats van een open ruimte.

Vierde verdieping:

Overloop met toegang tot het grote dakterras. Het dakterras is zonnig en biedt prachtig uitzicht over Dordrecht, echt een unieke plek met veel privacy en meerdere zitmogelijkheden.

Dakterras is voor de helft uitgevoerd met kunststof composiet vlonderplanken en deels met grote keramische tegels. Er staat een hele oude olijfboom, palmbomen, druivenrank, zware natuurstenen (BBQ) tafel met stroomaansluiting, wateraansluiting en haspel.

Algemeen:
- Eigen grond, 45 m².
- Energielabel A, de woning is grotendeels voorzien van aluminium kozijnen met HR++ glas.
- Glasvezel en Coax kabel (UPC kastje) komt binnen in de meterkast, de werkkamer op de begane grond is voorzien van een coax wandaansluiting. Op alle bovenverdiepingen zijn UTP-aansluitingen aanwezig.
- De verlichting is grotendeels te besturen met het Klik-aan-Klik-uit systeem via app, maar ook met fysieke knoppen.
- Alle radiatoren zijn uitgerust met Tado slimme thermostaatkranen welke met een app onafhankelijk van elkaar te bedienen zijn om energie te besparen.
- Eigen parkeerplaats #10 is direct bij de achterdeur gelegen, de VvE bijdrage bedraagt € 15,27 per maand. In overleg met VvE mogelijk om een laadpunt te realiseren. Het parkeerterrein is afgesloten met een speedgate en 2 looppoorten.
- De in 2024 nieuw geplaatste airconditioning is een Mitsubishi Electric heeft een capaciteit van 6,8 kW koelen en 8,6 kW verwarmen. Het betreft een multisplit-unit met 2 binnen-units, op 3e en 4e verdieping.
- Oplevering in overleg.

De informatie in deze brochure is met de nodige zorg vastgesteld. Aan deze gegevens kunnen echter geen rechten worden ontleend, alle aansprakelijkheid van Maarten Makelaardij is derhalve uitgesloten. Voorts zijn wijzigingen voorbehouden. Alle opgegeven maten en oppervlakten zijn indicatief.

Kenmerken

Financieel
Vraagprijs
€ 695.000,-
Status
Verkocht
Bouw
Soort woonhuis
Herenhuis
Soort bouw
Bestaande bouw
Bouwjaar
2005
Dak type
Plat dak
Oppervlakten en inhoud
Wonen
206 m2
Overige inpandige ruimte
0 m2
Gebouwgebonden buitenruimte
48 m2
Perceel
45 m2
Inhoud
692 m3
Indeling
Aantal kamers
7
Aantal badkamers
2
Aantal slaapkamers
4
Voorzieningen
Voorzieningen
Mechanische ventilatie, TV kabel, Airconditioning, Schuifpui, Frans balkon, Glasvezel kabel
Energie en isolatie
Energieklasse
A
Isolatievormen
Volledig geïsoleerd
Warm water
CV ketel
Verwarming
CV ketel
CV ketel type
Intergas Xtreme
Buitenruimte
Type buitenruimte(s)
Zonneterras
Hoofdtuin
Zonneterras
Hoofdtuin opp.
55 m2
Bergruimte
Soort
Inpandig
Voorzieningen
Voorzien van verwarming, Voorzien van elektra, Voorzien van water
Ligging
Parkeer faciliteiten
Betaald parkeren, Op eigen terrein, Op afgesloten terrein
Ligging
Aan rustige weg, In centrum, In woonwijk

Ligging en beschikbare woningen in de buurt

Wat klanten zeggen over Maarten: