- vraagprijs
- € 850.000,- k.k.
Brochure
Over de woning
Welkom thuis!
Je rijdt De Hoven binnen en je ziet direct dat er enorm veel aandacht is besteed aan deze prachtige wijk. De straten zijn ruim opgezet, het ene huis is nog mooier dan het andere en overal waar je kijkt zie je groen. De gemeente houdt het allemaal keurig netjes bij, dus het fijne straatbeeld is het eerste voordeel dat je maar binnen kunt hebben!
Deze luxe twee-onder-een-kapper heeft zeeën aan ruimte, parkeergelegenheid voor 2 auto’s in de voortuin, 5 slaapkamers, grote badkamer, een heerlijke achtertuin en dat is nog maar het begin…
Gaan we naar binnen via de voordeur of de ruime garage? We kiezen de garage, door de bijkeuken en dán stappen we de strakke keuken binnen. Strijk neer op een barkruk en nuttig een drankje, terwijl je geniet van het uitzicht op de achtertuin! De tuin ligt op het noordwesten en biedt door de grote tuin en de situering van zitplekken, door de gehele dag heen altijd zon.
Het eetkamergedeelte zit direct aan de keuken vast, tijdens het koken houd je dus gezellig contact met degene die mee-eten. De en suite deuren geven een authentieke sfeer, de open haard voelt gemoedelijk en de lichtinval is zacht & warm. Al met al een verdieping waar je enorm comfortabel zit!
Op de eerste verdieping zijn 3 slaapkamers, de badkamer met bad en douche en apart het toilet. De walk-in closet in de masterbedroom aan de voorzijde van het huis is een walhalla voor alle shopliefhebbers… De ramen in de hal reiken van vloer tot plafond voor extra licht; wat slim! De tweede verdieping is voor de ‘jongste’ telg, ook hier zit je hartstikke goed. Nu ingericht als game-kamer én royale slaapkamer, maar ook zijn de wasmachine & droger nog in een aparte ruimte gesitueerd.
Een waanzinnige woning die zeker de moeite waard is om te komen bekijken; BELLEN!
Indeling:
Entree in de hal met meterkast, trapkast, toilet, trapopgang en toegang tot de kamer.
Toilet, vrijhangend met fonteintje en gedeeltelijk betegelde wanden.
Meterkast met 14 groepen 4 aardlekschakelaars, hoofdschakelaar, gasmeter, watermeter, dag- en nachtstroom.
Toilet met fonteintje en gedeeltelijk betegelde wanden.
Woonkamer-en-suite met hardstenen vloer en vloerverwarming, voorkamer met gashaard (thans niet functioneel), achterkamer als eetkamer in gebruik met openslaande deuren naar de tuin en open keuken.
Keuken van het vooraanstaande merk Siematic in U opstelling met schiereiland voorzien van een kooktoestel met oven, rvs schouw, koelkast, combi magnetron, spoelbak, vaatwasser, Quooker. Vanuit de keuken toegang tot de (vanuit bouw aangebouwde) bijkeuken. De vaatwasser en koelkast zijn ca. 3 a 4 jaar geleden vernieuwd.
Bijkeuken met deur naar de voortuin, de bijkeuken verbind de woning met de garage.
Garage met deur naar de tuin, elektra en bergvide.
Eerste verdieping:
Overloop met toegang tot alle vertrekken en vaste trap naar de tweede verdieping.
Slaapkamer aan voorzijde met vaste inloopkast.
2 Slaapkamers aan de achterzijde.
Badkamer met bad, douche, beide met thermostaatkraan, dubbele wastafel met designradiator en gedeeltelijk betegelde wanden.
Separaat toilet, vrijhangend met fonteintje en deels betegelde wanden.
Gehele verdieping eikenhouten lamelparket vloer.
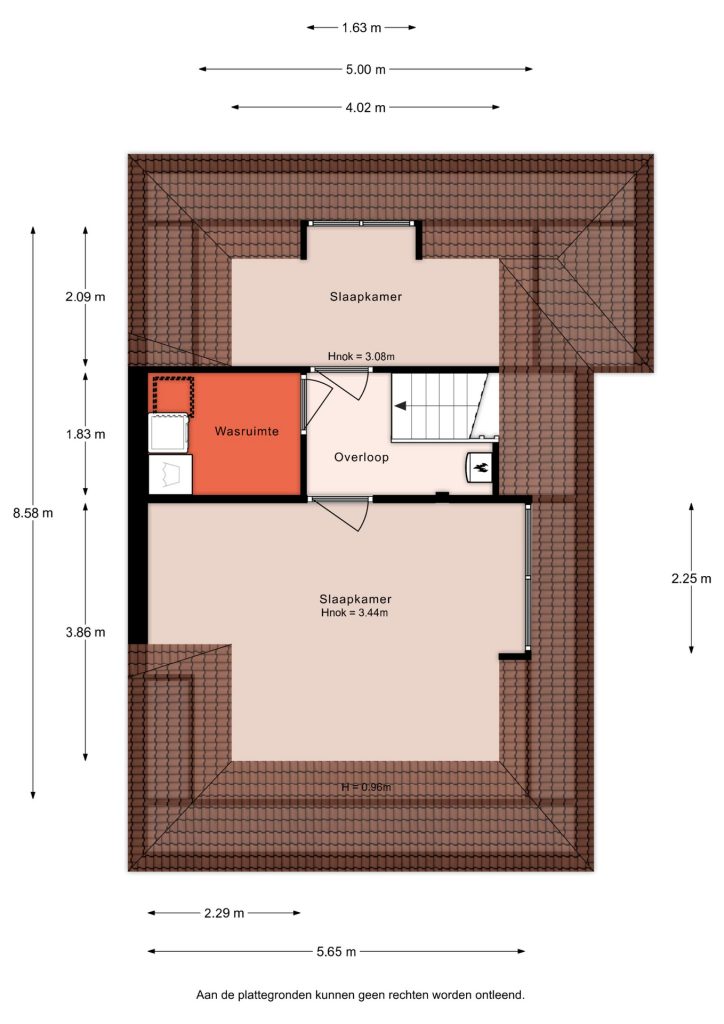
Tweede verdieping:
Overloop met opstelling van de CV ketel Remeha Avanta 2019, aparte wasruimte met opstelling mechanische ventilatie en dakraam voor extra lichtinval.
Slaapkamer aan de achterzijde met dakkapel en bergruimte schuin dak.
Slaapkamer aan voorzijde eveneens met dakkapel en bergruimte schuin dak.
Ook hier eiken lamelparket vloer.
Algemeen:
Voortuin ruimte voor parkeren van in ieder geval 2 auto's.
Schilderwerk buitenzijde ca. 4 jaar geleden uitgevoerd.
Keuken vanuit de bouw geplaatst.
Oplevering in overleg.
De informatie in deze brochure is met de nodige zorg vastgesteld. Aan deze gegevens kunnen echter geen rechten worden ontleend, alle aansprakelijkheid van Maarten Makelaardij is derhalve uitgesloten. Voorts zijn wijzigingen voorbehouden. Alle opgegeven maten en oppervlakten zijn indicatief.