Spring naar content
typeEengezinswoning
woonoppervlakte150 m2
slaapkamers4
buitenruimteGeen tuin
bouwjaar1750

Brochure

Over de woning

Dit prachtige Rijksmonument gelegen aan de grachten van Dordrecht is echt een ruwe diamant te noemen! Het pand heeft 4 verdiepingen, een heerlijk dakterras op de zon en is voorzien van prachtige details zoals zware houten balken, patatsnijdersramen aan de voorzijde en originele schilderingen boven de spiegels.

Het gaat hier om maar liefst 150 m2 woonoppervlakte en een begane grond van nog eens 80m2 welke te transformeren is tot woonruimte: 230m2 aan woonruimte is er dus in potentie aanwezig!!

Het pand heeft voorheen 2 huisnummers gehad EN een gemengde bestemming. Daardoor is het een prachtig object om te wonen maar ook om te combineren met werken op de begane grond, een eigen winkel starten, klussen aan je motoren, er is zo veel mogelijk, we zijn echt enorm benieuwd wie hiervan zijn hoogsteigen "Maarten huis" van gaat maken.

De ligging: net om de hoek van het stadhuis!

Indeling:

Entree in de hal met meterkast, trapopgang naar de verdieping en deur met toegang tot de begane grond.

Begane grond:

De begane grond is wat wij noemen een blanco canvas, de ruimte is van voor naar achteren geheel open. Je kijkt tegen de stoere oude muren aan en de robuuste balken van het plafond. Een eigen winkel/ werkplaats/ kantoor, meer woonruimte alles is hier te realiseren. Op dit moment zijn er openslaande deuren naar de straat dus de ruimte zou zelfs als garage dienst kunnen doen.

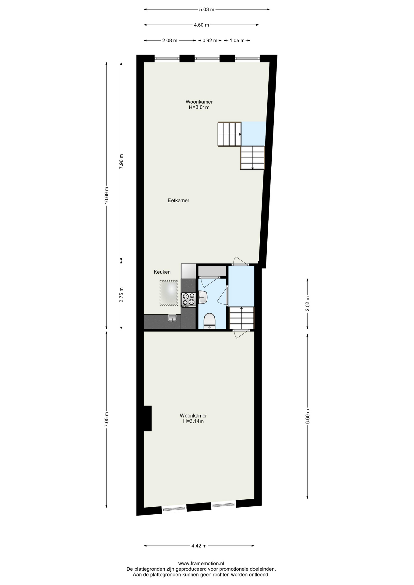
Eerste verdieping:

Deze verdieping is nu in gebruik als woonverdieping, de vloer hier is verhoogd en daarmee recht gelegd. Ook hier kijk je tegen de enorme houten balken aan en via de patatsnijdersramen kijk je op de Groenmarkt aan de voorzijde. Op deze verdieping is een eenvoudige open keuken aanwezig op de plek waar ooit een binnenplaats is geweest. We laten je tijdens de rondleiding graag zien welke aanpassingen er nog gedaan kunnen worden om deze ruimte (nog) groter te maken door middel van de informatie die we van de eigenaar hebben gehad.

Keuken in hoekopstelling voorzien van 4 pits gaskookplaat, afzuigkap, spoelbak, oven, vaatwasser, koelkast met vriezer. De keuken en apparatuur zijn verouderd.

Afstap naar beneden:

Toilet.

Halve trap naar beneden:

Hier komen we uit in de achterkamer met mooie zwart marmeren schouw en diverse oude muurschilderingen. Vanaf deze locatie kijk je op het water. Heerlijke werkkamer met veel licht en hoge ramen. De originele brede vloerplanken zijn hier in het zicht gelaten.

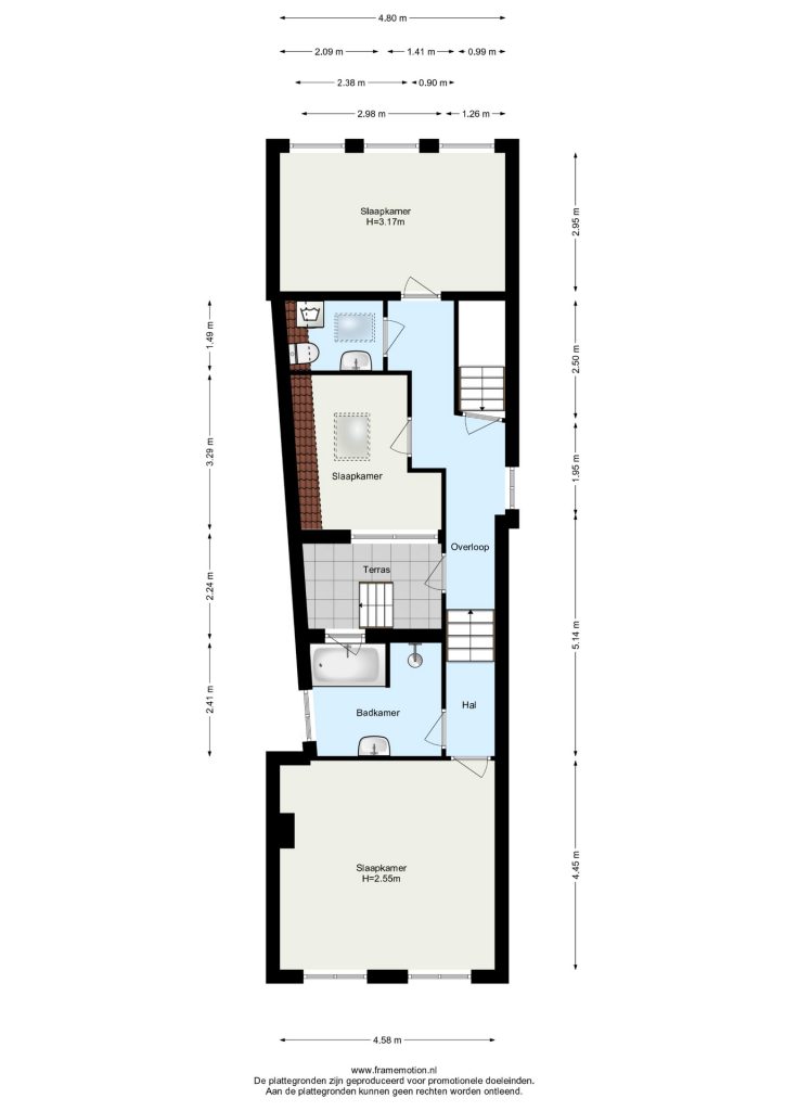
Tweede verdieping:

Hal met toegang tot alle vertrekken en luik naar de berging in de nok.
Slaapkamer 1 gelegen aan de voorzijde met een luik naar een bergruimte (die de eigenaar nu niet gebruikt, wie weet welke schatten er liggen!!).

Slaapkamer 2 met dakraam en zicht op de trap naar het dakterras.

Ruimte met toilet, wastafel en opstelling was apparatuur.

Badkamer met bad, wastafel in meubel en douche (douche thans niet bruikbaar) en deels betegelde wanden.

Slaapkamer 3 gelegen aan de achterzijde, een mooie grote kamer met zicht op het water.

Vanuit de hal is via een deur toegang tot een trap naar het bijzonder ruime dakterras met werkelijk geweldig uitzicht over het stadhuis, de Grote Kerk, het water en de monumentale daken van de binnenstad. Altijd zonnig en bijzonder privé!

Bergvliering:

Bergzolder, middels vlizotrap bereikbaar vanuit de hal met opstelling van de CV ketel merk Nefit bouwjaar 2015.

Algemeen:
Pannendak vervangen tezamen met lood van het dak.
Dakgoot aan 1 zijde tussen de buren vervangen, goot aan de achterzijde moet nog worden vervangen.
Rijksmonument onder nummer 13374 en beschermd stads- en dorpsgezicht.
Er is geen energielabel aanwezig (niet verplicht bij de verkoop van monumentale panden).
Bouwhistorisch onderzoek aanwezig.
In het kadaster worden nog 2 huisnummers genoemd (74 en 76) echter in het BAG staat het pand bekend onder 1 huisnummer (74).
Oplevering in overleg, liefst minimaal 2/3 maanden na prijsovereenstemming.

Disclaimer: De informatie in deze brochure is met de nodige zorg vastgesteld. Aan deze gegevens kunnen echter geen rechten worden ontleend, alle aansprakelijkheid van Maarten Makelaardij is derhalve uitgesloten. Voorts zijn wijzigingen voorbehouden. Alle opgegeven maten en oppervlakten zijn indicatief.

Kenmerken

Financieel
Vraagprijs
€ 575.000,-
Status
Verkocht
Bouw
Soort woonhuis
Eengezinswoning
Soort bouw
Bestaande bouw
Bouwjaar
1750
Dak type
Samengesteld dak
Oppervlakten en inhoud
Wonen
150 m2
Overige inpandige ruimte
81 m2
Gebouwgebonden buitenruimte
26 m2
Perceel
85 m2
Inhoud
865 m3
Indeling
Aantal kamers
6
Aantal badkamers
1
Aantal slaapkamers
4
Aantal woonlagen
1
Voorzieningen
Voorzieningen
TV kabel, Dakraam
Energie en isolatie
Isolatievormen
Gedeeltelijk dubbelglas
Warm water
CV ketel
Verwarming
CV ketel
CV ketel type
Nefit
Buitenruimte
Type buitenruimte(s)
Geen tuin
Ligging
Parkeer faciliteiten
Parkeervergunningen
Ligging
Aan water, Aan rustige weg, In centrum

Plattegronden

Ligging en beschikbare woningen in de buurt

Wat klanten zeggen over Maarten: