Spring naar content
typeBovenwoning
woonoppervlakte140 m2
slaapkamers3
buitenruimteGeen tuin
bouwjaar2008
energielabelA

Brochure

Over de woning

Wauw! Op zoek naar ruimte, licht, karakter én comfort? Deze verrassend ruime bovenwoning, volledig gerenoveerd in 2022, aan de Nijverheidstraat 32C heeft het allemaal: maar liefst drie woonlagen, een royaal woonoppervlak van 140 m², drie slaapkamers en een heerlijk dakterras van circa 13 m². De woning is in 2008 volledig gerenoveerd (met behoud van de charmante gevel uit 1903), uitstekend onderhouden én voorzien van energielabel A. Gelegen in het rustige, waterrijke Feijenoord, op steenworp afstand van het bruisende centrum van Rotterdam. Hier woon je in een wijk vol potentie en mogelijkheden, met alle voorzieningen binnen handbereik. Stap binnen en laat je verrassen!

Feijenoord is een van die wijken in Rotterdam waar je elke dag blij van wordt. Je woont er rustig, met water aan beide zijden van de straat, en toch ben je zó in het centrum. Restaurant MAAS ligt om de hoek en op een zonnige dag geniet je op het terras aan het water van een briesje en een vakantiegevoel. In vijf minuten fiets je naar de Wilhelminapier met hotspots als de Foodhallen en Hotel New York. Voor je dagelijkse boodschappen loop je binnen vijf minuten naar de Jumbo in het Entrepotdok die 365 dagen per jaar open is! Het Nassauhavenpark ligt letterlijk voor de deur: een heerlijke plek met grasvelden, een speeltuin en veel zitjes. Met het OV of de fiets sta je in 10 minuten in hartje stad, en met de auto zit je zó op de snelweg. Feijenoord biedt het beste van beide werelden.

Indeling
Begane grond:
Je eigen voordeur op straatniveau biedt toegang tot een nette entreehal met trapopgang naar de woning. Onder de trap bevindt zich nog een ruime privé berging van circa 5 m², ideaal voor je fiets, kinderwagen of extra spullen.

Tweede verdieping:
De ruime overloop leidt je naar de sfeervolle woonkamer aan de voorzijde, waar grote ramen zorgen voor een prettige lichtinval en karaktervolle glas-in-looddetails een vleugje authenticiteit geven. De mooie PVC-vloer en strakke afwerking maken deze ruimte warm en uitnodigend. Er ligt een keurige visgraatvloer over de gehele verdieping, welke de woning extra sfeervol maakt. Aan de achterzijde bevindt zich de ruime woonkeuken met kookeiland en moderne inbouwapparatuur zoals oven, gaskookplaat, vaatwasser, koelkast, vriezer, kokend-water kraan (Quooker) en afzuigkap. Hier kijk je uit over de binnentuinen terwijl je de lekkerste gerechten op tafel tovert. Op deze verdieping vind je een separaat toilet met fonteintje en een praktische en zeer ruime opbergkast.

Derde verdieping:
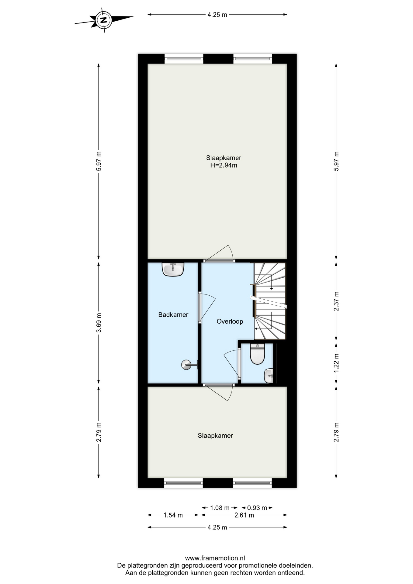
Op deze verdieping bevinden zich twee slaapkamers (ca. 12 m² en 25 m²). Beiden zijn keurig afgewerkt en bieden volop ruimte voor een tweepersoonsbed én garderobekast. De moderne badkamer is voorzien van een inloopdouche, wastafelmeubel en handdoekradiator. Een tweede separaat toilet met fonteintje ligt tegenover de badkamer, erg handig!

Vierde verdieping:
Dé kers op de taart: hier vind je een fantastische voorzolder (inclusief pantry en wasmachine-aansluiting) en nog een ruime multifunctionele kamer en slaapkamer. Ideaal als logeerkamer, werkkamer of hobbyruimte. Dankzij de twee dakramen is het hier heerlijk licht. En dan… het riante dakterras van ca. 13 m² op het oosten! Begin hier je dag met een kop koffie in de ochtendzon of sluit af met een borrel en uitzicht over de wijk. Een plek om van te houden en om jaloers op te zijn.

Berging:
De woning beschikt over een separate berging van ca. 5m². Perfect voor het opbergen van je persoonlijke spullen.

Afmetingen
Voor de afmetingen en indeling zie onze gedetailleerde plattegrond.

Bijzonderheden
• Bouwjaar: in 2008 geheel opnieuw opgebouwd van de fundering tot het dak maar met behoud van de originele
karakteristieke gevel
• Volledig gerenoveerd in 2022
• Woonoppervlakte circa 140 m2
• Inhoud circa 507 m3
• Eigen grond
• Energielabel A
• Verwarming en warm water middels cv-ketel (2008)
• Volledig voorzien van dubbele beglazing (HR++)
• Goed functionerende, actieve Vereniging van Eigenaars; bijdrage circa €156,- per maand
• In de directe omgeving zijn alle dagelijkse voorzieningen te vinden, zoals openbaar vervoer, winkels, horeca, goede verbinding tot uitvalswegen en recreatiemogelijkheden
• Oplevering in overleg.

Wij nodigen je van harte uit om dit appartement in Rotterdam met eigen ogen te bewonderen.

Bel voor een vrijblijvende afspraak. We geven graag de mogelijkheden door!

De informatie is door ons met de nodige zorgvuldigheid samengesteld. Alle verstrekte informatie moet beschouwd worden als een uitnodiging tot het doen van een bod of om in onderhandeling te treden. Onzerzijds wordt echter geen enkele aansprakelijkheid aanvaard voor enige onvolledigheid, onjuistheid of anderszins, dan wel de gevolgen daarvan. Alle opgegeven maten en oppervlakten zijn indicatief.

Kenmerken

Financieel
Vraagprijs
€ 589.000,-
Status
Verkocht
Bouw
Soort bouw
Bestaande bouw
Bouwjaar
2008
Oppervlakten en inhoud
Wonen
140 m2
Overige inpandige ruimte
3 m2
Gebouwgebonden buitenruimte
13 m2
Inhoud
507 m3
Indeling
Aantal kamers
6
Aantal badkamers
1
Aantal slaapkamers
3
Aantal woonlagen
3
Voorzieningen
Voorzieningen
Dakraam, Natuurlijke ventilatie
Energie en isolatie
Energieklasse
A
Isolatievormen
Muurisolatie, Dubbelglas, HR glas
Warm water
CV ketel
Verwarming
CV ketel
Buitenruimte
Type buitenruimte(s)
Geen tuin
Bergruimte
Soort
Vrijstaand hout
Ligging
Parkeer faciliteiten
Betaald parkeren, Parkeervergunningen
Ligging
Aan water, In woonwijk

Plattegronden

Ligging en beschikbare woningen in de buurt

Wat klanten zeggen over Maarten: