Spring naar content
typeEengezinswoning
woonoppervlakte175 m2
slaapkamers4
buitenruimteAchtertuin
bouwjaar2013
energielabelA++

Brochure

Over de woning

Luxe, comfort en woongeluk komen hier samen! In het bruisende en geliefde Oude Noorden staat dit stijlvolle herenhuis uit 2013 te schitteren. Met een royale woonoppervlakte van ca. 175 m², vier woonlagen, een energielabel A++, een heerlijke achtertuin en vier ruime slaapkamers biedt deze woning alle ruimte om volop te genieten. Elke verdieping is slim ingedeeld en tot in de puntjes afgewerkt. Van de sfeervolle woonkeuken tot de riante living die zich uitstrekt over de volledige lengte van het huis. En als kers op de taart geniet je van de levendige, stadse charme van het Oude Noorden, met volop gezellige hotspots en nieuwe pareltjes om de hoek.

Het Oude Noorden zit vol met verrassingen en is met haar urban hotspots hip, hipper, hipst! Straten als Zwaanshals en Zaagmolenkade hebben een super leuk aanbod op het gebied van fashion, food en design en dankzij de vele horecazaakjes kun je elke avond weer iets nieuws ontdekken. Van bijzondere bistro’s, restaurants en koffiezaakjes tot een eigen bierbrouwerij: er is voor ieder wat wils. Het Oude Noorden heeft meerdere pleinen waar regelmatig evenementen worden georganiseerd, zoals de Rotterdamse Oogst Markt op het Noordplein en sport- en spelfaciliteiten op het Johan Idaplein. Ook de Hofbogen, vol creatieve ondernemers, ligt in de nabije omgeving. Met een dak van 1,9 km lang is het Luchtpark de Hofbogen een unieke beleving om te loungen in de buitenlucht. Naar groen hoef je niet lang op zoek met de nabijheid van het Kralingse Bos en de oevers van de Rotte. De woning ligt dichtbij supermarkten, scholen en kinderdagverblijven. Bovendien is het stadscentrum vlakbij (10 minuten fietsen) en bevindt het openbaar vervoer (station Rotterdam Noord, tram en Centraal Station) zich in de buurt. De uitvalswegen (A13 en A20) zijn zeer gunstig gelegen.

Indeling
Begane grond:
Stap binnen in de ruime entree, waar volop plek is voor een royale garderobe – een warm en stijlvol welkom! Via de brede, hoge glas-in-staalwand met openslaande deuren bereik je de woonkeuken, het kloppend hart van het huis. Hier draait alles om samen genieten: koken, tafelen en het buitenleven. De riante keuken met kookeiland is met oog voor detail ingericht. Het robuuste RVS-aanrechtblad, de grote 90 cm Atag-oven, de luxe spoelkraan, de vaatwasser en de inductiekookplaat met wokbrander maken koken extra comfortabel. Dankzij de praktische ruimte naast het kookeiland is er plek voor een lange eettafel waar een groot gezelschap kan aanschuiven voor een uitgebreid diner. Aan de achterzijde zorgt de grote schuifpui voor een naadloze overgang naar de smaakvol aangelegde achtertuin. Hier kun je de hele dag door genieten van zon en rust, met ruimte om meerdere zitjes te creëren voor elk moment. De tuin beschikt bovendien over een praktische achterom en een ruime schuur voor fietsen en extra opbergruimte.

Tot slot vind je op deze verdieping nog een separaat toilet met fonteintje en twee multifunctionele inpandige kasten – praktisch én stijlvol.

Eerste etage:
Betreed vanaf de begane grond de living op de eerste etage en voel je direct thuis. De stijlvolle afwerking met een prachtige visgraatvloer en strak afgewerkte wanden en plafonds geeft de ruimte een luxe uitstraling. Doordat de living zich uitstrekt over de volledige lengte van het pand, zijn de indelingsmogelijkheden eindeloos. Creëer bijvoorbeeld twee comfortabele zithoeken, een werkplek of een fijne speelruimte voor de jongste van het gezin.

Tweede etage:
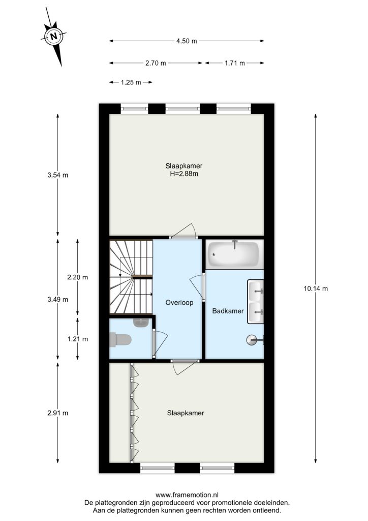
Vanaf de overloop heb je toegang tot twee ruime slaapkamers en de badkamer. Deze gehele etage is voorzien van een toffe gietvloer. De slaapkamers zijn vrijwel even groot, waardoor beide uitstekend kunnen dienen als hoofdslaapkamer – ideaal voor bijvoorbeeld een gezin of een logeerkamer met hotelgevoel. Dankzij de grote raampartijen zijn de kamers heerlijk licht en bieden ze een rustgevend uitzicht. De badkamer is royaal van formaat en grotendeels betegeld, wat zorgt voor een verzorgde en rustige uitstraling. Hier geniet je van een ligbad voor de ontspannen momenten, een inloopdouche voor een frisse start van de dag, en een dubbele wastafel met meubel en spiegelkast voor extra comfort en opbergruimte.

Tegenover de badkamer bevindt zich bovendien een separaat toilet – praktisch en stijlvol tegelijk.

Derde etage (zolderetage):
Deze topetage zit boordevol mogelijkheden! De stijlvolle gietvloer, zichtbare houten balken en het houten kozijn geven de ruimte een karaktervolle en warme uitstraling. Dankzij de praktische indeling zijn er twee slaapkamers gecreëerd, waarbij de dakramen zorgen voor volop daglicht en de schuine wanden extra sfeer toevoegen. Daarnaast is er een ruime wasruimte aanwezig met aansluitingen voor zowel de wasmachine als de droger.

Afmetingen
Voor de afmetingen en indeling zie onze gedetailleerde plattegrond.

Bijzonderheden
• Bouwjaar: 2013
• Eigen grond
• Woonoppervlakte circa 175 m2
• Inhoud circa 686 m3
• Achtertuin van circa 31 m2
• Energielabel A++
• Verwarming en warm water middels stadsverwarming
• Voorzien van een WTW-systeem
• Volledig voorzien van dubbele beglazing
• In de directe omgeving zijn alle dagelijkse voorzieningen te vinden, zoals openbaar vervoer, winkels, horeca, goede verbinding tot uitvalswegen en recreatiemogelijkheden
• Oplevering in overleg.

Wij nodigen je van harte uit om dit herenhuis in Rotterdam met eigen ogen te bewonderen.

Bel voor een vrijblijvende afspraak. We geven graag de mogelijkheden door!

De informatie is door ons met de nodige zorgvuldigheid samengesteld. Alle verstrekte informatie moet beschouwd worden als een uitnodiging tot het doen van een bod of om in onderhandeling te treden. Onzerzijds wordt echter geen enkele aansprakelijkheid aanvaard voor enige onvolledigheid, onjuistheid of anderszins, dan wel de gevolgen daarvan. Alle opgegeven maten en oppervlakten zijn indicatief.

Kenmerken

Financieel
Vraagprijs
€ 825.000,-
Status
Verkocht
Bouw
Soort woonhuis
Eengezinswoning
Soort bouw
Bestaande bouw
Bouwjaar
2013
Oppervlakten en inhoud
Wonen
175 m2
Overige inpandige ruimte
0 m2
Gebouwgebonden buitenruimte
0 m2
Perceel
101 m2
Inhoud
686 m3
Indeling
Aantal kamers
6
Aantal badkamers
1
Aantal slaapkamers
4
Voorzieningen
Voorzieningen
Schuifpui, Dakraam
Energie en isolatie
Energieklasse
A++
Isolatievormen
Dakisolatie, Muurisolatie, Vloerisolatie, HR glas
Warm water
Stadsverwarming, Warmte terugwininstallatie
Verwarming
Stadsverwarming
Buitenruimte
Type buitenruimte(s)
Achtertuin
Hoofdtuin
Achtertuin
Hoofdtuin opp.
31 m2
Hoofdtuin positie
Noord
Bergruimte
Soort
Vrijstaand hout
Ligging
Parkeer faciliteiten
Betaald parkeren, Parkeervergunningen
Ligging
Aan rustige weg, In woonwijk

Plattegronden

Ligging en beschikbare woningen in de buurt

Wat klanten zeggen over Maarten: