Spring naar content
typeBovenwoning
woonoppervlakte180 m2
slaapkamers2
buitenruimteZonneterras
bouwjaar1907
energielabelA

Brochure

Over de woning

Wonen in stijl in hartje Rotterdam! Ontdek deze indrukwekkende loftwoning met royaal dakterras aan de Zwaerdecroonstraat 38 B. Verdeeld over drie verdiepingen en volledig vernieuwd in 2011 als onderdeel van het bekroonde project Eén Blok Stad, biedt deze energiezuinige bovenwoning het perfecte samenspel van karakter en modern wooncomfort. Met maar liefst 180 m² woonoppervlakte, twee ruime slaapkamers en een zonnig dakterras van bijna 20 m² is dit een woning om direct verliefd op te worden. Geniet van het vrije uitzicht, de stoere brickwall, beloopbaar glas en een sfeervolle open haard. Het riante kookeiland en de luxe badkamer maken het plaatje compleet. Hier woon je in de geliefde wijk Middelland, op de rand van het bruisende stadscentrum. Een unieke kans om groots te wonen midden in de stad!

Middelland heeft een centrale ligging waardoor het prettig stads wonen is. Het is een bijzondere buurt die vanaf het ontstaan tot op de dag van vandaag een statige sfeer combineert met creatieve bewoners zoals muzikanten, schrijvers en kunstenaars. Kenmerkend zijn de lanen en singels met statige architectuur en de buurt heeft daardoor een rustieke uitstraling. Geen andere buurt heeft als Middelland twee gezichten; de drukte van de stad en tegelijkertijd een gezellige woonomgeving. Door de diversiteit vind je er van alles op het gebied van food, delicatessenwinkels en toko’s, maar ook diverse restaurants en ambachtelijke winkeltjes. Verder is de woning gunstig gelegen ten opzichte van uitvalswegen (A13 en A20) en het openbaar vervoer (trams en Centraal Station). Tot slot is het stadscentrum zeer makkelijk en snel te bereiken. Kortom, een ideale combinatie!

Indeling
Begane grond
Via je eigen voordeur op straatniveau bereik je de trap naar de tweede verdieping, waar het woongedeelte begint.

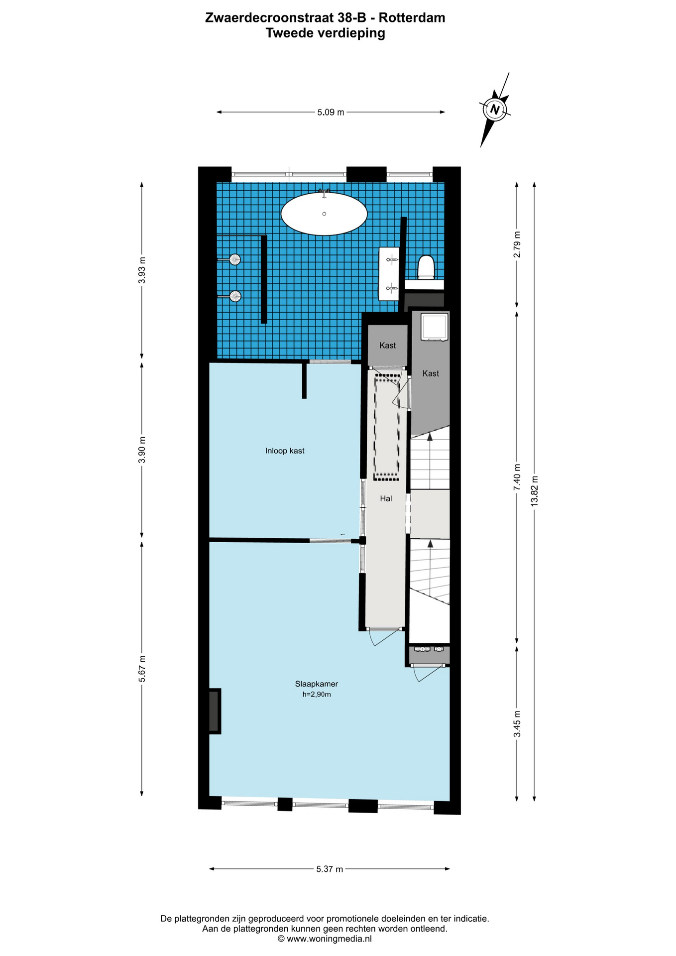
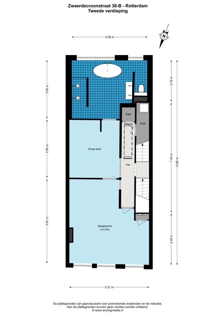
Tweede verdieping
Bij binnenkomst word je meteen verwelkomd door de overvloed aan natuurlijk licht. Aan de voorzijde ligt de eerste, royale slaapkamer met hoge plafonds en grote ramen – een heerlijke plek om tot rust te komen. Aansluitend vind je de luxe walk-in closet, een echte droom voor iedere liefhebber van ruimte en stijl. De strak afgewerkte badkamer is een oase van comfort, compleet met een dubbele inloopdouche, vrijstaand ligbad, toilet en een elegant dubbel wastafelmeubel. Hier geniet je van pure ontspanning na een lange dag. Terug in de hal tref je een extra bergkast, een aparte wasruimte en de trap die leidt naar de bovenliggende woonverdieping.

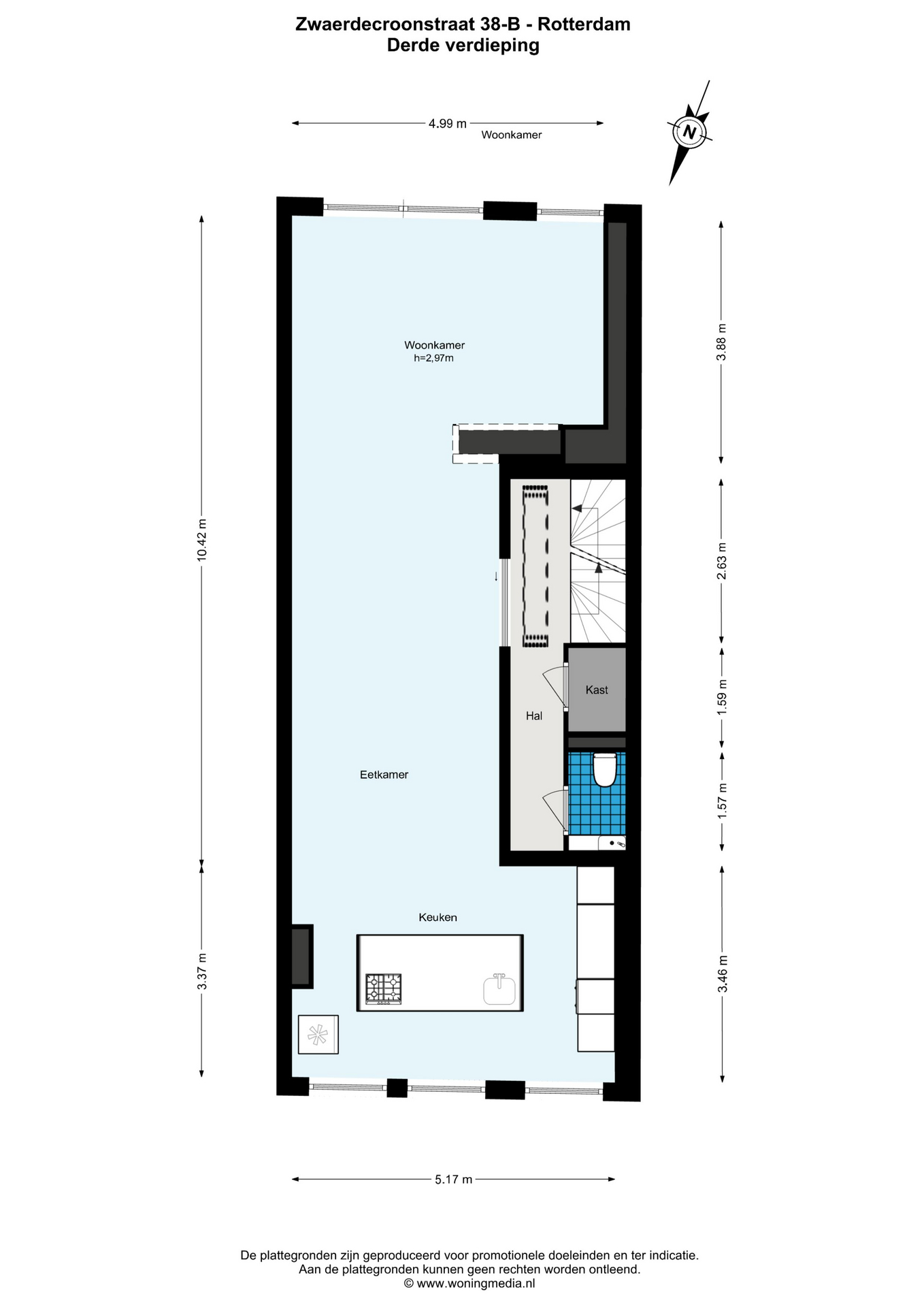
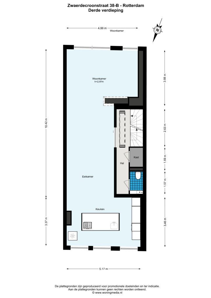
Derde verdieping
Op deze verdieping bevindt zich de sfeervolle, ruime doorzon-woonkamer in loftstijl, compleet met gezellige open haard en royaal kookeiland. De stoere brickwall en het beloopbare glas creëren een uniek doorkijkje van beneden tot boven en geven de ruimte extra karakter. De moderne keuken is uitgerust met diverse inbouwapparatuur, waaronder een (combi)oven, SMEG koel-vriescombinatie, vaatwasser en een vijfpits gasfornuis. Het royale kookeiland met bar is de perfecte plek voor een ontbijt, een snelle lunch of een gezellig drankje tijdens het koken. Dankzij de open indeling baadt de ruimte in het licht en is er volop plek om te ontspannen of uitgebreid te tafelen met vrienden en familie. Daarnaast vind je hier een separaat toilet, een praktische vaste kast en de trapopgang naar de bovenste woonlaag.

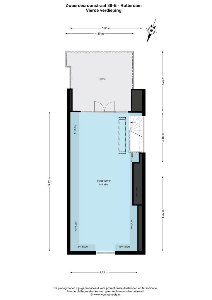
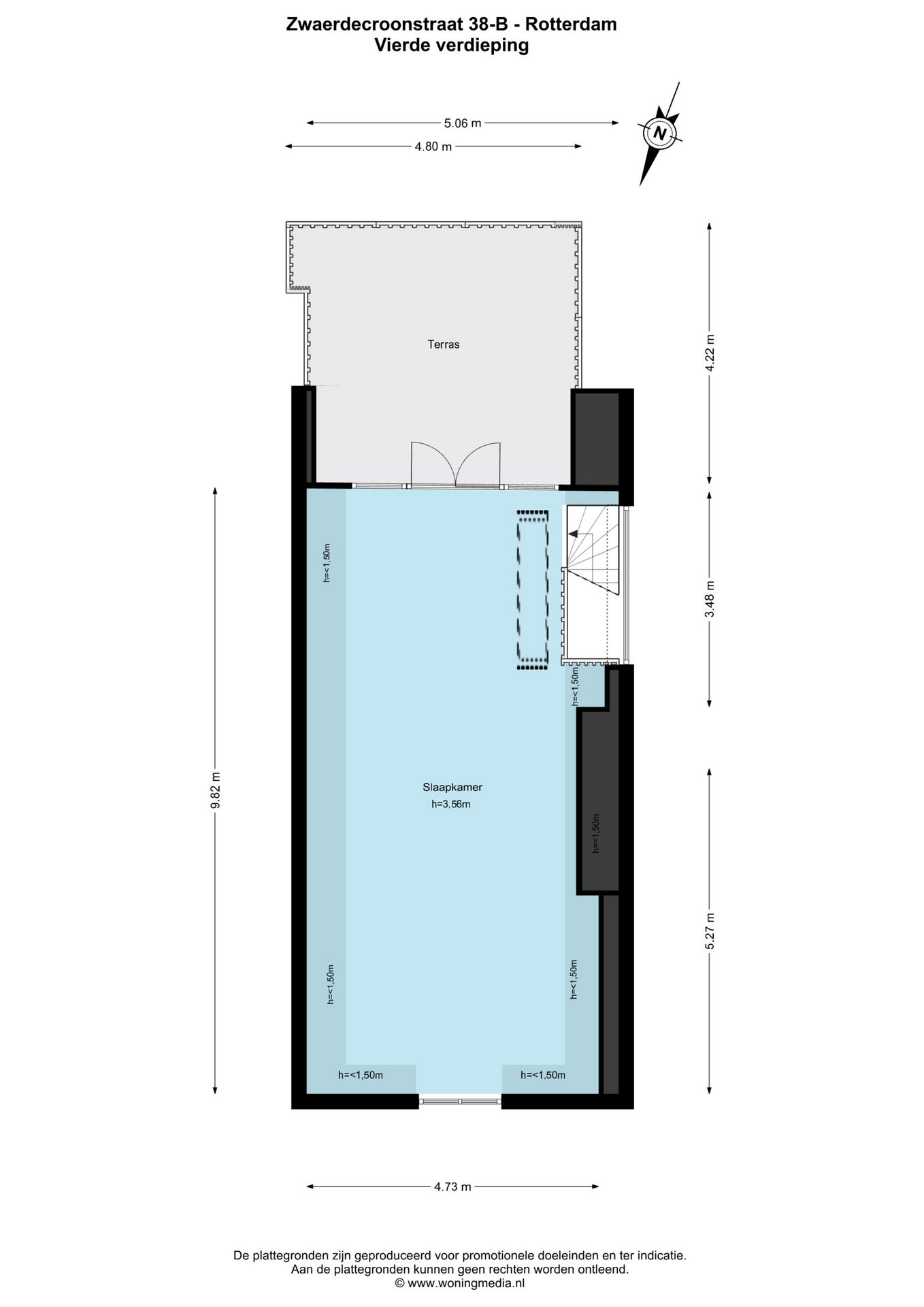
Vierde verdieping
Op de bovenste verdieping bevindt zich de tweede slaapkamer, die net zo goed dienst kan doen als hobbyruimte of stijlvol thuiskantoor. Ook hier geniet je van veel licht, het karakteristieke beloopbare glas en directe toegang tot het indrukwekkende dakterras. Dit buitenverblijf van bijna 20 m² biedt alle ruimte voor een comfortabele loungeset, een gezellige barbecue, een hangmat of een sfeervolle eettafel met groenaccenten. Van ’s ochtends vroeg tot ’s avonds laat kun je hier ontspannen en genieten van het vrije uitzicht én de Rotterdamse skyline. Een plek die elke dag weer voelt als vakantie!

Afmetingen
Voor de afmetingen en indeling zie onze gedetailleerde plattegrond.

Bijzonderheden
• Bouwjaar: 1907
• Woonoppervlakte circa 180 m2
• Inhoud circa 740 m3
• Energielabel A
• Gelegen op erfpachtgrond t/m 31 december 2093, waarvan de canon is afgekocht t/m 14 maart 2061
• Verwarming en warm water middels Cv-ketel (2025)
• Volledig voorzien van dubbele beglazing
• Mogelijkheid voor het creëren van een extra slaapkamer
• Goed functionerende, actieve Vereniging van Eigenaars; bijdrage circa €133,- per maand
• Voor de VvE van de fietsenstalling betaal je jaarlijks een VvE bijdrage van €67,54
• In de koopovereenkomst wordt een ouderdomsclausule opgenomen
• In de directe omgeving zijn alle dagelijkse voorzieningen te vinden, zoals openbaar vervoer, winkels, horeca, goede verbinding tot uitvalswegen en recreatiemogelijkheden
• Oplevering in overleg.

Wij nodigen je van harte uit om dit appartement in Rotterdam met eigen ogen te bewonderen.

Bel voor een vrijblijvende afspraak. We geven graag de mogelijkheden door!

De informatie is door ons met de nodige zorgvuldigheid samengesteld. Alle verstrekte informatie moet beschouwd worden als een uitnodiging tot het doen van een bod of om in onderhandeling te treden. Onzerzijds wordt echter geen enkele aansprakelijkheid aanvaard voor enige onvolledigheid, onjuistheid of anderszins, dan wel de gevolgen daarvan. Alle opgegeven maten en oppervlakten zijn indicatief.

** ENGLISH**

Stylish City Living in the Heart of Rotterdam! Discover this impressive loft-style home with a spacious rooftop terrace at Zwaerdecroonstraat 38 B. Spread across three floors and completely renovated in 2011 as part of the award-winning Eén Blok Stad project, this energy-efficient upper-level residence perfectly blends authentic character with modern comfort. Offering 180 m² of living space, two generous bedrooms, and a sunny 20 m² rooftop terrace, this is a home you’ll instantly fall in love with. Enjoy the open views, the striking brick wall, walkable glass floor, and a cozy fireplace. The expansive kitchen island and luxurious bathroom complete the picture. All this in the beloved Middelland neighborhood, right on the edge of Rotterdam’s vibrant city center. A unique opportunity to live large in the city!

Middelland’s location offers the perfect balance between city buzz and a welcoming residential atmosphere. This unique district combines stately architecture with a creative soul, home to musicians, writers, and artists. Its leafy avenues and canals lined with grand buildings give it a peaceful elegance, while its diverse culinary scene, from international delicatessens and boutique grocery stores to cosy restaurants and artisanal shops — adds flavour to daily life. Excellent transport links, including nearby motorways (A13 and A20), trams, and Rotterdam Central Station, make getting around effortless. And with the city centre just a short stroll away, you’re never far from the action.

Layout
Ground Floor
Your own private entrance at street level leads to the staircase that takes you up to the second floor, where the apartment begins.

Second Floor
Step inside and be welcomed by an abundance of natural light. At the front of the home sits the first spacious bedroom, complete with high ceilings and large windows — an inviting place to unwind. Next door is the dream-worthy walk-in closet, followed by the sleek, spacious bathroom featuring a double walk-in shower, freestanding bathtub, toilet, and elegant double vanity. Back in the hallway, you’ll find a storage closet, laundry room, and stairs to the main living floor.

Third Floor
Here, the generous loft-style through-living room takes centre stage, with a cosy fireplace and a stylish kitchen island. The exposed brick wall and walkable glass panels create visual interest and a connection between the floors. The modern kitchen is fully equipped with built-in appliances, including a (combi) oven, SMEG fridge-freezer, dishwasher, and five-burner gas hob. The kitchen island with breakfast bar is perfect for casual meals or enjoying drinks while cooking. Thanks to the open-plan design, the entire space is filled with natural light — ideal for relaxing or hosting at the large dining table. This floor also includes a separate toilet, a built-in cupboard, and stairs to the top floor.

Fourth Floor
The top floor houses the second bedroom — equally suited for use as a hobby space or home office. Bright and spacious, it features walkable glass and direct access to the show-stopping rooftop terrace. At almost 20 m², this outdoor haven has room for a lounge set, barbecue, hammock, dining table, and potted greenery. From sunrise to sunset, soak up the sweeping views of the Rotterdam skyline — the perfect ending to any day.

Dimensions
For exact dimensions and layout, please refer to our detailed floor plan.

Highlights
• Year of construction: 1907
• Living area approx. 180 m²
• Volume approx. 740 m³
• Energy label A
• Possibility of creating an extra bedroom
• Leasehold until December 31, 2093; ground rent paid off until March 14, 2061
• Heating and hot water via central heating boiler (2025)
• Fully double glazed
• Well-maintained and active Homeowners’ Association (VvE); contribution approx. €133 per month
• Annual VvE contribution for the bicycle storage: €67.54
• An ageing clause will be included in the purchase agreement
• All daily amenities in the immediate vicinity: public transport, shops, restaurants, excellent road access, and recreational opportunities
• Transfer date to be agreed upon.

We warmly invite you to view this unique apartment in Rotterdam with your own eyes.
Call us today for a no-obligation appointment — we would be happy to discuss the possibilities with you!
The information provided has been compiled with the utmost care. All information should be regarded as an invitation to make an offer or enter into negotiations. However, no liability is accepted for any incompleteness, inaccuracies, or consequences thereof. All measurements and surface areas are indicative.

Kenmerken

Financieel
Vraagprijs
€ 750.000,-
Status
Verkocht
Bouw
Soort bouw
Bestaande bouw
Bouwjaar
1907
Oppervlakten en inhoud
Wonen
180 m2
Overige inpandige ruimte
0 m2
Gebouwgebonden buitenruimte
19 m2
Inhoud
740 m3
Indeling
Aantal kamers
3
Aantal badkamers
1
Aantal slaapkamers
2
Aantal woonlagen
2
Energie en isolatie
Energieklasse
A
Isolatievormen
Dakisolatie, Dubbelglas
Warm water
CV ketel
Verwarming
CV ketel
Buitenruimte
Type buitenruimte(s)
Zonneterras
Hoofdtuin
Zonneterras
Hoofdtuin opp.
0 m2
Ligging
Parkeer faciliteiten
Betaald parkeren, Parkeervergunningen
Ligging
Vrij uitzicht

Plattegronden

Ligging en beschikbare woningen in de buurt

Wat klanten zeggen over Maarten: