Spring naar content
typeEengezinswoning
woonoppervlakte155 m2
slaapkamers3
buitenruimteAchtertuin, Zonneterras
bouwjaar2024
energielabelA+++

Brochure

Over de woning

Luxe en unieke 4 laagse woning met dakterras en tuin!
Laat je verrassen door de prachtige leefkeuken met kookeiland en hoogwaardige apparatuur terwijl de indrukwekkende vide op de eerste verdieping zorgt voor een open verbinding en contact met beneden. Op de tweede verdieping geniet je van twee stijlvolle slaapkamers en een badkamer met spa-uitstraling. Terwijl op de bovenste etage de derde slaapkamer zich bevindt met een eigen douche én een zonnig dakterras van 16 m². De groene stadstuin van 28 m² nodigt uit tot lange zomeravonden. De woning is volledig uitgerust met vloerverwarming en -koeling en met een externe eigen berging en optionele parkeerplek met laadpaal is het woongenot hier helemaal compleet.

Het nieuwe Lloydkwartier is een inspirerende stadsbuurt aan het water met eigentijdse architectuur en maritieme historie. Het leuke aan deze buurt is dat zakelijk en privé op een aangename manier samengebracht worden. Je vindt er creatieve ondernemers, stoere woningen, leuke horecagelegenheden en culinaire hotspots. Ook voor een prachtig weids uitzicht is dit the place to be. De buurt is ideaal voor cultuurliefhebbers. Het bruist er van nieuwe en historische architectuur en het nabij gelegen Museumpark is perfect voor ontspanning. Alle stedelijke voorzieningen zijn toegankelijk. Diverse supermarkten, een basisschool, sportfaciliteiten en het Euromastpark bevinden zich vlakbij. Bovendien is de opstapplaats voor de watertaxi vlakbij waardoor je bijvoorbeeld binnen 2 minuten op het gezellige Katendrecht bent en kan vertoeven bij leuke zaakjes. Ook ben je met de fiets binnen 10 minuten in de binnenstad en is de woning gunstig gelegen ten opzichte van het openbaar vervoer (tramhalte en metrostation). Kortom, wil je wonen nabij het water met alle voorzieningen in de nabije omgeving? Ontdek deze buurt en laat je verrassen wat uniek wonen inhoudt en wat een ultiem vakantiegevoel in eigen stad betekent!
 
Indeling
Begane grond:
Bij binnenkomst betreedt je op de begane grond een indrukwekkende leefruimte met hoge raampartijen. De open keuken vormt hier het kloppend hart van het huis en is werkelijk een lust voor het oog. Uitgevoerd met een royaal kookeiland biedt deze keuken alle ruimte voor culinaire creativiteit en sociale interactie. Het fraaie samenspel van hoogwaardige materialen, denk aan een strak composiet werkblad en elegante greeploze fronten, geven een tijdloze, luxe uitstraling die perfect aansluit bij de hedendaagse woonwensen.
De keuken is onder andere uitgerust met een moderne inductiekookplaat met geïntegreerde afzuiging, een quooker, een vaatwasser en een combi. Dankzij de slimme indeling en de hoogwaardige afwerking biedt deze keuken niet alleen een prachtige blikvanger, maar ook het ultieme gebruikscomfort.
 
Eerste verdieping:
Op de eerste verdieping wacht een royale woonkamer, verrijkt met een prachtige eikenhouten vloer in Hongaarse punt, een indrukwekkende vide en een plafondhoogte van circa 2,62 meter. Dankzij de vide blijft er bovendien een directe verbinding met de keuken op de begane grond waardoor je eenvoudig contact kan houden met familieleden of gasten beneden. Het vormt de perfecte plek voor ontspannen avonden met familie of vrienden, terwijl de open indeling maximale flexibiliteit biedt voor het creëren van uw ideale interieur.
 
 
Tweede verdieping:
De tweede verdieping biedt ruimte aan twee comfortabele slaapkamers met grote raampartijen tot aan de vloer. De badkamer straalt een eigentijdse luxe uit en is voorzien van een royaal ligbad, dubbele wastafel met houten meubel en een inloop douche. Een separate toiletruimte en een praktische berging met aansluitingen voor wasapparatuur maken deze verdieping compleet.
 
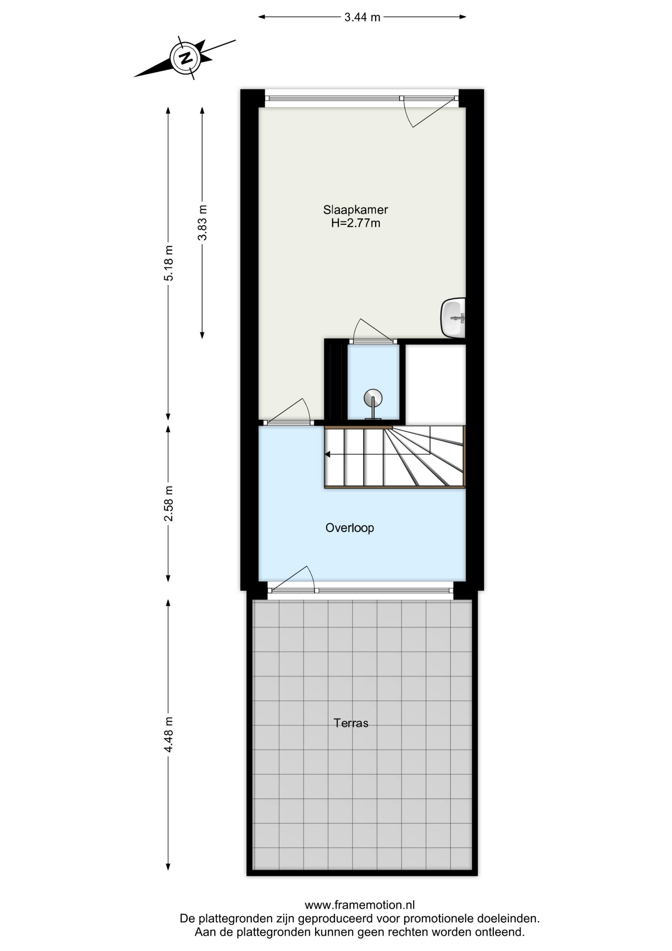
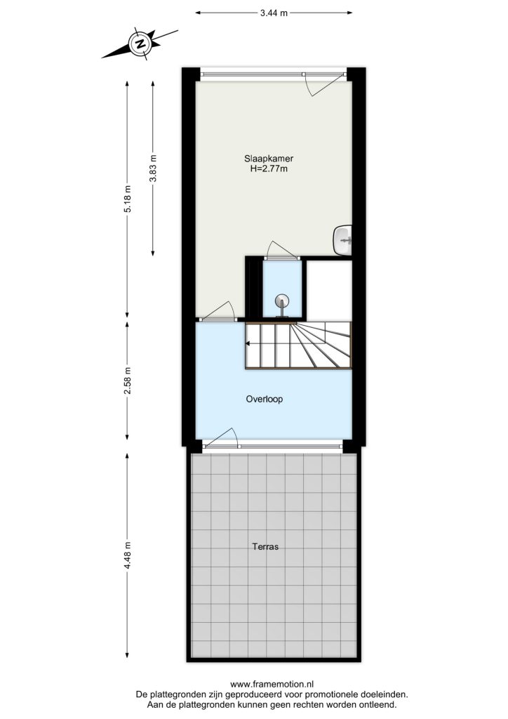
Derde verdieping:
Op de derde verdieping vind je de ruime derde slaapkamer, ideaal als gastenkamer, werkplek of hobbyruimte. Vanuit deze kamer zie je door het Maasvenster de schepen voorbij varen. Deze verdieping is bovendien voorzien van een stijlvolle eigen sanitaire voorziening met een moderne douche en een wastafel met fraai meubel, waardoor deze etage perfect zelfstandig te gebruiken is voor logés of oudere kinderen. Direct grenzend aan de slaapkamer ligt een royaal en zonnig terras van circa 16 m², waar je in alle rust kan genieten van het uitzicht over de levendige wijk. Hier ervaar je het ultieme buitengevoel terwijl je toch beschut en comfortabel thuis bent.
 
Tuin:
Grenzend aan de leefruimte op de begane grond bevindt zich de tuin van circa 28 m², die zich als een natuurlijk verlengstuk van het interieur presenteert. Dankzij de royale dubbele schuifpui wordt de overgang tussen binnen en buiten op een harmonieuze manier verweven.
Je kan hier genieten van lange zomeravonden, een kop koffie in de ochtendzon of een ontspannen borrel met vrienden. Er is genoeg ruimte voor een sfeervol zitgedeelte en groene beplanting zodat je hier een persoonlijke oase kan creëren in het hart van de stad.
 
Parkeerplaats en berging:
In de onderbouw is de eigen berging gelegen (inclusief in de vraagprijs). Er is ook een eigen parkeerplaats met laadpaal voor elektrische auto’s, de vraagprijs voor de parkeerplaats bedraagt € 35.000,- .
 
Afmetingen
Voor de afmetingen en indeling zie onze gedetailleerde plattegrond.
 
Bijzonderheden
• Bouwjaar: 2024
• Woonoppervlakte circa 155 m2
• Inhoud circa 570 m3
• Eigen grond
• Inclusief berging
• Parkeerplaats separaat te koop, vraagprijs € 35.000
• Energielabel A+++
• Verwarming en warm water middels WTW-systeem, vloerverwarming en vloerkoeling, zonnepanelen
• Geheel voorzien van dubbele beglazing HR+++
• De Vereniging van Eigenaars is actief, de bijdrage bedraagt € 164,- per maand
• In de directe omgeving zijn alle dagelijkse voorzieningen te vinden, zoals openbaar vervoer, winkels, horeca, goede verbinding tot uitvalswegen en recreatiemogelijkheden
• Oplevering in overleg
 
Wij nodigen je van harte uit om deze woning in Rotterdam met eigen ogen te bewonderen.
 
Bel voor een vrijblijvende afspraak. We geven graag de mogelijkheden door!
 
De informatie is door ons met de nodige zorgvuldigheid samengesteld. Alle verstrekte informatie moet beschouwd worden als een uitnodiging tot het doen van een bod of om in onderhandeling te treden. Onzerzijds wordt echter geen enkele aansprakelijkheid aanvaard voor enige onvolledigheid, onjuistheid of anderszins, dan wel de gevolgen daarvan. Alle opgegeven maten en oppervlakten zijn indicatief.

Kenmerken

Financieel
Vraagprijs
€ 975.000,-
Status
Beschikbaar
Bouw
Soort woonhuis
Eengezinswoning
Soort bouw
Bestaande bouw
Bouwjaar
2024
Dak type
Plat dak
Oppervlakten en inhoud
Wonen
155 m2
Overige inpandige ruimte
0 m2
Gebouwgebonden buitenruimte
16 m2
Inhoud
570 m3
Indeling
Aantal kamers
5
Aantal badkamers
2
Aantal slaapkamers
3
Voorzieningen
Voorzieningen
Mechanische ventilatie, Schuifpui, Zonnepanelen
Energie en isolatie
Energieklasse
A+++
Isolatievormen
Dubbelglas, Volledig geïsoleerd
Warm water
Vloerverwarming geheel, Warmte terugwininstallatie
Buitenruimte
Type buitenruimte(s)
Achtertuin, Zonneterras
Hoofdtuin
Achtertuin
Hoofdtuin opp.
29 m2
Hoofdtuin positie
Oost
Bergruimte
Soort
Box
Voorzieningen
Voorzien van elektra
Ligging
Ligging
In woonwijk

Plattegronden

Ligging en beschikbare woningen in de buurt

Wat klanten zeggen over Maarten: