- vraagprijs
- € 750.000,- k.k.
Brochure
Over de woning
Een indrukwekkend loftappartement met industriële allure, weids uitzicht over het water én een meer dan royaal balkon op het westen! Gelegen op de vierde verdieping van het monumentale pakhuis St. Job, biedt deze woning een unieke combinatie van karakter, luxe en comfort, met een woonoppervlakte van maar liefst 123m2 en een buitenruimte van 38m2.
De originele gietijzeren pilaren, het hoge balkenplafond en het indrukwekkende laadbalkon met de kenmerkende schuifdeuren geven de woning zijn unieke karakter. Het riante balkon aan de kant van de Sint Jobshaven van maar liefst 15 meter breed biedt een schitterend uitzicht op de iconische Euromast, de Nieuwe Maas en ss. Rotterdam. Doordat de vierde etage geen balkon boven zich heeft, zijn er meer zonuren en is er extra lichtinval.
Hier woon je aan de skyline van Rotterdam met de iconische Euromast, de scheepvaart op de Nieuwe Maas en ss Rotterdam als dagelijks decor.
Het Lloydkwartier is een robuuste mix van creativiteit, wonen en werken. Het is een inspirerende stadsbuurt aan de Nieuwe Maas met eigentijdse architectuur en een maritieme historie. In deze buurt zijn zakelijk en privé op een aangename manier samengebracht. In een combinatie van monumentale en moderne gebouwen vindt u hier creatieve ondernemers, diverse horecagelegenheden en andere culinaire hotspots. Het is de place to be voor een uitzicht op de skyline van Rotterdam en de vele (cruise)schepen die er passeren. Ben je cultuurliefhebber? Dan is deze buurt ook ideaal: naast nieuwe- en historische architectuur zijn het Maastheater, het Museumpark met onder meer de Kunsthal, Museum Boymans van Beuningen en het Depot, op loopafstand. Alle stedelijke voorzieningen zijn voorhanden in het Lloydkwartier: een AH-supermarkt om de hoek, scholen, kinderopvang, gezondheidscentra, sportfaciliteiten en het Euromastpark bevinden zich vlakbij. Door de opstapplaats voor de watertaxi in de St Jobshaven, zijn Hotel New York, Spido en het gezellige Katendrecht binnen twee minuten bereikbaar. Ook met de fiets (inpandige, afgesloten fietsenstalling is aanwezig) ben je binnen tien minuten in de binnenstad en is het Lloydkwartier gunstig gelegen ten opzichte van de tram en metrohalte. Binnen 10 minuten ben je op het Centraal Station. Met de auto zijn Maastunnel, Maasbruggen en de uitvalswegen naar de A15, A16 en A20 gemakkelijk bereikbaar. Kortom, wil je wonen aan het water met werkelijk alle voorzieningen in de nabije omgeving? Ontdek deze bruisende buurt waar het óók rustig wonen is, en deze bijzondere, naar eigen inzicht in te delen loft. Ervaar wat uniek wonen inhoudt en wat een ultiem vakantiegevoel in eigen stad betekent.
Indeling
Begane grond:
De entree van dit monumentale pand is een prachtig atrium met industriële uitstraling. Hier bevinden zich ook de brievenbussen en het bellentableau. De loft is zowel via de trap als met de glazen lift te bereiken.
Vierde etage:
Zodra je binnenkomt via de brede entree ervaar je direct de indrukwekkende sfeer van dit voormalige pakhuis. De robuuste stalen kolommen, het open plafond met houten balken en de grote raampartijen vormen samen een stijlvolle herinnering aan het industriële verleden van dit pakhuis en deze buurt. De woonkamer is een riante leefruimte die moeiteloos plaats biedt aan een royale zithoek, eetgedeelte en open keuken. Dankzij de grote schuifpuien wordt binnen naadloos verbonden met buiten, de perfecte plek om te genieten van de ondergaande zon boven de Maas. Centraal in de loft bevindt zich de luxueus uitgevoerde Bulthaup woonkeuken, voorzien van een groot kookeiland met barfunctie. Hier draait alles om samenzijn: koken met uitzicht, een glas wijn met vrienden of rustig ontbijten. De keuken is uitgevoerd met hoogwaardige inbouwapparatuur, waaronder een stijlvolle wijnklimaatkast, perfect om je mooiste flessen op de ideale temperatuur te bewaren. De combinatie van modern wit keukenmeubilair, een houten werkblad en industriële accenten maakt dit tot een plek waar design en functionaliteit samenkomen. Dankzij de hoekligging van de loft geniet u van een fijne lichtinval vanaf twee zijden, wat zorgt voor een aangename, lichte sfeer.
Het werk- en slaapgedeelte is middels een dubbelzijdige kastenwand subtiel afgescheiden van de living en biedt voldoende ruimte voor een tweepersoonsbed. Daarnaast is er in deze multifunctionele ruimte momenteel plaats gecreëerd voor een bibliotheek met werkplekken, ideaal voor thuiswerken. Het open karakter van de loft is door de uitgekiende indeling behouden gebleven. Grenzend aan de slaapkamer vind je de luxe badkamer, compleet met ligbad, grote inloopdouche met handdouche en stortdouche en een dubbele wastafel, uitgevoerd in moderne materialen. Een separaat toilet is gesitueerd in de inkomsthal waar zich ook nog een praktische berging met aansluiting voor de wasmachine en de droger bevindt.
Het schitterende originele laadbalkon van 38m2 strekt zich uit over de volle breedte en biedt een panoramisch uitzicht over het water en de omliggende architectuur van het Lloydkwartier. Dit is een buitenruimte die niet zomaar een aanvulling is maar een volwaardige leefplek waar je zomers tot laat in de avond kunt vertoeven.
De gehele woning is voorzien van een fraaie tegelvloer -met vloerverwarming- wat bijdraagt aan de strakke, moderne uitstraling.
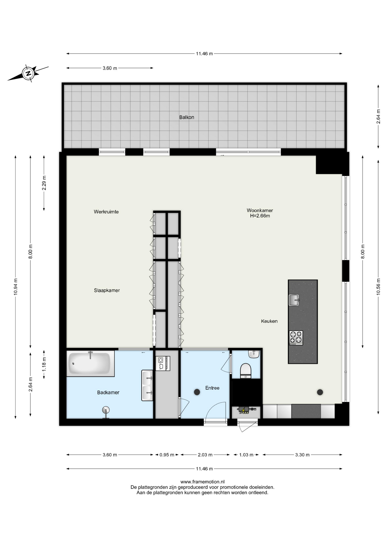
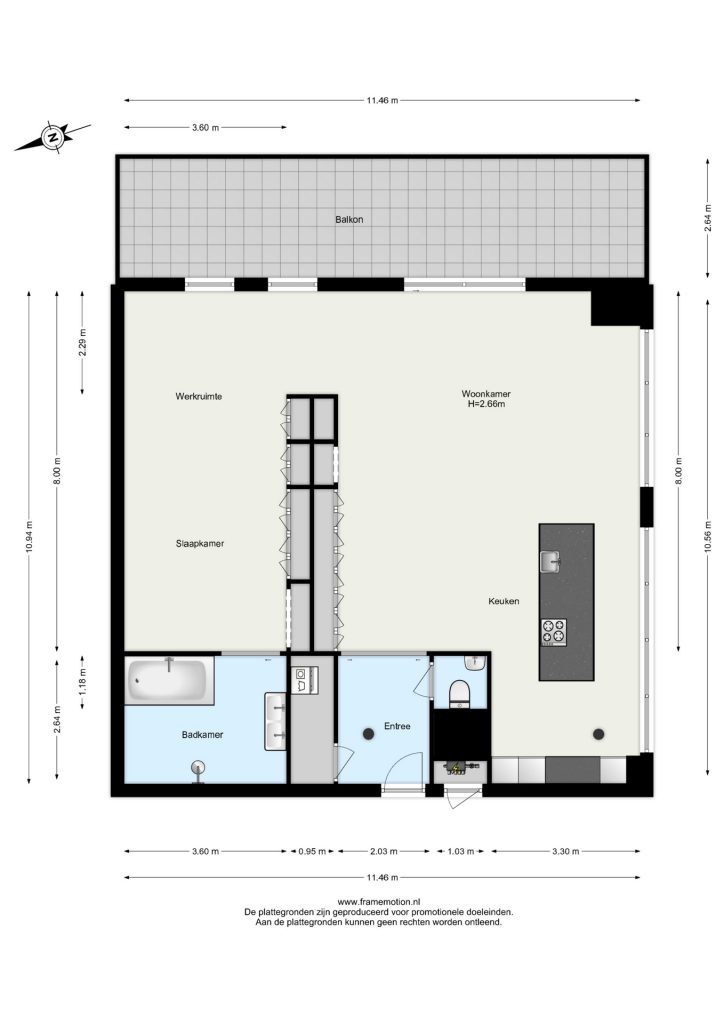
Afmetingen
Voor de afmetingen en indeling zie onze gedetailleerde plattegrond.
Bijzonderheden
• Bouwjaar: 1913 en gerenoveerd tot loftappartementen in 2008
• Woonoppervlakte circa 123m2 plus 38m2 terras
• Inhoud circa 391 m3
• Eigen grond
• Verwarming en warm water middels stadsverwarming
• Het betreft een Rijksmonument (verrekenbare vve lasten)
• Volledig voorzien van dubbele beglazing en vloerverwarming
• Goed functionerende, actieve Vereniging van Eigenaars; bijdrage circa € 290,- per maand
• In de koopovereenkomst wordt een ouderdomsclausule opgenomen
• In de directe omgeving zijn alle dagelijkse voorzieningen te vinden, zoals openbaar vervoer, winkels, horeca, goede verbinding tot uitvalswegen en recreatiemogelijkheden
• Oplevering in overleg.
Wij nodigen je van harte uit om deze loft in Rotterdam met eigen ogen te bewonderen.
Bel voor een vrijblijvende afspraak. We geven graag de mogelijkheden door!
De informatie is door ons met de nodige zorgvuldigheid samengesteld. Alle verstrekte informatie moet beschouwd worden als een uitnodiging tot het doen van een bod of om in onderhandeling te treden. Onzerzijds wordt echter geen enkele aansprakelijkheid aanvaard voor enige onvolledigheid, onjuistheid of anderszins, dan wel de gevolgen daarvan. Alle opgegeven maten en oppervlakten zijn indicatief.