Rotterdam
             ÂHaverlandstraat 28
3031 TK
- vraagprijs
- € 599.000,- k.k.
Brochure
Over de woning
Nog enkele woningen te koop! De bouw is gestart!
Nieuwbouwproject Nieuwe Haverlandschool
15 maisonnettes
 Â
Oude tijden herleven! Herinneringen aan stoepkrijt en touwtje springen komen terug! Op de rand van Rubroek en Oud-Crooswijk wordt het vroegere schoolgebouw aan de Haverlandstraat getransformeerd naar 15 maisonnettes. Deze zijn geheel bestemd voor eigen bewoning!
Â
Meer dan een eeuw geleden, in 1909, werd dit karakteristieke schoolgebouw opgeleverd. Jarenlang was dit het domein van de bovenmeester en verschillende generaties leerlingen van de basisschool. Vervolgens heeft een lagere tuinbouwschool zijn intrek genomen en nog later heeft de muziek- en balletschool van het Rotterdams Conservatorium zich hier gehuisvest. Na bijna 100 jaar een maatschappelijke/educatieve functie te hebben gehad gaat dit pand een nieuwe toekomst tegemoet als hoogwaardig wooncomplex. Van buiten zal het zijn fraaie nostalgische uitstraling behouden. Van binnen daarentegen krijgt het door het gebruik van hoogwaardige materialen een industriële en moderne look en feel.
Â
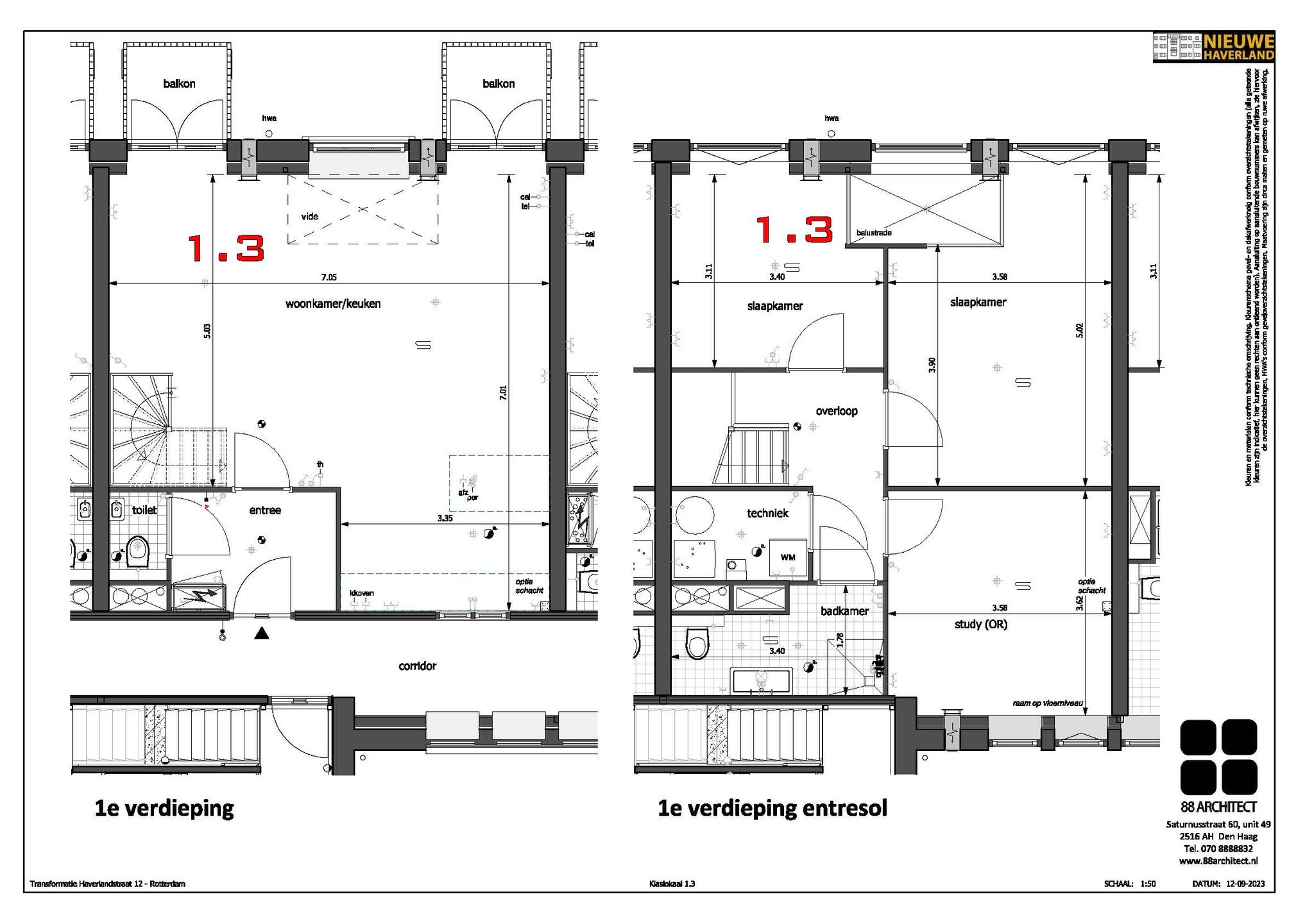
Per woonlaag zullen er 5 superzuinige (A++) maisonnettes worden gerealiseerd met 2 of 3 slaapkamers. De woonruimte varieert tussen de 65m2 en 111 m2. Op de begane grond zijn er 4 woningen met een eigen tuin. De woningen op de eerste en tweede verdieping worden allemaal uitgerust met een balkon.
Â
Luxe
De verschillende verdiepingen zijn zowel met de trap als met de lift bereikbaar. Dat is lekker binnen komen! Vanuit de hal bereik je de fijne woningen. Alle woningen worden voorzien van een volledig ingerichte badkamer, wel zo makkelijk. Ook kun je je eigen wensen kenbaar maken zodat de aannemer jóuw droomwoning gaat maken.
Aan de zijkant van het gebouw komt een gemeenschappelijke fietsenstalling.
Â
Stadsleven
Word jij blij van het stadsleven en heb jij altijd al dichtbij de binnenstad willen wonen? Dan is dit perfect! Dit is een buurt waar het stadsleven en de rust met elkaar afgewisseld worden. Het grenst direct aan het centrum en wordt omringd door water van o.a. De Rotte. Alle stadsgemakken liggen op steenworp afstand zoals supermarkten, avondwinkels, het openbaar vervoer (tram en metro) en de uitvalswegen (A13 en A20). Ook de Oude Haven, de Meent en de Markthal zijn makkelijk bereikbaar en hebben een ruim aanbod aan diverse restaurants, barretjes en terrassen. De modeliefhebbers kunnen hun geluk niet op door de diversiteit aan winkels of ontdek diverse musea en/of theatervoorstellingen. Maar ook de natuur is dichtbij. Zo ben je binnen 10 minuten fietsen bij het Kralingse Bos en Plas. Je vindt hier dus ontspanning én de mogelijkheid om stadse- en culturele activiteiten te ondernemen. Choose it the way you like!
Â
Algemene Bijzonderheden
• Woonoppervlakte 87 m2 tot 111 m2
• Energielabel minimaal A++
• De bouw is gestart, oplevering Q2/Q3 2026
• Vereniging van Eigenaars wordt opgericht door professioneel beheerder
• Volledig voorzien van dubbele beglazing en hoogwaardige isolatie
• Verwarming en warm water middels lucht warmtepomp en vloerverwarming
• Projectnotaris: Westvaer Notarissen
• Zelfbewoningsplicht van toepassing
• In de directe omgeving zijn alle dagelijkse voorzieningen te vinden, zoals openbaar vervoer, winkels, horeca,
goede verbinding tot uitvalswegen en recreatiemogelijkheden en uiteraard het Kralingse Bos.
Kenmerken
Ligging en beschikbare woningen in de buurt
Deze woningen vind je misschien ook wel wat!
Bottelaarstraat 12
€ 700.000,- k.k. / 147 m2 / 5 kamers
Schiedamseweg 104A
€ 600.000,- k.k. / 209 m2 / 8 kamers
's-Gravendijkwal 122H
€ 650.000,- k.k. / € 0,- / 111 m2 / 3 kamers
's-Gravendijkwal 122A
€ 630.000,- k.k. / 110 m2 / 4 kamers
Boezemweg 158A
€ 565.000,- k.k. / 121 m2 / 4 kamers
Schiedamsedijk 64E
€ 525.000,- k.k. / 91 m2 / 3 kamers
Soetendaalseweg 11
€ 700.000,- k.k. / 152 m2 / 5 kamers
Blommersdijkselaan 13A
€ 575.000,- k.k. / 118 m2 / 4 kamers
Bottelaarstraat 13
€ 560.000,- k.k. / 117 m2 / 5 kamers
Claes de Vrieselaan 52B
€ 550.000,- k.k. / 138 m2 / 6 kamers
Mathenesserweg 66C 03
€ 525.000,- k.k. / 142 m2 / 7 kamers
Maaskade 97C 03
€ 525.000,- k.k. / 101 m2 / 4 kamers
Nolensstraat 72C
€ 625.000,- k.k. / 139 m2 / 5 kamers
Rochussenstraat 437
€ 490.000,- k.k. / 99 m2 / 3 kamers
Van Vollenhovenstraat 3-411
€ 500.000,- k.k. / 77 m2 / 2 kamers
Nieuwe Binnenweg 304H
€ 550.000,- k.k. / 101 m2 / 3 kamers
Herman Costerstraat 26
€ 700.000,- k.k. / 141 m2 / 4 kamers
Bergpolderstraat 58A
€ 550.000,- k.k. / 104 m2 / 5 kamers
Burgemeester Meineszlaan 74A
€ 595.000,- k.k. / 143 m2 / 6 kamers
Handelsplein 54
€ 490.000,- k.k. / 110 m2 / 2 kamers
Nijverheidstraat 32C
€ 589.000,- k.k. / 140 m2 / 6 kamers
Zeilmakersstraat 50
€ 600.000,- k.k. / 129 m2 / 6 kamers
Schiekade 97A 02
€ 525.000,- k.k. / 92 m2 / 4 kamers
Boezemkade 213
€ 550.000,- k.k. / 120 m2 / 5 kamers
Abraham Tuschinskistraat 67
€ 490.000,- k.k. / 66 m2 / 2 kamers
Willebrordusplein 13B
€ 489.000,- v.o.n. / 73 m2 / 3 kamers
Willebrordusplein 13L
€ 499.500,- v.o.n. / 73 m2 / 3 kamers
Willebrordusplein 13K
€ 489.000,- v.o.n. / 73 m2 / 3 kamers
Willebrordusplein 13J
€ 489.000,- v.o.n. / 73 m2 / 3 kamers
Willebrordusplein 13H
€ 499.500,- v.o.n. / 73 m2 / 3 kamers
Gerrit van de Lindestraat 27A
€ 695.000,- k.k. / 138 m2 / 4 kamers
Wijnbrugstraat 130
€ 610.000,- k.k. / 107 m2 / 3 kamers
Willebrordusplein 13G
€ 499.500,- v.o.n. / 73 m2 / 3 kamers
Willebrordusplein 13E
€ 489.000,- v.o.n. / 73 m2 / 3 kamers
Willebrordusplein 13D
€ 489.000,- v.o.n. / 73 m2 / 3 kamers
Nobelstraat 39C
€ 565.000,- k.k. / 130 m2 / 3 kamers
Gordelweg 224-03L
€ 485.000,- k.k. / 94 m2 / 5 kamers
Willebrordusplein 13C
€ 489.000,- v.o.n. / 73 m2 / 3 kamers
Willebrordusplein 13F
€ 549.750,- v.o.n. / 85 m2 / 3 kamers
Willebrordusplein 13A
€ 499.500,- v.o.n. / 73 m2 / 3 kamers
Karel Doormanstraat 388C
€ 675.000,- k.k. / 92 m2 / 3 kamers
Van den Hoonaardstraat 18A
€ 650.000,- k.k. / 119 m2 / 4 kamers
Adrien Mildersstraat 71B
€ 600.000,- k.k. / 129 m2 / 7 kamers
Handelsplein 20
€ 550.000,- k.k. / 135 m2 / 2 kamers
Gordelweg 222A
€ 550.000,- k.k. / 124 m2 / 3 kamers
Halvemaanpassage 37
€ 539.000,- k.k. / 90 m2 / 2 kamers
Handelsplein 45
€ 510.000,- k.k. / 110 m2 / 2 kamers
Gedempte Zalmhaven 801
€ 675.000,- k.k. / 126 m2 / 4 kamers
Schiebroekselaan 47B
€ 525.000,- k.k. / 119 m2 / 4 kamers
Oostzeedijk Beneden 215B
€ 650.000,- k.k. / 113 m2 / 4 kamers
Schiebroekselaan 61B
€ 515.000,- k.k. / 106 m2 / 4 kamers
Cleyburchstraat 1B 02
€ 525.000,- k.k. / 101 m2 / 5 kamers
Zeilmakersstraat 60
€ 595.000,- k.k. / 132 m2 / 5 kamers
Beukelsweg 60A 03
€ 565.000,- k.k. / 126 m2 / 5 kamers
Waterjufferstraat 10
€ 625.000,- k.k. / 116 m2 / 7 kamers
Marie van Eijsden-Vinkstraat 178
€ 525.000,- k.k. / 105 m2 / 4 kamers
De Graeffstraat 5A
€ 495.000,- k.k. / 74 m2 / 3 kamers
Boezemkade 119
€ 625.000,- k.k. / 123 m2 / 5 kamers
Wijnbrugstraat 50
€ 515.000,- k.k. / 84 m2 / 3 kamers
Oude Kleiweg 37
€ 525.000,- k.k. / 91 m2 / 3 kamers
Statensingel 171B
€ 585.000,- k.k. / 111 m2 / 4 kamers
Rijnhavenkade 164
€ 700.000,- k.k. / 88 m2 / 4 kamers
Avenue Concordia 34B
€ 600.000,- k.k. / 140 m2 / 6 kamers
Frederikstraat 71
€ 589.000,- k.k. / 124 m2 / 6 kamers
Heemskerkstraat 46B
€ 525.000,- k.k. / 98 m2 / 4 kamers
Haverlandstraat 18
€ 595.000,- k.k. / 111 m2 / 4 kamers
Brouwhuisstraat 18B
€ 585.000,- k.k. / 115 m2 / 5 kamers
West-Sidelinge 64A
€ 490.000,- k.k. / 111 m2 / 4 kamers
H.P.J. de Vriesstraat 1
€ 695.000,- k.k. / 150 m2 / 6 kamers
Schieweg 75A
€ 589.000,- k.k. / 139 m2 / 4 kamers
Haverlandstraat 22
€ 487.500,- k.k. / 87 m2 / 4 kamers
Haverlandstraat 12
€ 479.500,- k.k. / 87 m2 / 4 kamers
Bergselaan 219A
€ 639.000,- k.k. / 141 m2 / 6 kamers
Claes de Vrieselaan 68B 02
€ 650.000,- k.k. / 126 m2 / 4 kamers
Bentinckplein 55
€ 485.000,- k.k. / 97 m2 / 3 kamers
Lloydstraat 26A
€ 500.000,- k.k. / 111 m2 / 1 kamers
Gordelweg 58C
€ 495.000,- k.k. / 116 m2 / 4 kamers
Zaagmolenkade 25
€ 535.000,- k.k. / 113 m2 / 4 kamers
Nico Koomanskade 908
€ 700.000,- k.k. / 82 m2 / 2 kamers
Schiehavenkade 326
€ 585.000,- k.k. / 134 m2 / 3 kamers
Nijverheidstraat 24
€ 575.000,- k.k. / 136 m2 / 4 kamers
Sint-Jobskade 384
€ 585.000,- k.k. / 97 m2 / 2 kamers
Landverhuizersplein 20
€ 650.000,- k.k. / 103 m2 / 3 kamers
De Monchyplein 13
€ 550.000,- k.k. / 82 m2 / 3 kamers
Vissersdijk 29
€ 560.000,- k.k. / 104 m2 / 3 kamers
Wijnbrugstraat 77
€ 599.000,- k.k. / 106 m2 / 4 kamers
Nico Koomanskade 753
€ 550.000,- k.k. / 66 m2 / 1 kamers
Lisstraat 6A
€ 545.000,- k.k. / 102 m2 / 3 kamers
Jan Meertensstraat 10
€ 575.000,- k.k. / 128 m2 / 6 kamers