Spring naar content
typeAppartement
woonoppervlakte92 m2
energielabelA
aantal kamers3

Over het woningtype

Dit klassieke schoolgebouw uit 1904 (inclusief origineel monumentaal trappenhuis) wordt getransformeerd naar acht woningen met een ongekende plafondhoogte tot bijna vijf meter. De woningen hebben meerdere entresols, een tuin, balkon of dakterras en een eigen berging in de kelder. Kortom ze zijn uniek in hun soort.

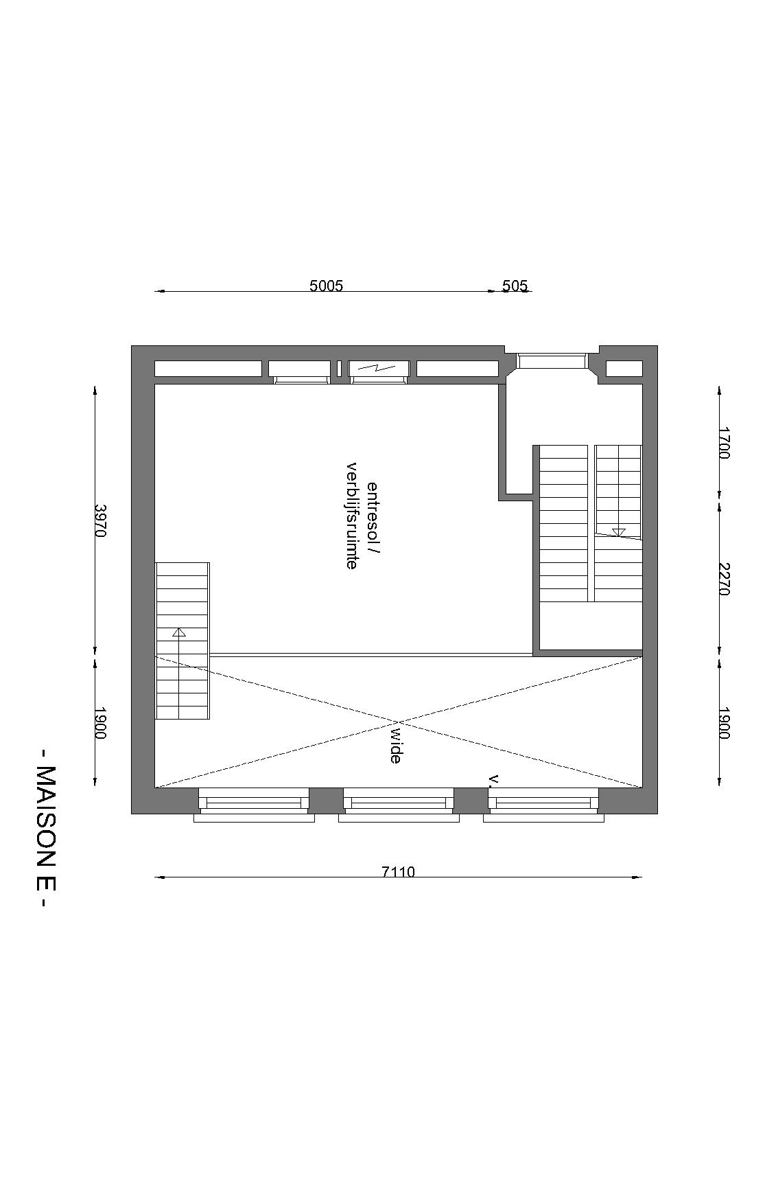
Appartement E is op de tweede en derde verdieping gelegen en bereikbaar via het trappenhuis. De tweede verdieping is een mooie ruimte voor je woonkamer met de entresol als slaapruimte. Het plafond is hier deels 4.66. De derde verdieping heeft een hoogte van 2.60 meter. Doordat je hier zo je dakterras op loopt is dit de ideale plek voor je woonkeuken. Door de hoekligging van appartement E en H heb je hier een extra groot terras. De totale woonoppervlakte van appartement E is 92m2.

Woningen worden opgeleverd inclusief sanitair en stelpost keuken a € 10.000,-.

De woningen zijn via de poort te voet of met de fiets bereikbaar en hebben naast een privé buitenruimte ook de beschikking over de gemeenschappelijke tuin.

Afmetingen
Voor de afmetingen en indeling zie onze gedetailleerde plattegrond.

Bijzonderheden
• Bouwjaar: 1904, transformatie 2023
• Start transformatie werkzaamheden: bij 50% verkoop
• Woonoppervlakte circa 158 (incl. entresol)
• Eigen grond
• Verwarming en warm water middels cv-ketel en deels vloerverwarming
• Volledig voorzien van dubbele beglazing
• Vereniging van Eigenaars zal bij oplevering actief zijn
• Eigen berging in de kelder
• Zelfbewoningsclausule van toepassing
• Energielabel zal A worden maar moet nog wel definitief vastgesteld worden na transformatie
• Het pand is gelegen in betaald parkeren gebied. De gemeente zal helaas geen parkeervergunning afgeven.
• Project notaris: Ligthelm & Dekker
• In de directe omgeving zijn alle dagelijkse voorzieningen te vinden, zoals openbaar vervoer, winkels, horeca,
goede verbinding tot uitvalswegen en recreatiemogelijkheden
• Oplevering in overleg.

Wij nodigen je van harte uit om dit gebouw in Rotterdam met eigen ogen te bewonderen.

Bel voor een vrijblijvende afspraak. We geven graag de mogelijkheden door!

De informatie is door ons met de nodige zorgvuldigheid samengesteld. Alle verstrekte informatie moet beschouwd worden als een uitnodiging tot het doen van een bod of om in onderhandeling te treden. Onzerzijds wordt echter geen enkele aansprakelijkheid aanvaard voor enige onvolledigheid, onjuistheid of anderszins, dan wel de gevolgen daarvan. Alle opgegeven maten en oppervlakten zijn indicatief.

Kenmerken

Financieel
Vraagprijs
€ 505.000,-
Koopconditie
Kosten koper
Status
Verkocht
Bouw
Soort woonhuis
Appartement
Bouwjaar
1904
Oppervlakten en inhoud
Wonen
92 m2
Overige inpandige ruimte
0 m2
Perceel
1.445 m2
Inhoud
350 m3
Indeling
Aantal kamers
3
Aantal badkamers
1
Aantal slaapkamers
2
Aantal woonlagen
2
Energie en isolatie
Energieklasse
A
Isolatievormen
Volledig geïsoleerd
Verwarming
CV ketel
Buitenruimte
Type buitenruimte(s)
Zonneterras

Deze woningen vind je misschien ook wel wat!

woonoppervlak vraagprijs kamers energielabel status
D 174 m2 € 850.000,- 6 Energieklasse A Verkocht Bekijk woning
woonoppervlak vraagprijs kamers energielabel status
C 158 m2 € 755.000,- 5 Energieklasse A Verkocht Bekijk woning
woonoppervlak vraagprijs kamers energielabel status
E 92 m2 € 505.000,- 3 Energieklasse A Verkocht Bekijk woning
woonoppervlak vraagprijs kamers energielabel status
F 140 m2 € 715.000,- 4 Energieklasse A Verkocht Bekijk woning
woonoppervlak vraagprijs kamers energielabel status
G 142 m2 € 730.000,- 4 Energieklasse A Verkocht Bekijk woning
woonoppervlak vraagprijs kamers energielabel status
B 174 m2 € 880.000,- 6 Energieklasse A Verkocht Bekijk woning
woonoppervlak vraagprijs kamers energielabel status
H 93 m2 € 505.000,- 3 Energieklasse A Verkocht Bekijk woning
woonoppervlak vraagprijs kamers energielabel status
A 158 m2 € 800.000,- 5 Energieklasse A Verkocht Bekijk woning