Spring naar content
typeEengezinswoning
woonoppervlakte83 m2
slaapkamers3
buitenruimteAchtertuin, Voortuin
bouwjaar1927
energielabelC

Brochure

Over de woning

Een sfeervolle eengezinswoning met karakter én moderne luxe, dat vind je aan het Burgemeester Doornplein 2 in Zwijndrecht!

Te beginnen bij de centrale locatie; tussen het gezellige winkelcentrum Walburg en het NS station in. Wandel tussendoor en je staat binnen 5 minuten op het perron en pak je de trein richting Breda of Rotterdam. Tel daar 15 minuten bij op (zeg maar dag tegen de file) en binnen een mum van tijd geniet jij van de najaarszon tussen het winkelend publiek of op het terras!

Terug naar de woning, want dat is toch een leukerd; de verkoopster heeft met liefde een groot gedeelte aangepakt het afgelopen jaar en mét beeldig resultaat opgeknapt – klaar om zó in te trekken. Een warme visgraatvloer, marmerlook keukenblad en heerlijk fris schilderwerk. Bij binnenkomst word je verrast door het prachtige lichtinval dat door de glas-in-loodramen valt. Nog meer voordelen? Drie ruime slaapkamers, royale badkamer en de moderne keuken die uitnodigt om samen uitgebreid te koken… Deze eengezinswoning is daarbij ideaal voor gezinnen vanwege het plein én de groenstrook naast huis; (kleine) kinderen kunnen hier veilig en in alle rust spelen.

Onze favoriete plek? Toch de tuin! Met de zon die hier schijnt, is het heerlijk vertoeven op deze plek. Of toch liever binnen in de knusse zithoek met dat magische lichtspel? Deze woning combineert oud en nieuw op een manier waar je (oranje) hart sneller van gaat kloppen. Zie jij jezelf hier al wonen? Kom ‘m samen met ons bewonderen!

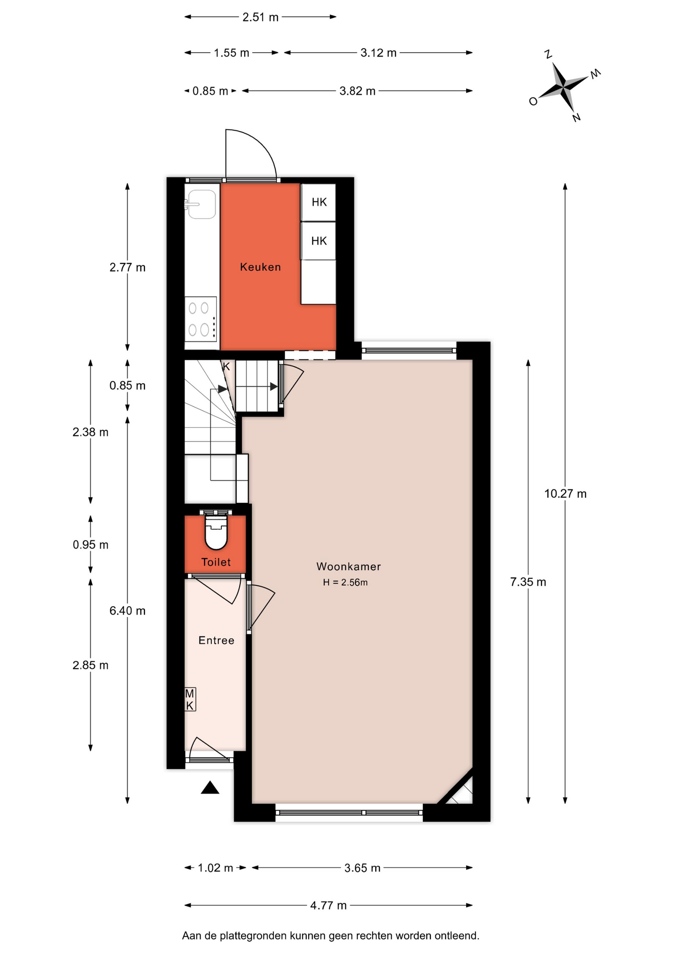
Indeling:

Entree in de hal met meterkast, toilet, trapkast en deur naar de woonkamer.

Meterkast met 9 groepen, dubbele groep, hoofdschakelaar, 3x aardlekschakelaar en dag- en nachtstroommeter.

Toilet, vaste kast en gedeeltelijk betegelde wanden.

Trapkast met luik waarachter de spoel unit van het toilet weggewerkt zit.

Heerlijk sfeervolle woonkamer met open haard, visgraat laminaat vloer en glas-in-lood ramen. Aan de achterzijde is de open keuken geplaatst.

Keuken in dubbele wandopstelling, de keuken is gekozen in een warme blauw tint, net wat anders dan standaard en erg tof! De keuken beschikt over een koelkast, vriezer, vaatwasser, afzuigkap, oven en spoelbak, 4 pits inductie kookplaat en houten blad in marmer look. Vanuit de keuken is de tuin bereikbaar.

Heerlijke tuin, lekker vrij en zonnig met eigen achterom, diverse bakken en kunstgras. Houten berging met elektra. Voor (nog) meer sfeer is er tuinverlichting aanwezig.

Eerste verdieping:

De trap naar de eerste verdieping is voorzien van traprenovatie in 2024 dus ziet er top uit!

In 2023 is er een extra kamer gemaakt op de verdieping dus er zijn nu 3 slaapkamers.

Slaapkamer 1 aan de achterzijde met stuc wanden, laminaat vloer.

Slaapkamer 2 aan de achterzijde.

Slaapkamer 3 aan de voorzijde met inloopkast, was aansluiting en opstelling van de CV ketel (merk Nefit, bouwjaar 2024) en airconditioning.

Algemeen:
Traprenovatie 2024.
In de kruipruimte zijn HR++ parels gestort in oktober 2024.
Tuinaanleg deels 2024.
Ombouw voor de verwarming in de woonkamer in 2024 nieuw geplaatst.
Keuken geplaatst in 2024, vaatwasser, koelkast, vriezer en afzuigkap uit 2021 (overgeplaatst uit de oude keuken).
Spouwmuur isolatie in 2019 (door de vorige bewoner).
Schilderwerk buitenzijde voorkant 2016, achterkant tuin 2021 en de dakopbouw in april 2023.
Extra dakbedekking voor aanleg zonnepanelen in 2021 (door vorige bewoner).
Zonnepanelen 10 stuks, huur, aangelegd in 2022, kosten ca. 70 euro per maand.
Bij HalloStroom zijn de zonnepanelen af te kopen, kosten ongeveer €8734,33 per 1 juli 2025.
Op het glas-in-lood na volledig voorzien van dubbel glas.
Oplevering: 2e week van september 2025 is mogelijk! (in overleg met eigenaar)

De informatie in deze brochure is met de nodige zorg vastgesteld. Aan deze gegevens kunnen echter geen rechten worden ontleend, alle aansprakelijkheid van Maarten Makelaardij is derhalve uitgesloten. Voorts zijn wijzigingen voorbehouden. Alle opgegeven maten en oppervlakten zijn indicatief.

Kenmerken

Financieel
Vraagprijs
€ 325.000,-
Status
Verkocht
Bouw
Soort woonhuis
Eengezinswoning
Soort bouw
Bestaande bouw
Bouwjaar
1927
Dak type
Zadeldak
Oppervlakten en inhoud
Wonen
83 m2
Overige inpandige ruimte
0 m2
Gebouwgebonden buitenruimte
0 m2
Perceel
133 m2
Inhoud
297 m3
Indeling
Aantal kamers
4
Aantal badkamers
1
Aantal slaapkamers
3
Voorzieningen
Voorzieningen
TV kabel, Zonnepanelen
Energie en isolatie
Energieklasse
C
Isolatievormen
Muurisolatie, Vloerisolatie, Grotendeels dubbelglas
Warm water
CV ketel
Verwarming
CV ketel
CV ketel type
Nefit
Buitenruimte
Type buitenruimte(s)
Achtertuin, Voortuin
Hoofdtuin
Achtertuin
Hoofdtuin opp.
71 m2
Hoofdtuin positie
Zuidwest
Bergruimte
Soort
Vrijstaand hout
Ligging
Parkeer faciliteiten
Openbaar parkeren
Ligging
Aan rustige weg, In centrum, In woonwijk

Plattegronden

Ligging en beschikbare woningen in de buurt

Wat klanten zeggen over Maarten: