Spring naar content
typeEengezinswoning
woonoppervlakte76 m2
slaapkamers3
buitenruimteAchtertuin, Voortuin
bouwjaar1936
energielabelD

Brochure

Over de woning

Helaas is het momenteel niet meer mogelijk om voor deze woning een bezichtiging in te plannen, we kunnen je wel op de reservelijst plaatsen!

Wat een fijne sfeer! Deze gezellige jaren '30 woning is de droom van iedere starter; een sfeervolle woonkamer met erker en schouw, een moderne keuken en badkamer, 2 slaapkamers met mogelijkheid tot het creëren van een derde slaapkamer en een knusse tuin op het zuidoosten.
De huidige eigenaren hebben veel aandacht besteed aan de kleurrijke inrichting en afwerking van de woning en het resultaat mag er zeker zijn, je wordt meteen vrolijk wanneer je deze woning binnenkomt.
Ook de ligging laat niets te wensen over; de woning is gelegen in een gemoedelijke straat op korte afstand van de Kerkbuurt, het gezellige centrum van Sliedrecht.

Wil jij hier jouw wooncarrière starten of voortzetten? Laat deze kans niet aan je voorbij gaan!

Indeling:
Compacte hal met meterkast (5 enkele + dubbele groep, slimme meters, glasvezel aansluiting) en garderobe. Vanuit de hal bereik je de woonkamer.

Gezellige woonkamer met erker aan voorzijde en fraaie schouw aan achterzijde. Het gebruik van neutrale kleuren in combinatie met een mooie PVC vloer en een fleurig behang geeft deze ruimte een gezellige sfeer.
Vanuit de woonkamer is de hal naar de keuken bereikbaar.

Tussenhal met trapopgang naar de 1e verdieping, trapkast met aansluiting wasmachine.

Moderne zwarte keuken in wandopstelling (in 2021 vernieuwd), voorzien van een inductie kookplaat met afzuigkap, vaatwasser en koelkast. Het marmerlook werkblad en de goudkleurige spoelbak en kraan maken deze keuken helemaal af!

De badkamer is gelegen naast de keuken en is voorzien van een douchecabine met thermostaatkraan, wastafel met meubel en toilet. Verder is de badkamer volledig betegeld en beschikt deze over inbouwspots.

Vanuit de tussenhal is de knusse achtertuin bereikbaar. De tuin is gelegen op het zuidoosten en heeft daardoor een prettige zonligging. De tuin is afgewerkt met mooie schuttingen, grote tegels en grind en beschikt over een aangebouwde berging met elektra en een achterom.

Eerste verdieping:
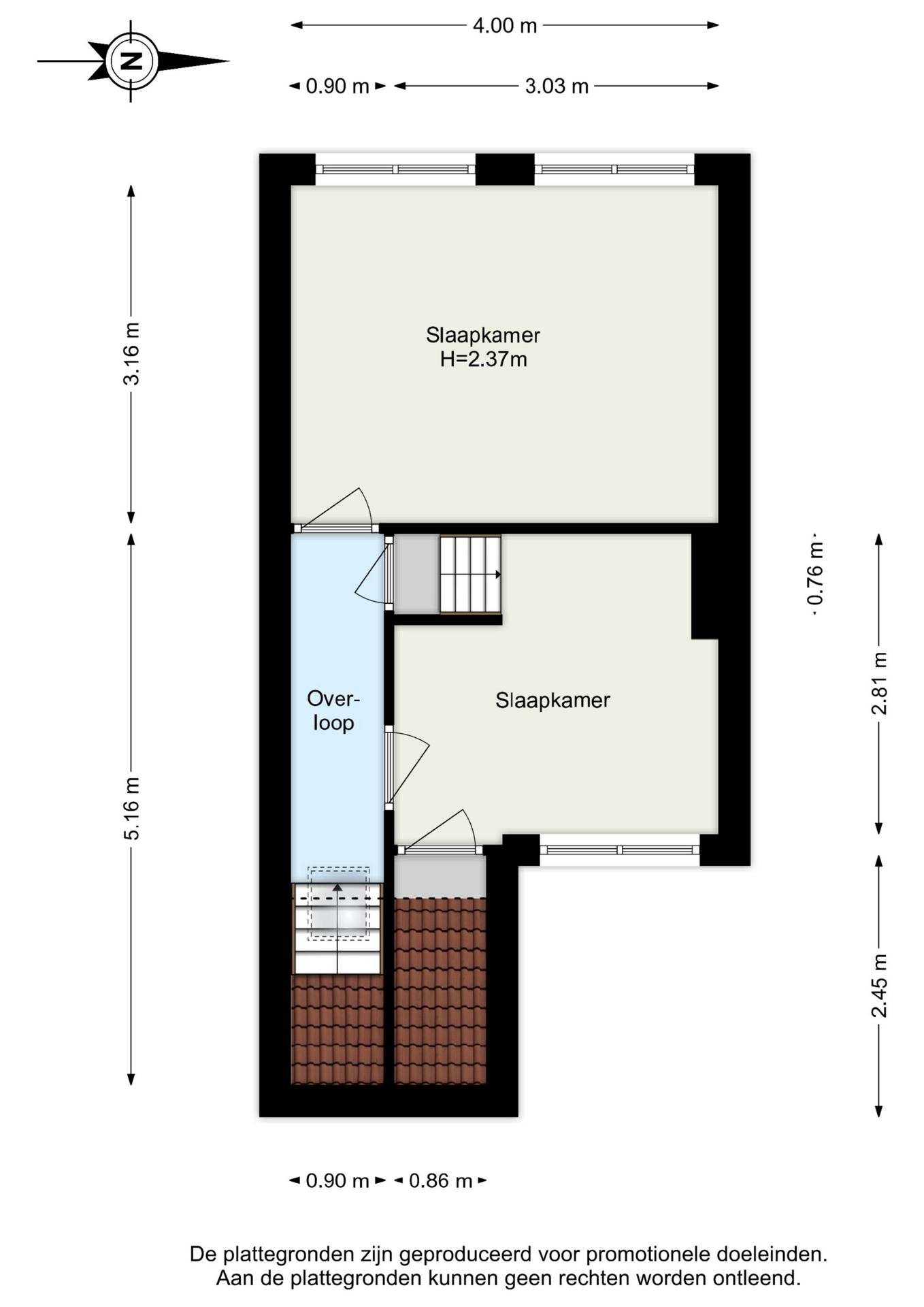
Overloop met dakraam, toegang tot de slaapkamers en trap naar 2e verdieping. De kamers op deze verdieping zijn voorzien van karakteristieke paneeldeuren.

Ruime slaapkamer aan de voorzijde van de woning, voorzien van TV-aansluiting, een nette PVC vloer, stucwerk wandafwerking en sierlijsten.

Slaapkamer aan achterzijde, voorzien van een vaste kast, PVC vloer, stucwerk wandafwerking en sierlijsten.

Tweede verdieping:
Open zolderruimte, door de brede dakkapel aan achterzijde kan deze ruimte eventueel dienen als derde slaapkamer. De ruimte beschikt over een elektrisch rolluik en inbouwspots.
De opstelplaats van de CV-ketel (Intergas, 2023) is hier netjes weggewerkt in een vaste kast.

Algemeen:
Eigen grond, 79 m².
Staalfundering.
In 2021 is de keuken vernieuwd, een nieuwe PVC vloer gelegd, bitumen vernieuwd en nieuwe dakpannen en isolatie geplaatst.
In 2023 is de voortuin aangelegd en CV-ketel vernieuwd.
De woning omvat 76 m², waarvan officieel 66 m² als woonoppervlakte en 10 m² overig inpandig. De zolder is 5 cm te laag om officieel meegeteld te worden als woonoppervlakte en daardoor overig inpandige ruimte, echter is deze goed als woonruimte te gebruiken.
Oplevering op korte termijn mogelijk.

Kenmerken

Financieel
Vraagprijs
€ 287.500,-
Status
Verkocht
Bouw
Soort woonhuis
Eengezinswoning
Soort bouw
Bestaande bouw
Bouwjaar
1936
Dak type
Zadeldak
Oppervlakten en inhoud
Wonen
76 m2
Overige inpandige ruimte
0 m2
Gebouwgebonden buitenruimte
0 m2
Perceel
79 m2
Inhoud
298 m3
Indeling
Aantal kamers
4
Aantal badkamers
1
Aantal slaapkamers
3
Voorzieningen
Voorzieningen
Mechanische ventilatie, Rolluiken, TV kabel, Buitenzonwering, Glasvezel kabel
Energie en isolatie
Energieklasse
D
Isolatievormen
Dakisolatie, Gedeeltelijk dubbelglas
Warm water
CV ketel
Verwarming
CV ketel
CV ketel type
Intergas
Buitenruimte
Type buitenruimte(s)
Achtertuin, Voortuin
Hoofdtuin
Achtertuin
Hoofdtuin opp.
18 m2
Hoofdtuin positie
Zuidoost
Bergruimte
Soort
Aangebouwd hout
Ligging
Parkeer faciliteiten
Openbaar parkeren
Ligging
In woonwijk

Plattegronden

Ligging en beschikbare woningen in de buurt

Wat klanten zeggen over Maarten: